4.9
Рейтинг на основании 120 отзывов
Дмитров
Опорный проезд 28Б
(индустриальный парк Ниагара)
Бренд "Дмитров-Дело" c 2008 года на рынке строительства в Дмитрове
Звоните 9:00 до 18:00 8 (915) 055-33-61
Бренд "Дмитров-Дело" c 2008 года на рынке строительства в Дмитрове

Одноэтажный дом с мансардой и эркером в гостиной S-186

Стоимость проекта от:
90 000 ₽
БЕСПЛАТНО! ПРИ ЗАКАЗЕ СТРОИТЕЛЬСТВА
Стоимость строительства от:
14 947 200 ₽
Артикул ART-5364
Дата 26.12.2025
Архитектурный стиль Европейский
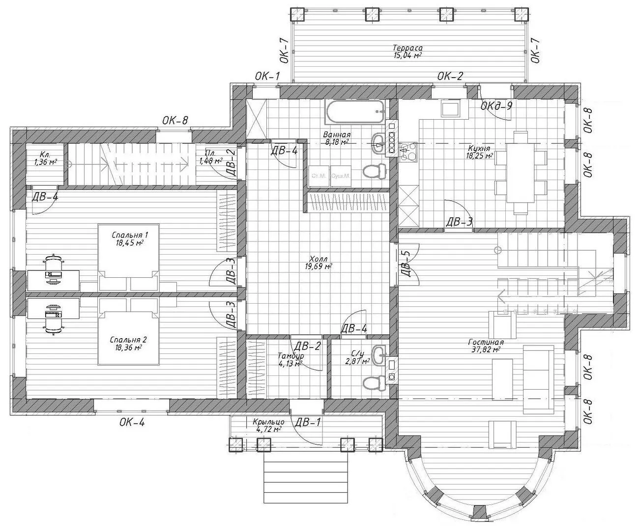
Количество надземных этажей 2
Круглогодичное проживание Да
Площадь дома 200 м2
Санузлы 2
Спальни 2

Описание

Уютный одноэтажный дом в европейском стиле, в котором вам будет комфортно жить «солнцем на стенах», «в тени летнего сада» и «в круглый год”. Зрелищный эркер в гостиной придаёт дому характерную «прозрачную» ширину и создаёт ощущение простора, а большая терраса в отдельном пространстве открывает для вас чудесный вид на природу и позволяет проводить уютные вечера в собственный уголок. Готовый к жизни — всё, что нужно для удобного проживания в любое время года. Притягующая внимание конструкция «многощипковая» кровля придает дому эстетичный вид и гарантирует надёжную защиту от непогоды, а газобетонные блоки внешних стен обеспечат теплоизоляцию и звукоизоляцию. Чистые, простые линии, но при этом функциональные детали — loft‑помещение позволяет использовать пространство гибко, а отсутствие лишних балконов и веранд делает дом более уютным и спокоен. У нас нет пристроенного гаража, но в просторной открытой автостоянке всегда найдется место для вашего транспортного средства. Если вы ищете идеальное сочетание европейского стиля, комфортной жизни и функционального простора, то этот дом создаст вам ощущение «домашнего уюта» на новых высотах. Не упустите шанс увидеть его воочию – ваше будущее пространство ждет вас.

Характеристики дома

Архитектурный стиль
Автоматизированное регулирование параметров теплоносителя
Да
Балконы/лоджии
Отсутствуют
Чердачное помещение
Да
Датчики протечки воды
Да
Эксплуатируемая или зеленая кровля
Нет
Электроснабжение
Центральное
Газоснабжение
Центральное
Изоляция воздушного шума
Да
Камин
Нет
Класс энергоэффективности
-
Класс энергосбережения
-
Количество надземных этажей
2
Круглогодичное проживание
Да
Материал кровли
Металлочерепица
Материал перекрытий
Монолитные железобетонные
Материал внешних стен
Материал внутренних перегородок
Блочные
Модульное строительство с конструкциями заводского изготовления
Нет
Объем надземной части
-
Основной материал фасадов
Облицовочный кирпич
Отопление
Центральное
Площадь дома
200 м2
Площадь застройки
241 м2
Подвальное помещение
Нет
Показатель компактности здания
-
Приборы учета тепловой энергии
Да
Пристроенный гараж/крытая автостоянка
Нет
Противопожарная система
Нет
Санузлы
2
Совмещенная кухня-гостиная
Нет
Спальни
2
Терраса
Да
Тип фундамента
Ленточный
Тип кровли
Толщина внешних стен
425 мм
Толщина внутренних перегородок
100 мм
Улучшенные шумовые характеристики
Да
Вентиляция
Естественная
Веранда
Нет
Водоотведение
Локальные очистные сооружения
Водоснабжение
Центральное
Высота дома
-
Высота потолков
3 м

Планировка

Фасад дома

Александр

Закажите выезд инженера

Александр

Выездной инженер
Закажите выезд инженера для точной диагностики и профессиональной консультации по инженерным системам. Специалист приедет в удобное время, проведёт осмотр, рассчитает стоимость работ и подберёт оптимальные решения для вашего дома.


    Похожие проекты

    Ипотека и
    рассрочка
    Проект A019
    Стоимость от:
    5 215 680
    Проект от: 32 400
    Этажей 2
    Санузлы 2
    Спальни 2
    Смотреть
    Ипотека и
    рассрочка
    ИЖД «Комфортный»
    Стоимость от:
    9 978 980
    Проект от: 58 050
    Этажей 1
    Санузлы 1
    Спальни 3
    Смотреть
    Ипотека и
    рассрочка
    АС — Архитектурно-строительные решения АС-2465
    Стоимость от:
    5 932 080
    Проект от: 37 800
    Этажей 1
    Санузлы 2
    Спальни 3
    Смотреть
    Ипотека и
    рассрочка
    Загородный дом КД-100
    Стоимость от:
    7 838 820
    Проект от: 49 950
    Этажей 1
    Санузлы 2
    Спальни 3
    Смотреть
    Ипотека и
    рассрочка
    Оптимальный
    Стоимость от:
    8 764 080
    Проект от: 52 650
    Этажей 2
    Санузлы 2
    Спальни 4
    Смотреть
    Ипотека и
    рассрочка
    Одноэтажный дом Сканди Дача-59 ВМ
    Стоимость от:
    3 744 730
    Проект от: 26 550
    Этажей 1
    Санузлы 1
    Спальни 2
    Смотреть

    Как узнать стоимость дома

    back
    Оставляете заявку
    Вы заполняете форму на сайте или звоните нам. Менеджер Лайвкрафт связывается с вами для уточнения деталей: тип дома, площадь, материалы, участок строительства.
    back
    Консультация и подбор решения
    Наш специалист помогает выбрать оптимальный тип дома и конструкцию с учётом бюджета, сроков и целей — будь то дом для постоянного проживания или дача.
    back
    Расчёт предварительной стоимости
    Инженер делает первичный расчёт стоимости строительства по вашим параметрам: фундамент, коробка, кровля, отделка. Вы получаете смету с разбивкой по этапам.
    back
    Корректировка и утверждение сметы
    При необходимости вносим изменения — например, замену материалов или сокращение этапов. После согласования формируется окончательная фиксированная смета.
    back
    Заключение договора и старт работ
    После утверждения сметы заключаем официальный договор с гарантией. Вы получаете прозрачный график и точную стоимость — без скрытых расходов.

    Заказать конусльтацию по:Одноэтажный дом с мансардой и эркером в гостиной S-186

    Фото 1 Одноэтажный дом с мансардой и эркером в гостиной S-186


      Наши
      контакты

      Дмитров
      Опорный проезд 28Б
      (индустриальный парк Ниагара)
      9:00 до 18:00

      Корзина