4.9
Рейтинг на основании 120 отзывов
Дмитров
Опорный проезд 28Б
(индустриальный парк Ниагара)
Бренд "Дмитров-Дело" c 2008 года на рынке строительства в Дмитрове
Звоните 9:00 до 18:00 8 (915) 055-33-61
Бренд "Дмитров-Дело" c 2008 года на рынке строительства в Дмитрове

Комфорт «MINI 2.0.»

Стоимость проекта от:
22 950 ₽
БЕСПЛАТНО! ПРИ ЗАКАЗЕ СТРОИТЕЛЬСТВА
Стоимость строительства от:
3 839 220 ₽
Артикул ART-13701
Дата 25.12.2025
Архитектурный стиль Классический
Количество надземных этажей 1
Круглогодичное проживание Да
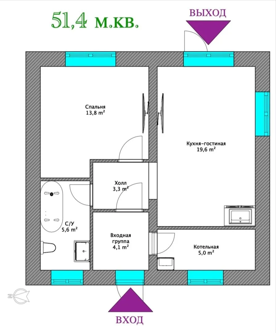
Площадь дома 51 м2
Санузлы 1
Спальни 1

Описание

Представляем вашему вниманию дом «Комфорт MINI 2.0» – идеальное сочетание простоты и элегантности. Уже с первого взгляда вы ощутите классический стиль, придающий ему неподдельный шарм эпохи, при этом каждый элемент построен с учётом современных требований к жилью. Лёгкая четырёхскатная крыша, выполненная в традиционном вальмовом исполнении, защищает от непогоды и подчёркивает архитектурную целостность дома, ведь он рассчитан на круглогодичное проживание. Экспериментируя с материалами, мы выбрали керамзитобетонные блоки для внешних стен, что обеспечивает отличную теплоизоляцию, снижает расходы на отопление и гарантирует тишину внутри помещений. Удобное расположение всех помещений в одном этаже избавит от лишних лестниц, а просторный чердачный отсек создаёт гибкое пространство – будь то кладовая, мастерская или уютный уголок для творчества и отдыха. Внутри вы найдете оптимальное сочетание светлых помещений и гармоничных интерьеров, способных превратить любой момент в мгновение уюта. Для тех, кто ценит простоту и беззаботность, в доме отсутствуют балконы, террасы, веранда и пристроенный гараж, что позволяет полностью сосредоточиться на создании семейного уюта и домашней атмосферы. С «Комфорт MINI 2.0» каждый день начинается с теплого луча солнца, а вечерами – с спокойствия, которое дарят классика и долговечность. Подарите себе и своей семье дом, где каждая деталь продумана, а комфорт – приоритет.

Характеристики дома

Архитектурный стиль
Автоматизированное регулирование параметров теплоносителя
Нет
Балконы/лоджии
Отсутствуют
Чердачное помещение
Да
Датчики протечки воды
Нет
Эксплуатируемая или зеленая кровля
Нет
Электроснабжение
Центральное
Газоснабжение
Центральное
Изоляция воздушного шума
Нет
Камин
Нет
Класс энергоэффективности
-
Класс энергосбережения
-
Количество надземных этажей
1
Круглогодичное проживание
Да
Материал кровли
Металлочерепица
Материал перекрытий
Деревянные
Материал внешних стен
Материал внутренних перегородок
Блочные
Модульное строительство с конструкциями заводского изготовления
Нет
Объем надземной части
214 м3
Основной материал фасадов
Облицовочный кирпич
Отопление
Индивидуальное
Площадь дома
51 м2
Площадь застройки
71 м2
Подвальное помещение
Нет
Показатель компактности здания
-
Приборы учета тепловой энергии
Нет
Пристроенный гараж/крытая автостоянка
Нет
Противопожарная система
Нет
Санузлы
1
Совмещенная кухня-гостиная
Да
Спальни
1
Терраса
Нет
Тип фундамента
Свайно-ростверковый
Толщина внешних стен
520 мм
Толщина внутренних перегородок
100 мм
Улучшенные шумовые характеристики
Нет
Вентиляция
Естественная
Веранда
Нет
Водоотведение
Локальные очистные сооружения
Водоснабжение
Индивидуальное
Высота дома
6.4 м
Высота потолков
2.9 м

Планировка

Фасад дома

Александр

Закажите выезд инженера

Александр

Выездной инженер
Закажите выезд инженера для точной диагностики и профессиональной консультации по инженерным системам. Специалист приедет в удобное время, проведёт осмотр, рассчитает стоимость работ и подберёт оптимальные решения для вашего дома.


    Похожие проекты

    Ипотека и
    рассрочка
    Загородный дом — 130.01
    Стоимость от:
    10 499 280
    Проект от: 64 800
    Этажей 1
    Санузлы 2
    Спальни 4
    Смотреть
    Ипотека и
    рассрочка
    Двухэтажный дом СМ-25
    Стоимость от:
    7 035 360
    Проект от: 42 300
    Этажей 2
    Санузлы 2
    Спальни 3
    Смотреть
    Ипотека и
    рассрочка
    Каркасный дом Домок 77
    Стоимость от:
    5 080 680
    Проект от: 34 650
    Этажей 2
    Санузлы 2
    Спальни 3
    Смотреть
    Ипотека и
    рассрочка
    Загородный дом АС-243
    Стоимость от:
    12 429 120
    Проект от: 79 200
    Этажей 1
    Санузлы 2
    Спальни 3
    Смотреть
    Ипотека и
    рассрочка
    Дом 21
    Стоимость от:
    8 965 440
    Проект от: 56 700
    Этажей 2
    Санузлы 2
    Спальни 3
    Смотреть
    Ипотека и
    рассрочка
    Двухэтажный дом КР-1121-3
    Стоимость от:
    6 526 860
    Проект от: 49 050
    Этажей 2
    Санузлы 2
    Спальни 4
    Смотреть

    Как узнать стоимость дома

    back
    Оставляете заявку
    Вы заполняете форму на сайте или звоните нам. Менеджер Лайвкрафт связывается с вами для уточнения деталей: тип дома, площадь, материалы, участок строительства.
    back
    Консультация и подбор решения
    Наш специалист помогает выбрать оптимальный тип дома и конструкцию с учётом бюджета, сроков и целей — будь то дом для постоянного проживания или дача.
    back
    Расчёт предварительной стоимости
    Инженер делает первичный расчёт стоимости строительства по вашим параметрам: фундамент, коробка, кровля, отделка. Вы получаете смету с разбивкой по этапам.
    back
    Корректировка и утверждение сметы
    При необходимости вносим изменения — например, замену материалов или сокращение этапов. После согласования формируется окончательная фиксированная смета.
    back
    Заключение договора и старт работ
    После утверждения сметы заключаем официальный договор с гарантией. Вы получаете прозрачный график и точную стоимость — без скрытых расходов.

    Заказать конусльтацию по:Комфорт «MINI 2.0.»

    Фото 1 Комфорт «MINI 2.0.»


      Наши
      контакты

      Дмитров
      Опорный проезд 28Б
      (индустриальный парк Ниагара)
      9:00 до 18:00

      Корзина