4.9
Рейтинг на основании 120 отзывов
Дмитров
Опорный проезд 28Б
(индустриальный парк Ниагара)
Бренд "Дмитров-Дело" c 2008 года на рынке строительства в Дмитрове
Звоните 9:00 до 18:00 8 (915) 055-33-61
Бренд "Дмитров-Дело" c 2008 года на рынке строительства в Дмитрове

Двухэтажный дом с террасой и гаражом

Стоимость проекта от:
116 550 ₽
БЕСПЛАТНО! ПРИ ЗАКАЗЕ СТРОИТЕЛЬСТВА
Стоимость строительства от:
17 783 760 ₽
Артикул ART-3521
Дата 26.12.2025
Архитектурный стиль Классический
Количество надземных этажей 2
Круглогодичное проживание Да
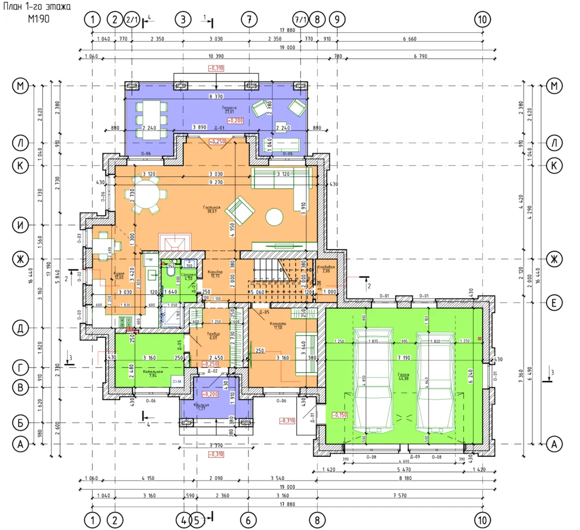
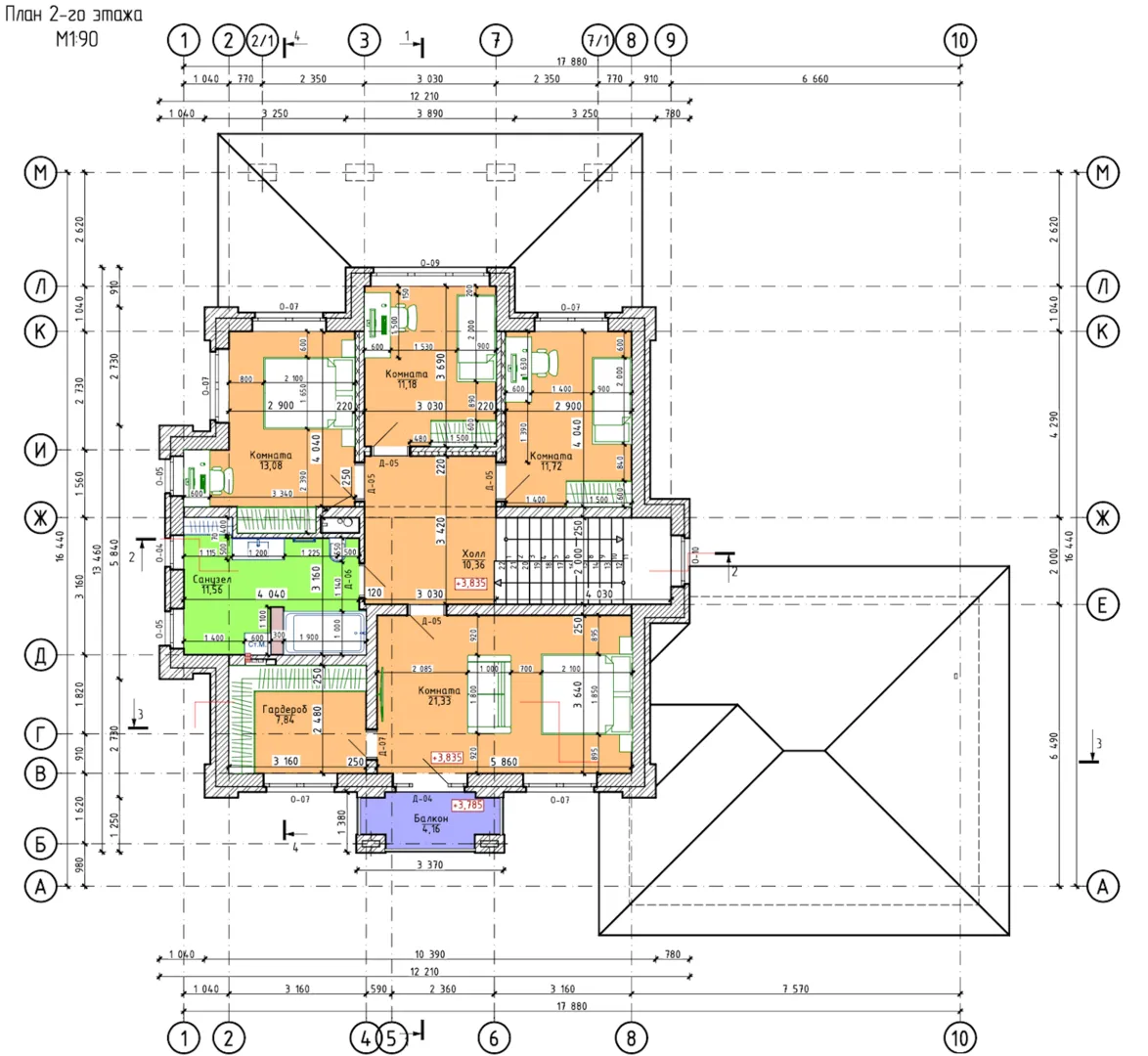
Площадь дома 259 м2
Санузлы 2
Спальни 4

Описание

Вас ожидает уютный двухэтажный дом, выполненный в строгом классическом стиле, где каждая деталь продумана до мелочей, чтобы создать атмосферу спокойствия и домашнего тепла. Внутри просторные, светлые комнаты благодаря использованию газобетонных блоков, которые не только обеспечивают энергоэффективность, но и придают зданию современное, но при этом вечное обаяние. Четырехскатная (вальмовая) крыша обеспечивает надежность и изысканный вид, позволяя вам наслаждаться не только комфортом, но и эстетической гармонией. Подходит к круглогодичному проживанию благодаря обилию теплоизолирующих материалов и тщательно продуманной вентиляции. На втором этаже вы обнаружите балкон/лоджию, откуда открывается легкая воздушная порыв, создавая идеальное место для чашки чая в рассвете или заката. Пристроенный гараж и крытая автостоянка не только удобно защищают ваш автомобиль, но и добавляют дому функциональности, делая каждое утро без лишних забот. Чердачное помещение, в свою очередь, открывает простор для творчества – будь то хобби-проект, хранение сезонных вещей или расширение пространства вашего дома. Нежная терраса приглашает проводить свободное время на свежем воздухе. Здесь вы сможете устраивать барбекю, принимать гостей за бокалом вина, просто наслаждаться видом на ухоженный сад. В сочетании с мягким классическим дизайном, практичными удобствами и надежной конструкцией, этот дом станет идеальной обителью для всей семьи, где каждый день превращается в маленькое праздничное событие. Выбирая этот дом, вы инвестируете не только в недвижимость, но и в беззаботный, комфортный образ жизни, который вдохновляет и восстанавливает.

Характеристики дома

Архитектурный стиль
Автоматизированное регулирование параметров теплоносителя
Да
Балконы/лоджии
1
Чердачное помещение
Да
Датчики протечки воды
Да
Эксплуатируемая или зеленая кровля
Нет
Электроснабжение
Не предусмотрено
Газоснабжение
Не предусмотрено
Изоляция воздушного шума
Да
Камин
Да
Класс энергоэффективности
-
Класс энергосбережения
-
Количество надземных этажей
2
Круглогодичное проживание
Да
Материал кровли
Битумная черепица
Материал перекрытий
Монолитные железобетонные
Материал внешних стен
Материал внутренних перегородок
Кирпичные
Модульное строительство с конструкциями заводского изготовления
Нет
Объем надземной части
1165 м3
Основной материал фасадов
Облицовочный кирпич
Отопление
Не предусмотрено
Площадь дома
259 м2
Площадь застройки
211 м2
Подвальное помещение
Нет
Показатель компактности здания
-
Приборы учета тепловой энергии
Да
Пристроенный гараж/крытая автостоянка
Да
Противопожарная система
Нет
Санузлы
2
Совмещенная кухня-гостиная
Да
Спальни
4
Терраса
Да
Тип фундамента
Плитный
Толщина внешних стен
530 мм
Толщина внутренних перегородок
120 мм
Улучшенные шумовые характеристики
Да
Вентиляция
Естественная
Веранда
Нет
Водоотведение
Не предусмотрено
Водоснабжение
Не предусмотрено
Высота дома
9.67 м
Высота потолков
3 м

Планировка

Фасад дома

Александр

Закажите выезд инженера

Александр

Выездной инженер
Закажите выезд инженера для точной диагностики и профессиональной консультации по инженерным системам. Специалист приедет в удобное время, проведёт осмотр, рассчитает стоимость работ и подберёт оптимальные решения для вашего дома.


    Похожие проекты

    Ипотека и
    рассрочка
    Одноэтажный дом по проекту «Анна»
    Стоимость от:
    8 474 400
    Проект от: 54 000
    Этажей 1
    Санузлы 1
    Спальни 3
    Смотреть
    Ипотека и
    рассрочка
    Одноэтажный жилой дом Зевс Микро 79 кв.м.
    Стоимость от:
    5 939 780
    Проект от: 35 550
    Этажей 1
    Санузлы 1
    Спальни 3
    Смотреть
    Ипотека и
    рассрочка
    Мансардный дом З-365
    Стоимость от:
    25 561 440
    Проект от: 164 700
    Этажей 2
    Санузлы 2
    Спальни 3
    Смотреть
    Ипотека и
    рассрочка
    Загородный дом В-241 в кирпиче
    Стоимость от:
    10 916 640
    Проект от: 65 700
    Этажей 2
    Санузлы 2
    Спальни 4
    Смотреть
    Ипотека и
    рассрочка
    Одноэтажный дом с мансардой FIXPLANS — 2375
    Стоимость от:
    14 351 760
    Проект от: 94 050
    Этажей 2
    Санузлы 2
    Спальни 3
    Смотреть
    Ипотека и
    рассрочка
    КОМФОРТ-95
    Стоимость от:
    6 886 800
    Проект от: 42 750
    Этажей 2
    Санузлы 2
    Спальни 3
    Смотреть

    Как узнать стоимость дома

    back
    Оставляете заявку
    Вы заполняете форму на сайте или звоните нам. Менеджер Лайвкрафт связывается с вами для уточнения деталей: тип дома, площадь, материалы, участок строительства.
    back
    Консультация и подбор решения
    Наш специалист помогает выбрать оптимальный тип дома и конструкцию с учётом бюджета, сроков и целей — будь то дом для постоянного проживания или дача.
    back
    Расчёт предварительной стоимости
    Инженер делает первичный расчёт стоимости строительства по вашим параметрам: фундамент, коробка, кровля, отделка. Вы получаете смету с разбивкой по этапам.
    back
    Корректировка и утверждение сметы
    При необходимости вносим изменения — например, замену материалов или сокращение этапов. После согласования формируется окончательная фиксированная смета.
    back
    Заключение договора и старт работ
    После утверждения сметы заключаем официальный договор с гарантией. Вы получаете прозрачный график и точную стоимость — без скрытых расходов.

    Заказать конусльтацию по:Двухэтажный дом с террасой и гаражом

    Фото 1 Двухэтажный дом с террасой и гаражом


      Наши
      контакты

      Дмитров
      Опорный проезд 28Б
      (индустриальный парк Ниагара)
      9:00 до 18:00

      Корзина