4.9
Рейтинг на основании 120 отзывов
Дмитров
Опорный проезд 28Б
(индустриальный парк Ниагара)
Бренд "Дмитров-Дело" c 2008 года на рынке строительства в Дмитрове
Звоните 9:00 до 18:00 8 (915) 055-33-61
Бренд "Дмитров-Дело" c 2008 года на рынке строительства в Дмитрове

Барнхаус-10

Стоимость проекта от:
32 400 ₽
БЕСПЛАТНО! ПРИ ЗАКАЗЕ СТРОИТЕЛЬСТВА
Стоимость строительства от:
4 942 080 ₽
Артикул ART-5748
Дата 26.12.2025
Архитектурный стиль Барнхаус
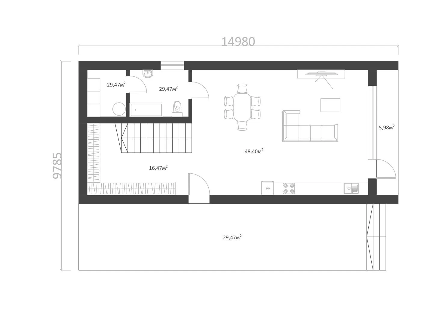
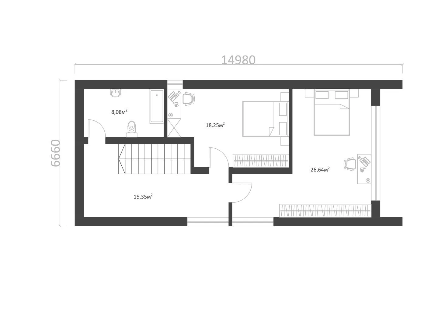
Количество надземных этажей 2
Круглогодичное проживание Да
Площадь дома 72 м2
Санузлы 2
Спальни 2

Описание

Добро пожаловать в уютный уголок современного шика – Барнхаус‑10. Этот двухпотенционный дом раскрывает в себе непринужденный, но в то же время строгий стиль, характерный для фермерских усадеб, которым придается современный штрих: прочный полистиролбетон окутывает фасад, а двускатная крыша создаёт ощущение простора и надежности. Внутри каждая деталь продумана до мелочей: от открытых пространств до тихого, интимного уголка для отдыха. Главной особенностью является круглогодичное проживание и просторные террасы, на которых можно наслаждаться прохладой осени, теплом летнего солнца и свежим бризом зимних ветров. Просторные комнаты, обставленные с любовью к деталям, дарят ощущение легкости и свободы. В Барнхаусе можно полностью погрузиться в гармонию природы, оставаясь при этом в комфорте современного жилья. Если вы мечтаете о доме, который сочетает в себе традиционный шарм и все удобства современного образа жизни, Барнхаус‑10 станет идеальным выбором. Ощутите тепло уюта и простоту дизайна в одном неповторимом месте.

Характеристики дома

Архитектурный стиль
Автоматизированное регулирование параметров теплоносителя
-
Балконы/лоджии
Отсутствуют
Чердачное помещение
Нет
Датчики протечки воды
-
Эксплуатируемая или зеленая кровля
-
Электроснабжение
2 варианта
Газоснабжение
Не предусмотрено
Изоляция воздушного шума
-
Камин
Нет
Класс энергоэффективности
-
Класс энергосбережения
-
Количество надземных этажей
2
Круглогодичное проживание
Да
Материал кровли
Фальцевая кровля Кликфальц
Материал перекрытий
Деревянные
Материал внешних стен
Материал внутренних перегородок
Гипсокартонные
Модульное строительство с конструкциями заводского изготовления
Нет
Объем надземной части
435 м3
Основной материал фасадов
Фальцевая кровля кликфальц
Отопление
2 варианта
Площадь дома
72 м2
Площадь застройки
82 м2
Подвальное помещение
Нет
Показатель компактности здания
-
Приборы учета тепловой энергии
-
Пристроенный гараж/крытая автостоянка
Нет
Противопожарная система
Нет
Санузлы
2
Совмещенная кухня-гостиная
Да
Спальни
2
Терраса
Да
Тип фундамента
Плитный
Тип кровли
Толщина внешних стен
400 мм
Толщина внутренних перегородок
100 мм
Улучшенные шумовые характеристики
-
Вентиляция
2 варианта
Веранда
Нет
Водоотведение
2 варианта
Водоснабжение
2 варианта
Высота дома
7 м
Высота потолков
2.8 м

Планировка

Фасад дома

Александр

Закажите выезд инженера

Александр

Выездной инженер
Закажите выезд инженера для точной диагностики и профессиональной консультации по инженерным системам. Специалист приедет в удобное время, проведёт осмотр, рассчитает стоимость работ и подберёт оптимальные решения для вашего дома.


    Похожие проекты

    Ипотека и
    рассрочка
    Дом Мансардный 120 м2
    Стоимость от:
    7 934 400
    Проект от: 54 000
    Этажей 2
    Санузлы 2
    Спальни 3
    Смотреть
    Ипотека и
    рассрочка
    Одноэтажный жилой дом «Уровень -127»
    Стоимость от:
    10 103 940
    Проект от: 57 150
    Этажей 1
    Санузлы 2
    Спальни 3
    Смотреть
    Ипотека и
    рассрочка
    Каркасный дом Белл
    Стоимость от:
    6 756 640
    Проект от: 43 650
    Этажей 1
    Санузлы 2
    Спальни 2
    Смотреть
    Ипотека и
    рассрочка
    ЛИДЕН
    Стоимость от:
    6 800 970
    Проект от: 49 950
    Этажей 1
    Санузлы 2
    Спальни 3
    Смотреть
    Ипотека и
    рассрочка
    Комфортабельный квадратный дом S3-127-2 (Z99)
    Стоимость от:
    10 319 520
    Проект от: 62 100
    Этажей 2
    Санузлы 2
    Спальни 4
    Смотреть
    Ипотека и
    рассрочка
    MS 120
    Стоимость от:
    9 865 680
    Проект от: 55 800
    Этажей 1
    Санузлы 2
    Спальни 3
    Смотреть

    Как узнать стоимость дома

    back
    Оставляете заявку
    Вы заполняете форму на сайте или звоните нам. Менеджер Лайвкрафт связывается с вами для уточнения деталей: тип дома, площадь, материалы, участок строительства.
    back
    Консультация и подбор решения
    Наш специалист помогает выбрать оптимальный тип дома и конструкцию с учётом бюджета, сроков и целей — будь то дом для постоянного проживания или дача.
    back
    Расчёт предварительной стоимости
    Инженер делает первичный расчёт стоимости строительства по вашим параметрам: фундамент, коробка, кровля, отделка. Вы получаете смету с разбивкой по этапам.
    back
    Корректировка и утверждение сметы
    При необходимости вносим изменения — например, замену материалов или сокращение этапов. После согласования формируется окончательная фиксированная смета.
    back
    Заключение договора и старт работ
    После утверждения сметы заключаем официальный договор с гарантией. Вы получаете прозрачный график и точную стоимость — без скрытых расходов.

    Заказать конусльтацию по:Барнхаус-10

    Фото 1 Барнхаус-10


      Наши
      контакты

      Дмитров
      Опорный проезд 28Б
      (индустриальный парк Ниагара)
      9:00 до 18:00

      Корзина