4.9
Рейтинг на основании 120 отзывов
Дмитров
Опорный проезд 28Б
(индустриальный парк Ниагара)
Бренд "Дмитров-Дело" c 2008 года на рынке строительства в Дмитрове
Звоните 9:00 до 18:00 8 (915) 055-33-61
Бренд "Дмитров-Дело" c 2008 года на рынке строительства в Дмитрове

Барн хаус Соловей, 8*12

Стоимость проекта от:
30 150 ₽
Стоимость строительства от:
4 094 035 ₽
Артикул ART-6521
Дата 26.12.2025
Архитектурный стиль Барнхаус
Количество надземных этажей 1
Круглогодичное проживание Да
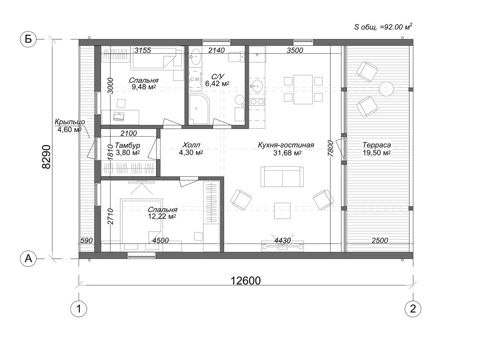
Площадь дома 67 м2
Санузлы 1
Спальни 2

Описание

Добро пожаловать в уютный Барнхаус «Соловей» — настоящий уголок тепла и уюта, обложенный современными SIP‑панелями, которые дарят стенам непревзойденную теплоизоляцию и долгую службу. Зодчий, вдохновляясь стилем классического барнхауса, создал компактный, но при этом просторный 8×12 метровый дом с одной надземной площадью, который идеально подходит для круглогодичного проживания. Гипсовый каркас и простые, но элегантные элементы внешнего строения подчеркнут индивидуальность вашего нового жилища, а двойной скат кровли не только придаёт ему характерный вид, но и обеспечивает оптимальную водоотвальность и вентиляцию. Приятно изумляет просторная терраса, открывающая вам панорамный вид на окружающую природу и идеальное место для романтических ужинов на свежем воздухе. Отсутствие балконов и веранд придаёт дому более лаконичный и современный облик, подчёркивая чистый силуэт барнхауса. Внутри царит светлая, открытая атмосфера благодаря большому количеству окон и продуманной планировки, обеспечивая вам комфортные условия для жизни даже в суровые зимние месяцы. Это место, где каждая деталь создана для вашего удобства, а простота стиля позволяет быстро адаптироваться к вашему вкусу и потребностям.

Характеристики дома

Архитектурный стиль
Барнхаус
Автоматизированное регулирование параметров теплоносителя
-
Балконы/лоджии
Отсутствуют
Чердачное помещение
Нет
Датчики протечки воды
-
Эксплуатируемая или зеленая кровля
-
Электроснабжение
Центральное
Газоснабжение
Центральное
Изоляция воздушного шума
-
Камин
Нет
Класс энергоэффективности
-
Класс энергосбережения
-
Количество надземных этажей
1
Круглогодичное проживание
Да
Материал кровли
Фальцевая кровля из цинковых листов
Материал перекрытий
Деревянные
Материал внешних стен
SIP-панели
Материал внутренних перегородок
Деревянные
Модульное строительство с конструкциями заводского изготовления
Нет
Объем надземной части
-
Основной материал фасадов
Фальцевая кровля кликфальц
Отопление
Индивидуальное
Площадь дома
67 м2
Площадь застройки
92 м2
Подвальное помещение
Нет
Показатель компактности здания
-
Приборы учета тепловой энергии
-
Пристроенный гараж/крытая автостоянка
Нет
Противопожарная система
Нет
Санузлы
1
Совмещенная кухня-гостиная
Да
Спальни
2
Терраса
Да
Тип фундамента
Свайно-винтовой
Тип кровли
Двускатная
Толщина внешних стен
224 мм
Толщина внутренних перегородок
140 мм
Улучшенные шумовые характеристики
-
Вентиляция
Принудительная
Веранда
Нет
Водоотведение
Локальные очистные сооружения
Водоснабжение
Индивидуальное
Высота дома
4 м
Высота потолков
3.4 м

Планировка

Фасад дома

Александр

Закажите выезд инженера

Александр

Выездной инженер
Закажите выезд инженера для точной диагностики и профессиональной консультации по инженерным системам. Специалист приедет в удобное время, проведёт осмотр, рассчитает стоимость работ и подберёт оптимальные решения для вашего дома.


    Похожие проекты

    Ипотека и
    рассрочка
    Загородный дом 95
    Стоимость от:
    8 190 380
    Проект от: 49 050
    Этажей 1
    Санузлы 1
    Спальни 3
    Смотреть
    Ипотека и
    рассрочка
    Дом с мансардным этажом «Грегит»
    Стоимость от:
    6 425 280
    Проект от: 41 400
    Этажей 2
    Санузлы 2
    Спальни 3
    Смотреть
    Ипотека и
    рассрочка
    Барнхаус L
    Стоимость от:
    4 740 450
    Проект от: 38 250
    Этажей 1
    Санузлы 1
    Спальни 2
    Смотреть
    Ипотека и
    рассрочка
    Статус 8х11 Веда
    Стоимость от:
    9 519 360
    Проект от: 71 550
    Этажей 2
    Санузлы 2
    Спальни 5
    Смотреть
    Ипотека и
    рассрочка
    Проект Брусовой дом с крыльцом ТА-59
    Стоимость от:
    4 573 580
    Проект от: 26 550
    Этажей 1
    Санузлы 1
    Спальни 2
    Смотреть
    Ипотека и
    рассрочка
    Модульный дом NovoDacha 3.3
    Стоимость от:
    4 859 855
    Проект от: 40 950
    Этажей 1
    Санузлы 1
    Спальни 2
    Смотреть

    Как узнать стоимость дома

    back
    Оставляете заявку
    Вы заполняете форму на сайте или звоните нам. Менеджер Лайвкрафт связывается с вами для уточнения деталей: тип дома, площадь, материалы, участок строительства.
    back
    Консультация и подбор решения
    Наш специалист помогает выбрать оптимальный тип дома и конструкцию с учётом бюджета, сроков и целей — будь то дом для постоянного проживания или дача.
    back
    Расчёт предварительной стоимости
    Инженер делает первичный расчёт стоимости строительства по вашим параметрам: фундамент, коробка, кровля, отделка. Вы получаете смету с разбивкой по этапам.
    back
    Корректировка и утверждение сметы
    При необходимости вносим изменения — например, замену материалов или сокращение этапов. После согласования формируется окончательная фиксированная смета.
    back
    Заключение договора и старт работ
    После утверждения сметы заключаем официальный договор с гарантией. Вы получаете прозрачный график и точную стоимость — без скрытых расходов.

    Заказать конусльтацию по:Барн хаус Соловей, 8*12

    Фото 1 Барн хаус Соловей, 8*12


      Наши
      контакты

      Дмитров
      Опорный проезд 28Б
      (индустриальный парк Ниагара)
      9:00 до 18:00

      Корзина