4.9
Рейтинг на основании 120 отзывов
Дмитров
Опорный проезд 28Б
(индустриальный парк Ниагара)
Бренд "Дмитров-Дело" c 2008 года на рынке строительства в Дмитрове
Звоните 9:00 до 18:00 8 (915) 055-33-61
Бренд "Дмитров-Дело" c 2008 года на рынке строительства в Дмитрове

ДТ-100

Стоимость проекта от:
45 000 ₽
Стоимость строительства от:
7 515 200 ₽
Артикул ART-6503
Дата 26.12.2025
Архитектурный стиль Скандинавский
Количество надземных этажей 1
Круглогодичное проживание Да
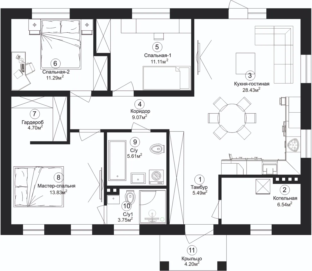
Площадь дома 100 м2
Санузлы 1
Спальни 3

Описание

**Дом DТ‑100 – ваш уголок уюта в современном Скандинавском стиле** С первого взгляда вы сможете почувствовать гармонию простых линий и светлых тонов, характерную для скандинавского дизайна. Дом выполнен в компактном, но функциональном виде: один надземный этаж, который легко обустроить для круглеторной жизни. Внутри пространства открытые и воздушные, благодаря большим керамзитоблоковым стенам, которые сохраняют тепло и защищают от наружных шумов. Четырехскатная крыша с вальмовыми скатами добавляет дому современный, но при этом классический вид. Особенности делают DТ‑100 особенно привлекательным: чердачное помещение превращается в дополнительное тихое место для творчества, чтения или отдыха; не требуются прицепы – для хранения всех ваших вещей хватает достаточно места внутри. Благодаря рациональной планировке и материалам, которые легко обслуживать, вы сможете наслаждаться жизнью даже в самый холодный период года. Выбирая DТ‑100, вы инвестируете в комфорт, стиль и экономичность. Это идеальный вариант для тех, кто ценит чистый, продуманный дизайн и хочет чувствовать себя в доме, где каждая деталь радует глаз и сердце.

Характеристики дома

Архитектурный стиль
Скандинавский
Автоматизированное регулирование параметров теплоносителя
Да
Балконы/лоджии
Отсутствуют
Чердачное помещение
Да
Датчики протечки воды
Нет
Эксплуатируемая или зеленая кровля
Да
Электроснабжение
Индивидуальное
Газоснабжение
Не предусмотрено
Изоляция воздушного шума
Нет
Камин
Нет
Класс энергоэффективности
-
Класс энергосбережения
-
Количество надземных этажей
1
Круглогодичное проживание
Да
Материал кровли
Металлочерепица
Материал перекрытий
Сборные железобетонные многопустотные плиты
Материал внешних стен
Керамический блок
Материал внутренних перегородок
Кирпичные
Модульное строительство с конструкциями заводского изготовления
Нет
Объем надземной части
711 м3
Основной материал фасадов
Облицовочный кирпич
Отопление
Индивидуальное
Площадь дома
100 м2
Площадь застройки
104 м2
Подвальное помещение
Нет
Показатель компактности здания
-
Приборы учета тепловой энергии
Да
Пристроенный гараж/крытая автостоянка
Нет
Противопожарная система
Нет
Санузлы
1
Совмещенная кухня-гостиная
Да
Спальни
3
Терраса
Нет
Тип фундамента
Свайно-ростверковый
Тип кровли
Четырехскатная (вальмовая)
Толщина внешних стен
435 мм
Толщина внутренних перегородок
120 мм
Улучшенные шумовые характеристики
Нет
Вентиляция
Естественная
Веранда
Нет
Водоотведение
Локальные очистные сооружения
Водоснабжение
Индивидуальное
Высота дома
5.75 м
Высота потолков
3 м

Планировка

Фасад дома

Александр

Закажите выезд инженера

Александр

Выездной инженер
Закажите выезд инженера для точной диагностики и профессиональной консультации по инженерным системам. Специалист приедет в удобное время, проведёт осмотр, рассчитает стоимость работ и подберёт оптимальные решения для вашего дома.


    Похожие проекты

    Ипотека и
    рассрочка
    208-П
    Стоимость от:
    14 710 300
    Проект от: 96 750
    Этажей 1
    Санузлы 3
    Спальни 4
    Смотреть
    Ипотека и
    рассрочка
    Двухэтажный дом СМ-03
    Стоимость от:
    6 425 280
    Проект от: 41 400
    Этажей 2
    Санузлы 2
    Спальни 3
    Смотреть
    Ипотека и
    рассрочка
    Одноэтажный дом «Юматово 86»
    Стоимость от:
    5 491 475
    Проект от: 42 750
    Этажей 1
    Санузлы 1
    Спальни 3
    Смотреть
    Ипотека и
    рассрочка
    Авторский проект «Сион 2.0»
    Стоимость от:
    7 768 200
    Проект от: 49 500
    Этажей 1
    Санузлы 1
    Спальни 3
    Смотреть
    Ипотека и
    рассрочка
    Монолитный одноэтажный дом 62 м2
    Стоимость от:
    4 664 440
    Проект от: 27 900
    Этажей 1
    Санузлы 2
    Спальни 2
    Смотреть
    Ипотека и
    рассрочка
    17ЖН10.00-МС-8*8-152
    Стоимость от:
    7 136 160
    Проект от: 53 550
    Этажей 2
    Санузлы 2
    Спальни 5
    Смотреть

    Как узнать стоимость дома

    back
    Оставляете заявку
    Вы заполняете форму на сайте или звоните нам. Менеджер Лайвкрафт связывается с вами для уточнения деталей: тип дома, площадь, материалы, участок строительства.
    back
    Консультация и подбор решения
    Наш специалист помогает выбрать оптимальный тип дома и конструкцию с учётом бюджета, сроков и целей — будь то дом для постоянного проживания или дача.
    back
    Расчёт предварительной стоимости
    Инженер делает первичный расчёт стоимости строительства по вашим параметрам: фундамент, коробка, кровля, отделка. Вы получаете смету с разбивкой по этапам.
    back
    Корректировка и утверждение сметы
    При необходимости вносим изменения — например, замену материалов или сокращение этапов. После согласования формируется окончательная фиксированная смета.
    back
    Заключение договора и старт работ
    После утверждения сметы заключаем официальный договор с гарантией. Вы получаете прозрачный график и точную стоимость — без скрытых расходов.

    Заказать конусльтацию по:ДТ-100

    Фото 1 ДТ-100


      Наши
      контакты

      Дмитров
      Опорный проезд 28Б
      (индустриальный парк Ниагара)
      9:00 до 18:00

      Корзина