4.9
Рейтинг на основании 120 отзывов
Дмитров
Опорный проезд 28Б
(индустриальный парк Ниагара)
Бренд "Дмитров-Дело" c 2008 года на рынке строительства в Дмитрове
Звоните 9:00 до 18:00 8 (915) 055-33-61
Бренд "Дмитров-Дело" c 2008 года на рынке строительства в Дмитрове

ФД 96

Стоимость проекта от:
35 100 ₽
БЕСПЛАТНО! ПРИ ЗАКАЗЕ СТРОИТЕЛЬСТВА
Стоимость строительства от:
5 508 360 ₽
Артикул ART-15329
Дата 25.12.2025
Архитектурный стиль Классический
Количество надземных этажей 1
Круглогодичное проживание Да
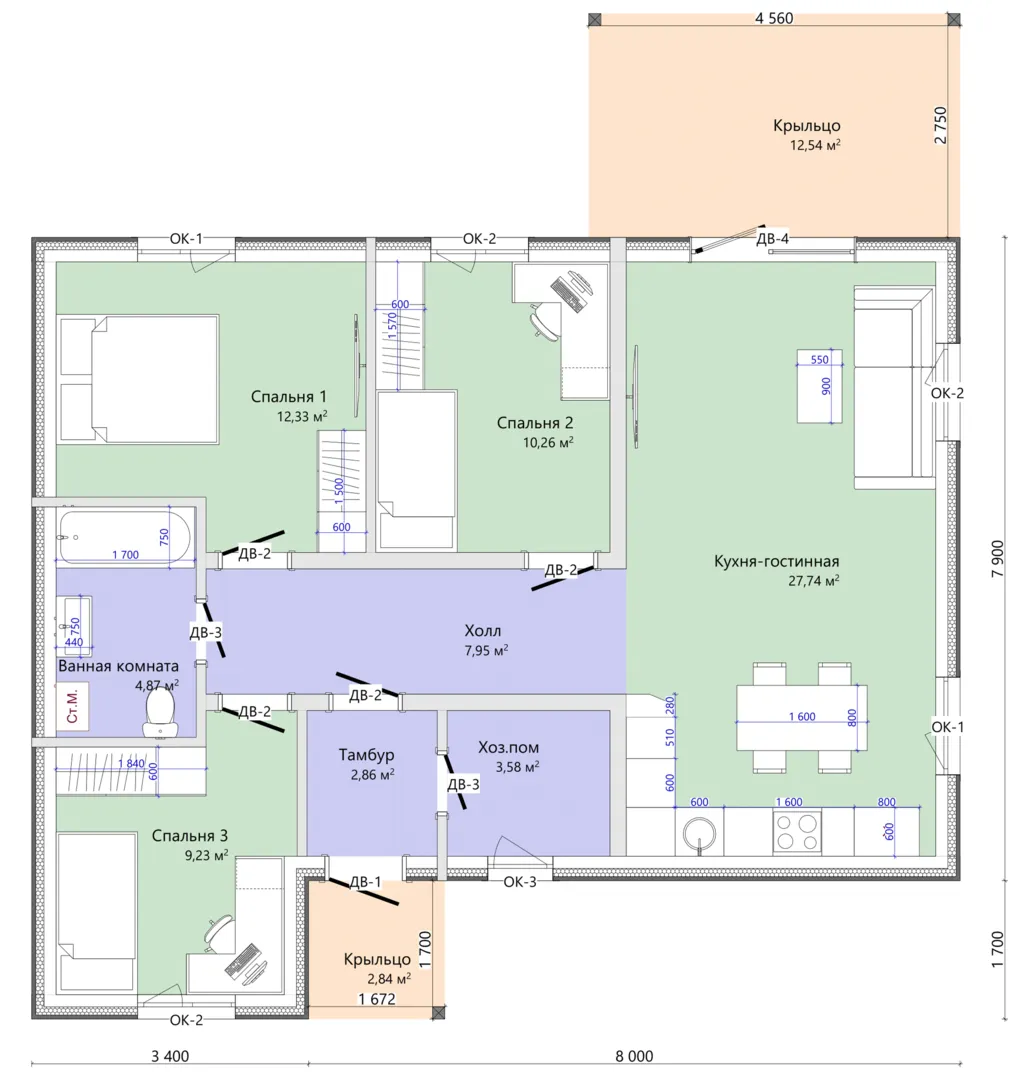
Площадь дома 78 м2
Санузлы 1
Спальни 3

Описание

**ФД 96 – уют и классика в одном доме** В этом просторном одноповерхном доме каждый день становится особенным. Классический стиль фасада придает зданию безупречную элегантность, а строгие линии газобетонных блоков гарантируют тепло и тишину даже в самые холодные зимние вечера. Кровля плоская и ровная, что позволяет легко планировать использование площади: здесь можно построить надёжный прихожий, оформить стильный террасный вход или просто насладиться видом из окна без лишних отвлечений. Годовое проживание в этом доме – это практичность и комфорт. Отсутствие балконов и веранд, а также наличие единственной открытой террасы делает пространство более гибким и открытым. Вы сможете устроить романтический вечер на террасе, где свежий воздух и солнечные лучи создадут идеальный фон, а приём гостей станет ещё более запоминающимся. При этом отсутствие пристроенного гаража или крытой автостоянки позволяет легко адаптировать территорию под ваши нужды, будь то детская площадка, сад или небольшая мастерская. ФД 96 – это не просто дом, а место, где каждая деталь продумана, чтобы вы могли полностью погрузиться в атмосферу спокойствия и уюта. Если вы ищете сочетание классической архитектуры, практичности и современного комфорта, этот объект станет идеальным выбором.

Характеристики дома

Архитектурный стиль
Автоматизированное регулирование параметров теплоносителя
Нет
Балконы/лоджии
Отсутствуют
Чердачное помещение
Нет
Датчики протечки воды
Нет
Эксплуатируемая или зеленая кровля
Нет
Электроснабжение
Центральное
Газоснабжение
Не предусмотрено
Изоляция воздушного шума
Нет
Камин
Нет
Класс энергоэффективности
-
Класс энергосбережения
-
Количество надземных этажей
1
Круглогодичное проживание
Да
Материал кровли
Металлочерепица
Материал перекрытий
Деревянные
Материал внешних стен
Материал внутренних перегородок
Блочные
Модульное строительство с конструкциями заводского изготовления
Нет
Объем надземной части
459 м3
Основной материал фасадов
Штукатурка
Отопление
Индивидуальное
Площадь дома
78 м2
Площадь застройки
111 м2
Подвальное помещение
Нет
Показатель компактности здания
-
Приборы учета тепловой энергии
Нет
Пристроенный гараж/крытая автостоянка
Нет
Противопожарная система
Нет
Санузлы
1
Совмещенная кухня-гостиная
Да
Спальни
3
Терраса
Да
Тип фундамента
Плитный
Тип кровли
Толщина внешних стен
300 мм
Толщина внутренних перегородок
200 мм
Улучшенные шумовые характеристики
Нет
Вентиляция
2 варианта
Веранда
Нет
Водоотведение
Локальные очистные сооружения
Водоснабжение
Индивидуальное
Высота дома
4.2 м
Высота потолков
2.7 м

Планировка

Фасад дома

Александр

Закажите выезд инженера

Александр

Выездной инженер
Закажите выезд инженера для точной диагностики и профессиональной консультации по инженерным системам. Специалист приедет в удобное время, проведёт осмотр, рассчитает стоимость работ и подберёт оптимальные решения для вашего дома.


    Похожие проекты

    Ипотека и
    рассрочка
    Одноэтажный жилой дом SA-100 OB
    Стоимость от:
    7 440 180
    Проект от: 44 550
    Этажей 1
    Санузлы 2
    Спальни 3
    Смотреть
    Ипотека и
    рассрочка
    Проект Европейский
    Стоимость от:
    8 641 440
    Проект от: 58 950
    Этажей 2
    Санузлы 2
    Спальни 4
    Смотреть
    Ипотека и
    рассрочка
    Загородный дом Сион +
    Стоимость от:
    10 196 640
    Проект от: 65 700
    Этажей 2
    Санузлы 2
    Спальни 4
    Смотреть
    Ипотека и
    рассрочка
    ОКТ101
    Стоимость от:
    8 992 060
    Проект от: 50 850
    Этажей 1
    Санузлы 2
    Спальни 3
    Смотреть
    Ипотека и
    рассрочка
    Одноэтажный жилой дом 6х6 с террасой
    Стоимость от:
    2 492 710
    Проект от: 19 350
    Этажей 1
    Санузлы 1
    Спальни 2
    Смотреть
    Ипотека и
    рассрочка
    Хвоя 3.52, дом с сауной и крытой террасой
    Стоимость от:
    4 003 560
    Проект от: 32 400
    Этажей 1
    Санузлы 1
    Спальни 1
    Смотреть

    Как узнать стоимость дома

    back
    Оставляете заявку
    Вы заполняете форму на сайте или звоните нам. Менеджер Лайвкрафт связывается с вами для уточнения деталей: тип дома, площадь, материалы, участок строительства.
    back
    Консультация и подбор решения
    Наш специалист помогает выбрать оптимальный тип дома и конструкцию с учётом бюджета, сроков и целей — будь то дом для постоянного проживания или дача.
    back
    Расчёт предварительной стоимости
    Инженер делает первичный расчёт стоимости строительства по вашим параметрам: фундамент, коробка, кровля, отделка. Вы получаете смету с разбивкой по этапам.
    back
    Корректировка и утверждение сметы
    При необходимости вносим изменения — например, замену материалов или сокращение этапов. После согласования формируется окончательная фиксированная смета.
    back
    Заключение договора и старт работ
    После утверждения сметы заключаем официальный договор с гарантией. Вы получаете прозрачный график и точную стоимость — без скрытых расходов.

    Заказать конусльтацию по:ФД 96

    Фото 1 ФД 96


      Наши
      контакты

      Дмитров
      Опорный проезд 28Б
      (индустриальный парк Ниагара)
      9:00 до 18:00

      Корзина