4.9
Рейтинг на основании 120 отзывов
Дмитров
Опорный проезд 28Б
(индустриальный парк Ниагара)
Бренд "Дмитров-Дело" c 2008 года на рынке строительства в Дмитрове
Звоните 9:00 до 18:00 8 (915) 055-33-61
Бренд "Дмитров-Дело" c 2008 года на рынке строительства в Дмитрове

БалковДом двухэтажный с кирпичными фасадами 128,8

Стоимость проекта от:
57 600 ₽
БЕСПЛАТНО! ПРИ ЗАКАЗЕ СТРОИТЕЛЬСТВА
Стоимость строительства от:
9 261 120 ₽
Артикул ART-18897
Дата 26.12.2025
Архитектурный стиль Классический
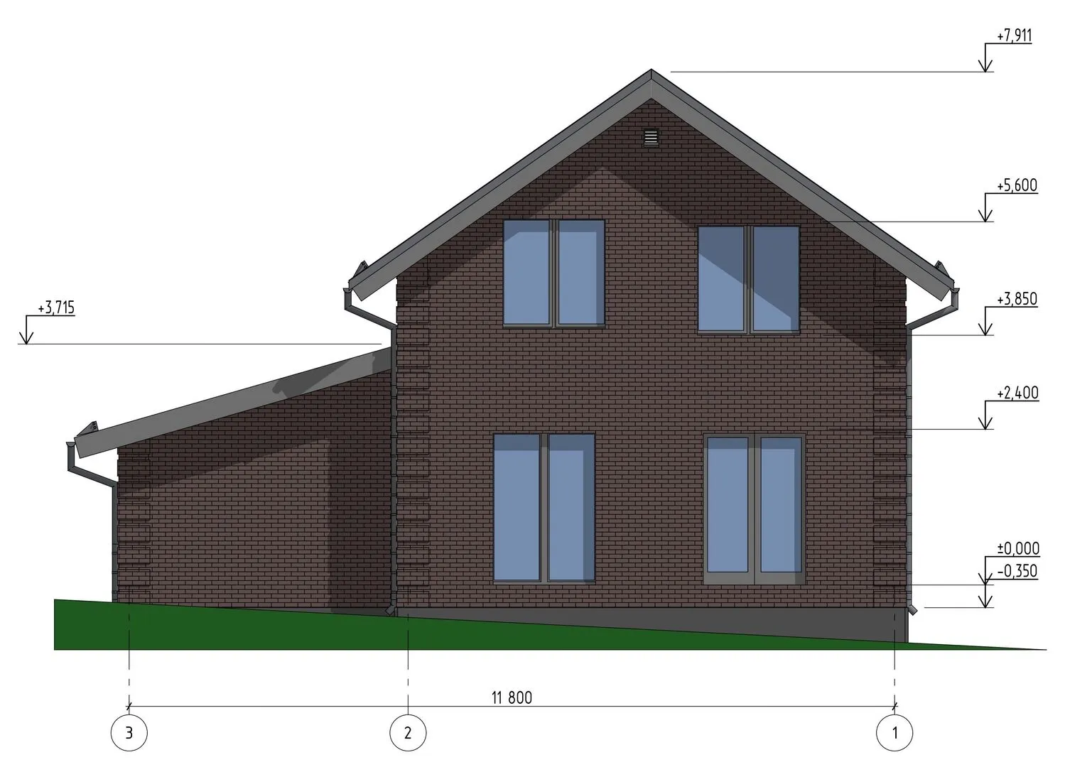
Количество надземных этажей 2
Круглогодичное проживание Да
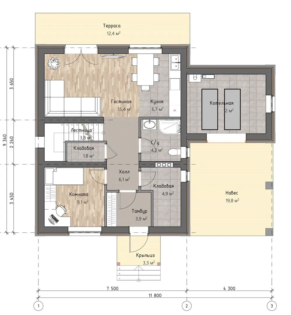
Площадь дома 128 м2
Санузлы 2
Спальни 4

Описание

**БалковДом – ваш уголок уюта и стиля** Этот двухэтажный дом площадью 128,8 м² поражает сочетанием строгой классической архитектуры и современных удобств. Внешние стены, выполненные из газобетонных блоков, обеспечивают надежную тепло- и звукоизоляцию, а кирпичные фасады добавляют ему изящанную теплоту и стойкость. Двускатная крыша, покрытая качественным материалом, дополняет классический облик, создавая гармоничную композицию, которая будет радовать глаз долгие годы. **Комфорт без компромиссов** Дом спроектирован под круглогодичное проживание: просторные комнаты с большим количеством естественного света, продуманная планировка позволяет легко адаптировать пространство под любые потребности – будь то семейный уют или работа из дома. Благодаря отсутствию перегородок и открытой планировке внутренние помещения создают ощущение свободы и простора. На первом и втором этажах вы найдете уютные зоны: спальная палата, гостиная и открытая кухня, где каждый кулинарный эксперимент обретает новый уровень вкуса. На второстепенном этаже — отдельная зона для гостей и рабочего кабинета, оборудованного всем необходимым для продуктивной деятельности. **Отдых и вдохновение на открытом воздухе** Важным акцентом на территории дома служит просторная терраса, где вы сможете наслаждаться семейными барбекю, читать книгу под звуки природы или просто прогреваться в солнечные дни. Плавный переход от внутреннего пространства к открытой площадке делает ваш дом идеальным местом для отдыха после долгого дня. Приближая вам природу и создавая атмосферу спокойствия, эта терраса становится вашим личным оазисом, где каждая минута наполнена гармонией и вдохновением. **БалковДом** – это сочетание традиционной эстетики, технологической надёжности и простоты в быту, которое создаёт атмосферу, куда хочется возвращаться снова и снова. Если вы ищете дом, который превратится в ваш комфортный гнездо, наполненный уютом и стилем, этот дом станет именно тем, о чём вы мечтали.

Характеристики дома

Архитектурный стиль
Автоматизированное регулирование параметров теплоносителя
Нет
Балконы/лоджии
Отсутствуют
Чердачное помещение
Нет
Датчики протечки воды
Нет
Эксплуатируемая или зеленая кровля
Нет
Электроснабжение
Не предусмотрено
Газоснабжение
Не предусмотрено
Изоляция воздушного шума
Да
Камин
Нет
Класс энергоэффективности
-
Класс энергосбережения
-
Количество надземных этажей
2
Круглогодичное проживание
Да
Материал кровли
Металлочерепица
Материал перекрытий
Сборные железобетонные многопустотные плиты
Материал внешних стен
Материал внутренних перегородок
Блочные
Модульное строительство с конструкциями заводского изготовления
Нет
Объем надземной части
-
Основной материал фасадов
Облицовочный кирпич
Отопление
Не предусмотрено
Площадь дома
128 м2
Площадь застройки
95 м2
Подвальное помещение
Нет
Показатель компактности здания
-
Приборы учета тепловой энергии
Нет
Пристроенный гараж/крытая автостоянка
Нет
Противопожарная система
Нет
Санузлы
2
Совмещенная кухня-гостиная
Да
Спальни
4
Терраса
Да
Тип фундамента
Свайно-ростверковый
Тип кровли
Толщина внешних стен
300 мм
Толщина внутренних перегородок
100 мм
Улучшенные шумовые характеристики
Да
Вентиляция
Естественная
Веранда
Нет
Водоотведение
Не предусмотрено
Водоснабжение
Не предусмотрено
Высота дома
7.9 м
Высота потолков
2.85 м

Планировка

Фасад дома

Александр

Закажите выезд инженера

Александр

Выездной инженер
Закажите выезд инженера для точной диагностики и профессиональной консультации по инженерным системам. Специалист приедет в удобное время, проведёт осмотр, рассчитает стоимость работ и подберёт оптимальные решения для вашего дома.


    Похожие проекты

    Ипотека и
    рассрочка
    Дом из клееного бруса «Тишково»
    Стоимость от:
    10 166 280
    Проект от: 70 650
    Этажей 2
    Санузлы 2
    Спальни 3
    Смотреть
    Ипотека и
    рассрочка
    Классика 108
    Стоимость от:
    9 165 640
    Проект от: 54 900
    Этажей 1
    Санузлы 2
    Спальни 3
    Смотреть
    Ипотека и
    рассрочка
    Дом одноэтажный из профилированного бруса 145*145
    Стоимость от:
    4 569 840
    Проект от: 32 400
    Этажей 1
    Санузлы 1
    Спальни 3
    Смотреть
    Ипотека и
    рассрочка
    ХИЛТИ
    Стоимость от:
    3 478 200
    Проект от: 27 000
    Этажей 1
    Санузлы 1
    Спальни 2
    Смотреть
    Ипотека и
    рассрочка
    Загородный дом БК «АДАМ-С»
    Стоимость от:
    12 558 720
    Проект от: 75 600
    Этажей 2
    Санузлы 2
    Спальни 4
    Смотреть
    Ипотека и
    рассрочка
    Одноэтажный дом Агат
    Стоимость от:
    5 735 840
    Проект от: 32 400
    Этажей 1
    Санузлы 1
    Спальни 2
    Смотреть

    Как узнать стоимость дома

    back
    Оставляете заявку
    Вы заполняете форму на сайте или звоните нам. Менеджер Лайвкрафт связывается с вами для уточнения деталей: тип дома, площадь, материалы, участок строительства.
    back
    Консультация и подбор решения
    Наш специалист помогает выбрать оптимальный тип дома и конструкцию с учётом бюджета, сроков и целей — будь то дом для постоянного проживания или дача.
    back
    Расчёт предварительной стоимости
    Инженер делает первичный расчёт стоимости строительства по вашим параметрам: фундамент, коробка, кровля, отделка. Вы получаете смету с разбивкой по этапам.
    back
    Корректировка и утверждение сметы
    При необходимости вносим изменения — например, замену материалов или сокращение этапов. После согласования формируется окончательная фиксированная смета.
    back
    Заключение договора и старт работ
    После утверждения сметы заключаем официальный договор с гарантией. Вы получаете прозрачный график и точную стоимость — без скрытых расходов.

    Заказать конусльтацию по:БалковДом двухэтажный с кирпичными фасадами 128,8

    Фото 1 БалковДом двухэтажный с кирпичными фасадами 128,8


      Наши
      контакты

      Дмитров
      Опорный проезд 28Б
      (индустриальный парк Ниагара)
      9:00 до 18:00

      Корзина