4.9
Рейтинг на основании 120 отзывов
Дмитров
Опорный проезд 28Б
(индустриальный парк Ниагара)
Бренд "Дмитров-Дело" c 2008 года на рынке строительства в Дмитрове
Звоните 9:00 до 18:00 8 (915) 055-33-61
Бренд "Дмитров-Дело" c 2008 года на рынке строительства в Дмитрове

Barnhouse 8х16 H

Стоимость проекта от:
48 150 ₽
Стоимость строительства от:
5 949 735 ₽
Артикул ART-12769
Дата 25.12.2025
Архитектурный стиль Барнхаус
Количество надземных этажей 1
Круглогодичное проживание Да
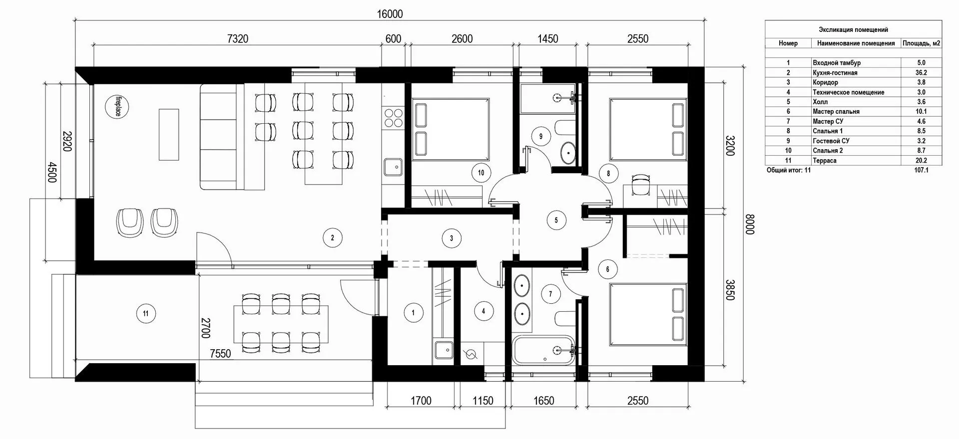
Площадь дома 107 м2
Санузлы 2
Спальни 3

Описание

**Barnhouse 8x16 H** – это воплощение простоты и тепла в гармонии с природой. Построенный в традиционном барнхаус‑стиле, дом сочетает в себе строгие линии и уютную деревянную структуру. Однокомнатные планировки с открытой зоной жизни, просторный зал и элегантный кухонный уголок создают ощущение легкости и непринужденной свободы, одновременно обеспечивая всем необходимым удобство для круглогодичного проживания. Уникальность этого дома проявляется в его непритязательных, но практичных решениях: отсутствующей веранды и балконов, но присутствующей на виду – обширной террасы, которая становится идеальным местом для уединенных завтраков, летних барбекю или же просто расслабляющего чтения под звездами. Внешние стены выполнены в цельном деревянном каркасе, а двускатная крыша придает дому характерный силуэт, будто он стоит у порога сказки про уютное загородское убежище. Выбирая Barnhouse, вы выбираете домашний комфорт в стиле «rustic chic» – где каждая деталь продумана, а каждое окно открывает на живописные пейзажи. Это идеальное место для тех, кто ценит гармонию между простотой и роскошью, где каждый день начинается с воздуха дома, напоенного свежестью и добротой деревянных стен.

Характеристики дома

Архитектурный стиль
Барнхаус
Автоматизированное регулирование параметров теплоносителя
Нет
Балконы/лоджии
Отсутствуют
Чердачное помещение
Нет
Датчики протечки воды
Нет
Эксплуатируемая или зеленая кровля
Нет
Электроснабжение
2 варианта
Газоснабжение
Индивидуальное
Изоляция воздушного шума
Нет
Камин
Нет
Класс энергоэффективности
A
Класс энергосбережения
A
Количество надземных этажей
1
Круглогодичное проживание
Да
Материал кровли
Металлические листовые гофрированные профили
Материал перекрытий
Деревянные
Материал внешних стен
Деревянные каркасные
Материал внутренних перегородок
Гипсокартонные
Модульное строительство с конструкциями заводского изготовления
Нет
Объем надземной части
380 м3
Основной материал фасадов
Дерево
Отопление
Индивидуальное
Площадь дома
107 м2
Площадь застройки
128 м2
Подвальное помещение
Нет
Показатель компактности здания
0.99
Приборы учета тепловой энергии
Нет
Пристроенный гараж/крытая автостоянка
Нет
Противопожарная система
Нет
Санузлы
2
Совмещенная кухня-гостиная
Да
Спальни
3
Терраса
Да
Тип фундамента
Свайно-винтовой
Тип кровли
Двускатная
Толщина внешних стен
300 мм
Толщина внутренних перегородок
150 мм
Улучшенные шумовые характеристики
Нет
Вентиляция
Естественная
Веранда
Нет
Водоотведение
Локальные очистные сооружения
Водоснабжение
Индивидуальное
Высота дома
4.85 м
Высота потолков
4 м

Планировка

Фасад дома

Александр

Закажите выезд инженера

Александр

Выездной инженер
Закажите выезд инженера для точной диагностики и профессиональной консультации по инженерным системам. Специалист приедет в удобное время, проведёт осмотр, рассчитает стоимость работ и подберёт оптимальные решения для вашего дома.


    Похожие проекты

    Ипотека и
    рассрочка
    Томас 87
    Стоимость от:
    5 861 460
    Проект от: 37 350
    Этажей 1
    Санузлы 1
    Спальни 2
    Смотреть
    Ипотека и
    рассрочка
    Современный одноэтажный дом с панорамными окнами S3-122-6 (Z525)
    Стоимость от:
    9 627 420
    Проект от: 54 450
    Этажей 1
    Санузлы 2
    Спальни 3
    Смотреть
    Ипотека и
    рассрочка
    Одноэтажный жилой дом Art 90
    Стоимость от:
    7 865 000
    Проект от: 56 250
    Этажей 1
    Санузлы 2
    Спальни 2
    Смотреть
    Ипотека и
    рассрочка
    Загородный дом П-02
    Стоимость от:
    7 235 580
    Проект от: 51 300
    Этажей 1
    Санузлы 1
    Спальни 3
    Смотреть
    Ипотека и
    рассрочка
    Загородный дом ВС-105
    Стоимость от:
    10 433 280
    Проект от: 68 400
    Этажей 2
    Санузлы 2
    Спальни 1
    Смотреть
    Ипотека и
    рассрочка
    GP-барн-F
    Стоимость от:
    4 869 480
    Проект от: 37 800
    Этажей 1
    Санузлы 1
    Спальни 2
    Смотреть

    Как узнать стоимость дома

    back
    Оставляете заявку
    Вы заполняете форму на сайте или звоните нам. Менеджер Лайвкрафт связывается с вами для уточнения деталей: тип дома, площадь, материалы, участок строительства.
    back
    Консультация и подбор решения
    Наш специалист помогает выбрать оптимальный тип дома и конструкцию с учётом бюджета, сроков и целей — будь то дом для постоянного проживания или дача.
    back
    Расчёт предварительной стоимости
    Инженер делает первичный расчёт стоимости строительства по вашим параметрам: фундамент, коробка, кровля, отделка. Вы получаете смету с разбивкой по этапам.
    back
    Корректировка и утверждение сметы
    При необходимости вносим изменения — например, замену материалов или сокращение этапов. После согласования формируется окончательная фиксированная смета.
    back
    Заключение договора и старт работ
    После утверждения сметы заключаем официальный договор с гарантией. Вы получаете прозрачный график и точную стоимость — без скрытых расходов.

    Заказать конусльтацию по:Barnhouse 8х16 H

    Фото 1 Barnhouse 8х16 H


      Наши
      контакты

      Дмитров
      Опорный проезд 28Б
      (индустриальный парк Ниагара)
      9:00 до 18:00