4.9
Рейтинг на основании 120 отзывов
Дмитров
Опорный проезд 28Б
(индустриальный парк Ниагара)
Бренд "Дмитров-Дело" c 2008 года на рынке строительства в Дмитрове
Звоните 9:00 до 18:00 8 (915) 055-33-61
Бренд "Дмитров-Дело" c 2008 года на рынке строительства в Дмитрове

Кёльн-136

Стоимость проекта от:
77 400 ₽
Стоимость строительства от:
12 857 280 ₽
Артикул ART-14606
Дата 25.12.2025
Архитектурный стиль Европейский
Количество надземных этажей 2
Круглогодичное проживание Да
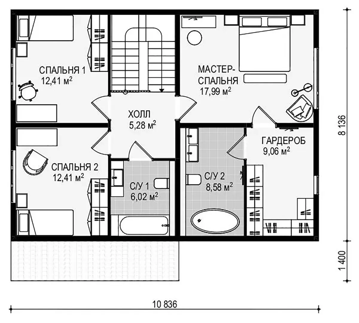
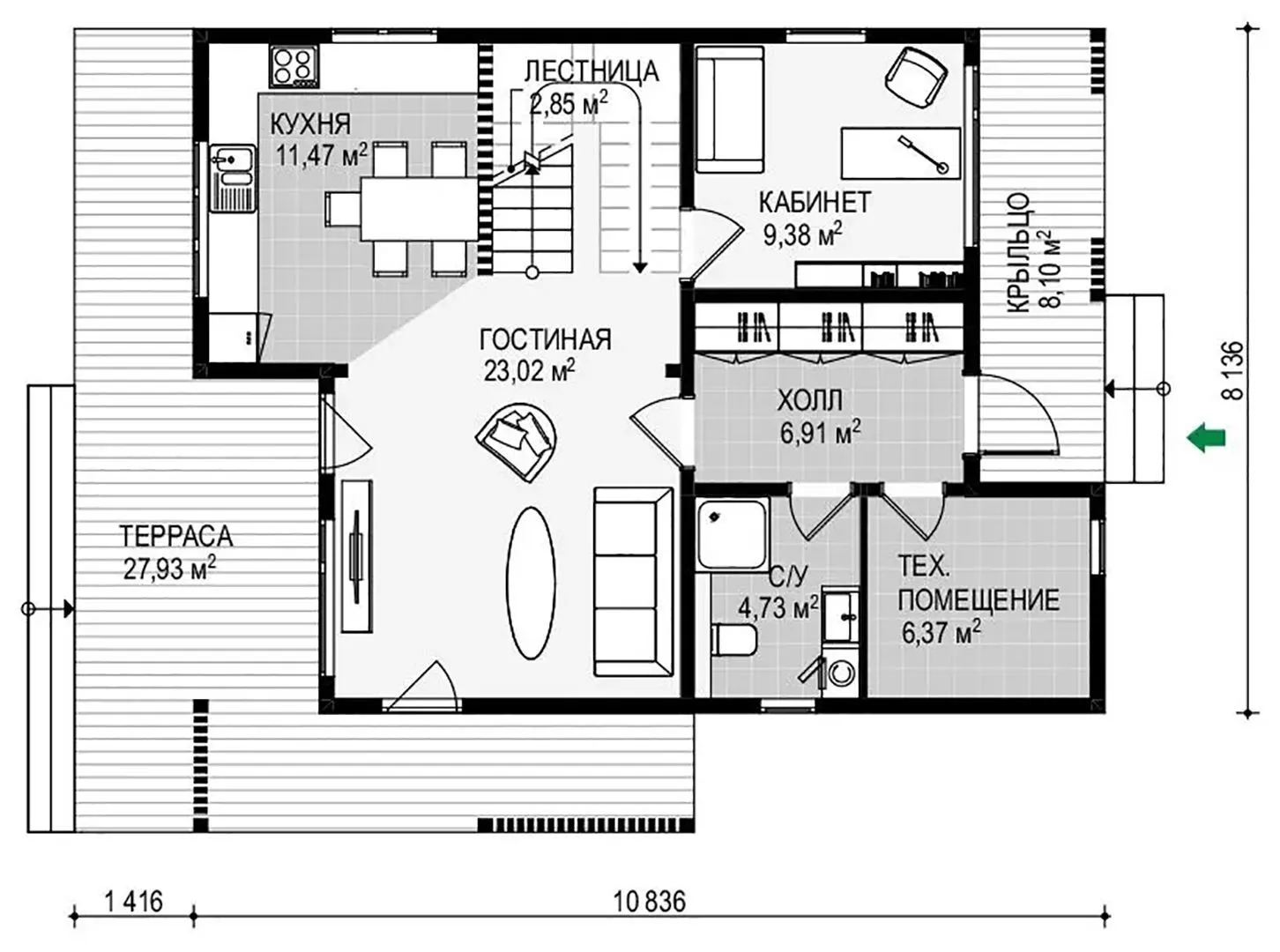
Площадь дома 172 м2
Санузлы 3
Спальни 3

Описание

Представляем вашему вниманию Кёльн‑136 – дом, в котором сочетается изысканность европейского дизайна и практичность современной жизни. Уже с первого взгляда ощущается классический, но в то же время свежий внешний облик: панельная каркасная конструкция, выложенная светлым лаком, гармонично вписывается в любой городской или загородный ландшафт. Двускатное покрытие крыши придаёт архитектуре элегантность и надёжность, а просторный чердацкий отсек открывает перспективы для создания дополнительного жилого пространства, детской игровой зоны или уютного домашнего офиса. Внутри дома вас ждут два уютных надземных этажа, разметка которого продумана так, чтобы каждая кровать, кухня и рабочий уголок ощущались естественно открытыми и светлыми. Большая терраса приглашает проводить вечерние посиделки с семьёй, а открытое пространство позволяет легко интегрировать внешние зоны отдыха и садовую атмосферу. Благодаря качественным материалам и продуманной теплоизоляции, в доме всегда комфортно – зимнее тепло и летняя прохлада сохраняются задолго до открытия окна. Дом Кёльн‑136 – это идеальный выбор тем, кто ищет гармоничное сочетание стиля, функциональности и надёжности. Её европейский облик, доступные площади и многообразные возможности планировки позволяют создать собственный уголок счастья, где каждый день будет напоминать уют и домашний комфорт. Вдохните свежий воздух, погрузитесь в атмосферу тепла и сделайте этот дом вашим новым местом в мире.

Характеристики дома

Архитектурный стиль
Европейский
Автоматизированное регулирование параметров теплоносителя
Нет
Балконы/лоджии
Отсутствуют
Чердачное помещение
Да
Датчики протечки воды
Нет
Эксплуатируемая или зеленая кровля
Нет
Электроснабжение
Центральное
Газоснабжение
Не предусмотрено
Изоляция воздушного шума
Нет
Камин
Нет
Класс энергоэффективности
-
Класс энергосбережения
-
Количество надземных этажей
2
Круглогодичное проживание
Да
Материал кровли
Металлочерепица
Материал перекрытий
Деревянные
Материал внешних стен
Каркасно-панельная технология
Материал внутренних перегородок
Деревянные
Модульное строительство с конструкциями заводского изготовления
Да
Объем надземной части
-
Основной материал фасадов
Штукатурка
Отопление
Индивидуальное
Площадь дома
172 м2
Площадь застройки
110 м2
Подвальное помещение
Нет
Показатель компактности здания
-
Приборы учета тепловой энергии
Нет
Пристроенный гараж/крытая автостоянка
Нет
Противопожарная система
Нет
Санузлы
3
Совмещенная кухня-гостиная
Да
Спальни
3
Терраса
Да
Тип фундамента
Ленточный
Тип кровли
Двускатная
Толщина внешних стен
220 мм
Толщина внутренних перегородок
168 мм
Улучшенные шумовые характеристики
Нет
Вентиляция
Естественная
Веранда
Нет
Водоотведение
Локальные очистные сооружения
Водоснабжение
Индивидуальное
Высота дома
7.92 м
Высота потолков
2.62 м

Планировка

Фасад дома

Александр

Закажите выезд инженера

Александр

Выездной инженер
Закажите выезд инженера для точной диагностики и профессиональной консультации по инженерным системам. Специалист приедет в удобное время, проведёт осмотр, рассчитает стоимость работ и подберёт оптимальные решения для вашего дома.


    Похожие проекты

    Ипотека и
    рассрочка
    Династия
    Стоимость от:
    7 495 800
    Проект от: 56 250
    Этажей 2
    Санузлы 3
    Спальни 4
    Смотреть
    Ипотека и
    рассрочка
    Дом из клееного бруса «Валдай»
    Стоимость от:
    9 000 960
    Проект от: 62 550
    Этажей 2
    Санузлы 2
    Спальни 2
    Смотреть
    Ипотека и
    рассрочка
    Мансардный дом М-155
    Стоимость от:
    10 692 720
    Проект от: 68 850
    Этажей 2
    Санузлы 2
    Спальни 4
    Смотреть
    Ипотека и
    рассрочка
    Загородный дом АС-201
    Стоимость от:
    8 670 750
    Проект от: 67 500
    Этажей 1
    Санузлы 2
    Спальни 3
    Смотреть
    Ипотека и
    рассрочка
    Двухэтажный дом из арболита с балконом
    Стоимость от:
    9 839 040
    Проект от: 61 200
    Этажей 2
    Санузлы 2
    Спальни 2
    Смотреть
    Ипотека и
    рассрочка
    Двухэтажный дом С-2
    Стоимость от:
    7 569 840
    Проект от: 45 450
    Этажей 2
    Санузлы 1
    Спальни 3
    Смотреть

    Как узнать стоимость дома

    back
    Оставляете заявку
    Вы заполняете форму на сайте или звоните нам. Менеджер Лайвкрафт связывается с вами для уточнения деталей: тип дома, площадь, материалы, участок строительства.
    back
    Консультация и подбор решения
    Наш специалист помогает выбрать оптимальный тип дома и конструкцию с учётом бюджета, сроков и целей — будь то дом для постоянного проживания или дача.
    back
    Расчёт предварительной стоимости
    Инженер делает первичный расчёт стоимости строительства по вашим параметрам: фундамент, коробка, кровля, отделка. Вы получаете смету с разбивкой по этапам.
    back
    Корректировка и утверждение сметы
    При необходимости вносим изменения — например, замену материалов или сокращение этапов. После согласования формируется окончательная фиксированная смета.
    back
    Заключение договора и старт работ
    После утверждения сметы заключаем официальный договор с гарантией. Вы получаете прозрачный график и точную стоимость — без скрытых расходов.

    Заказать конусльтацию по:Кёльн-136

    Фото 1 Кёльн-136


      Наши
      контакты

      Дмитров
      Опорный проезд 28Б
      (индустриальный парк Ниагара)
      9:00 до 18:00