4.9
Рейтинг на основании 120 отзывов
Дмитров
Опорный проезд 28Б
(индустриальный парк Ниагара)
Бренд "Дмитров-Дело" c 2008 года на рынке строительства в Дмитрове
Звоните 9:00 до 18:00 8 (915) 055-33-61
Бренд "Дмитров-Дело" c 2008 года на рынке строительства в Дмитрове

Владимир 2

Стоимость проекта от:
54 450 ₽
БЕСПЛАТНО! ПРИ ЗАКАЗЕ СТРОИТЕЛЬСТВА
Стоимость строительства от:
8 457 840 ₽
Артикул ART-19095
Дата 26.12.2025
Архитектурный стиль Европейский
Количество надземных этажей 2
Круглогодичное проживание Да
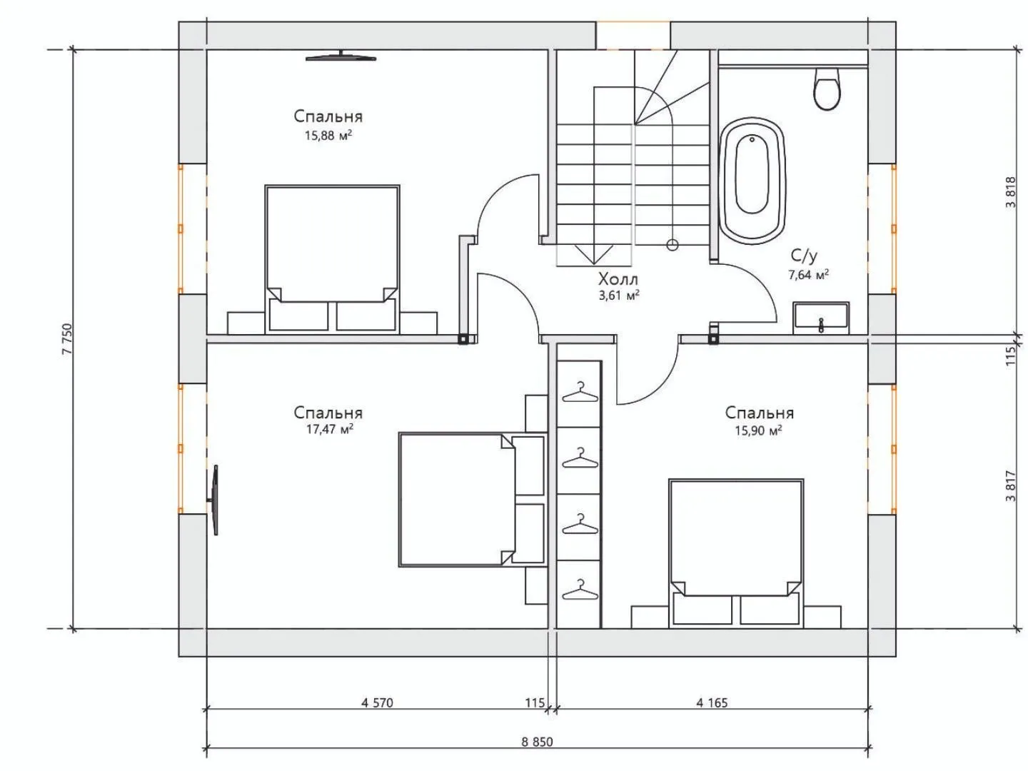
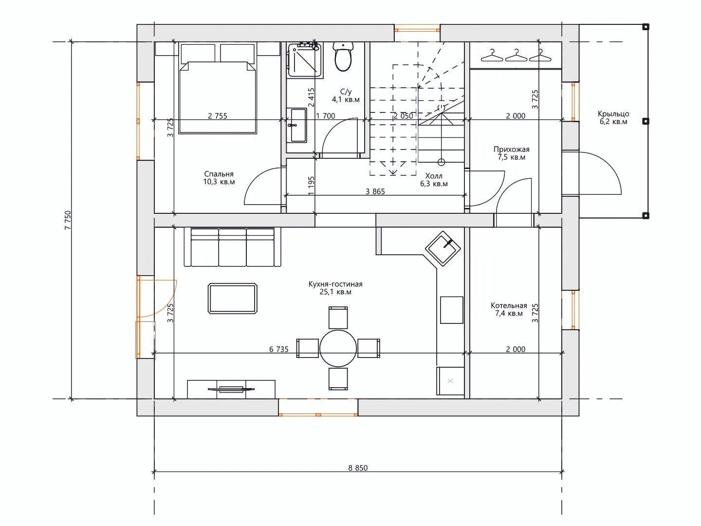
Площадь дома 121 м2
Санузлы 2
Спальни 4

Описание

**Владимир 2** – это воплощение европейского стиля в современном доме, где каждая деталь продумана до мелочей. Нагретый, светлый и вместительный, он подходит для круглогодичного проживания и идеально вписывается как в загородные зоны, так и в тихие пригородные улочки. С двумя надземными этажами у вас появится пространство, которое вы обожаете: просторные комнаты, душевный кабинет и удобный гардеробный, а неочевидная планировка создаёт ощущение элегантности и уюта. Дом построен из газобетонных блоков, что обеспечивает отличную тепло- и звукоизоляцию, а также быструю и экономичную эксплуатацию. Параметричность конструкций позволяет добиться максимальной устойчивости даже в сложных климатических условиях. Двускатная кровля не только придаёт фасаду классический, почти барочный вид, но и гарантирует быстрый сток дождевой воды, а также лёгкий монтаж и обслуживание. Интерьер подчёркнут высококачественными отделками: полы из клееного массива, светлые оттенки деревянных панелей, а большие окна позволяют во всю жизнь впускать дневной свет, создавая гармоничную атмосферу уюта. Не упустите шанс стать владельцем настоящего семейного уголка, где архитектура встречает комфорт, а детали – это забота о вашем благополучии. Свяжитесь с нами и откройте двери к новой жизни в доме, который уже ждёт своих новых хозяев.

Характеристики дома

Архитектурный стиль
Автоматизированное регулирование параметров теплоносителя
Да
Балконы/лоджии
Отсутствуют
Чердачное помещение
Нет
Датчики протечки воды
Нет
Эксплуатируемая или зеленая кровля
Нет
Электроснабжение
2 варианта
Газоснабжение
2 варианта
Изоляция воздушного шума
Да
Камин
Нет
Класс энергоэффективности
A
Класс энергосбережения
A
Количество надземных этажей
2
Круглогодичное проживание
Да
Материал кровли
Металлочерепица
Материал перекрытий
Сборные железобетонные многопустотные плиты
Материал внешних стен
Материал внутренних перегородок
Пенобетонные
Модульное строительство с конструкциями заводского изготовления
Нет
Объем надземной части
476 м3
Основной материал фасадов
Штукатурка
Отопление
2 варианта
Площадь дома
121 м2
Площадь застройки
87 м2
Подвальное помещение
Нет
Показатель компактности здания
0.9
Приборы учета тепловой энергии
Да
Пристроенный гараж/крытая автостоянка
Нет
Противопожарная система
Нет
Санузлы
2
Совмещенная кухня-гостиная
Да
Спальни
4
Терраса
Нет
Тип фундамента
Плитный
Тип кровли
Толщина внешних стен
375 мм
Толщина внутренних перегородок
115 мм
Улучшенные шумовые характеристики
Да
Вентиляция
Естественная
Веранда
Нет
Водоотведение
2 варианта
Водоснабжение
2 варианта
Высота дома
7.95 м
Высота потолков
2.85 м

Планировка

Фасад дома

Александр

Закажите выезд инженера

Александр

Выездной инженер
Закажите выезд инженера для точной диагностики и профессиональной консультации по инженерным системам. Специалист приедет в удобное время, проведёт осмотр, рассчитает стоимость работ и подберёт оптимальные решения для вашего дома.


    Похожие проекты

    Ипотека и
    рассрочка
    D191-2
    Стоимость от:
    9 583 680
    Проект от: 66 150
    Этажей 2
    Санузлы 2
    Спальни 3
    Смотреть
    Ипотека и
    рассрочка
    Двухэтажный дом из бревна с балконом
    Стоимость от:
    9 062 640
    Проект от: 54 450
    Этажей 2
    Санузлы 1
    Спальни 3
    Смотреть
    Ипотека и
    рассрочка
    Genesis 70
    Стоимость от:
    5 084 640
    Проект от: 32 400
    Этажей 1
    Санузлы 1
    Спальни 2
    Смотреть
    Ипотека и
    рассрочка
    Загородный дом ВС-113
    Стоимость от:
    15 022 800
    Проект от: 96 750
    Этажей 2
    Санузлы 2
    Спальни 6
    Смотреть
    Ипотека и
    рассрочка
    Загородный дом АС-216
    Стоимость от:
    28 223 260
    Проект от: 175 950
    Этажей 3
    Санузлы 2
    Спальни 4
    Смотреть
    Ипотека и
    рассрочка
    «Шустов»
    Стоимость от:
    6 885 960
    Проект от: 51 750
    Этажей 2
    Санузлы 2
    Спальни 4
    Смотреть

    Как узнать стоимость дома

    back
    Оставляете заявку
    Вы заполняете форму на сайте или звоните нам. Менеджер Лайвкрафт связывается с вами для уточнения деталей: тип дома, площадь, материалы, участок строительства.
    back
    Консультация и подбор решения
    Наш специалист помогает выбрать оптимальный тип дома и конструкцию с учётом бюджета, сроков и целей — будь то дом для постоянного проживания или дача.
    back
    Расчёт предварительной стоимости
    Инженер делает первичный расчёт стоимости строительства по вашим параметрам: фундамент, коробка, кровля, отделка. Вы получаете смету с разбивкой по этапам.
    back
    Корректировка и утверждение сметы
    При необходимости вносим изменения — например, замену материалов или сокращение этапов. После согласования формируется окончательная фиксированная смета.
    back
    Заключение договора и старт работ
    После утверждения сметы заключаем официальный договор с гарантией. Вы получаете прозрачный график и точную стоимость — без скрытых расходов.

    Заказать конусльтацию по:Владимир 2

    Фото 1 Владимир 2


      Наши
      контакты

      Дмитров
      Опорный проезд 28Б
      (индустриальный парк Ниагара)
      9:00 до 18:00

      Корзина