4.9
Рейтинг на основании 120 отзывов
Дмитров
Опорный проезд 28Б
(индустриальный парк Ниагара)
Бренд "Дмитров-Дело" c 2008 года на рынке строительства в Дмитрове
Звоните 9:00 до 18:00 8 (915) 055-33-61
Бренд "Дмитров-Дело" c 2008 года на рынке строительства в Дмитрове

Современное шале №106

Стоимость проекта от:
82 350 ₽
БЕСПЛАТНО! ПРИ ЗАКАЗЕ СТРОИТЕЛЬСТВА
Стоимость строительства от:
12 787 920 ₽
Артикул ART-10617
Дата 25.12.2025
Архитектурный стиль Шале
Количество надземных этажей 2
Круглогодичное проживание Да
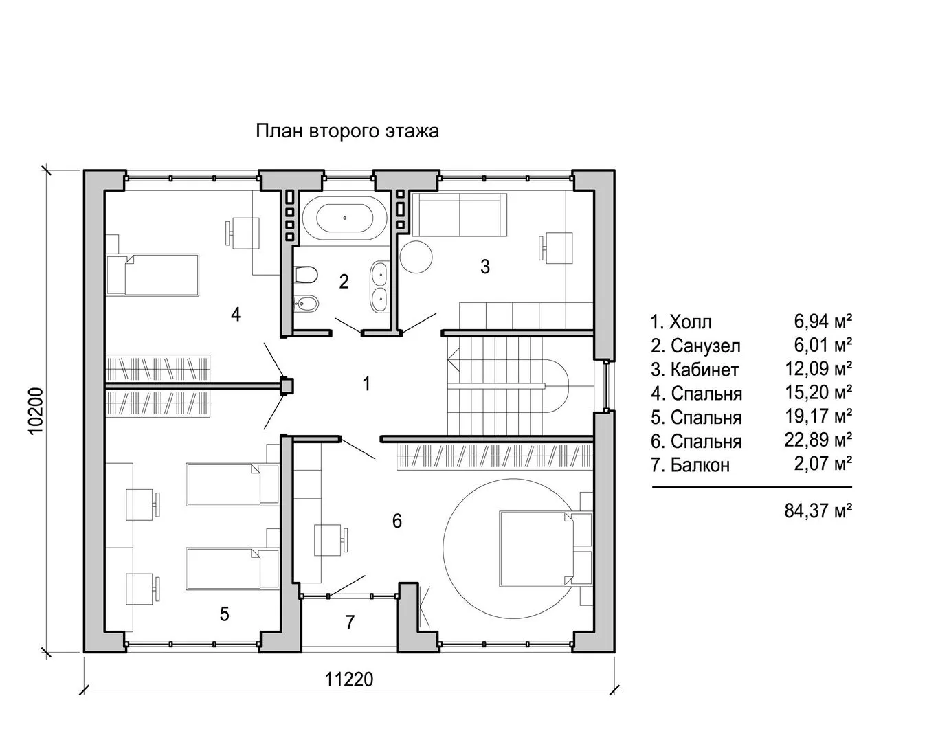
Площадь дома 183 м2
Санузлы 2
Спальни 4

Описание

Добро пожаловать в Современное шале №106 – уютный уголок, где высокие горные вершины встречаются с теплом домашнего очага. Это дом из двух надземных этажей, спроектированный в настоящем шале‑стиле с гармонией скандинавской простоты и колоритной европейской традиции. Его элегантные линии, двускатная крыша и строгие газобетонные блоки создают ощущение прочности и защищённости, а все‑годовое проживание делает его идеальным как для летних каникул, так и для зимнего уюта. В уютных комнатах открываются виды на живописные долины: просторный балкон и терраса приглашают наслаждаться закатами и свежим воздухом, а изящно оформленные окна позволяют впустить максимум света. Дизайн интерьера подчёркивает функциональность и эстетику: просторные гостиные, современная кухня, уютные спальни с панорамными выходами — всё продумано до мелочей. Отсутствие прицепленного гаража и открытая автостоянка дают возможность свободно перемещаться по живописной территории, а отсутствие чердака и веранд позволяет вам полностью погрузиться в гармоничную атмосферу дома. Этот шале станет вашим личным убежищем: сочетание прочных материалов, продуманной планировки и живописных открытий создает идеальный микс уюта и функциональности. Устройте здесь свой собственный уголок тепла, где каждый момент отмечается естественной красотой природы и комфортом современного жилья. Приходите и убедитесь, насколько приятен может быть ваш идеальный дом!

Характеристики дома

Архитектурный стиль
Автоматизированное регулирование параметров теплоносителя
Нет
Балконы/лоджии
1
Чердачное помещение
Нет
Датчики протечки воды
Нет
Эксплуатируемая или зеленая кровля
Нет
Электроснабжение
Не предусмотрено
Газоснабжение
Не предусмотрено
Изоляция воздушного шума
Нет
Камин
Нет
Класс энергоэффективности
-
Класс энергосбережения
-
Количество надземных этажей
2
Круглогодичное проживание
Да
Материал кровли
Металлочерепица
Материал перекрытий
Сборные железобетонные
Материал внешних стен
Материал внутренних перегородок
Кирпичные
Модульное строительство с конструкциями заводского изготовления
Нет
Объем надземной части
1300 м3
Основной материал фасадов
Облицовочный кирпич
Отопление
Не предусмотрено
Площадь дома
183 м2
Площадь застройки
229 м2
Подвальное помещение
Нет
Показатель компактности здания
-
Приборы учета тепловой энергии
Нет
Пристроенный гараж/крытая автостоянка
Нет
Противопожарная система
Нет
Санузлы
2
Совмещенная кухня-гостиная
Да
Спальни
4
Терраса
Да
Тип фундамента
Плитный
Тип кровли
Толщина внешних стен
470 мм
Толщина внутренних перегородок
120 мм
Улучшенные шумовые характеристики
Нет
Вентиляция
Естественная
Веранда
Нет
Водоотведение
Не предусмотрено
Водоснабжение
Не предусмотрено
Высота дома
6.5 м
Высота потолков
2.9 м

Планировка

Фасад дома

Александр

Закажите выезд инженера

Александр

Выездной инженер
Закажите выезд инженера для точной диагностики и профессиональной консультации по инженерным системам. Специалист приедет в удобное время, проведёт осмотр, рассчитает стоимость работ и подберёт оптимальные решения для вашего дома.


    Похожие проекты

    Ипотека и
    рассрочка
    Дом «Вилмар 85» в скандинавском стиле
    Стоимость от:
    224 400
    Проект от: 38 250
    Этажей 2
    Санузлы 1
    Спальни 3
    Смотреть
    Ипотека и
    рассрочка
    Ропша 1
    Стоимость от:
    5 608 200
    Проект от: 38 250
    Этажей 2
    Санузлы 2
    Спальни 4
    Смотреть
    Ипотека и
    рассрочка
    Проект ТРИО
    Стоимость от:
    12 916 640
    Проект от: 77 400
    Этажей 1
    Санузлы 2
    Спальни 3
    Смотреть
    Ипотека и
    рассрочка
    Дом Марианна
    Стоимость от:
    3 294 885
    Проект от: 25 650
    Этажей 1
    Санузлы 1
    Спальни 1
    Смотреть
    Ипотека и
    рассрочка
    Новая высота 1эт
    Стоимость от:
    6 389 900
    Проект от: 38 250
    Этажей 1
    Санузлы 1
    Спальни 3
    Смотреть
    Ипотека и
    рассрочка
    Сириус-218
    Стоимость от:
    13 582 580
    Проект от: 96 300
    Этажей 1
    Санузлы 3
    Спальни 3
    Смотреть

    Как узнать стоимость дома

    back
    Оставляете заявку
    Вы заполняете форму на сайте или звоните нам. Менеджер Лайвкрафт связывается с вами для уточнения деталей: тип дома, площадь, материалы, участок строительства.
    back
    Консультация и подбор решения
    Наш специалист помогает выбрать оптимальный тип дома и конструкцию с учётом бюджета, сроков и целей — будь то дом для постоянного проживания или дача.
    back
    Расчёт предварительной стоимости
    Инженер делает первичный расчёт стоимости строительства по вашим параметрам: фундамент, коробка, кровля, отделка. Вы получаете смету с разбивкой по этапам.
    back
    Корректировка и утверждение сметы
    При необходимости вносим изменения — например, замену материалов или сокращение этапов. После согласования формируется окончательная фиксированная смета.
    back
    Заключение договора и старт работ
    После утверждения сметы заключаем официальный договор с гарантией. Вы получаете прозрачный график и точную стоимость — без скрытых расходов.

    Заказать конусльтацию по:Современное шале №106

    Фото 1 Современное шале №106


      Наши
      контакты

      Дмитров
      Опорный проезд 28Б
      (индустриальный парк Ниагара)
      9:00 до 18:00

      Корзина