4.9
Рейтинг на основании 120 отзывов
Дмитров
Опорный проезд 28Б
(индустриальный парк Ниагара)
Бренд "Дмитров-Дело" c 2008 года на рынке строительства в Дмитрове
Звоните 9:00 до 18:00 8 (915) 055-33-61
Бренд "Дмитров-Дело" c 2008 года на рынке строительства в Дмитрове

Ропша 1

Стоимость проекта от:
38 250 ₽
БЕСПЛАТНО! ПРИ ЗАКАЗЕ СТРОИТЕЛЬСТВА
Стоимость строительства от:
5 608 200 ₽
Артикул ART-15808
Дата 25.12.2025
Архитектурный стиль Классический
Количество надземных этажей 2
Круглогодичное проживание Да
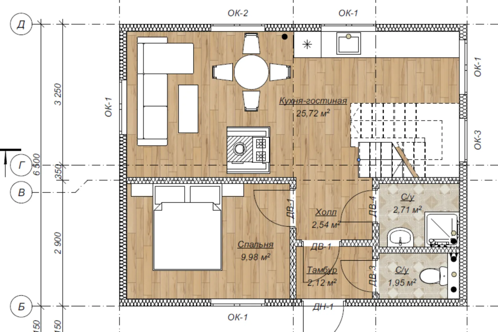
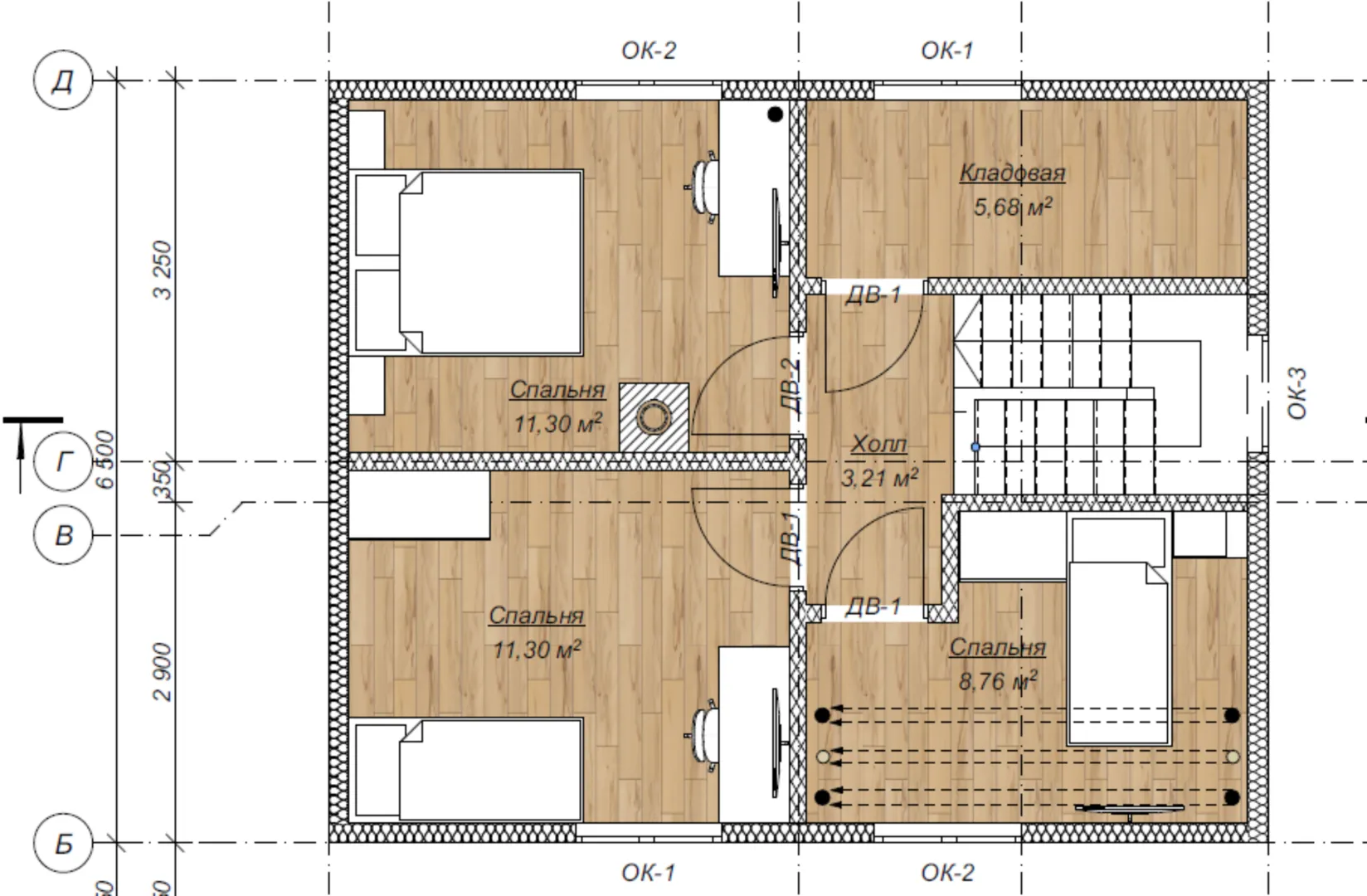
Площадь дома 85 м2
Санузлы 2
Спальни 4

Описание

Наслаждайтесь уютом и спокойствием, которые дарит наш дом в стиле классики, разработанный специально для круглогодичного обитания. Поднявшись по ровным лестницам двух надземных этажей, вы сразу почувствуете простор и свет, а мягкое тепло от хорошо утепленных SIP‑панелей сделает ваш дом комфортным даже в самые суровые зимы и летние волны жары. Крыша в традиционном двускатном виде создает элегантный профиль и обеспечивает отличную гидроизоляцию, а отсутствие балконов, веранды и чердака — это простота без лишних забот: меньше места для обслуживания, но больше функциональной зоны «под ключ». Оставив простор внутри для ваших собственных идей, Вы сможете создать идеальный дом для семьи, друзей и т.д. Готовый к проживанию проект с высокой энергоэффективностью и низким уровнем обслуживания от начала до конца готов к вашему выбору. Если вы ищете современное сочетание комфорта и стиля, этот дом станет вашим идеальным убежищем. Свяжитесь с нами, и мы поможем превратить эту мечту в реальность.

Характеристики дома

Архитектурный стиль
Автоматизированное регулирование параметров теплоносителя
Нет
Балконы/лоджии
Отсутствуют
Чердачное помещение
Нет
Датчики протечки воды
Нет
Эксплуатируемая или зеленая кровля
Нет
Электроснабжение
Центральное
Газоснабжение
2 варианта
Изоляция воздушного шума
Нет
Камин
Нет
Класс энергоэффективности
-
Класс энергосбережения
-
Количество надземных этажей
2
Круглогодичное проживание
Да
Материал кровли
Металлочерепица
Материал перекрытий
Деревянные
Материал внешних стен
Материал внутренних перегородок
Деревянные
Модульное строительство с конструкциями заводского изготовления
Нет
Объем надземной части
104 м3
Основной материал фасадов
Фасадная плитка
Отопление
2 варианта
Площадь дома
85 м2
Площадь застройки
52 м2
Подвальное помещение
Нет
Показатель компактности здания
-
Приборы учета тепловой энергии
Нет
Пристроенный гараж/крытая автостоянка
Нет
Противопожарная система
Нет
Санузлы
2
Совмещенная кухня-гостиная
Да
Спальни
4
Терраса
Нет
Тип фундамента
Свайный
Тип кровли
Толщина внешних стен
170 мм
Толщина внутренних перегородок
146 мм
Улучшенные шумовые характеристики
Нет
Вентиляция
Естественная
Веранда
Нет
Водоотведение
2 варианта
Водоснабжение
2 варианта
Высота дома
6.4 м
Высота потолков
2.5 м

Планировка

Фасад дома

Александр

Закажите выезд инженера

Александр

Выездной инженер
Закажите выезд инженера для точной диагностики и профессиональной консультации по инженерным системам. Специалист приедет в удобное время, проведёт осмотр, рассчитает стоимость работ и подберёт оптимальные решения для вашего дома.


    Похожие проекты

    Ипотека и
    рассрочка
    Частный загородный дом для семьи с детьми S3-165-1 (Z219)
    Стоимость от:
    17 186 400
    Проект от: 103 500
    Этажей 2
    Санузлы 2
    Спальни 3
    Смотреть
    Ипотека и
    рассрочка
    Проект Одноэтажный BARN 100
    Стоимость от:
    5 521 230
    Проект от: 44 550
    Этажей 1
    Санузлы 2
    Спальни 3
    Смотреть
    Ипотека и
    рассрочка
    Комфорт-124
    Стоимость от:
    10 440 980
    Проект от: 62 550
    Этажей 1
    Санузлы 2
    Спальни 3
    Смотреть
    Ипотека и
    рассрочка
    Проект «Горки»
    Стоимость от:
    4 637 600
    Проект от: 36 000
    Этажей 1
    Санузлы 1
    Спальни 2
    Смотреть
    Ипотека и
    рассрочка
    Загородный дом «Меридиан 2»
    Стоимость от:
    8 050 320
    Проект от: 50 850
    Этажей 2
    Санузлы 2
    Спальни 3
    Смотреть
    Ипотека и
    рассрочка
    Одноэтажный дом Fixplans-8198
    Стоимость от:
    9 039 360
    Проект от: 57 600
    Этажей 1
    Санузлы 2
    Спальни 4
    Смотреть

    Как узнать стоимость дома

    back
    Оставляете заявку
    Вы заполняете форму на сайте или звоните нам. Менеджер Лайвкрафт связывается с вами для уточнения деталей: тип дома, площадь, материалы, участок строительства.
    back
    Консультация и подбор решения
    Наш специалист помогает выбрать оптимальный тип дома и конструкцию с учётом бюджета, сроков и целей — будь то дом для постоянного проживания или дача.
    back
    Расчёт предварительной стоимости
    Инженер делает первичный расчёт стоимости строительства по вашим параметрам: фундамент, коробка, кровля, отделка. Вы получаете смету с разбивкой по этапам.
    back
    Корректировка и утверждение сметы
    При необходимости вносим изменения — например, замену материалов или сокращение этапов. После согласования формируется окончательная фиксированная смета.
    back
    Заключение договора и старт работ
    После утверждения сметы заключаем официальный договор с гарантией. Вы получаете прозрачный график и точную стоимость — без скрытых расходов.

    Заказать конусльтацию по:Ропша 1

    Фото 1 Ропша 1


      Наши
      контакты

      Дмитров
      Опорный проезд 28Б
      (индустриальный парк Ниагара)
      9:00 до 18:00

      Корзина