4.9
Рейтинг на основании 120 отзывов
Дмитров
Опорный проезд 28Б
(индустриальный парк Ниагара)
Бренд "Дмитров-Дело" c 2008 года на рынке строительства в Дмитрове
Звоните 9:00 до 18:00 8 (915) 055-33-61
Бренд "Дмитров-Дело" c 2008 года на рынке строительства в Дмитрове

Барнхаус Next 80

Стоимость проекта от:
33 300 ₽
Стоимость строительства от:
4 635 360 ₽
Артикул ART-14543
Дата 25.12.2025
Архитектурный стиль Барнхаус
Количество надземных этажей 2
Круглогодичное проживание Да
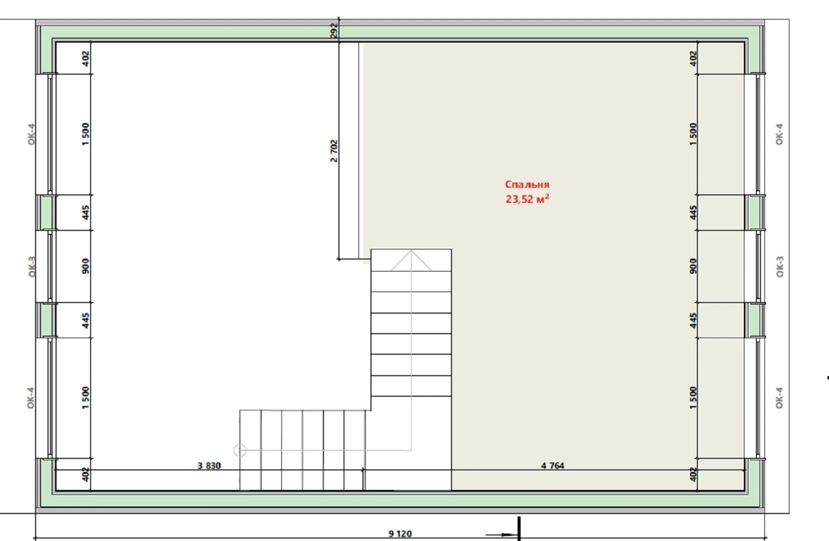
Площадь дома 74 м2
Санузлы 1
Спальни 2

Описание

**Barnhouse Next 80** – это воплощение русской простоты и европейского шарма, созданное специально для тех, кто ценит уют, тепло и функциональность. У этого дома два надземных этажа полностью адаптированы под круглогодичную жизнь: просторные, высокие комнаты, большие окна, пропускающие солнечный свет и защищающие от холодных ветров. Структура дома обеспечивает отличную звукоизоляцию и теплоизоляцию, а деревянный каркас придаёт ему характерную «древесную лёгкость», позволяя сохранять тепло в холодную пору, а прохладу – в летний жар. Тепло и уют Barnhouse‑стиля раскрывается в деталях: простая, но элегантная линия, строгая геометрия, классический двускатный ковер из качественных материалов. Дома нет лишних балконов и гаражей; все, чем можно похвастаться, – это открытая терраса, где к вам придёт свежий воздух, а также возможность устроить собственный уголок для сада или обедов на свежем воздухе. Этот дом – идеальное решение для тех, кто ищет гармонию между природой и комфортом, где каждая деталь продумана до мелочей: от прочной деревянной конструкции до практичной безграничной террасы. Он ждёт своего хозяина, который оценит простоту, качество и эстетику, которые несёт в себе Barnhouse Next 80.

Характеристики дома

Архитектурный стиль
Барнхаус
Автоматизированное регулирование параметров теплоносителя
Да
Балконы/лоджии
Отсутствуют
Чердачное помещение
Нет
Датчики протечки воды
Нет
Эксплуатируемая или зеленая кровля
Нет
Электроснабжение
Центральное
Газоснабжение
Центральное
Изоляция воздушного шума
Да
Камин
Нет
Класс энергоэффективности
A
Класс энергосбережения
A
Количество надземных этажей
2
Круглогодичное проживание
Да
Материал кровли
Металлические листовые гофрированные профили
Материал перекрытий
Деревянные
Материал внешних стен
Деревянные каркасные
Материал внутренних перегородок
Деревянные
Модульное строительство с конструкциями заводского изготовления
Нет
Объем надземной части
300 м3
Основной материал фасадов
Планкен
Отопление
Индивидуальное
Площадь дома
74 м2
Площадь застройки
67 м2
Подвальное помещение
Нет
Показатель компактности здания
0.89
Приборы учета тепловой энергии
Да
Пристроенный гараж/крытая автостоянка
Нет
Противопожарная система
Нет
Санузлы
1
Совмещенная кухня-гостиная
Да
Спальни
2
Терраса
Да
Тип фундамента
Плитный
Тип кровли
Двускатная
Толщина внешних стен
150 мм
Толщина внутренних перегородок
150 мм
Улучшенные шумовые характеристики
Да
Вентиляция
Естественная
Веранда
Нет
Водоотведение
Центральное
Водоснабжение
Центральное
Высота дома
6.85 м
Высота потолков
2.7 м

Планировка

Фасад дома

Александр

Закажите выезд инженера

Александр

Выездной инженер
Закажите выезд инженера для точной диагностики и профессиональной консультации по инженерным системам. Специалист приедет в удобное время, проведёт осмотр, рассчитает стоимость работ и подберёт оптимальные решения для вашего дома.


    Похожие проекты

    Ипотека и
    рассрочка
    Одноэтажный жилой дом Зевс мини с крыльцом 93 кв.м
    Стоимость от:
    6 990 060
    Проект от: 41 850
    Этажей 1
    Санузлы 1
    Спальни 3
    Смотреть
    Ипотека и
    рассрочка
    M.BARN 110
    Стоимость от:
    5 004 450
    Проект от: 40 500
    Этажей 1
    Санузлы 2
    Спальни 4
    Смотреть
    Ипотека и
    рассрочка
    Одноэтажный жилой дом Афина 125 кв.м.
    Стоимость от:
    9 390 700
    Проект от: 56 250
    Этажей 1
    Санузлы 2
    Спальни 3
    Смотреть
    Ипотека и
    рассрочка
    Загородный дом ВС-121
    Стоимость от:
    8 042 640
    Проект от: 49 950
    Этажей 2
    Санузлы 1
    Спальни 3
    Смотреть
    Ипотека и
    рассрочка
    Проект двухэтажного дома «Честер»
    Стоимость от:
    5 863 860
    Проект от: 40 050
    Этажей 2
    Санузлы 1
    Спальни 2
    Смотреть
    Ипотека и
    рассрочка
    Ниагара
    Стоимость от:
    8 799 840
    Проект от: 56 700
    Этажей 2
    Санузлы 2
    Спальни 5
    Смотреть

    Как узнать стоимость дома

    back
    Оставляете заявку
    Вы заполняете форму на сайте или звоните нам. Менеджер Лайвкрафт связывается с вами для уточнения деталей: тип дома, площадь, материалы, участок строительства.
    back
    Консультация и подбор решения
    Наш специалист помогает выбрать оптимальный тип дома и конструкцию с учётом бюджета, сроков и целей — будь то дом для постоянного проживания или дача.
    back
    Расчёт предварительной стоимости
    Инженер делает первичный расчёт стоимости строительства по вашим параметрам: фундамент, коробка, кровля, отделка. Вы получаете смету с разбивкой по этапам.
    back
    Корректировка и утверждение сметы
    При необходимости вносим изменения — например, замену материалов или сокращение этапов. После согласования формируется окончательная фиксированная смета.
    back
    Заключение договора и старт работ
    После утверждения сметы заключаем официальный договор с гарантией. Вы получаете прозрачный график и точную стоимость — без скрытых расходов.

    Заказать конусльтацию по:Барнхаус Next 80

    Фото 1 Барнхаус Next 80


      Наши
      контакты

      Дмитров
      Опорный проезд 28Б
      (индустриальный парк Ниагара)
      9:00 до 18:00