4.9
Рейтинг на основании 120 отзывов
Дмитров
Опорный проезд 28Б
(индустриальный парк Ниагара)
Бренд "Дмитров-Дело" c 2008 года на рынке строительства в Дмитрове
Звоните 9:00 до 18:00 8 (915) 055-33-61
Бренд "Дмитров-Дело" c 2008 года на рынке строительства в Дмитрове

Суксун-159

Стоимость проекта от:
63 450 ₽
БЕСПЛАТНО! ПРИ ЗАКАЗЕ СТРОИТЕЛЬСТВА
Стоимость строительства от:
9 684 240 ₽
Артикул ART-17285
Дата 26.12.2025
Архитектурный стиль Классический
Количество надземных этажей 2
Круглогодичное проживание Да
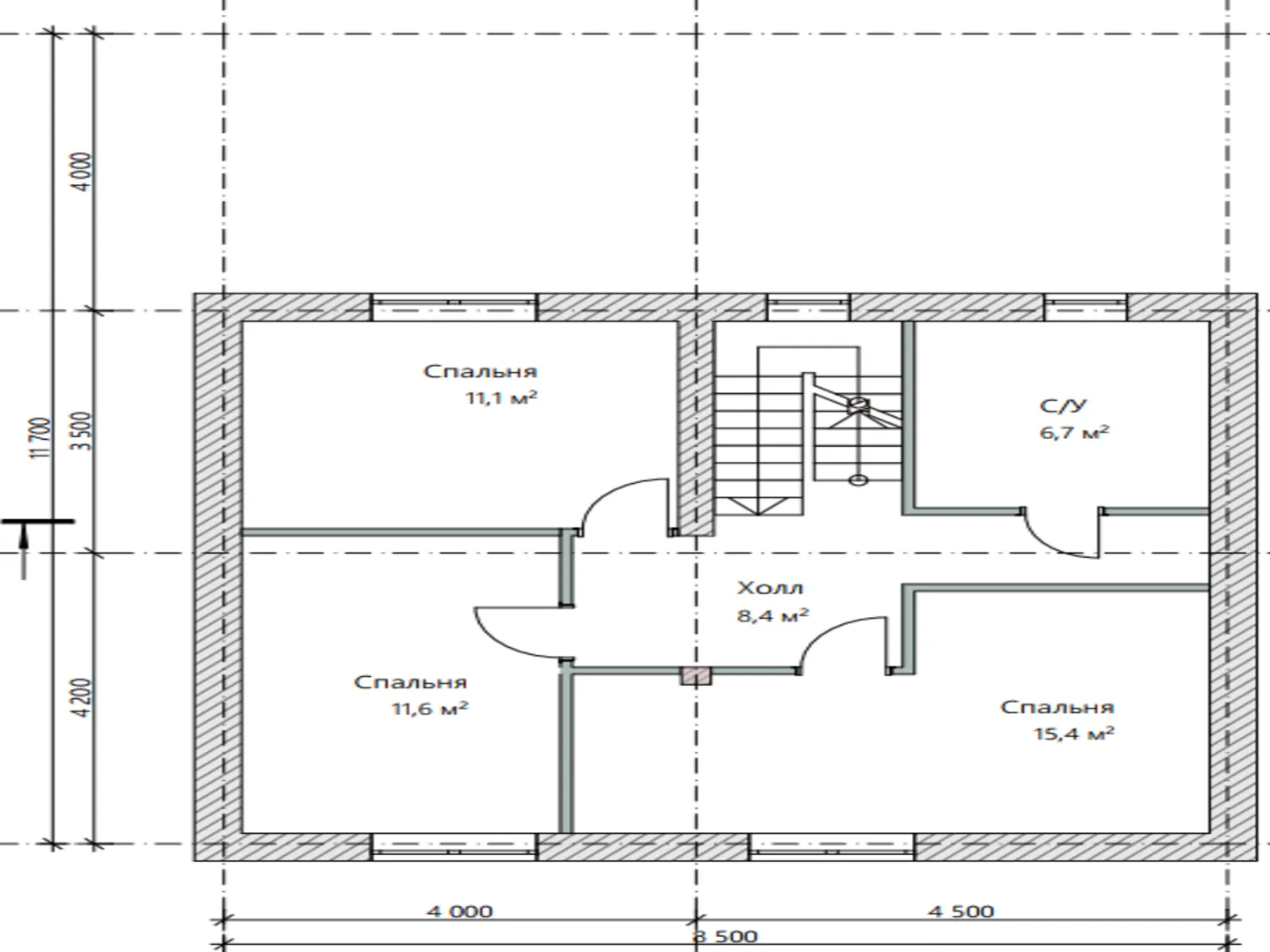
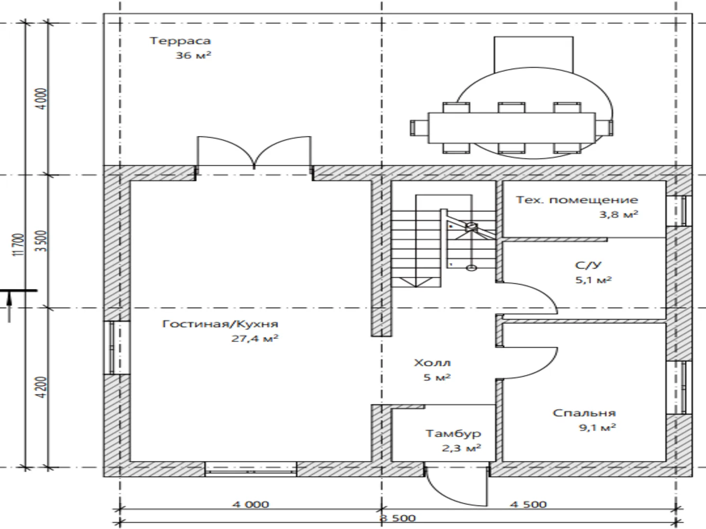
Площадь дома 141 м2
Санузлы 2
Спальни 4

Описание

Суксун‑159 – это воплощение спокойствия и уюта в классическом стиле, где каждая деталь продумана для комфорта круглогодичного проживания. Двухэтажный дом с прочными газобетонными стенами и изящной двускатной крышей создает ощущение надежности и гармонии, а широкой теплой террасой открывает простор для отдыха на свежем воздухе. Отсутствие балконов, приподнятых лоджий и веранд делает интерьер чистым и лаконичным, позволяя сосредоточиться на светлых, открытых пространствах, где легко вплести собственные идеи декора. Внутренний план дома продуман так, чтобы каждый уголок служил для жизни и радости. Два надземных этажа располагают уютные спальни, светлую гостиную и тихие рабочие зоны, а наличие террасы добавляет возможность наслаждаться рассветами и закатами прямо из окон. Конструкция из газобетонных блоков обеспечивает тепло- и звукоизоляцию, делая Суксун‑159 идеальным выбором для семей, ценящих комфорт и безопасность. Суксун‑159 – это ваш личный уголок в мире, где стиль соединяется с практичностью, а классика встречается с современным комфортом. Доверитесь качеству, которому доверяет каждый, кто ценит гармонию и уют, и создайте здесь свои бесценные моменты семейной жизни.

Характеристики дома

Архитектурный стиль
Автоматизированное регулирование параметров теплоносителя
Нет
Балконы/лоджии
Отсутствуют
Чердачное помещение
Нет
Датчики протечки воды
Нет
Эксплуатируемая или зеленая кровля
Нет
Электроснабжение
Центральное
Газоснабжение
Центральное
Изоляция воздушного шума
Нет
Камин
Нет
Класс энергоэффективности
-
Класс энергосбережения
-
Количество надземных этажей
2
Круглогодичное проживание
Да
Материал кровли
Металлические листовые гофрированные профили
Материал перекрытий
Деревянные
Материал внешних стен
Материал внутренних перегородок
Пенобетонные
Модульное строительство с конструкциями заводского изготовления
Нет
Объем надземной части
-
Основной материал фасадов
Штукатурка
Отопление
Индивидуальное
Площадь дома
141 м2
Площадь застройки
108 м2
Подвальное помещение
Нет
Показатель компактности здания
-
Приборы учета тепловой энергии
Нет
Пристроенный гараж/крытая автостоянка
Нет
Противопожарная система
Нет
Санузлы
2
Совмещенная кухня-гостиная
Да
Спальни
4
Терраса
Да
Тип фундамента
Плитный
Тип кровли
Толщина внешних стен
400 мм
Толщина внутренних перегородок
100 мм
Улучшенные шумовые характеристики
Нет
Вентиляция
Естественная
Веранда
Нет
Водоотведение
Локальные очистные сооружения
Водоснабжение
Индивидуальное
Высота дома
6.57 м
Высота потолков
2.6 м

Планировка

Фасад дома

Александр

Закажите выезд инженера

Александр

Выездной инженер
Закажите выезд инженера для точной диагностики и профессиональной консультации по инженерным системам. Специалист приедет в удобное время, проведёт осмотр, рассчитает стоимость работ и подберёт оптимальные решения для вашего дома.


    Похожие проекты

    Ипотека и
    рассрочка
    Валентина 77
    Стоимость от:
    5 437 740
    Проект от: 34 650
    Этажей 1
    Санузлы 1
    Спальни 3
    Смотреть
    Ипотека и
    рассрочка
    Двухэтажный кирпичный дом ЧЫРШЫ
    Стоимость от:
    7 609 200
    Проект от: 47 250
    Этажей 2
    Санузлы 2
    Спальни 4
    Смотреть
    Ипотека и
    рассрочка
    Бриз-104
    Стоимость от:
    6 410 470
    Проект от: 45 450
    Этажей 1
    Санузлы 1
    Спальни 3
    Смотреть
    Ипотека и
    рассрочка
    24СЯ15.00 PREMIUM
    Стоимость от:
    6 394 575
    Проект от: 51 750
    Этажей 1
    Санузлы 1
    Спальни 3
    Смотреть
    Ипотека и
    рассрочка
    Проект дома 200-87
    Стоимость от:
    15 787 200
    Проект от: 103 500
    Этажей 2
    Санузлы 4
    Спальни 5
    Смотреть
    Ипотека и
    рассрочка
    Загородный дом — 130.01
    Стоимость от:
    10 499 280
    Проект от: 64 800
    Этажей 1
    Санузлы 2
    Спальни 4
    Смотреть

    Как узнать стоимость дома

    back
    Оставляете заявку
    Вы заполняете форму на сайте или звоните нам. Менеджер Лайвкрафт связывается с вами для уточнения деталей: тип дома, площадь, материалы, участок строительства.
    back
    Консультация и подбор решения
    Наш специалист помогает выбрать оптимальный тип дома и конструкцию с учётом бюджета, сроков и целей — будь то дом для постоянного проживания или дача.
    back
    Расчёт предварительной стоимости
    Инженер делает первичный расчёт стоимости строительства по вашим параметрам: фундамент, коробка, кровля, отделка. Вы получаете смету с разбивкой по этапам.
    back
    Корректировка и утверждение сметы
    При необходимости вносим изменения — например, замену материалов или сокращение этапов. После согласования формируется окончательная фиксированная смета.
    back
    Заключение договора и старт работ
    После утверждения сметы заключаем официальный договор с гарантией. Вы получаете прозрачный график и точную стоимость — без скрытых расходов.

    Заказать конусльтацию по:Суксун-159

    Фото 1 Суксун-159


      Наши
      контакты

      Дмитров
      Опорный проезд 28Б
      (индустриальный парк Ниагара)
      9:00 до 18:00

      Корзина