4.9
Рейтинг на основании 120 отзывов
Дмитров
Опорный проезд 28Б
(индустриальный парк Ниагара)
Бренд "Дмитров-Дело" c 2008 года на рынке строительства в Дмитрове
Звоните 9:00 до 18:00 8 (915) 055-33-61
Бренд "Дмитров-Дело" c 2008 года на рынке строительства в Дмитрове

Берлин-120-114-Б

Стоимость проекта от:
69 750 ₽
БЕСПЛАТНО! ПРИ ЗАКАЗЕ СТРОИТЕЛЬСТВА
Стоимость строительства от:
11 986 700 ₽
Артикул ART-13787
Дата 25.12.2025
Архитектурный стиль Скандинавский
Количество надземных этажей 1
Круглогодичное проживание Да
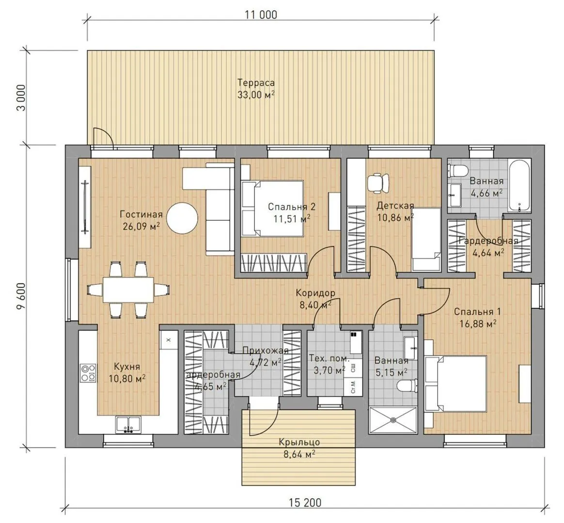
Площадь дома 155 м2
Санузлы 1
Спальни 3

Описание

**Берлин‑120‑114‑Б** – это уютная коттеджная жемчужина, созданная специально для тех, кто ценит современные решения и комфорт круглый год. Дом располагается на одном уровне, что обеспечивает простоту перемещения и доступность для всех возрастных групп. Интерьер выполнен в лаконичном скандинавском стиле: светлые тона, открытые пространства и естественное освещение создают атмосферу спокойствия и гармонии. Завитые, почти невидимые деревянные детали придают жилому пространству особую теплоту и индивидуальность. Экономичный полистиролбетонный материал внешних стен гарантирует отличное тепло- и звукоизоляцию, а двускатная крыша с классическим скандинавским профилем придает дому гармоничный вид и защищает его от метеорологических нагрузок. На задней части дома открывается просторная терраса, где вы сможете наслаждаться видом на уютный дворик, устроить летний барбекю или просто отдохнуть под лучами солнца. Нет перегруженных балконов, веранд, пристроенных гаражей или чердаческих помещений – всё сделано с умом, чтобы вы могли сосредоточиться на жизни, а не на обслуживании недвижимости. Берлин‑120‑114‑Б – это не просто дом, а место, где каждый уголок продуман до мелочей: от мягких света, проникающего в комнаты, до практичных решений для хранения. Приглашаем вас открыть для себя уединение и комфорт городской квартиры, но в условиях, где простота и скандинавская эстетика создают ощущение дома каждый день.

Характеристики дома

Архитектурный стиль
Автоматизированное регулирование параметров теплоносителя
Нет
Балконы/лоджии
Отсутствуют
Чердачное помещение
Нет
Датчики протечки воды
Нет
Эксплуатируемая или зеленая кровля
Нет
Электроснабжение
Не предусмотрено
Газоснабжение
Не предусмотрено
Изоляция воздушного шума
Нет
Камин
Нет
Класс энергоэффективности
-
Класс энергосбережения
-
Количество надземных этажей
1
Круглогодичное проживание
Да
Материал кровли
Фальцевая кровля Кликфальц
Материал перекрытий
Иной вид материалов перекрытий
Материал внешних стен
Материал внутренних перегородок
Модульное строительство с конструкциями заводского изготовления
Нет
Объем надземной части
-
Основной материал фасадов
Фальцевая кровля кликфальц
Отопление
Не предусмотрено
Площадь дома
155 м2
Площадь застройки
183 м2
Подвальное помещение
Нет
Показатель компактности здания
-
Приборы учета тепловой энергии
Нет
Пристроенный гараж/крытая автостоянка
Нет
Противопожарная система
Нет
Санузлы
1
Совмещенная кухня-гостиная
Да
Спальни
3
Терраса
Да
Тип фундамента
Ленточный
Тип кровли
Толщина внешних стен
400 мм
Толщина внутренних перегородок
150 мм
Улучшенные шумовые характеристики
Нет
Вентиляция
Естественная
Веранда
Нет
Водоотведение
Не предусмотрено
Водоснабжение
Не предусмотрено
Высота дома
6.7 м
Высота потолков
3.85 м

Планировка

Фасад дома

Александр

Закажите выезд инженера

Александр

Выездной инженер
Закажите выезд инженера для точной диагностики и профессиональной консультации по инженерным системам. Специалист приедет в удобное время, проведёт осмотр, рассчитает стоимость работ и подберёт оптимальные решения для вашего дома.


    Похожие проекты

    Ипотека и
    рассрочка
    Проект 9
    Стоимость от:
    15 324 540
    Проект от: 97 650
    Этажей 1
    Санузлы 2
    Спальни 3
    Смотреть
    Ипотека и
    рассрочка
    Каркасный зимний дом БН-14 «комплектация Зима+»
    Стоимость от:
    4 684 680
    Проект от: 37 800
    Этажей 1
    Санузлы 1
    Спальни 2
    Смотреть
    Ипотека и
    рассрочка
    Минибарн 76
    Стоимость от:
    4 407 600
    Проект от: 33 750
    Этажей 2
    Санузлы 1
    Спальни 2
    Смотреть
    Ипотека и
    рассрочка
    Вэллс-80
    Стоимость от:
    5 084 640
    Проект от: 32 400
    Этажей 1
    Санузлы 1
    Спальни 3
    Смотреть
    Ипотека и
    рассрочка
    Кортленд 92
    Стоимость от:
    5 491 475
    Проект от: 42 750
    Этажей 1
    Санузлы 2
    Спальни 3
    Смотреть
    Ипотека и
    рассрочка
    Двухэтажный дом -Family 02
    Стоимость от:
    9 335 040
    Проект от: 61 200
    Этажей 2
    Санузлы 1
    Спальни 4
    Смотреть

    Как узнать стоимость дома

    back
    Оставляете заявку
    Вы заполняете форму на сайте или звоните нам. Менеджер Лайвкрафт связывается с вами для уточнения деталей: тип дома, площадь, материалы, участок строительства.
    back
    Консультация и подбор решения
    Наш специалист помогает выбрать оптимальный тип дома и конструкцию с учётом бюджета, сроков и целей — будь то дом для постоянного проживания или дача.
    back
    Расчёт предварительной стоимости
    Инженер делает первичный расчёт стоимости строительства по вашим параметрам: фундамент, коробка, кровля, отделка. Вы получаете смету с разбивкой по этапам.
    back
    Корректировка и утверждение сметы
    При необходимости вносим изменения — например, замену материалов или сокращение этапов. После согласования формируется окончательная фиксированная смета.
    back
    Заключение договора и старт работ
    После утверждения сметы заключаем официальный договор с гарантией. Вы получаете прозрачный график и точную стоимость — без скрытых расходов.

    Заказать конусльтацию по:Берлин-120-114-Б

    Фото 1 Берлин-120-114-Б


      Наши
      контакты

      Дмитров
      Опорный проезд 28Б
      (индустриальный парк Ниагара)
      9:00 до 18:00

      Корзина