4.9
Рейтинг на основании 120 отзывов
Дмитров
Опорный проезд 28Б
(индустриальный парк Ниагара)
Бренд "Дмитров-Дело" c 2008 года на рынке строительства в Дмитрове
Звоните 9:00 до 18:00 8 (915) 055-33-61
Бренд "Дмитров-Дело" c 2008 года на рынке строительства в Дмитрове

Двухэтажный дом -Family 02

Стоимость проекта от:
61 200 ₽
БЕСПЛАТНО! ПРИ ЗАКАЗЕ СТРОИТЕЛЬСТВА
Стоимость строительства от:
9 335 040 ₽
Артикул ART-20089
Дата 26.12.2025
Архитектурный стиль Барнхаус
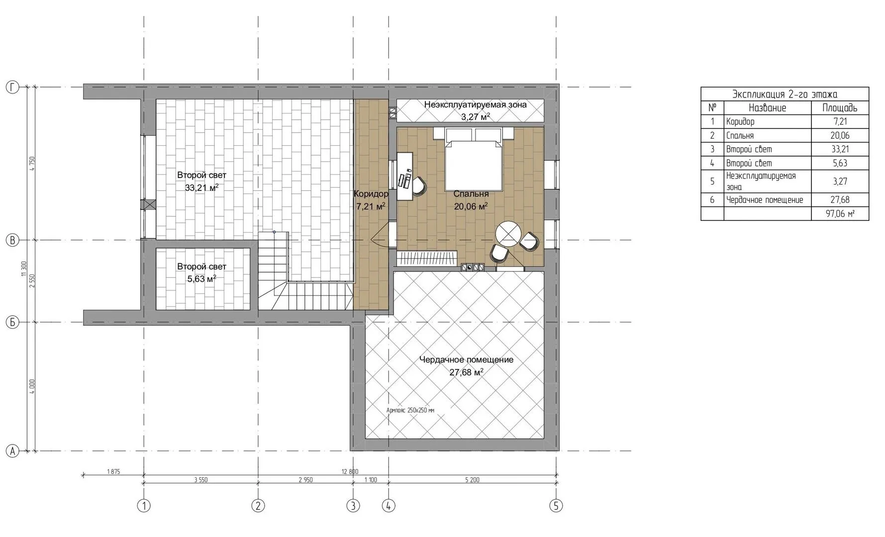
Количество надземных этажей 2
Круглогодичное проживание Да
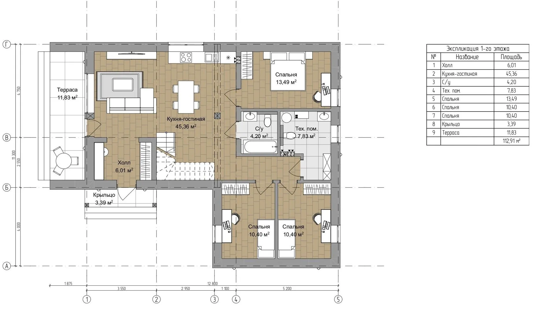
Площадь дома 136 м2
Санузлы 1
Спальни 4

Описание

С радостью представляем вашему вниманию двухэтажный дом «Family 02» – идеальный выбор для тех, кто ценит уют, функциональность и современный дизайн. Этот дом воплощает в себе элегантность стиля барнхаус: сочетание индустриального шарма с теплотой деревенского очага. Внутри каждая деталь продумана: просторные уровни, естественный свет, открытая планировка и обилие естественных материалов создают атмосферу домашнего уюта, а двускатная крыша добавляет неповторимого очарования. Круглогодичная эксплуатация без ограничений – главное преимущество «Family 02». Газобетонные стены не только обеспечивают превосходную тепло- и звукоизоляцию, но и делают дом легким и экономичным. Ничего лишнего: балконы, веранда и гараж тут нет, но они не мешают наслаждаться просторной террасой, где можно провести вечер в компании близких, и чердачным пространством, которое легко превратить в уютный кабинет, игровую комнату или уютную гостиную. Каждый элемент дома разработан с акцентом на ваш комфорт: от продуманных углов до практичных решений в отделке. Не упустите возможность стать владельцем этого гармоничного дома, где традиции встречаются с современностью. Пора сделать первый шаг к комфортной жизни, ведь «Family 02» ждет именно вас. Свяжитесь с нами, и мы расскажем, как легко и быстро воплотить ваш новый образ жизни в реальность.

Характеристики дома

Архитектурный стиль
Автоматизированное регулирование параметров теплоносителя
Да
Балконы/лоджии
Отсутствуют
Чердачное помещение
Да
Датчики протечки воды
Нет
Эксплуатируемая или зеленая кровля
Нет
Электроснабжение
2 варианта
Газоснабжение
2 варианта
Изоляция воздушного шума
Нет
Камин
Нет
Класс энергоэффективности
B
Класс энергосбережения
A
Количество надземных этажей
2
Круглогодичное проживание
Да
Материал кровли
Фальцевая кровля Кликфальц
Материал перекрытий
Монолитные железобетонные
Материал внешних стен
Материал внутренних перегородок
Блочные
Модульное строительство с конструкциями заводского изготовления
Нет
Объем надземной части
540 м3
Основной материал фасадов
Штукатурка
Отопление
Индивидуальное
Площадь дома
136 м2
Площадь застройки
120 м2
Подвальное помещение
Нет
Показатель компактности здания
0.91
Приборы учета тепловой энергии
Да
Пристроенный гараж/крытая автостоянка
Нет
Противопожарная система
Нет
Санузлы
1
Совмещенная кухня-гостиная
Да
Спальни
4
Терраса
Да
Тип фундамента
Плитный
Тип кровли
Толщина внешних стен
375 мм
Толщина внутренних перегородок
150 мм
Улучшенные шумовые характеристики
Да
Вентиляция
2 варианта
Веранда
Нет
Водоотведение
2 варианта
Водоснабжение
2 варианта
Высота дома
6.05 м
Высота потолков
3 м

Планировка

Фасад дома

Александр

Закажите выезд инженера

Александр

Выездной инженер
Закажите выезд инженера для точной диагностики и профессиональной консультации по инженерным системам. Специалист приедет в удобное время, проведёт осмотр, рассчитает стоимость работ и подберёт оптимальные решения для вашего дома.


    Похожие проекты

    Ипотека и
    рассрочка
    Двухэтажный Изумруд
    Стоимость от:
    12 944 640
    Проект от: 79 200
    Этажей 2
    Санузлы 2
    Спальни 4
    Смотреть
    Ипотека и
    рассрочка
    Одноэтажный дом от компании UNIT серии Премиум 141 TK
    Стоимость от:
    12 538 240
    Проект от: 77 400
    Этажей 1
    Санузлы 3
    Спальни 3
    Смотреть
    Ипотека и
    рассрочка
    Жилой дом
    Стоимость от:
    6 927 140
    Проект от: 39 150
    Этажей 1
    Санузлы 1
    Спальни 3
    Смотреть
    Ипотека и
    рассрочка
    Дачник 7х9
    Стоимость от:
    5 688 960
    Проект от: 42 750
    Этажей 2
    Санузлы 1
    Спальни 3
    Смотреть
    Ипотека и
    рассрочка
    Проект одноэтажного дома Челси
    Стоимость от:
    12 841 620
    Проект от: 76 950
    Этажей 1
    Санузлы 2
    Спальни 3
    Смотреть
    Ипотека и
    рассрочка
    Коттедж из кирпича «Сторхафен»
    Стоимость от:
    17 160 000
    Проект от: 112 500
    Этажей 2
    Санузлы 4
    Спальни 5
    Смотреть

    Как узнать стоимость дома

    back
    Оставляете заявку
    Вы заполняете форму на сайте или звоните нам. Менеджер Лайвкрафт связывается с вами для уточнения деталей: тип дома, площадь, материалы, участок строительства.
    back
    Консультация и подбор решения
    Наш специалист помогает выбрать оптимальный тип дома и конструкцию с учётом бюджета, сроков и целей — будь то дом для постоянного проживания или дача.
    back
    Расчёт предварительной стоимости
    Инженер делает первичный расчёт стоимости строительства по вашим параметрам: фундамент, коробка, кровля, отделка. Вы получаете смету с разбивкой по этапам.
    back
    Корректировка и утверждение сметы
    При необходимости вносим изменения — например, замену материалов или сокращение этапов. После согласования формируется окончательная фиксированная смета.
    back
    Заключение договора и старт работ
    После утверждения сметы заключаем официальный договор с гарантией. Вы получаете прозрачный график и точную стоимость — без скрытых расходов.

    Заказать конусльтацию по:Двухэтажный дом -Family 02

    Фото 1 Двухэтажный дом -Family 02


      Наши
      контакты

      Дмитров
      Опорный проезд 28Б
      (индустриальный парк Ниагара)
      9:00 до 18:00

      Корзина