4.9
Рейтинг на основании 120 отзывов
Дмитров
Опорный проезд 28Б
(индустриальный парк Ниагара)
Бренд "Дмитров-Дело" c 2008 года на рынке строительства в Дмитрове
Звоните 9:00 до 18:00 8 (915) 055-33-61
Бренд "Дмитров-Дело" c 2008 года на рынке строительства в Дмитрове

Проект загородного дома NHD-116

Стоимость проекта от:
54 900 ₽
БЕСПЛАТНО! ПРИ ЗАКАЗЕ СТРОИТЕЛЬСТВА
Стоимость строительства от:
8 827 680 ₽
Артикул ART-15667
Дата 25.12.2025
Архитектурный стиль Классический
Количество надземных этажей 2
Круглогодичное проживание Да
Площадь дома 122 м2
Санузлы 2
Спальни 3

Описание

**Загородный дом NHD‑116 – Ваш уголок уюта и стиля** Представляем проект загородного дома NHD‑116, созданный задуманным балансом классической эстетики и современного комфорта. Эта дваэтажная резиденция выполнена из высококачественных газобетонных блоков, которые гарантируют теплоизоляцию и долговечность даже в течение года. Просторные, светлые комнаты, обрамленные классическими рамами и элегантными колоннами, создают атмосферу спокойствия и благородства. Нулевая нагрузка на структуру от отсутствия веранд и лоджий позволяет архитекторам сосредоточиться на гармоничных линиях интерьера и продуманной планировке. В доме предусмотрено чердачное помещение, которое можно легко преобразовать в уютный кабинет, студию или дополнительную спальню, а терраса с панорамным видом на окрестную природу станет вашим личным оазисом для вечерних посиделок. Четырехскатная вальмовая крыша не только защищает от непогоды, но и придаёт фасаду выразительный характер, подчёркивающий классику. Пристроенный гараж отсутствует – для тех, кто предпочитает живую свободу с улицами поблизости, можно легко организовать гараж под отдельный проект. Годовое проживание в этом доме – это надёжное тепло, уют и спокойствие, а классический стиль, подчёркнутый традиционными окнами и величественными колоннами, создаёт неповторимую атмосферу. Это место, которое легко превращать в семейный дом, и что ещё важнее – ваш тихий гнёздище, где можно отдохнуть после насыщенного дня, наслаждаясь естественным светом и природой. Приходите, чтобы убедиться сами: NHD‑116 – это не просто здание, а воплощение вашего личного рая на земле.

Характеристики дома

Архитектурный стиль
Автоматизированное регулирование параметров теплоносителя
Да
Балконы/лоджии
Отсутствуют
Чердачное помещение
Да
Датчики протечки воды
Нет
Эксплуатируемая или зеленая кровля
Нет
Электроснабжение
Центральное
Газоснабжение
Центральное
Изоляция воздушного шума
Да
Камин
Нет
Класс энергоэффективности
A++
Класс энергосбережения
A++
Количество надземных этажей
2
Круглогодичное проживание
Да
Материал кровли
Металлочерепица
Материал перекрытий
Сборные железобетонные предварительно напряженные пустотные плиты
Материал внешних стен
Материал внутренних перегородок
Блочные
Модульное строительство с конструкциями заводского изготовления
Нет
Объем надземной части
980 м3
Основной материал фасадов
Облицовочный кирпич
Отопление
Индивидуальное
Площадь дома
122 м2
Площадь застройки
150 м2
Подвальное помещение
Нет
Показатель компактности здания
0.8
Приборы учета тепловой энергии
Да
Пристроенный гараж/крытая автостоянка
Нет
Противопожарная система
Нет
Санузлы
2
Совмещенная кухня-гостиная
Да
Спальни
3
Терраса
Да
Тип фундамента
Свайно-ростверковый
Толщина внешних стен
500 мм
Толщина внутренних перегородок
100 мм
Улучшенные шумовые характеристики
Да
Вентиляция
Естественная
Веранда
Нет
Водоотведение
Локальные очистные сооружения
Водоснабжение
Индивидуальное
Высота дома
9.3 м
Высота потолков
2.8 м

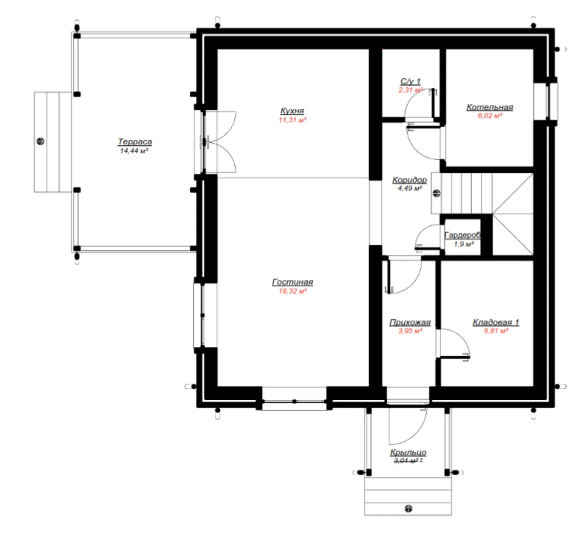
Планировка

Фасад дома

Александр

Закажите выезд инженера

Александр

Выездной инженер
Закажите выезд инженера для точной диагностики и профессиональной консультации по инженерным системам. Специалист приедет в удобное время, проведёт осмотр, рассчитает стоимость работ и подберёт оптимальные решения для вашего дома.


    Похожие проекты

    Ипотека и
    рассрочка
    Модульный дом CUBA 70 (ВА70)
    Стоимость от:
    4 851 990
    Проект от: 39 150
    Этажей 1
    Санузлы 2
    Спальни 4
    Смотреть
    Ипотека и
    рассрочка
    ДК-310
    Стоимость от:
    6 104 700
    Проект от: 45 900
    Этажей 2
    Санузлы 2
    Спальни 5
    Смотреть
    Ипотека и
    рассрочка
    Загородный дом «Солнце»
    Стоимость от:
    7 415 100
    Проект от: 47 250
    Этажей 1
    Санузлы 1
    Спальни 3
    Смотреть
    Ипотека и
    рассрочка
    Вдохновение 150
    Стоимость от:
    9 891 000
    Проект от: 67 500
    Этажей 2
    Санузлы 2
    Спальни 3
    Смотреть
    Ипотека и
    рассрочка
    Загородный дом ДАВИНЧИ
    Стоимость от:
    8 416 200
    Проект от: 58 500
    Этажей 2
    Санузлы 3
    Спальни 4
    Смотреть
    Ипотека и
    рассрочка
    M.BARN 60
    Стоимость от:
    3 725 535
    Проект от: 30 150
    Этажей 1
    Санузлы 1
    Спальни 2
    Смотреть

    Как узнать стоимость дома

    back
    Оставляете заявку
    Вы заполняете форму на сайте или звоните нам. Менеджер Лайвкрафт связывается с вами для уточнения деталей: тип дома, площадь, материалы, участок строительства.
    back
    Консультация и подбор решения
    Наш специалист помогает выбрать оптимальный тип дома и конструкцию с учётом бюджета, сроков и целей — будь то дом для постоянного проживания или дача.
    back
    Расчёт предварительной стоимости
    Инженер делает первичный расчёт стоимости строительства по вашим параметрам: фундамент, коробка, кровля, отделка. Вы получаете смету с разбивкой по этапам.
    back
    Корректировка и утверждение сметы
    При необходимости вносим изменения — например, замену материалов или сокращение этапов. После согласования формируется окончательная фиксированная смета.
    back
    Заключение договора и старт работ
    После утверждения сметы заключаем официальный договор с гарантией. Вы получаете прозрачный график и точную стоимость — без скрытых расходов.

    Заказать конусльтацию по:Проект загородного дома NHD-116

    Фото 1 Проект загородного дома NHD-116


      Наши
      контакты

      Дмитров
      Опорный проезд 28Б
      (индустриальный парк Ниагара)
      9:00 до 18:00

      Корзина