4.9
Рейтинг на основании 120 отзывов
Дмитров
Опорный проезд 28Б
(индустриальный парк Ниагара)
Бренд "Дмитров-Дело" c 2008 года на рынке строительства в Дмитрове
Звоните 9:00 до 18:00 8 (915) 055-33-61
Бренд "Дмитров-Дело" c 2008 года на рынке строительства в Дмитрове

Одноэтажный пермяк-119

Стоимость проекта от:
53 550 ₽
БЕСПЛАТНО! ПРИ ЗАКАЗЕ СТРОИТЕЛЬСТВА
Стоимость строительства от:
8 940 580 ₽
Артикул ART-17307
Дата 26.12.2025
Архитектурный стиль Американский/Канадский
Количество надземных этажей 1
Круглогодичное проживание Да
Площадь дома 119 м2
Санузлы 2
Спальни 3

Описание

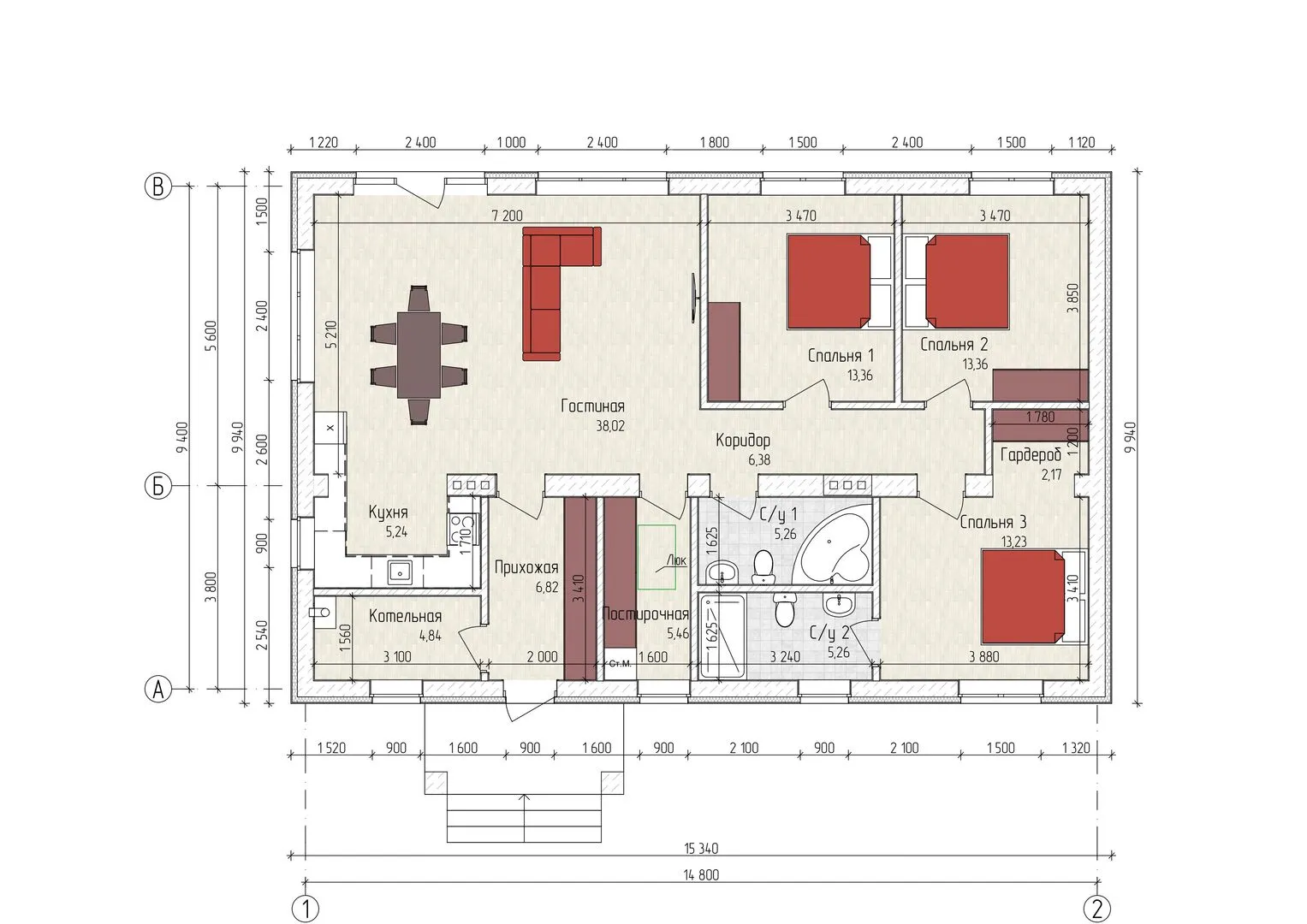
Изысканный одноэтажный дом “Пермяк‑119” – это лаконичность и комфорт, которые соединились в гармоничном американско‑канадском стиле. В гармонии с природой, с использованием газобетонных блоков, он обеспечивает естественную теплоизоляцию и бережный звукопоглощающий комфорт даже в самые холодные дни. Годовой режим проживания не требует компромиссов: каждый уголок создает атмосферу уюта и домашнего тепла, а вальмовая четырёхскатная крыша добавляет элегантности и защищает от непогоды. В доме предусмотрено продуманное чердачное помещение, превращающееся в уютный уголок для хранения вещей, рабочее пространство или даже дополнительную комнату. Отсутствие балконов, лоджий и веранд обуславливает компактный фасад, но при этом в интерьере сохраняется простор и света. Пристроенный гараж и крытая автостоянка не предусмотрены, что подчеркивает открытость ландшафта и легкость доступа к дому. Если вам хочется современного стиля, который привносит в жизнь свет и свежий воздух, а также простое, но функциональное пространство для семьи — “Пермяк‑119” станет идеальным выбором.

Характеристики дома

Архитектурный стиль
Автоматизированное регулирование параметров теплоносителя
Да
Балконы/лоджии
Отсутствуют
Чердачное помещение
Да
Датчики протечки воды
Нет
Эксплуатируемая или зеленая кровля
Нет
Электроснабжение
Центральное
Газоснабжение
Центральное
Изоляция воздушного шума
Да
Камин
Нет
Класс энергоэффективности
-
Класс энергосбережения
-
Количество надземных этажей
1
Круглогодичное проживание
Да
Материал кровли
Металлочерепица
Материал перекрытий
Деревянные
Материал внешних стен
Материал внутренних перегородок
Блочные
Модульное строительство с конструкциями заводского изготовления
Нет
Объем надземной части
673 м3
Основной материал фасадов
Облицовочный кирпич
Отопление
Индивидуальное
Площадь дома
119 м2
Площадь застройки
153 м2
Подвальное помещение
Нет
Показатель компактности здания
-
Приборы учета тепловой энергии
Да
Пристроенный гараж/крытая автостоянка
Нет
Противопожарная система
Нет
Санузлы
2
Совмещенная кухня-гостиная
Да
Спальни
3
Терраса
Нет
Тип фундамента
Свайно-ростверковый
Толщина внешних стен
400 мм
Толщина внутренних перегородок
100 мм
Улучшенные шумовые характеристики
Да
Вентиляция
Естественная
Веранда
Нет
Водоотведение
Локальные очистные сооружения
Водоснабжение
Индивидуальное
Высота дома
6.28 м
Высота потолков
2.8 м

Планировка

Фасад дома

Александр

Закажите выезд инженера

Александр

Выездной инженер
Закажите выезд инженера для точной диагностики и профессиональной консультации по инженерным системам. Специалист приедет в удобное время, проведёт осмотр, рассчитает стоимость работ и подберёт оптимальные решения для вашего дома.


    Похожие проекты

    Ипотека и
    рассрочка
    Загородный дом из клееного бруса № ВЗ-373 «Аида»
    Стоимость от:
    11 357 720
    Проект от: 74 700
    Этажей 1
    Санузлы 2
    Спальни 4
    Смотреть
    Ипотека и
    рассрочка
    Одноэтажный дом Fixplans — 0188
    Стоимость от:
    14 140 280
    Проект от: 87 300
    Этажей 1
    Санузлы 2
    Спальни 2
    Смотреть
    Ипотека и
    рассрочка
    S.Dom-113-1
    Стоимость от:
    7 965 100
    Проект от: 58 500
    Этажей 1
    Санузлы 2
    Спальни 3
    Смотреть
    Ипотека и
    рассрочка
    Soul
    Стоимость от:
    12 028 500
    Проект от: 74 250
    Этажей 1
    Санузлы 2
    Спальни 3
    Смотреть
    Ипотека и
    рассрочка
    Загородный дом КД-120
    Стоимость от:
    10 056 960
    Проект от: 64 800
    Этажей 2
    Санузлы 2
    Спальни 3
    Смотреть
    Ипотека и
    рассрочка
    Швеция 150
    Стоимость от:
    10 707 840
    Проект от: 70 200
    Этажей 2
    Санузлы 3
    Спальни 4
    Смотреть

    Как узнать стоимость дома

    back
    Оставляете заявку
    Вы заполняете форму на сайте или звоните нам. Менеджер Лайвкрафт связывается с вами для уточнения деталей: тип дома, площадь, материалы, участок строительства.
    back
    Консультация и подбор решения
    Наш специалист помогает выбрать оптимальный тип дома и конструкцию с учётом бюджета, сроков и целей — будь то дом для постоянного проживания или дача.
    back
    Расчёт предварительной стоимости
    Инженер делает первичный расчёт стоимости строительства по вашим параметрам: фундамент, коробка, кровля, отделка. Вы получаете смету с разбивкой по этапам.
    back
    Корректировка и утверждение сметы
    При необходимости вносим изменения — например, замену материалов или сокращение этапов. После согласования формируется окончательная фиксированная смета.
    back
    Заключение договора и старт работ
    После утверждения сметы заключаем официальный договор с гарантией. Вы получаете прозрачный график и точную стоимость — без скрытых расходов.

    Заказать конусльтацию по:Одноэтажный пермяк-119

    Фото 1 Одноэтажный пермяк-119


      Наши
      контакты

      Дмитров
      Опорный проезд 28Б
      (индустриальный парк Ниагара)
      9:00 до 18:00

      Корзина