4.9
Рейтинг на основании 120 отзывов
Дмитров
Опорный проезд 28Б
(индустриальный парк Ниагара)
Бренд "Дмитров-Дело" c 2008 года на рынке строительства в Дмитрове
Звоните 9:00 до 18:00 8 (915) 055-33-61
Бренд "Дмитров-Дело" c 2008 года на рынке строительства в Дмитрове

БМ 85

Стоимость проекта от:
72 900 ₽
Стоимость строительства от:
11 119 680 ₽
Артикул ART-6345
Дата 26.12.2025
Архитектурный стиль Скандинавский
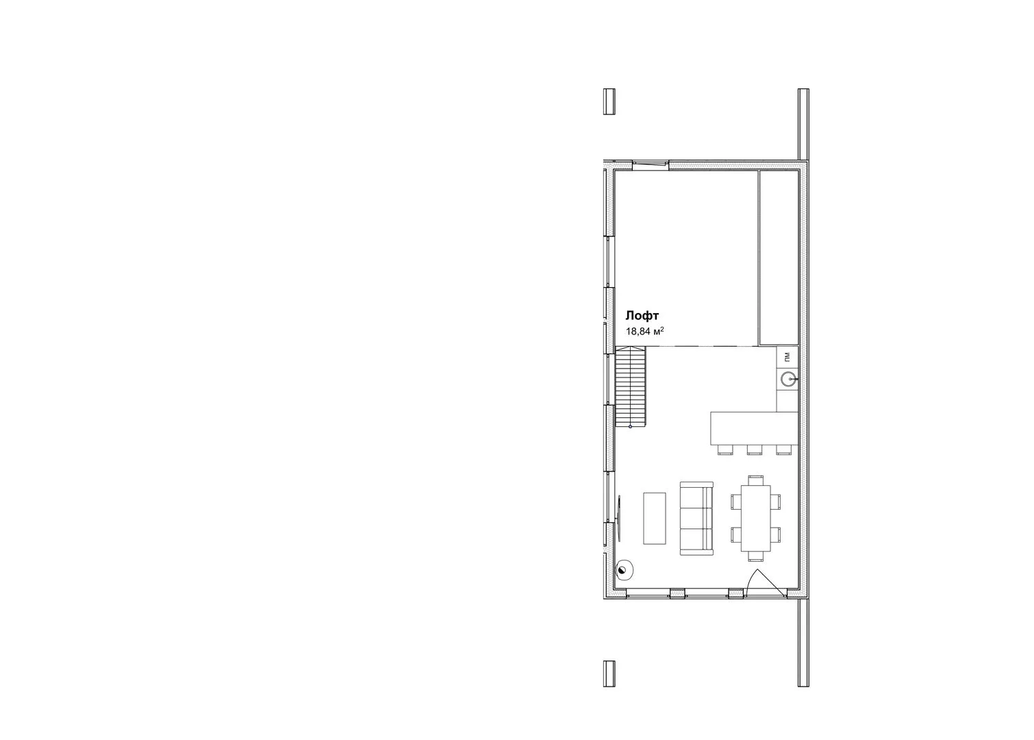
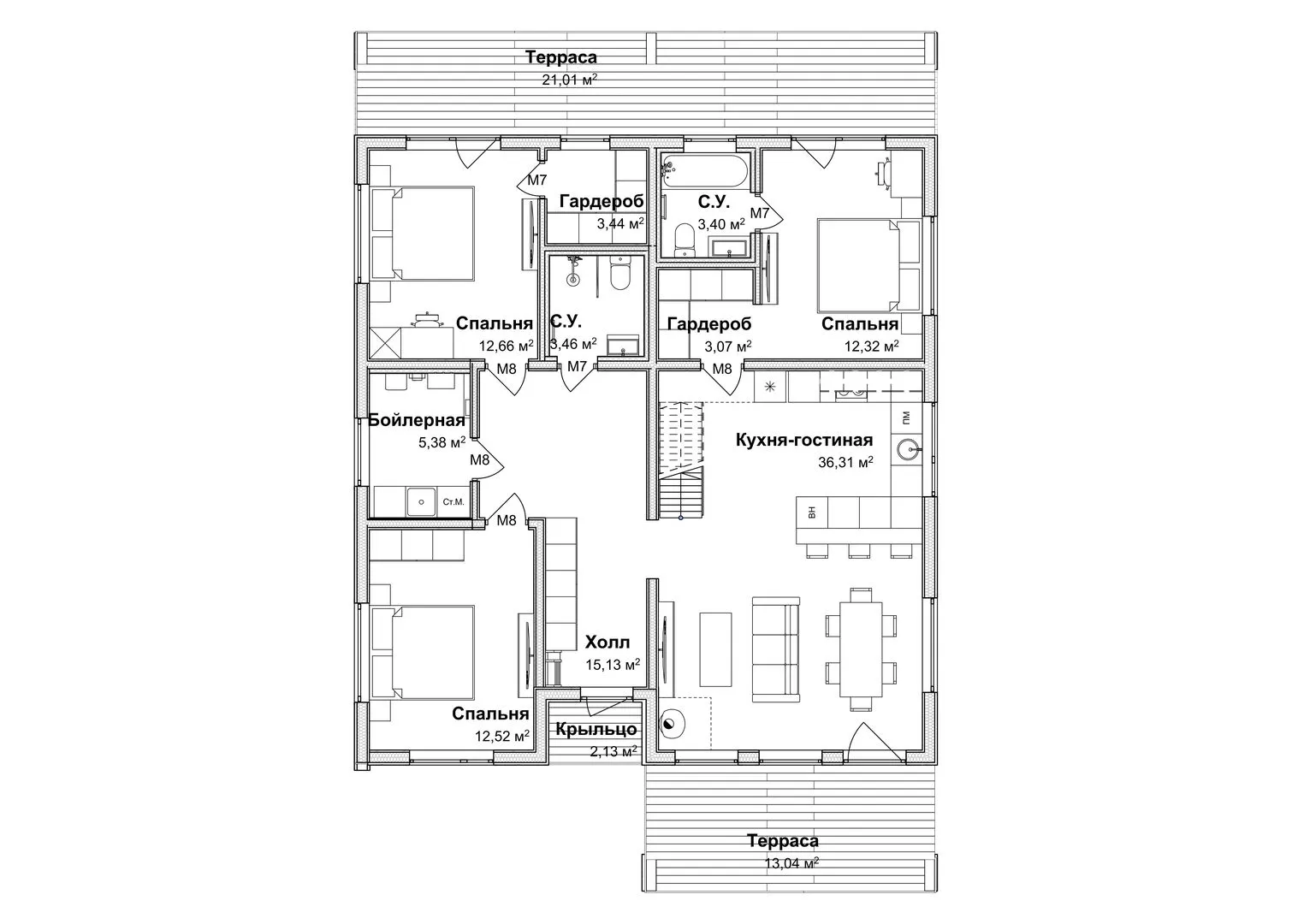
Количество надземных этажей 2
Круглогодичное проживание Да
Площадь дома 162 м2
Санузлы 2
Спальни 3

Описание

Добро пожаловать в дом «БМ 85» — истинное воплощение скандинавского уюта и современного комфорта. На две просторные надземные площадки спроектирован этот уютный дом, а простая, но выразительная архитектура приглашает к жизни в гармонии с природой. Широкие окна наполняют каждый уголок теплом и светом, создавая лёгкую и воздушную атмосферу, а аккуратный двускатный чердак, хотя и отсутствует, подчёркивает лаконичность формы и обеспечивает отличную изоляцию. Тёплый каркасно‑панельный корпус, выполненный при помощи передовой технологии, защищает от резких климатических изменений, а изоляционные свойства конструкций позволяют наслаждаться комфортом круглогодичного проживания. Просторная терраса, скандинавский декор и минималистический дизайн создают идеальное пространство для семейных вечеров и вечеров с душой, где каждый сантиметр пропитан стилем простоты и функциональности. Удобный планировку без прибрежных перегородок, балконов и прицепленной стоянки делает этот дом идеальным решением для тех, кто ценит свободное пространство и свободу от лишних деталей. Приглашаем вас открыть для себя возможности, которые предлагает дом «БМ 85». Ощутите на себе комфорт, который дарит сочетание натурального освещения, экологичной изоляции и скандинавского минимализма. Запланируйте визит уже сегодня, и позвольте этому дому стать вашим уютным убежищем в самом современном виде.

Характеристики дома

Архитектурный стиль
Скандинавский
Автоматизированное регулирование параметров теплоносителя
Нет
Балконы/лоджии
Отсутствуют
Чердачное помещение
Нет
Датчики протечки воды
Нет
Эксплуатируемая или зеленая кровля
Нет
Электроснабжение
2 варианта
Газоснабжение
2 варианта
Изоляция воздушного шума
Нет
Камин
Нет
Класс энергоэффективности
-
Класс энергосбережения
-
Количество надземных этажей
2
Круглогодичное проживание
Да
Материал кровли
Битумная черепица
Материал перекрытий
Деревянные по металлическим балкам
Материал внешних стен
Каркасно-панельная технология
Материал внутренних перегородок
Деревянные
Модульное строительство с конструкциями заводского изготовления
Нет
Объем надземной части
620 м3
Основной материал фасадов
Дерево
Отопление
2 варианта
Площадь дома
162 м2
Площадь застройки
180 м2
Подвальное помещение
Нет
Показатель компактности здания
-
Приборы учета тепловой энергии
Нет
Пристроенный гараж/крытая автостоянка
Нет
Противопожарная система
Нет
Санузлы
2
Совмещенная кухня-гостиная
Да
Спальни
3
Терраса
Да
Тип фундамента
Плитный
Тип кровли
Двускатная
Толщина внешних стен
350 мм
Толщина внутренних перегородок
300 мм
Улучшенные шумовые характеристики
Нет
Вентиляция
Рекуперация
Веранда
Нет
Водоотведение
Локальные очистные сооружения
Водоснабжение
2 варианта
Высота дома
4.6 м
Высота потолков
2.6 м

Планировка

Фасад дома

Александр

Закажите выезд инженера

Александр

Выездной инженер
Закажите выезд инженера для точной диагностики и профессиональной консультации по инженерным системам. Специалист приедет в удобное время, проведёт осмотр, рассчитает стоимость работ и подберёт оптимальные решения для вашего дома.


    Похожие проекты

    Ипотека и
    рассрочка
    Дом из газобетона «Исидор 84»
    Стоимость от:
    6 504 080
    Проект от: 37 800
    Этажей 1
    Санузлы 2
    Спальни 3
    Смотреть
    Ипотека и
    рассрочка
    Загородный дом 95
    Стоимость от:
    8 190 380
    Проект от: 49 050
    Этажей 1
    Санузлы 1
    Спальни 3
    Смотреть
    Ипотека и
    рассрочка
    Диво 5
    Стоимость от:
    9 230 320
    Проект от: 52 200
    Этажей 1
    Санузлы 2
    Спальни 3
    Смотреть
    Ипотека и
    рассрочка
    МО-80
    Стоимость от:
    6 002 700
    Проект от: 38 250
    Этажей 1
    Санузлы 1
    Спальни 3
    Смотреть
    Ипотека и
    рассрочка
    Одноэтажный дом в стиле Минимализм
    Стоимость от:
    6 202 900
    Проект от: 38 250
    Этажей 1
    Санузлы 2
    Спальни 3
    Смотреть
    Ипотека и
    рассрочка
    Одноэтажный дом В-205
    Стоимость от:
    8 689 340
    Проект от: 57 150
    Этажей 1
    Санузлы 2
    Спальни 3
    Смотреть

    Как узнать стоимость дома

    back
    Оставляете заявку
    Вы заполняете форму на сайте или звоните нам. Менеджер Лайвкрафт связывается с вами для уточнения деталей: тип дома, площадь, материалы, участок строительства.
    back
    Консультация и подбор решения
    Наш специалист помогает выбрать оптимальный тип дома и конструкцию с учётом бюджета, сроков и целей — будь то дом для постоянного проживания или дача.
    back
    Расчёт предварительной стоимости
    Инженер делает первичный расчёт стоимости строительства по вашим параметрам: фундамент, коробка, кровля, отделка. Вы получаете смету с разбивкой по этапам.
    back
    Корректировка и утверждение сметы
    При необходимости вносим изменения — например, замену материалов или сокращение этапов. После согласования формируется окончательная фиксированная смета.
    back
    Заключение договора и старт работ
    После утверждения сметы заключаем официальный договор с гарантией. Вы получаете прозрачный график и точную стоимость — без скрытых расходов.

    Заказать конусльтацию по:БМ 85

    Фото 1 БМ 85


      Наши
      контакты

      Дмитров
      Опорный проезд 28Б
      (индустриальный парк Ниагара)
      9:00 до 18:00

      Корзина