4.9
Рейтинг на основании 120 отзывов
Дмитров
Опорный проезд 28Б
(индустриальный парк Ниагара)
Бренд "Дмитров-Дело" c 2008 года на рынке строительства в Дмитрове
Звоните 9:00 до 18:00 8 (915) 055-33-61
Бренд "Дмитров-Дело" c 2008 года на рынке строительства в Дмитрове

БП-84 Барн мини

Стоимость проекта от:
37 350 ₽
БЕСПЛАТНО! ПРИ ЗАКАЗЕ СТРОИТЕЛЬСТВА
Стоимость строительства от:
5 861 460 ₽
Артикул ART-13162
Дата 25.12.2025
Архитектурный стиль Барнхаус
Количество надземных этажей 1
Круглогодичное проживание Да
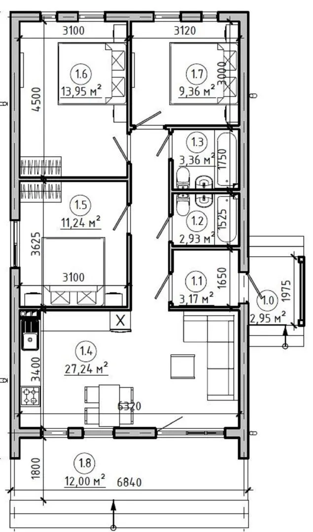
Площадь дома 83 м2
Санузлы 2
Спальни 3

Описание

Небольшой, но изысканный дом БП‑84 «Барн‑мини» воплощает философию компактного, но комфортабельного проживания. Это одногодовое, круглогодичное убежище, выполненное в стиле барнхаус, что придаёт ему характерную простоту и ую́т, словно старый надёжный сарай, но в приправе современной архитектуры. Внутреннее пространство — одна свободная открытая площадка, где каждая стена, скала, элемент интерьера служит только и только тому, чтобы радовать вас уютом и практичностью. Прямое обращение к естественной световой среде создаёт ощущение свободы и простора, а строгий каркас из сборного железобетона обеспечивает несравнённую прочность и быструю доставку конструкций на площадку. Ключевое преимущество дома – просторная терраса, где можно провести вечерний барбекю, выращивать огородные культуры или просто наслаждаться свежим воздухом в любое время года. Двускатный крыш, защищённый от ветров и непогоды, придаёт зданию элегантный профиль и классический «барыжный» вид. Без балконов, веранд и пристроенного гаража вы получаете чистое и лаконичное жильё, позволяющее концентрироваться на настоящих вещах: семье, домашних любимцах и тех моментах, которые делают жизнь полной. Этот дом – идеальное решение для тех, кто хочет жить в атмосфере домашнего тепла, не отказываясь при этом от современных удобств и надежности. Присоединитесь к сообществу тех, кто ценит простоту, но не делает компромиссов с комфортом.

Характеристики дома

Архитектурный стиль
Автоматизированное регулирование параметров теплоносителя
Нет
Балконы/лоджии
Отсутствуют
Чердачное помещение
Нет
Датчики протечки воды
Нет
Эксплуатируемая или зеленая кровля
Нет
Электроснабжение
Индивидуальное
Газоснабжение
Не предусмотрено
Изоляция воздушного шума
Нет
Камин
Нет
Класс энергоэффективности
-
Класс энергосбережения
-
Количество надземных этажей
1
Круглогодичное проживание
Да
Материал кровли
Металлочерепица
Материал перекрытий
Деревянные
Материал внешних стен
Материал внутренних перегородок
Модульное строительство с конструкциями заводского изготовления
Нет
Объем надземной части
324 м3
Основной материал фасадов
Штукатурка
Отопление
Не предусмотрено
Площадь дома
83 м2
Площадь застройки
107 м2
Подвальное помещение
Нет
Показатель компактности здания
-
Приборы учета тепловой энергии
Нет
Пристроенный гараж/крытая автостоянка
Нет
Противопожарная система
Нет
Санузлы
2
Совмещенная кухня-гостиная
Да
Спальни
3
Терраса
Да
Тип фундамента
Плитный
Тип кровли
Толщина внешних стен
270 мм
Толщина внутренних перегородок
100 мм
Улучшенные шумовые характеристики
Да
Вентиляция
Естественная
Веранда
Нет
Водоотведение
Не предусмотрено
Водоснабжение
Индивидуальное
Высота дома
4.5 м
Высота потолков
4 м

Планировка

Фасад дома

Александр

Закажите выезд инженера

Александр

Выездной инженер
Закажите выезд инженера для точной диагностики и профессиональной консультации по инженерным системам. Специалист приедет в удобное время, проведёт осмотр, рассчитает стоимость работ и подберёт оптимальные решения для вашего дома.


    Похожие проекты

    Ипотека и
    рассрочка
    CN 127
    Стоимость от:
    9 315 680
    Проект от: 55 800
    Этажей 1
    Санузлы 2
    Спальни 3
    Смотреть
    Ипотека и
    рассрочка
    Дом по проекту №26
    Стоимость от:
    8 040 340
    Проект от: 48 150
    Этажей 1
    Санузлы 1
    Спальни 3
    Смотреть
    Ипотека и
    рассрочка
    ПРЕМЬЕР
    Стоимость от:
    6 310 810
    Проект от: 46 350
    Этажей 1
    Санузлы 2
    Спальни 3
    Смотреть
    Ипотека и
    рассрочка
    НОРДИКА
    Стоимость от:
    5 797 000
    Проект от: 45 000
    Этажей 1
    Санузлы 2
    Спальни 3
    Смотреть
    Ипотека и
    рассрочка
    Жемчужная 115
    Стоимость от:
    8 865 560
    Проект от: 53 100
    Этажей 1
    Санузлы 2
    Спальни 3
    Смотреть
    Ипотека и
    рассрочка
    Шолохова
    Стоимость от:
    4 514 400
    Проект от: 27 000
    Этажей 1
    Санузлы 1
    Спальни 3
    Смотреть

    Как узнать стоимость дома

    back
    Оставляете заявку
    Вы заполняете форму на сайте или звоните нам. Менеджер Лайвкрафт связывается с вами для уточнения деталей: тип дома, площадь, материалы, участок строительства.
    back
    Консультация и подбор решения
    Наш специалист помогает выбрать оптимальный тип дома и конструкцию с учётом бюджета, сроков и целей — будь то дом для постоянного проживания или дача.
    back
    Расчёт предварительной стоимости
    Инженер делает первичный расчёт стоимости строительства по вашим параметрам: фундамент, коробка, кровля, отделка. Вы получаете смету с разбивкой по этапам.
    back
    Корректировка и утверждение сметы
    При необходимости вносим изменения — например, замену материалов или сокращение этапов. После согласования формируется окончательная фиксированная смета.
    back
    Заключение договора и старт работ
    После утверждения сметы заключаем официальный договор с гарантией. Вы получаете прозрачный график и точную стоимость — без скрытых расходов.

    Заказать конусльтацию по:БП-84 Барн мини

    Фото 1 БП-84 Барн мини


      Наши
      контакты

      Дмитров
      Опорный проезд 28Б
      (индустриальный парк Ниагара)
      9:00 до 18:00

      Корзина