4.9
Рейтинг на основании 120 отзывов
Дмитров
Опорный проезд 28Б
(индустриальный парк Ниагара)
Бренд "Дмитров-Дело" c 2008 года на рынке строительства в Дмитрове
Звоните 9:00 до 18:00 8 (915) 055-33-61
Бренд "Дмитров-Дело" c 2008 года на рынке строительства в Дмитрове

Cветлый Яр 115

Стоимость проекта от:
51 750 ₽
Стоимость строительства от:
7 586 400 ₽
Артикул ART-14526
Дата 25.12.2025
Архитектурный стиль Классический
Количество надземных этажей 2
Круглогодичное проживание Да
Площадь дома 115 м2
Санузлы 2
Спальни 4

Описание

**Светлый Яр 115** – это воплощение уюта и простора, где каждая деталь продумана, чтобы дарить вам ощущение дома в любой момент года. В классическом исполнении, две надземные этажи гармонично соединяются с мягкой светлой фасадной отделкой из профилированного бруса, создавая ощущение естественной тепла и благородства. Просторные окна, словно зеркала, открывают вид на зеленые просторы, а один уютный балкон приглашает на душевные вечера под звёздами. Никаких лишних сложностей – без пристроенного гаража, чердака и веранды – и всё это под комбинированную крышу, которая не только защищает от непогоды, но и добавляет архитектурному ансамблю нежный шарм. На второй план выведена удобная терраса, где можно наслаждаться свежим воздухом, ароматами сада и спокойствием своего уголка. Круглогодичное проживание гарантирует комфорт в любое время года: изоляция и теплоизоляция профилированного бруса создают идеальный микроклимат внутри. Каждый уголок "Светлого Яра 115" продуман до мелочей, чтобы вы смогли сразу почувствовать, что здесь ваш дом, где всегда светло и тёпло. Это место, где стиль и комфорт идут рука об руку, а каждый день начинается с улыбки, открывающей горизонты вашего уюта.

Характеристики дома

Архитектурный стиль
Классический
Автоматизированное регулирование параметров теплоносителя
Да
Балконы/лоджии
1
Чердачное помещение
Нет
Датчики протечки воды
Нет
Эксплуатируемая или зеленая кровля
Нет
Электроснабжение
Центральное
Газоснабжение
Не предусмотрено
Изоляция воздушного шума
Да
Камин
Нет
Класс энергоэффективности
A
Класс энергосбережения
A
Количество надземных этажей
2
Круглогодичное проживание
Да
Материал кровли
Металлочерепица
Материал перекрытий
Деревянные
Материал внешних стен
Профилированный брус
Материал внутренних перегородок
Деревянные
Модульное строительство с конструкциями заводского изготовления
Нет
Объем надземной части
300 м3
Основной материал фасадов
Дерево
Отопление
Индивидуальное
Площадь дома
115 м2
Площадь застройки
89 м2
Подвальное помещение
Нет
Показатель компактности здания
0.89
Приборы учета тепловой энергии
Да
Пристроенный гараж/крытая автостоянка
Нет
Противопожарная система
Нет
Санузлы
2
Совмещенная кухня-гостиная
Нет
Спальни
4
Терраса
Да
Тип фундамента
Свайный
Тип кровли
Комбинированная
Толщина внешних стен
170 мм
Толщина внутренних перегородок
100 мм
Улучшенные шумовые характеристики
Да
Вентиляция
Естественная
Веранда
Нет
Водоотведение
Центральное
Водоснабжение
Центральное
Высота дома
6.26 м
Высота потолков
2.7 м

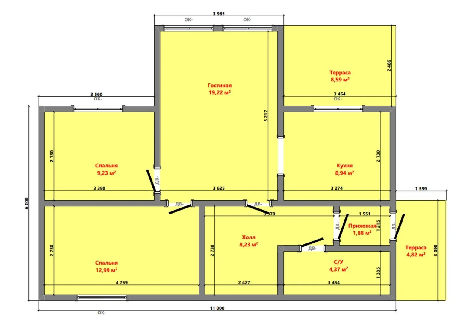
Планировка

Фасад дома

Александр

Закажите выезд инженера

Александр

Выездной инженер
Закажите выезд инженера для точной диагностики и профессиональной консультации по инженерным системам. Специалист приедет в удобное время, проведёт осмотр, рассчитает стоимость работ и подберёт оптимальные решения для вашего дома.


    Похожие проекты

    Ипотека и
    рассрочка
    Шолохова
    Стоимость от:
    4 514 400
    Проект от: 27 000
    Этажей 1
    Санузлы 1
    Спальни 3
    Смотреть
    Ипотека и
    рассрочка
    СUBA 70 — Дом под ключ
    Стоимость от:
    4 907 760
    Проект от: 39 600
    Этажей 1
    Санузлы 2
    Спальни 3
    Смотреть
    Ипотека и
    рассрочка
    Загородный дом ПСК-146
    Стоимость от:
    8 761 610
    Проект от: 64 350
    Этажей 1
    Санузлы 2
    Спальни 3
    Смотреть
    Ипотека и
    рассрочка
    Хвойный
    Стоимость от:
    8 545 020
    Проект от: 54 450
    Этажей 1
    Санузлы 2
    Спальни 3
    Смотреть
    Ипотека и
    рассрочка
    Загородный дом «Славянка»
    Стоимость от:
    8 842 240
    Проект от: 57 150
    Этажей 1
    Санузлы 2
    Спальни 3
    Смотреть
    Ипотека и
    рассрочка
    Линейка: «Современная Европа». Проект «Добрый Дом»
    Стоимость от:
    8 042 640
    Проект от: 49 950
    Этажей 2
    Санузлы 2
    Спальни 4
    Смотреть

    Как узнать стоимость дома

    back
    Оставляете заявку
    Вы заполняете форму на сайте или звоните нам. Менеджер Лайвкрафт связывается с вами для уточнения деталей: тип дома, площадь, материалы, участок строительства.
    back
    Консультация и подбор решения
    Наш специалист помогает выбрать оптимальный тип дома и конструкцию с учётом бюджета, сроков и целей — будь то дом для постоянного проживания или дача.
    back
    Расчёт предварительной стоимости
    Инженер делает первичный расчёт стоимости строительства по вашим параметрам: фундамент, коробка, кровля, отделка. Вы получаете смету с разбивкой по этапам.
    back
    Корректировка и утверждение сметы
    При необходимости вносим изменения — например, замену материалов или сокращение этапов. После согласования формируется окончательная фиксированная смета.
    back
    Заключение договора и старт работ
    После утверждения сметы заключаем официальный договор с гарантией. Вы получаете прозрачный график и точную стоимость — без скрытых расходов.

    Заказать конусльтацию по:Cветлый Яр 115

    Фото 1 Cветлый Яр 115


      Наши
      контакты

      Дмитров
      Опорный проезд 28Б
      (индустриальный парк Ниагара)
      9:00 до 18:00