4.9
Рейтинг на основании 120 отзывов
Дмитров
Опорный проезд 28Б
(индустриальный парк Ниагара)
Бренд "Дмитров-Дело" c 2008 года на рынке строительства в Дмитрове
Звоните 9:00 до 18:00 8 (915) 055-33-61
Бренд "Дмитров-Дело" c 2008 года на рынке строительства в Дмитрове

Д-140

Стоимость проекта от:
53 100 ₽
БЕСПЛАТНО! ПРИ ЗАКАЗЕ СТРОИТЕЛЬСТВА
Стоимость строительства от:
8 099 520 ₽
Артикул ART-10910
Дата 25.12.2025
Архитектурный стиль Классический
Количество надземных этажей 2
Круглогодичное проживание Да
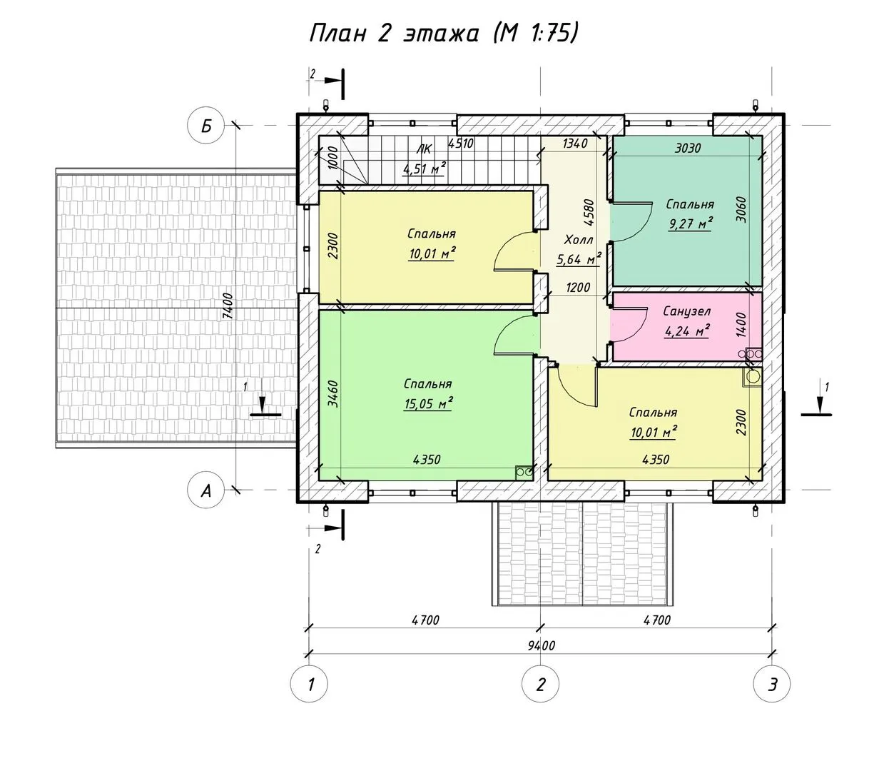
Площадь дома 118 м2
Санузлы 2
Спальни 4

Описание

Дом D‑140 – это элегантное сочетание классической эстетики и практичности, созданное специально для того, чтобы каждый день проживал в ощущении уюта и спокойствия. Высокий две надземных этажа, выполненные из газобетонных блоков, дарят тепло и шумоизоляцию, а длинноугольная, двускатная крыша придаёт зданию особую выразительность. Вокруг дома нет лишних конструкций: гараж, веранда и балконы отсутствуют, что позволяет сосредоточиться на чистой, гармоничной линии фасада и беззвучном отдыхе в круглый год. Главное достоинство – просторное чердачное помещение, которое можно превратить в уютный уголок для творчества, тихой игровой зоны или практичного склада. На второй план выхаживает просторная траса, где можно наслаждаться рассветами и закатами в компании любимых людей. Внутренний план дома продуман так, чтобы все зоны легко сочетались между собой, создавая атмосферу свободного пространства, но при этом обеспечивая достаточную приватность. Сочетание классического дизайна, энергоэффективных материалов и продуманной функциональности делает D‑140 идеальным выбором для тех, кто ценит сочетание стиля, комфорта и практичности. Это дом, способный стать вашим долгожданным убежищем, где каждый день начнётся с приятного восхода солнечных лучей, а закончится под звёздным небом, ощущая себя действительно дома.

Характеристики дома

Архитектурный стиль
Автоматизированное регулирование параметров теплоносителя
-
Балконы/лоджии
Отсутствуют
Чердачное помещение
Да
Датчики протечки воды
-
Эксплуатируемая или зеленая кровля
-
Электроснабжение
Индивидуальное
Газоснабжение
Индивидуальное
Изоляция воздушного шума
-
Камин
Нет
Класс энергоэффективности
-
Класс энергосбережения
-
Количество надземных этажей
2
Круглогодичное проживание
Да
Материал кровли
Битумная черепица
Материал перекрытий
Деревянные по металлическим балкам
Материал внешних стен
Материал внутренних перегородок
Кирпичные
Модульное строительство с конструкциями заводского изготовления
Нет
Объем надземной части
336 м3
Основной материал фасадов
Штукатурка
Отопление
Индивидуальное
Площадь дома
118 м2
Площадь застройки
185 м2
Подвальное помещение
Нет
Показатель компактности здания
-
Приборы учета тепловой энергии
-
Пристроенный гараж/крытая автостоянка
Нет
Противопожарная система
Нет
Санузлы
2
Совмещенная кухня-гостиная
Да
Спальни
4
Терраса
Да
Тип фундамента
Плитный
Тип кровли
Толщина внешних стен
500 мм
Толщина внутренних перегородок
120 мм
Улучшенные шумовые характеристики
-
Вентиляция
Естественная
Веранда
Нет
Водоотведение
Локальные очистные сооружения
Водоснабжение
Индивидуальное
Высота дома
8 м
Высота потолков
2.85 м

Планировка

Фасад дома

Александр

Закажите выезд инженера

Александр

Выездной инженер
Закажите выезд инженера для точной диагностики и профессиональной консультации по инженерным системам. Специалист приедет в удобное время, проведёт осмотр, рассчитает стоимость работ и подберёт оптимальные решения для вашего дома.


    Похожие проекты

    Ипотека и
    рассрочка
    Next-94
    Стоимость от:
    7 276 280
    Проект от: 42 300
    Этажей 1
    Санузлы 2
    Спальни 3
    Смотреть
    Ипотека и
    рассрочка
    Одноэтажный дом «Просперо»
    Стоимость от:
    7 324 240
    Проект от: 41 400
    Этажей 1
    Санузлы 1
    Спальни 2
    Смотреть
    Ипотека и
    рассрочка
    Двухэтажный дом с навесом БРАИТ-32К
    Стоимость от:
    10 916 640
    Проект от: 65 700
    Этажей 2
    Санузлы 2
    Спальни 4
    Смотреть
    Ипотека и
    рассрочка
    960А «Serenity» — проект одноэтажного дома, мастре спальня, 4 спальни
    Стоимость от:
    12 923 460
    Проект от: 82 350
    Этажей 1
    Санузлы 2
    Спальни 4
    Смотреть
    Ипотека и
    рассрочка
    Астрид_»Open space»
    Стоимость от:
    9 697 500
    Проект от: 67 500
    Этажей 2
    Санузлы 2
    Спальни 3
    Смотреть
    Ипотека и
    рассрочка
    Ангара
    Стоимость от:
    5 458 420
    Проект от: 38 700
    Этажей 1
    Санузлы 1
    Спальни 2
    Смотреть

    Как узнать стоимость дома

    back
    Оставляете заявку
    Вы заполняете форму на сайте или звоните нам. Менеджер Лайвкрафт связывается с вами для уточнения деталей: тип дома, площадь, материалы, участок строительства.
    back
    Консультация и подбор решения
    Наш специалист помогает выбрать оптимальный тип дома и конструкцию с учётом бюджета, сроков и целей — будь то дом для постоянного проживания или дача.
    back
    Расчёт предварительной стоимости
    Инженер делает первичный расчёт стоимости строительства по вашим параметрам: фундамент, коробка, кровля, отделка. Вы получаете смету с разбивкой по этапам.
    back
    Корректировка и утверждение сметы
    При необходимости вносим изменения — например, замену материалов или сокращение этапов. После согласования формируется окончательная фиксированная смета.
    back
    Заключение договора и старт работ
    После утверждения сметы заключаем официальный договор с гарантией. Вы получаете прозрачный график и точную стоимость — без скрытых расходов.

    Заказать конусльтацию по:Д-140

    Фото 1 Д-140


      Наши
      контакты

      Дмитров
      Опорный проезд 28Б
      (индустриальный парк Ниагара)
      9:00 до 18:00

      Корзина