4.9
Рейтинг на основании 120 отзывов
Дмитров
Опорный проезд 28Б
(индустриальный парк Ниагара)
Бренд "Дмитров-Дело" c 2008 года на рынке строительства в Дмитрове
Звоните 9:00 до 18:00 8 (915) 055-33-61
Бренд "Дмитров-Дело" c 2008 года на рынке строительства в Дмитрове

D-157

Стоимость проекта от:
73 350 ₽
БЕСПЛАТНО! ПРИ ЗАКАЗЕ СТРОИТЕЛЬСТВА
Стоимость строительства от:
11 799 120 ₽
Артикул ART-15379
Дата 25.12.2025
Архитектурный стиль Классический
Количество надземных этажей 2
Круглогодичное проживание Да
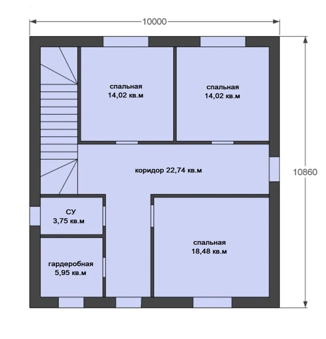
Площадь дома 163 м2
Санузлы 2
Спальни 3

Описание

**Дом D‑157 – ваш уютный уголок в сердце классического архитектурного очарования** Витая древовидной архитектурой и строгим кирпичным фасадом, D‑157 приглашает в мир тепла и гармонии. Два надземных этажа расцветают естественным светом, создавая просторные комнаты, в которых каждая деталь работает на ваше благо. Классический стиль подчёркивает элегантность и утонченность интерьера, а четырёхскатная, вальмовая крыша не только придаёт дому статус и прочность, но и защищает его от капризов погоды. Благодаря полной проработке, дом готов к круглогодичному проживанию – с холодной зимой в тёплом интерьере, с летним солнечным светом, а также в любое время, когда вы захотите уютно устроиться в своём уголке. **Терраса – ваш личный оазис для отдыха** Хотя у дома нет балконов, лоджий и веранд, у него есть просторная терраса, которая раскрывает наружный мир и даёт возможность наслаждаться ароматом свежего воздуха. Здесь, под открытым небом, ваши дети могут играть, а взрослые – устроить пикник, а по вечерам – под гудок звёзд и лёгкое шуршание листьев. Тераса – это идеальная площадка для встречи с друзьями, семейных ужинов, чтения книги и просто отдыха, когда хочется уйти от суеты повседневной жизни. **Всё сказано, но ничего не скрыто** Дом построен из кирпича – надёжного и долговечного материала, который защищает вас от громких звуков и изобличает ваш стиль. Отсутствие гаража и прицелов в стиле "скрытая автостоянка" позволило сосредоточиться на создании интерьера, где каждая стена, каждый элемент планировки говорит о комфорте и уюте. Дизайн D‑157 – это классика, в которой вы ощутите себя настоящим хозяином с каждым шагом. Приглашаем вас открыть для себя новый уровень жизни в этом неповторимом доме, где каждая деталь создана для вашего счастья.

Характеристики дома

Архитектурный стиль
Автоматизированное регулирование параметров теплоносителя
Нет
Балконы/лоджии
Отсутствуют
Чердачное помещение
Нет
Датчики протечки воды
Нет
Эксплуатируемая или зеленая кровля
Нет
Электроснабжение
Индивидуальное
Газоснабжение
Центральное
Изоляция воздушного шума
Да
Камин
Нет
Класс энергоэффективности
A
Класс энергосбережения
A
Количество надземных этажей
2
Круглогодичное проживание
Да
Материал кровли
Металлочерепица
Материал перекрытий
Сборные железобетонные многопустотные плиты
Материал внешних стен
Материал внутренних перегородок
Кирпичные
Модульное строительство с конструкциями заводского изготовления
Нет
Объем надземной части
1263 м3
Основной материал фасадов
Облицовочный кирпич
Отопление
Индивидуальное
Площадь дома
163 м2
Площадь застройки
160 м2
Подвальное помещение
Да
Показатель компактности здания
0.82
Приборы учета тепловой энергии
Нет
Пристроенный гараж/крытая автостоянка
Нет
Противопожарная система
Нет
Санузлы
2
Совмещенная кухня-гостиная
Да
Спальни
3
Терраса
Да
Тип фундамента
Свайно-ростверковый
Толщина внешних стен
420 мм
Толщина внутренних перегородок
120 мм
Улучшенные шумовые характеристики
Да
Вентиляция
Естественная
Веранда
Нет
Водоотведение
Локальные очистные сооружения
Водоснабжение
Индивидуальное
Высота дома
10 м
Высота потолков
3 м

Планировка

Фасад дома

Александр

Закажите выезд инженера

Александр

Выездной инженер
Закажите выезд инженера для точной диагностики и профессиональной консультации по инженерным системам. Специалист приедет в удобное время, проведёт осмотр, рассчитает стоимость работ и подберёт оптимальные решения для вашего дома.


    Похожие проекты

    Ипотека и
    рассрочка
    Небольшой одноуровневый частный дом S3-100 (Z191)
    Стоимость от:
    7 959 600
    Проект от: 45 000
    Этажей 1
    Санузлы 1
    Спальни 2
    Смотреть
    Ипотека и
    рассрочка
    Авторский проект «Тривор»
    Стоимость от:
    6 426 420
    Проект от: 40 950
    Этажей 1
    Санузлы 1
    Спальни 2
    Смотреть
    Ипотека и
    рассрочка
    Двухэтажный дом с верхней террасой и большим гаражом S3-278 (Zx22)
    Стоимость от:
    28 807 680
    Проект от: 176 400
    Этажей 2
    Санузлы 5
    Спальни 5
    Смотреть
    Ипотека и
    рассрочка
    КД «Краснодар №7-22»
    Стоимость от:
    7 963 260
    Проект от: 59 850
    Этажей 2
    Санузлы 2
    Спальни 4
    Смотреть
    Ипотека и
    рассрочка
    Йонкерс
    Стоимость от:
    8 033 700
    Проект от: 54 900
    Этажей 2
    Санузлы 2
    Спальни 4
    Смотреть
    Ипотека и
    рассрочка
    Одноэтажный дом из клееного бруса 3-20-3
    Стоимость от:
    8 568 450
    Проект от: 60 750
    Этажей 1
    Санузлы 2
    Спальни 3
    Смотреть

    Как узнать стоимость дома

    back
    Оставляете заявку
    Вы заполняете форму на сайте или звоните нам. Менеджер Лайвкрафт связывается с вами для уточнения деталей: тип дома, площадь, материалы, участок строительства.
    back
    Консультация и подбор решения
    Наш специалист помогает выбрать оптимальный тип дома и конструкцию с учётом бюджета, сроков и целей — будь то дом для постоянного проживания или дача.
    back
    Расчёт предварительной стоимости
    Инженер делает первичный расчёт стоимости строительства по вашим параметрам: фундамент, коробка, кровля, отделка. Вы получаете смету с разбивкой по этапам.
    back
    Корректировка и утверждение сметы
    При необходимости вносим изменения — например, замену материалов или сокращение этапов. После согласования формируется окончательная фиксированная смета.
    back
    Заключение договора и старт работ
    После утверждения сметы заключаем официальный договор с гарантией. Вы получаете прозрачный график и точную стоимость — без скрытых расходов.

    Заказать конусльтацию по:D-157

    Фото 1 D-157


      Наши
      контакты

      Дмитров
      Опорный проезд 28Б
      (индустриальный парк Ниагара)
      9:00 до 18:00

      Корзина