4.9
Рейтинг на основании 120 отзывов
Дмитров
Опорный проезд 28Б
(индустриальный парк Ниагара)
Бренд "Дмитров-Дело" c 2008 года на рынке строительства в Дмитрове
Звоните 9:00 до 18:00 8 (915) 055-33-61
Бренд "Дмитров-Дело" c 2008 года на рынке строительства в Дмитрове

БГ 38

Стоимость проекта от:
57 600 ₽
БЕСПЛАТНО! ПРИ ЗАКАЗЕ СТРОИТЕЛЬСТВА
Стоимость строительства от:
8 785 920 ₽
Артикул ART-6289
Дата 26.12.2025
Архитектурный стиль Скандинавский
Количество надземных этажей 2
Круглогодичное проживание Да
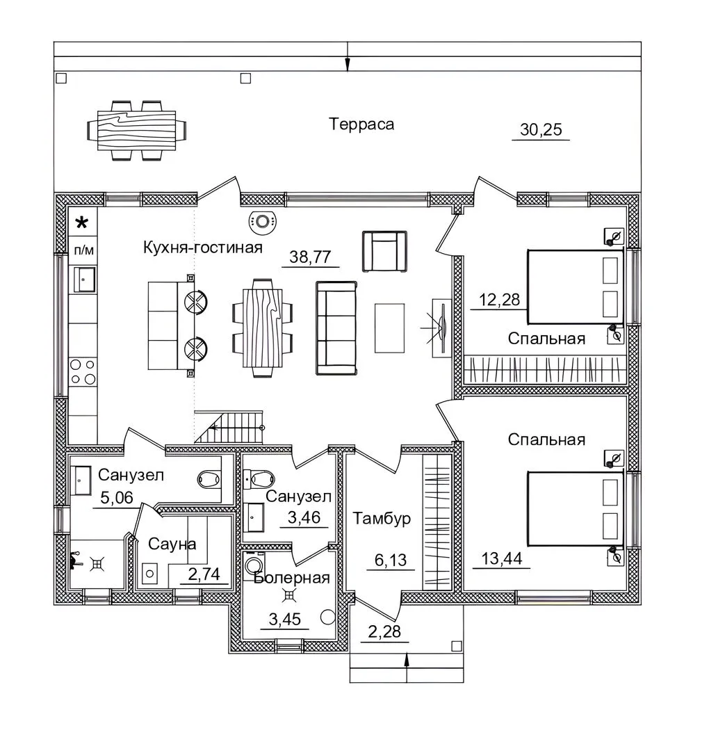
Площадь дома 128 м2
Санузлы 2
Спальни 2

Описание

**БГ 38 – ваш уютный уголок в центре современного комфорта** Эта двухэтажная домика в скандинавском стиле сочетает простоту форм с максимальной функциональностью. Непрерывное круглогодичное проживание гарантировано благодаря продуманной теплоизоляции каркасно‑панельной конструкции и комбинированной кровле, которая эффективно защищает от любых погодных условий. Внутреннее пространство открыто, без лишних перегородок, и наполнено естественным светом, создавая ощущение простора и спокойствия. Простая, но элегантная отделка подчёркивает современные линии, а большое окно на первом этаже дарит вид на зеленую окрестность. Не требуется отдельный гараж или веранда – все, что нужно, уже есть дома. Вместо него предусмотрена изолированная, крытая автостоянка, а уютную террасу, открывающуюся с крыши, можно использовать как мини‑патию для летних барбекю, отдыха и наблюдения за облаками. Лоджии и балконы при сохранении скандинавского минимализма кажутся лишними, ведь в доме уже есть все для комфортной жизни. Просторные, светлые комнаты, продуманный план помещений и открытая веранда на верхнем этаже создают идеальное пространство как для семьи, так и для тех, кто ценит функциональность без лишних украшений. БГ 38 – это не просто дом, а ваш надёжный и красивый приют, где каждая деталь продумана до мелочей. Он приглашает к спокойной жизни, где тепло встречает вас в любое время года, а просторы вдохновляют на творчество и отдых. Выбирая этот дом, вы выбираете баланс эстетики и практичности, созданный специально для тех, кто ценит качественную жизнь в современном исполнении.

Характеристики дома

Архитектурный стиль
Автоматизированное регулирование параметров теплоносителя
Нет
Балконы/лоджии
Отсутствуют
Чердачное помещение
Нет
Датчики протечки воды
Нет
Эксплуатируемая или зеленая кровля
Нет
Электроснабжение
2 варианта
Газоснабжение
2 варианта
Изоляция воздушного шума
Нет
Камин
Нет
Класс энергоэффективности
-
Класс энергосбережения
-
Количество надземных этажей
2
Круглогодичное проживание
Да
Материал кровли
Битумная черепица
Материал перекрытий
Деревянные по металлическим балкам
Материал внешних стен
Материал внутренних перегородок
Деревянные
Модульное строительство с конструкциями заводского изготовления
Нет
Объем надземной части
516 м3
Основной материал фасадов
Дерево
Отопление
2 варианта
Площадь дома
128 м2
Площадь застройки
147 м2
Подвальное помещение
Нет
Показатель компактности здания
-
Приборы учета тепловой энергии
Нет
Пристроенный гараж/крытая автостоянка
Нет
Противопожарная система
Нет
Санузлы
2
Совмещенная кухня-гостиная
Да
Спальни
2
Терраса
Да
Тип фундамента
Плитный
Тип кровли
Толщина внешних стен
350 мм
Толщина внутренних перегородок
300 мм
Улучшенные шумовые характеристики
Нет
Вентиляция
Рекуперация
Веранда
Нет
Водоотведение
Локальные очистные сооружения
Водоснабжение
2 варианта
Высота дома
4.82 м
Высота потолков
2.5 м

Планировка

Фасад дома

Александр

Закажите выезд инженера

Александр

Выездной инженер
Закажите выезд инженера для точной диагностики и профессиональной консультации по инженерным системам. Специалист приедет в удобное время, проведёт осмотр, рассчитает стоимость работ и подберёт оптимальные решения для вашего дома.


    Похожие проекты

    Ипотека и
    рассрочка
    Авторский проект «Готфел»
    Стоимость от:
    7 619 760
    Проект от: 49 050
    Этажей 2
    Санузлы 1
    Спальни 2
    Смотреть
    Ипотека и
    рассрочка
    Двухэтажный кирпичный дом ТП-104
    Стоимость от:
    6 516 000
    Проект от: 40 500
    Этажей 2
    Санузлы 2
    Спальни 4
    Смотреть
    Ипотека и
    рассрочка
    Двухэтажный дом из арболита- 101 м2,- 4 спальни, 2 с.у.-Ельдигино
    Стоимость от:
    7 625 040
    Проект от: 49 950
    Этажей 2
    Санузлы 2
    Спальни 4
    Смотреть
    Ипотека и
    рассрочка
    Времена Года. Зима, лето, весна, осень. Комплектация Золото.
    Стоимость от:
    474 300
    Проект от: 45 900
    Этажей 2
    Санузлы 2
    Спальни 2
    Смотреть
    Ипотека и
    рассрочка
    Проект дома КС-6
    Стоимость от:
    11 851 180
    Проект от: 67 050
    Этажей 1
    Санузлы 2
    Спальни 3
    Смотреть
    Ипотека и
    рассрочка
    АР 125 второй свет
    Стоимость от:
    8 190 380
    Проект от: 49 050
    Этажей 1
    Санузлы 2
    Спальни 3
    Смотреть

    Как узнать стоимость дома

    back
    Оставляете заявку
    Вы заполняете форму на сайте или звоните нам. Менеджер Лайвкрафт связывается с вами для уточнения деталей: тип дома, площадь, материалы, участок строительства.
    back
    Консультация и подбор решения
    Наш специалист помогает выбрать оптимальный тип дома и конструкцию с учётом бюджета, сроков и целей — будь то дом для постоянного проживания или дача.
    back
    Расчёт предварительной стоимости
    Инженер делает первичный расчёт стоимости строительства по вашим параметрам: фундамент, коробка, кровля, отделка. Вы получаете смету с разбивкой по этапам.
    back
    Корректировка и утверждение сметы
    При необходимости вносим изменения — например, замену материалов или сокращение этапов. После согласования формируется окончательная фиксированная смета.
    back
    Заключение договора и старт работ
    После утверждения сметы заключаем официальный договор с гарантией. Вы получаете прозрачный график и точную стоимость — без скрытых расходов.

    Заказать конусльтацию по:БГ 38

    Фото 1 БГ 38


      Наши
      контакты

      Дмитров
      Опорный проезд 28Б
      (индустриальный парк Ниагара)
      9:00 до 18:00

      Корзина