4.9
Рейтинг на основании 120 отзывов
Дмитров
Опорный проезд 28Б
(индустриальный парк Ниагара)
Бренд "Дмитров-Дело" c 2008 года на рынке строительства в Дмитрове
Звоните 9:00 до 18:00 8 (915) 055-33-61
Бренд "Дмитров-Дело" c 2008 года на рынке строительства в Дмитрове

Времена Года. Зима, лето, весна, осень. Комплектация Золото.

Стоимость проекта от:
45 900 ₽
БЕСПЛАТНО! ПРИ ЗАКАЗЕ СТРОИТЕЛЬСТВА
Стоимость строительства от:
474 300 ₽
Артикул ART-4536
Дата 26.12.2025
Архитектурный стиль Русский
Количество надземных этажей 2
Круглогодичное проживание Да
Площадь дома 102 м2
Санузлы 2
Спальни 2

Описание

**Времена Года** – дом, в котором каждая пора года обретается в своём ритме. Величественная четырехскатная (вальмовая) крыша украшает фасад, изящно соединяя русскую традицию и современные технологии. Внутреннее пространство, обустроенное в стиле «Золото», раскрывает богатую палитру материалов: мягкие ковры, богатые деревянные детали из CLT‑панелей, и тепло живого камина, создающее уют даже в самые холодные зими. Двухэтажный корпус с верандой и двумя балконами-лоджиями открывает панорамные виды на живописные окрестности, где весна распускает свои цветы, лето дарит долгие закаты, а осень и зима превращают вид на ландшафт в сказку белых и огненных оттенков. Круглогодичное проживание стало практичностью: тепло от панельных стен, утепление крыш, и надежные материалы защищают дом от любых погодных сюрпризов. Каждый элемент – от изысканного декоративного орнамента до простоты конструкций – продуман так, чтобы в доме всегда чувствовалась домашняя гармония и безопасность. «Времена Года» – это ваш персональный уголок, где роскошь и функциональность не разлучаются, а каждая пора года обретает свой неповторимый облик. Приглашаем вас открыть дверь в дом, где каждое мгновение наполнено согревающими традициями и современным комфортом.

Характеристики дома

Архитектурный стиль
Автоматизированное регулирование параметров теплоносителя
-
Балконы/лоджии
2
Чердачное помещение
Нет
Датчики протечки воды
-
Эксплуатируемая или зеленая кровля
-
Электроснабжение
Центральное
Газоснабжение
Не предусмотрено
Изоляция воздушного шума
-
Камин
Да
Класс энергоэффективности
-
Класс энергосбережения
-
Количество надземных этажей
2
Круглогодичное проживание
Да
Материал кровли
Фальцевая кровля кровля из оцинкованных стальных листов
Материал перекрытий
Деревянные
Материал внешних стен
Материал внутренних перегородок
Гипсокартонные
Модульное строительство с конструкциями заводского изготовления
Нет
Объем надземной части
510 м3
Основной материал фасадов
Дерево
Отопление
Индивидуальное
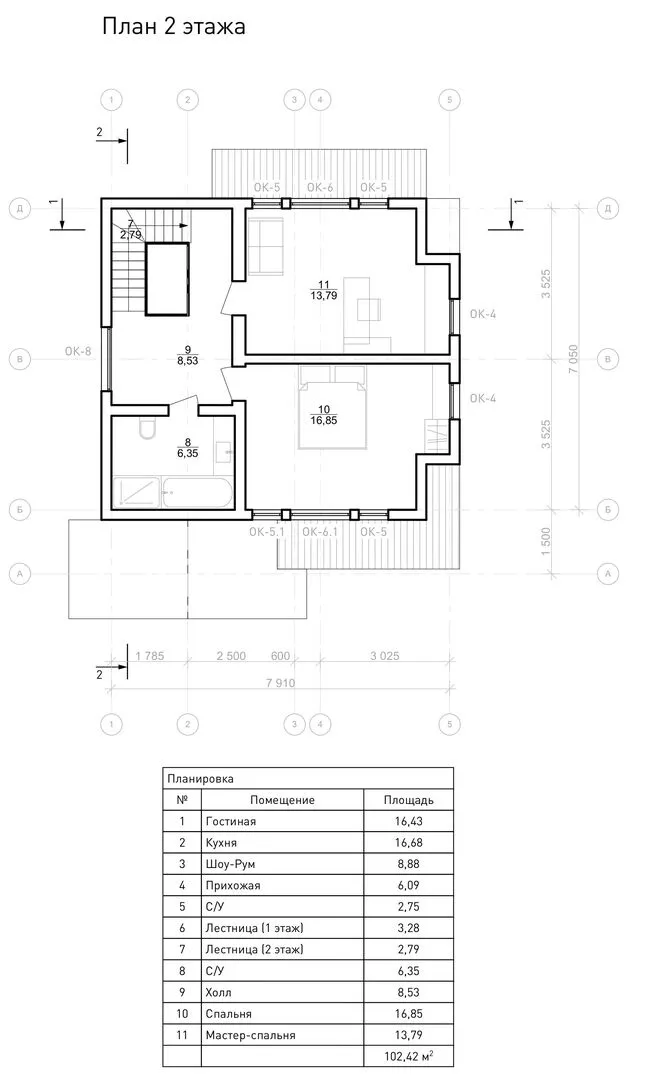
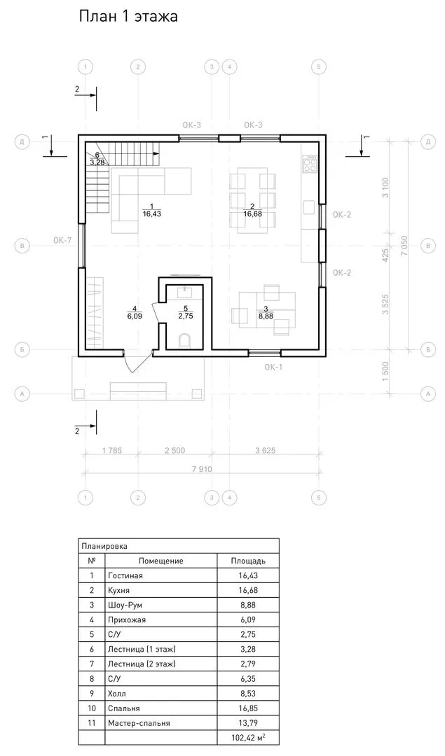
Площадь дома
102 м2
Площадь застройки
69 м2
Подвальное помещение
Нет
Показатель компактности здания
-
Приборы учета тепловой энергии
-
Пристроенный гараж/крытая автостоянка
Нет
Противопожарная система
Нет
Санузлы
2
Совмещенная кухня-гостиная
Да
Спальни
2
Терраса
Нет
Тип фундамента
Свайно-винтовой
Толщина внешних стен
160 мм
Толщина внутренних перегородок
120 мм
Улучшенные шумовые характеристики
-
Вентиляция
Естественная
Веранда
Да
Водоотведение
2 варианта
Водоснабжение
2 варианта
Высота дома
9.45 м
Высота потолков
3 м

Планировка

Фасад дома

Александр

Закажите выезд инженера

Александр

Выездной инженер
Закажите выезд инженера для точной диагностики и профессиональной консультации по инженерным системам. Специалист приедет в удобное время, проведёт осмотр, рассчитает стоимость работ и подберёт оптимальные решения для вашего дома.


    Похожие проекты

    Ипотека и
    рассрочка
    Скандинавский дом «Аксель»
    Стоимость от:
    6 724 520
    Проект от: 52 200
    Этажей 1
    Санузлы 2
    Спальни 3
    Смотреть
    Ипотека и
    рассрочка
    Университетский 109
    Стоимость от:
    8 820 680
    Проект от: 51 300
    Этажей 1
    Санузлы 2
    Спальни 3
    Смотреть
    Ипотека и
    рассрочка
    Загородный дом 2
    Стоимость от:
    10 767 360
    Проект от: 64 800
    Этажей 2
    Санузлы 2
    Спальни 3
    Смотреть
    Ипотека и
    рассрочка
    Дом из бруса Д33/2-102
    Стоимость от:
    6 725 880
    Проект от: 45 900
    Этажей 2
    Санузлы 2
    Спальни 3
    Смотреть
    Ипотека и
    рассрочка
    Дом из клееного бруса «ТРИ СОСНЫ»
    Стоимость от:
    5 911 620
    Проект от: 36 450
    Этажей 1
    Санузлы 1
    Спальни 2
    Смотреть
    Ипотека и
    рассрочка
    Алиса 2023
    Стоимость от:
    17 644 800
    Проект от: 108 000
    Этажей 2
    Санузлы 2
    Спальни 3
    Смотреть

    Как узнать стоимость дома

    back
    Оставляете заявку
    Вы заполняете форму на сайте или звоните нам. Менеджер Лайвкрафт связывается с вами для уточнения деталей: тип дома, площадь, материалы, участок строительства.
    back
    Консультация и подбор решения
    Наш специалист помогает выбрать оптимальный тип дома и конструкцию с учётом бюджета, сроков и целей — будь то дом для постоянного проживания или дача.
    back
    Расчёт предварительной стоимости
    Инженер делает первичный расчёт стоимости строительства по вашим параметрам: фундамент, коробка, кровля, отделка. Вы получаете смету с разбивкой по этапам.
    back
    Корректировка и утверждение сметы
    При необходимости вносим изменения — например, замену материалов или сокращение этапов. После согласования формируется окончательная фиксированная смета.
    back
    Заключение договора и старт работ
    После утверждения сметы заключаем официальный договор с гарантией. Вы получаете прозрачный график и точную стоимость — без скрытых расходов.

    Заказать конусльтацию по:Времена Года. Зима, лето, весна, осень. Комплектация Золото.

    Фото 1 Времена Года. Зима, лето, весна, осень. Комплектация Золото.


      Наши
      контакты

      Дмитров
      Опорный проезд 28Б
      (индустриальный парк Ниагара)
      9:00 до 18:00

      Корзина