4.9
Рейтинг на основании 120 отзывов
Дмитров
Опорный проезд 28Б
(индустриальный парк Ниагара)
Бренд "Дмитров-Дело" c 2008 года на рынке строительства в Дмитрове
Звоните 9:00 до 18:00 8 (915) 055-33-61
Бренд "Дмитров-Дело" c 2008 года на рынке строительства в Дмитрове

Д-200

Стоимость проекта от:
75 150 ₽
БЕСПЛАТНО! ПРИ ЗАКАЗЕ СТРОИТЕЛЬСТВА
Стоимость строительства от:
11 426 140 ₽
Артикул ART-10901
Дата 25.12.2025
Архитектурный стиль Классический
Количество надземных этажей 1
Круглогодичное проживание Да
Площадь дома 167 м2
Санузлы 2
Спальни 3

Описание

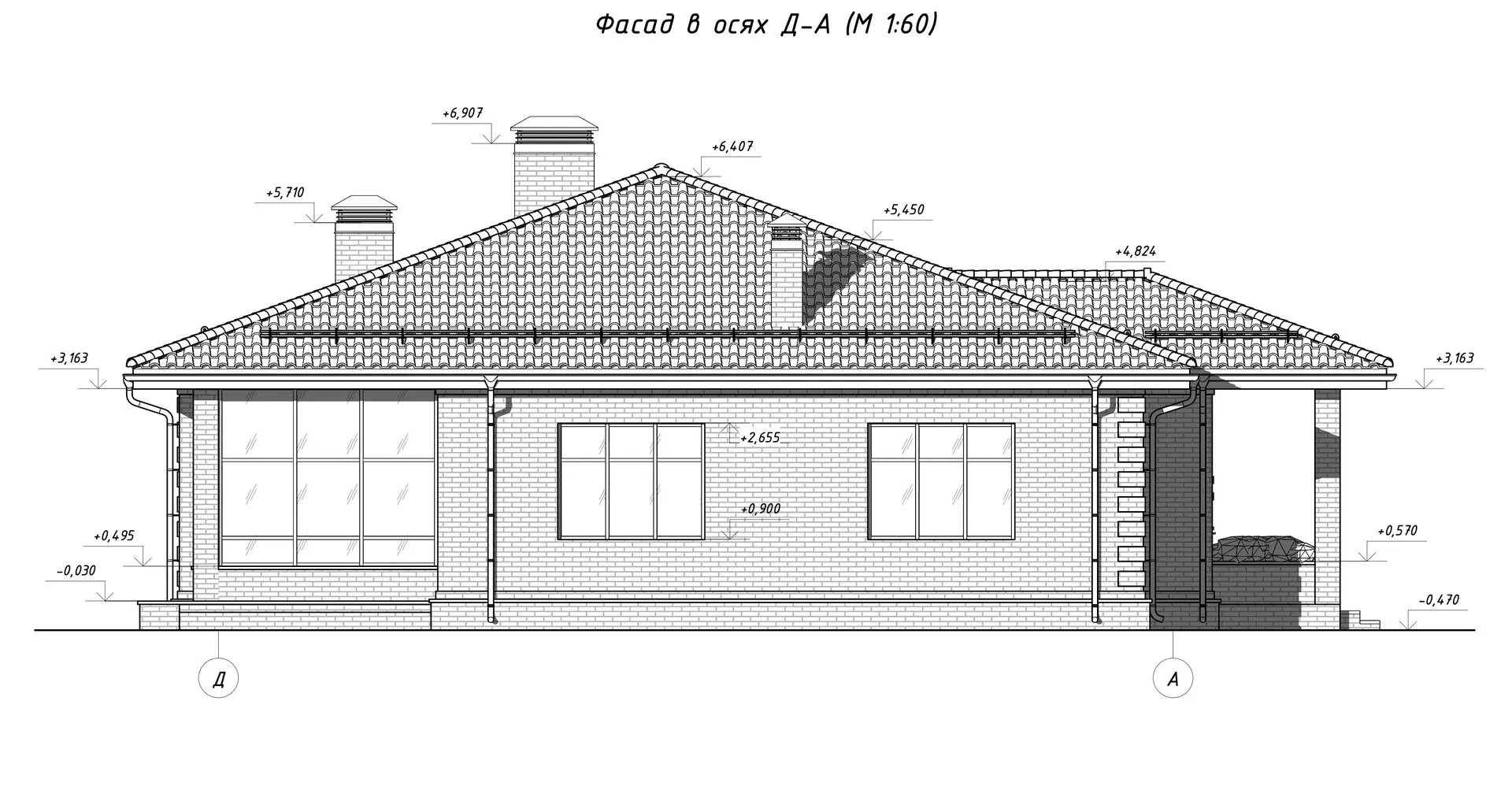
**Идеальный уголок комфорта в классическом стиле** Уютный дом D‑200 – это место, где современный уют встречается с вечной красотой классической архитектуры. На одном надземном этаже расположены просторные залы, аккуратно оформленные, чтобы сразу ощущать домашнее тепло. Отсутствие балконов и веранд не мешает нам создать гармоничное пространство: вся зона вокруг дома открыта для спокойных прогулок и уютных вечеров на просторной территории. **Пространство, созданное для всей семьи** Постройте свой комфорт на прочном фундаменте из газобетонных блоков – теплоизоляция и долговечность, которые обеспечивают круглогодичное проживание. Кровля в форме четвёртого ската (вальмовая) добавляет изюминку, а чердачное помещение можно превратить в практичный уголок для хранения или в дополнительную комнату, где будут сбываться ваши идеи. Тераса – это ваше личное пристанище: отдохните, насладитесь видом и ароматами природы, не выходя из дома. **Экономичность и удобство в одном месте** Никакого лишнего гаража и крытой автостоянки? Не проблема! Мы знаем, как сделать ваш автомобиль и технику доступными, а при этом сохранить компактность и уют. Дизайн дома рассчитан на оптимальный комфорт с самого начала вашей жизни, и каждый элемент – от выбора материала до детализации – продуман так, чтобы вы чувствовали себя дома с первых шагов. Это дом, где каждый сантиметр наполнен заботой о вашей комфорте и удобстве.

Характеристики дома

Архитектурный стиль
Автоматизированное регулирование параметров теплоносителя
Нет
Балконы/лоджии
Отсутствуют
Чердачное помещение
Да
Датчики протечки воды
Нет
Эксплуатируемая или зеленая кровля
Нет
Электроснабжение
Индивидуальное
Газоснабжение
Индивидуальное
Изоляция воздушного шума
Нет
Камин
Нет
Класс энергоэффективности
B
Класс энергосбережения
A
Количество надземных этажей
1
Круглогодичное проживание
Да
Материал кровли
Битумная черепица
Материал перекрытий
Деревянные по металлическим балкам
Материал внешних стен
Материал внутренних перегородок
Кирпичные
Модульное строительство с конструкциями заводского изготовления
Нет
Объем надземной части
597 м3
Основной материал фасадов
Облицовочный кирпич
Отопление
Индивидуальное
Площадь дома
167 м2
Площадь застройки
260 м2
Подвальное помещение
Нет
Показатель компактности здания
1
Приборы учета тепловой энергии
Нет
Пристроенный гараж/крытая автостоянка
Нет
Противопожарная система
Нет
Санузлы
2
Совмещенная кухня-гостиная
Да
Спальни
3
Терраса
Да
Тип фундамента
Плитный
Толщина внешних стен
550 мм
Толщина внутренних перегородок
120 мм
Улучшенные шумовые характеристики
Нет
Вентиляция
Естественная
Веранда
Нет
Водоотведение
Локальные очистные сооружения
Водоснабжение
Индивидуальное
Высота дома
6.5 м
Высота потолков
3 м

Планировка

Фасад дома

Александр

Закажите выезд инженера

Александр

Выездной инженер
Закажите выезд инженера для точной диагностики и профессиональной консультации по инженерным системам. Специалист приедет в удобное время, проведёт осмотр, рассчитает стоимость работ и подберёт оптимальные решения для вашего дома.


    Похожие проекты

    Ипотека и
    рассрочка
    ТН-169
    Стоимость от:
    11 005 800
    Проект от: 76 500
    Этажей 2
    Санузлы 3
    Спальни 4
    Смотреть
    Ипотека и
    рассрочка
    Одноэтажный дом ПГ -10
    Стоимость от:
    6 779 520
    Проект от: 43 200
    Этажей 1
    Санузлы 1
    Спальни 3
    Смотреть
    Ипотека и
    рассрочка
    К-М-119
    Стоимость от:
    9 016 560
    Проект от: 58 050
    Этажей 2
    Санузлы 1
    Спальни 3
    Смотреть
    Ипотека и
    рассрочка
    Интеграл
    Стоимость от:
    5 259 320
    Проект от: 29 700
    Этажей 1
    Санузлы 1
    Спальни 3
    Смотреть
    Ипотека и
    рассрочка
    Индивидуальный жилой дом (тип L2), расположенный в п. Мичуринский
    Стоимость от:
    8 568 450
    Проект от: 60 750
    Этажей 1
    Санузлы 2
    Спальни 3
    Смотреть
    Ипотека и
    рассрочка
    Одноэтажный дом Fixplans-12959
    Стоимость от:
    3 724 160
    Проект от: 21 600
    Этажей 1
    Санузлы 1
    Спальни 2
    Смотреть

    Как узнать стоимость дома

    back
    Оставляете заявку
    Вы заполняете форму на сайте или звоните нам. Менеджер Лайвкрафт связывается с вами для уточнения деталей: тип дома, площадь, материалы, участок строительства.
    back
    Консультация и подбор решения
    Наш специалист помогает выбрать оптимальный тип дома и конструкцию с учётом бюджета, сроков и целей — будь то дом для постоянного проживания или дача.
    back
    Расчёт предварительной стоимости
    Инженер делает первичный расчёт стоимости строительства по вашим параметрам: фундамент, коробка, кровля, отделка. Вы получаете смету с разбивкой по этапам.
    back
    Корректировка и утверждение сметы
    При необходимости вносим изменения — например, замену материалов или сокращение этапов. После согласования формируется окончательная фиксированная смета.
    back
    Заключение договора и старт работ
    После утверждения сметы заключаем официальный договор с гарантией. Вы получаете прозрачный график и точную стоимость — без скрытых расходов.

    Заказать конусльтацию по:Д-200

    Фото 1 Д-200


      Наши
      контакты

      Дмитров
      Опорный проезд 28Б
      (индустриальный парк Ниагара)
      9:00 до 18:00

      Корзина