4.9
Рейтинг на основании 120 отзывов
Дмитров
Опорный проезд 28Б
(индустриальный парк Ниагара)
Бренд "Дмитров-Дело" c 2008 года на рынке строительства в Дмитрове
Звоните 9:00 до 18:00 8 (915) 055-33-61
Бренд "Дмитров-Дело" c 2008 года на рынке строительства в Дмитрове

Каркасный дом с мансардой-M117

Стоимость проекта от:
52 650 ₽
БЕСПЛАТНО! ПРИ ЗАКАЗЕ СТРОИТЕЛЬСТВА
Стоимость строительства от:
7 016 280 ₽
Артикул ART-13906
Дата 25.12.2025
Архитектурный стиль Русский
Количество надземных этажей 2
Круглогодичное проживание Да
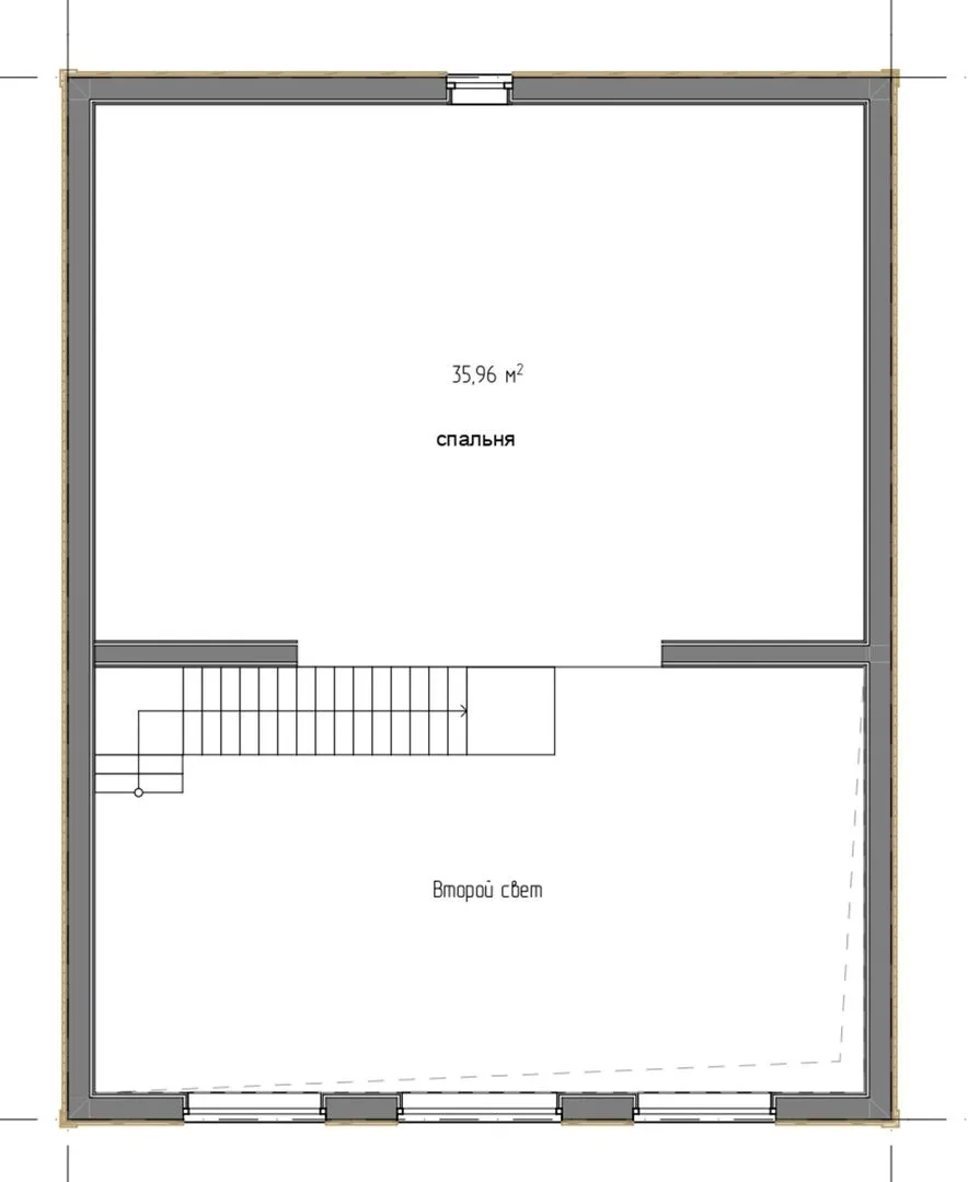
Площадь дома 117 м2
Санузлы 1
Спальни 3

Описание

**Уютный уголок в сердце русской традиции** Приветствуем Вас в доме, где каждая деталь прославляет дух русской архитектуры, а дерево – символ вечного мира. Величественный каркасный дом с мансардой M117 располагает два надземных этажа, открывая простор для вашей семьи и гостей. Его двойная крыша в виде классической двухскатной конструкции, украшенная черепицей, прекрасно защищает от северного ветра и даёт характерный силуэт, который легко впишется в любой природный ландшафт. Внутренний план позволяет свободно перемещаться между зонами: открытая гостиная, где свет льётся через большие окна, соединяет с уютной застольной; из кухни легко выйти на террасу, где можно наслаждаться ароматом свежего воздуха и вечерними закатами. Несмотря на то, что дома не предусмотрено балконов и веранд, просторный фасад и просторные окна создают ощущение открытости и связи с природой. Гарантированное круглогодичное проживание, отсутствие чердачных помещений и прилагаемых гаражей подчёркивает практичность и простоту. Этот дом – идеальное сочетание традиционного стиля и современной функциональности, готовое стать местом, где вы будете радоваться каждому дню, находясь в компании близких и наслаждаясь гармонией русской природы.

Характеристики дома

Архитектурный стиль
Автоматизированное регулирование параметров теплоносителя
Нет
Балконы/лоджии
Отсутствуют
Чердачное помещение
Нет
Датчики протечки воды
Нет
Эксплуатируемая или зеленая кровля
Нет
Электроснабжение
Индивидуальное
Газоснабжение
Не предусмотрено
Изоляция воздушного шума
Нет
Камин
Нет
Класс энергоэффективности
-
Класс энергосбережения
-
Количество надземных этажей
2
Круглогодичное проживание
Да
Материал кровли
Металлочерепица
Материал перекрытий
Деревянные
Материал внешних стен
Материал внутренних перегородок
Деревянные
Модульное строительство с конструкциями заводского изготовления
Нет
Объем надземной части
386 м3
Основной материал фасадов
Дерево
Отопление
Индивидуальное
Площадь дома
117 м2
Площадь застройки
71 м2
Подвальное помещение
Нет
Показатель компактности здания
-
Приборы учета тепловой энергии
Нет
Пристроенный гараж/крытая автостоянка
Нет
Противопожарная система
Нет
Санузлы
1
Совмещенная кухня-гостиная
Да
Спальни
3
Терраса
Да
Тип фундамента
Свайный
Тип кровли
Толщина внешних стен
200 мм
Толщина внутренних перегородок
100 мм
Улучшенные шумовые характеристики
Нет
Вентиляция
Естественная
Веранда
Нет
Водоотведение
Локальные очистные сооружения
Водоснабжение
Индивидуальное
Высота дома
5.44 м
Высота потолков
2.7 м

Планировка

Фасад дома

Александр

Закажите выезд инженера

Александр

Выездной инженер
Закажите выезд инженера для точной диагностики и профессиональной консультации по инженерным системам. Специалист приедет в удобное время, проведёт осмотр, рассчитает стоимость работ и подберёт оптимальные решения для вашего дома.


    Похожие проекты

    Ипотека и
    рассрочка
    Загородный дом «Семейный Люкс»
    Стоимость от:
    8 139 600
    Проект от: 61 200
    Этажей 2
    Санузлы 2
    Спальни 3
    Смотреть
    Ипотека и
    рассрочка
    Скандия мини без террасы
    Стоимость от:
    5 578 980
    Проект от: 35 550
    Этажей 1
    Санузлы 1
    Спальни 2
    Смотреть
    Ипотека и
    рассрочка
    Проект одноэтажного дома Пилот
    Стоимость от:
    14 191 980
    Проект от: 85 050
    Этажей 1
    Санузлы 3
    Спальни 4
    Смотреть
    Ипотека и
    рассрочка
    Индивидуальный жилой проект ОС-24-36
    Стоимость от:
    13 242 480
    Проект от: 79 650
    Этажей 2
    Санузлы 3
    Спальни 3
    Смотреть
    Ипотека и
    рассрочка
    Одноэтажный дом
    Стоимость от:
    6 915 040
    Проект от: 41 400
    Этажей 1
    Санузлы 1
    Спальни 3
    Смотреть
    Ипотека и
    рассрочка
    Загородный дом КБ-197
    Стоимость от:
    12 503 590
    Проект от: 88 650
    Этажей 1
    Санузлы 4
    Спальни 6
    Смотреть

    Как узнать стоимость дома

    back
    Оставляете заявку
    Вы заполняете форму на сайте или звоните нам. Менеджер Лайвкрафт связывается с вами для уточнения деталей: тип дома, площадь, материалы, участок строительства.
    back
    Консультация и подбор решения
    Наш специалист помогает выбрать оптимальный тип дома и конструкцию с учётом бюджета, сроков и целей — будь то дом для постоянного проживания или дача.
    back
    Расчёт предварительной стоимости
    Инженер делает первичный расчёт стоимости строительства по вашим параметрам: фундамент, коробка, кровля, отделка. Вы получаете смету с разбивкой по этапам.
    back
    Корректировка и утверждение сметы
    При необходимости вносим изменения — например, замену материалов или сокращение этапов. После согласования формируется окончательная фиксированная смета.
    back
    Заключение договора и старт работ
    После утверждения сметы заключаем официальный договор с гарантией. Вы получаете прозрачный график и точную стоимость — без скрытых расходов.

    Заказать конусльтацию по:Каркасный дом с мансардой-M117

    Фото 1 Каркасный дом с мансардой-M117


      Наши
      контакты

      Дмитров
      Опорный проезд 28Б
      (индустриальный парк Ниагара)
      9:00 до 18:00

      Корзина