4.9
Рейтинг на основании 120 отзывов
Дмитров
Опорный проезд 28Б
(индустриальный парк Ниагара)
Бренд "Дмитров-Дело" c 2008 года на рынке строительства в Дмитрове
Звоните 9:00 до 18:00 8 (915) 055-33-61
Бренд "Дмитров-Дело" c 2008 года на рынке строительства в Дмитрове

D182-1

Стоимость проекта от:
22 500 ₽
БЕСПЛАТНО! ПРИ ЗАКАЗЕ СТРОИТЕЛЬСТВА
Стоимость строительства от:
3 379 200 ₽
Артикул ART-3177
Дата 26.12.2025
Архитектурный стиль Классический
Количество надземных этажей 1
Круглогодичное проживание Да
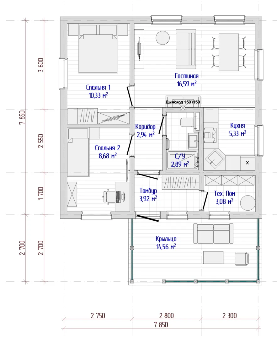
Площадь дома 50 м2
Санузлы 1
Спальни 2

Описание

Добро пожаловать в уютный уголок, где традиции встречаются с комфортом. Этот очаровательный одноповерховый дом в классическом стиле станет идеальным решением для тех, кто ценит гармонию простоты и изящества. Строительство в деревенском стиле с деревянным каркасом обеспечит тепло и уют в любое время года, а двускатная крыша добавит элегантности и надёжности конструкции. Нежные линии фасада и простые, но аккуратные окна создают ощущение открытого пространства даже без балконов и веранд. Внутри просторный открытую планировку с высоким потолком, которая легко адаптируется под любые жизненные потребности: уютный гостиный уголок, светлая кухня и тихая зона для сна. Полностью обустроенный, он готов к круглогодичной жизни и мгновенно станет вашим новым домом, где можно не только жить, но и наслаждаться каждой минутой. Если вы мечтаете о доме, где традиционный дух сохраняет тепло и уюта, а практичная планировка гарантирует простоту жизни – этот крошечный, но душевный дом станет вашей лучшей находкой. Сочетание классических форм, деревянного каркаса и надёжной двускатной крыши создают не только привлекательный внешний вид, но и надёжную защиту от непогоды. Живите здесь в полном комфорте, позволяя каждой детали поддерживать вашу гармонию с природой и временем.

Характеристики дома

Архитектурный стиль
Автоматизированное регулирование параметров теплоносителя
Нет
Балконы/лоджии
Отсутствуют
Чердачное помещение
Нет
Датчики протечки воды
Нет
Эксплуатируемая или зеленая кровля
Нет
Электроснабжение
Индивидуальное
Газоснабжение
Индивидуальное
Изоляция воздушного шума
Нет
Камин
Нет
Класс энергоэффективности
-
Класс энергосбережения
-
Количество надземных этажей
1
Круглогодичное проживание
Да
Материал кровли
Битумная черепица
Материал перекрытий
Деревянные
Материал внешних стен
Материал внутренних перегородок
Деревянные
Модульное строительство с конструкциями заводского изготовления
Нет
Объем надземной части
-
Основной материал фасадов
Дерево
Отопление
Индивидуальное
Площадь дома
50 м2
Площадь застройки
64 м2
Подвальное помещение
Нет
Показатель компактности здания
-
Приборы учета тепловой энергии
Нет
Пристроенный гараж/крытая автостоянка
Нет
Противопожарная система
Нет
Санузлы
1
Совмещенная кухня-гостиная
Да
Спальни
2
Терраса
Нет
Тип фундамента
Свайно-ростверковый
Тип кровли
Толщина внешних стен
250 мм
Толщина внутренних перегородок
150 мм
Улучшенные шумовые характеристики
Нет
Вентиляция
Принудительная
Веранда
Нет
Водоотведение
Локальные очистные сооружения
Водоснабжение
Индивидуальное
Высота дома
-
Высота потолков
2.7 м

Планировка

Фасад дома

Александр

Закажите выезд инженера

Александр

Выездной инженер
Закажите выезд инженера для точной диагностики и профессиональной консультации по инженерным системам. Специалист приедет в удобное время, проведёт осмотр, рассчитает стоимость работ и подберёт оптимальные решения для вашего дома.


    Похожие проекты

    Ипотека и
    рассрочка
    Одноэтажный дом К-96.1
    Стоимость от:
    6 568 320
    Проект от: 43 200
    Этажей 1
    Санузлы 2
    Спальни 3
    Смотреть
    Ипотека и
    рассрочка
    Загородный дом по проекту «Виктор».
    Стоимость от:
    4 297 920
    Проект от: 29 700
    Этажей 1
    Санузлы 1
    Спальни 2
    Смотреть
    Ипотека и
    рассрочка
    Мансардный дом Холмы 1
    Стоимость от:
    7 735 560
    Проект от: 58 050
    Этажей 2
    Санузлы 2
    Спальни 3
    Смотреть
    Ипотека и
    рассрочка
    Одноэтажный дом №2
    Стоимость от:
    8 118 440
    Проект от: 45 900
    Этажей 1
    Санузлы 2
    Спальни 2
    Смотреть
    Ипотека и
    рассрочка
    Проект «Велия»
    Стоимость от:
    5 317 620
    Проект от: 37 800
    Этажей 1
    Санузлы 1
    Спальни 3
    Смотреть
    Ипотека и
    рассрочка
    Петергоф-2
    Стоимость от:
    19 524 300
    Проект от: 135 900
    Этажей 2
    Санузлы 3
    Спальни 6
    Смотреть

    Как узнать стоимость дома

    back
    Оставляете заявку
    Вы заполняете форму на сайте или звоните нам. Менеджер Лайвкрафт связывается с вами для уточнения деталей: тип дома, площадь, материалы, участок строительства.
    back
    Консультация и подбор решения
    Наш специалист помогает выбрать оптимальный тип дома и конструкцию с учётом бюджета, сроков и целей — будь то дом для постоянного проживания или дача.
    back
    Расчёт предварительной стоимости
    Инженер делает первичный расчёт стоимости строительства по вашим параметрам: фундамент, коробка, кровля, отделка. Вы получаете смету с разбивкой по этапам.
    back
    Корректировка и утверждение сметы
    При необходимости вносим изменения — например, замену материалов или сокращение этапов. После согласования формируется окончательная фиксированная смета.
    back
    Заключение договора и старт работ
    После утверждения сметы заключаем официальный договор с гарантией. Вы получаете прозрачный график и точную стоимость — без скрытых расходов.

    Заказать конусльтацию по:D182-1

    Фото 1 D182-1


      Наши
      контакты

      Дмитров
      Опорный проезд 28Б
      (индустриальный парк Ниагара)
      9:00 до 18:00

      Корзина