4.9
Рейтинг на основании 120 отзывов
Дмитров
Опорный проезд 28Б
(индустриальный парк Ниагара)
Бренд "Дмитров-Дело" c 2008 года на рынке строительства в Дмитрове
Звоните 9:00 до 18:00 8 (915) 055-33-61
Бренд "Дмитров-Дело" c 2008 года на рынке строительства в Дмитрове

D185-1

Стоимость проекта от:
54 900 ₽
Стоимость строительства от:
8 226 240 ₽
Артикул ART-10509
Дата 25.12.2025
Архитектурный стиль Классический
Количество надземных этажей 1
Круглогодичное проживание Да
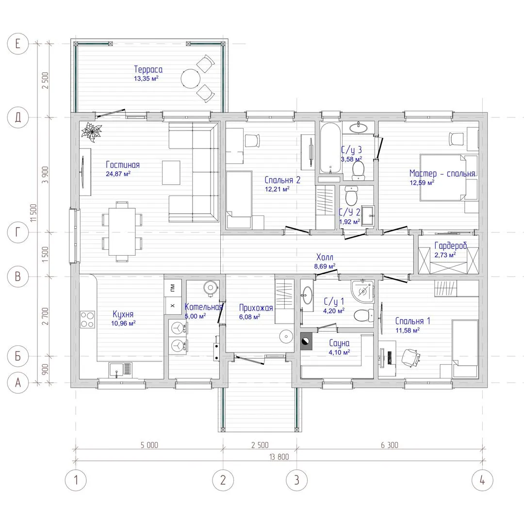
Площадь дома 122 м2
Санузлы 3
Спальни 3

Описание

Вдохновляющая красота классической архитектуры встречается с теплотой натуральных материалов – это уникальная квартира «D185‑1» в уютном одностайнике, где каждый элемент продуман до мелочей. Её деревянные каркасные стены, обрамленные традиционной гable‑кровлей, дарят ощущение близости к природе, а утепление гарантирует комфорт в любое время года. Строгие линии внешнего облика сочетаются с мягкими деталями, создавая гармоничное пространство, где традиции и современность идут рука об руку. Важной особенностью жилья является просторная открытая терраса, выходящая из главной площади. Это идеальное место для летних ужинов, чтения у окна в прохладные вечера или просто отдыха с чашкой кофе. На крыше отсутствуют балконы и лоджии, но это только подчёркивает ощущение простора и открытости, позволяя вам наслаждаться полным спектром естественного освещения и свежего воздуха. Этажность в лишь одном надземном помещении обеспечивает лёгкость ориентации и минимальные эксплуатационные затраты. Отсутствие прикованного гаража или дачной автозаводской площадки не мешает, ведь дома «D185‑1» предусмотрено удобное местоположение рядом с транспортными узлами. Этот дом – идеальная находка для семьи, ценящей традиционный уют, надежность и практичность, одновременно желающей наслаждаться каждой минутой в своём собственном уголке.

Характеристики дома

Архитектурный стиль
Классический
Автоматизированное регулирование параметров теплоносителя
Нет
Балконы/лоджии
Отсутствуют
Чердачное помещение
Нет
Датчики протечки воды
Нет
Эксплуатируемая или зеленая кровля
Нет
Электроснабжение
Индивидуальное
Газоснабжение
Индивидуальное
Изоляция воздушного шума
Нет
Камин
Нет
Класс энергоэффективности
-
Класс энергосбережения
-
Количество надземных этажей
1
Круглогодичное проживание
Да
Материал кровли
Битумная черепица
Материал перекрытий
Деревянные
Материал внешних стен
Деревянные каркасные
Материал внутренних перегородок
Деревянные
Модульное строительство с конструкциями заводского изготовления
Нет
Объем надземной части
-
Основной материал фасадов
Дерево
Отопление
Индивидуальное
Площадь дома
122 м2
Площадь застройки
161 м2
Подвальное помещение
Нет
Показатель компактности здания
-
Приборы учета тепловой энергии
Нет
Пристроенный гараж/крытая автостоянка
Нет
Противопожарная система
Нет
Санузлы
3
Совмещенная кухня-гостиная
Да
Спальни
3
Терраса
Да
Тип фундамента
Свайно-ростверковый
Тип кровли
Двускатная
Толщина внешних стен
250 мм
Толщина внутренних перегородок
150 мм
Улучшенные шумовые характеристики
Нет
Вентиляция
Принудительная
Веранда
Нет
Водоотведение
Локальные очистные сооружения
Водоснабжение
Индивидуальное
Высота дома
-
Высота потолков
2.7 м

Планировка

Фасад дома

Александр

Закажите выезд инженера

Александр

Выездной инженер
Закажите выезд инженера для точной диагностики и профессиональной консультации по инженерным системам. Специалист приедет в удобное время, проведёт осмотр, рассчитает стоимость работ и подберёт оптимальные решения для вашего дома.


    Похожие проекты

    Ипотека и
    рассрочка
    Одноэтажный дом в скандинавском стиле «ОСК-136»
    Стоимость от:
    9 852 480
    Проект от: 64 800
    Этажей 1
    Санузлы 2
    Спальни 4
    Смотреть
    Ипотека и
    рассрочка
    Коттедж из кирпича «Сторхафен»
    Стоимость от:
    17 160 000
    Проект от: 112 500
    Этажей 2
    Санузлы 4
    Спальни 5
    Смотреть
    Ипотека и
    рассрочка
    Хава-190
    Стоимость от:
    13 273 480
    Проект от: 87 300
    Этажей 1
    Санузлы 3
    Спальни 3
    Смотреть
    Ипотека и
    рассрочка
    Одноэтажный дом Скандинавия 1-90
    Стоимость от:
    9 957 420
    Проект от: 63 450
    Этажей 1
    Санузлы 3
    Спальни 3
    Смотреть
    Ипотека и
    рассрочка
    Ранчо 272
    Стоимость от:
    12 289 640
    Проект от: 95 400
    Этажей 1
    Санузлы 2
    Спальни 4
    Смотреть
    Ипотека и
    рассрочка
    ДС 1-133
    Стоимость от:
    7 027 020
    Проект от: 56 700
    Этажей 1
    Санузлы 2
    Спальни 3
    Смотреть

    Как узнать стоимость дома

    back
    Оставляете заявку
    Вы заполняете форму на сайте или звоните нам. Менеджер Лайвкрафт связывается с вами для уточнения деталей: тип дома, площадь, материалы, участок строительства.
    back
    Консультация и подбор решения
    Наш специалист помогает выбрать оптимальный тип дома и конструкцию с учётом бюджета, сроков и целей — будь то дом для постоянного проживания или дача.
    back
    Расчёт предварительной стоимости
    Инженер делает первичный расчёт стоимости строительства по вашим параметрам: фундамент, коробка, кровля, отделка. Вы получаете смету с разбивкой по этапам.
    back
    Корректировка и утверждение сметы
    При необходимости вносим изменения — например, замену материалов или сокращение этапов. После согласования формируется окончательная фиксированная смета.
    back
    Заключение договора и старт работ
    После утверждения сметы заключаем официальный договор с гарантией. Вы получаете прозрачный график и точную стоимость — без скрытых расходов.

    Заказать конусльтацию по:D185-1

    Фото 1 D185-1


      Наши
      контакты

      Дмитров
      Опорный проезд 28Б
      (индустриальный парк Ниагара)
      9:00 до 18:00

      Корзина