4.9
Рейтинг на основании 120 отзывов
Дмитров
Опорный проезд 28Б
(индустриальный парк Ниагара)
Бренд "Дмитров-Дело" c 2008 года на рынке строительства в Дмитрове
Звоните 9:00 до 18:00 8 (915) 055-33-61
Бренд "Дмитров-Дело" c 2008 года на рынке строительства в Дмитрове

Индивидуальный жилой дом 700-09-11/21-АР

Стоимость проекта от:
61 650 ₽
БЕСПЛАТНО! ПРИ ЗАКАЗЕ СТРОИТЕЛЬСТВА
Стоимость строительства от:
9 236 040 ₽
Артикул ART-1726
Дата 26.12.2025
Архитектурный стиль Скандинавский
Количество надземных этажей 1
Круглогодичное проживание Да
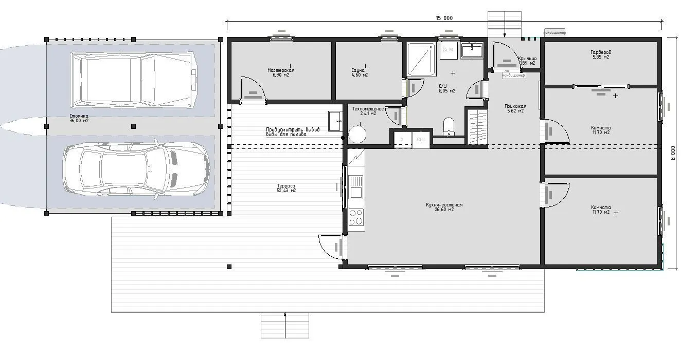
Площадь дома 137 м2
Санузлы 1
Спальни 2

Описание

Добро пожаловать в уединённый уголок скандинавского уюта — индивидуальный жилой дом, в котором каждая деталь пронизана теплом и свежестью северных просторов. Величественно простая, одноэтажная конструкция с деревянным каркасом зовёт к спокойной жизненной ритмике, а мягкая, односкатная крыша подчёркивает естественную гармонию с окружающим ландшафтом. Непрерывно открытая веранда, как дышащий боковой уголок, приглашает к прогулкам по утреннему рассвету и вечернему закату, создавая ощущение, будто каждый день начинается и заканчивается в объятиях природы. Внутреннее пространство обрамлено скандинавским стилем: открытая планировка, светлые тона и натуральные материалы создают атмосферу безмятежности и простоты, где каждое утро наполнено мягким светом. Преимущество этого дома в том, что все условия, чтобы жить круглый год, учтены: от утеплённых стен до удобного прицепленного гаража с крытой автостоянкой, обеспечивающей сохранность вашего автомобиля и свободный доступ к дому в любой сезон. Простота архитектуры позволяет легко адаптировать пространство под любые потребности, а его универсальный дизайн делает его идеальным выбором как для семейного уюта, так и для тихой, задумчивой зоны отдыха. Этот дом — настоящий оазис спокойствия и вдохновения. Он приглашает вас открыть для себя идеальный баланс между функциональностью и эстетикой: от практичного гаража до тихих уголков, где можно провести время с книгой, а от уютной верандой с видом на бескрайние пространства. Если вам хочется жить в гармонии с природой, без лишних украшений, но при этом с комфортом и безопасностью в любое время года — этот дом создан именно для вас.

Характеристики дома

Архитектурный стиль
Автоматизированное регулирование параметров теплоносителя
-
Балконы/лоджии
Отсутствуют
Чердачное помещение
Нет
Датчики протечки воды
-
Эксплуатируемая или зеленая кровля
-
Электроснабжение
Индивидуальное
Газоснабжение
Не предусмотрено
Изоляция воздушного шума
-
Камин
Нет
Класс энергоэффективности
-
Класс энергосбережения
-
Количество надземных этажей
1
Круглогодичное проживание
Да
Материал кровли
Металлические листовые гофрированные профили
Материал перекрытий
Деревянные
Материал внешних стен
Материал внутренних перегородок
Деревянные
Модульное строительство с конструкциями заводского изготовления
Нет
Объем надземной части
-
Основной материал фасадов
Штукатурка
Отопление
Индивидуальное
Площадь дома
137 м2
Площадь застройки
173 м2
Подвальное помещение
Нет
Показатель компактности здания
-
Приборы учета тепловой энергии
-
Пристроенный гараж/крытая автостоянка
Да
Противопожарная система
Нет
Санузлы
1
Совмещенная кухня-гостиная
Да
Спальни
2
Терраса
Нет
Тип фундамента
Свайно-ростверковый
Тип кровли
Толщина внешних стен
150 мм
Толщина внутренних перегородок
100 мм
Улучшенные шумовые характеристики
-
Вентиляция
Естественная
Веранда
Да
Водоотведение
Локальные очистные сооружения
Водоснабжение
Центральное
Высота дома
3 м
Высота потолков
3 м

Планировка

Фасад дома

Александр

Закажите выезд инженера

Александр

Выездной инженер
Закажите выезд инженера для точной диагностики и профессиональной консультации по инженерным системам. Специалист приедет в удобное время, проведёт осмотр, рассчитает стоимость работ и подберёт оптимальные решения для вашего дома.


    Похожие проекты

    Ипотека и
    рассрочка
    A-frame LN-244
    Стоимость от:
    4 055 160
    Проект от: 31 050
    Этажей 2
    Санузлы 1
    Спальни 1
    Смотреть
    Ипотека и
    рассрочка
    Загородный дом 115
    Стоимость от:
    8 640 500
    Проект от: 51 750
    Этажей 1
    Санузлы 2
    Спальни 3
    Смотреть
    Ипотека и
    рассрочка
    Встреча
    Стоимость от:
    5 114 560
    Проект от: 30 600
    Этажей 1
    Санузлы 1
    Спальни 2
    Смотреть
    Ипотека и
    рассрочка
    Барн 64
    Стоимость от:
    5 286 600
    Проект от: 40 500
    Этажей 2
    Санузлы 1
    Спальни 3
    Смотреть
    Ипотека и
    рассрочка
    ПС-96
    Стоимость от:
    9 165 640
    Проект от: 54 900
    Этажей 1
    Санузлы 2
    Спальни 3
    Смотреть
    Ипотека и
    рассрочка
    Загородный дом Кермит
    Стоимость от:
    8 757 760
    Проект от: 57 600
    Этажей 1
    Санузлы 2
    Спальни 3
    Смотреть

    Как узнать стоимость дома

    back
    Оставляете заявку
    Вы заполняете форму на сайте или звоните нам. Менеджер Лайвкрафт связывается с вами для уточнения деталей: тип дома, площадь, материалы, участок строительства.
    back
    Консультация и подбор решения
    Наш специалист помогает выбрать оптимальный тип дома и конструкцию с учётом бюджета, сроков и целей — будь то дом для постоянного проживания или дача.
    back
    Расчёт предварительной стоимости
    Инженер делает первичный расчёт стоимости строительства по вашим параметрам: фундамент, коробка, кровля, отделка. Вы получаете смету с разбивкой по этапам.
    back
    Корректировка и утверждение сметы
    При необходимости вносим изменения — например, замену материалов или сокращение этапов. После согласования формируется окончательная фиксированная смета.
    back
    Заключение договора и старт работ
    После утверждения сметы заключаем официальный договор с гарантией. Вы получаете прозрачный график и точную стоимость — без скрытых расходов.

    Заказать конусльтацию по:Индивидуальный жилой дом 700-09-11/21-АР

    Фото 1 Индивидуальный жилой дом 700-09-11/21-АР


      Наши
      контакты

      Дмитров
      Опорный проезд 28Б
      (индустриальный парк Ниагара)
      9:00 до 18:00

      Корзина