4.9
Рейтинг на основании 120 отзывов
Дмитров
Опорный проезд 28Б
(индустриальный парк Ниагара)
Бренд "Дмитров-Дело" c 2008 года на рынке строительства в Дмитрове
Звоните 9:00 до 18:00 8 (915) 055-33-61
Бренд "Дмитров-Дело" c 2008 года на рынке строительства в Дмитрове

Кейтлин

Стоимость проекта от:
37 350 ₽
БЕСПЛАТНО! ПРИ ЗАКАЗЕ СТРОИТЕЛЬСТВА
Стоимость строительства от:
4 797 815 ₽
Артикул ART-12522
Дата 25.12.2025
Архитектурный стиль Классический
Количество надземных этажей 1
Круглогодичное проживание Да
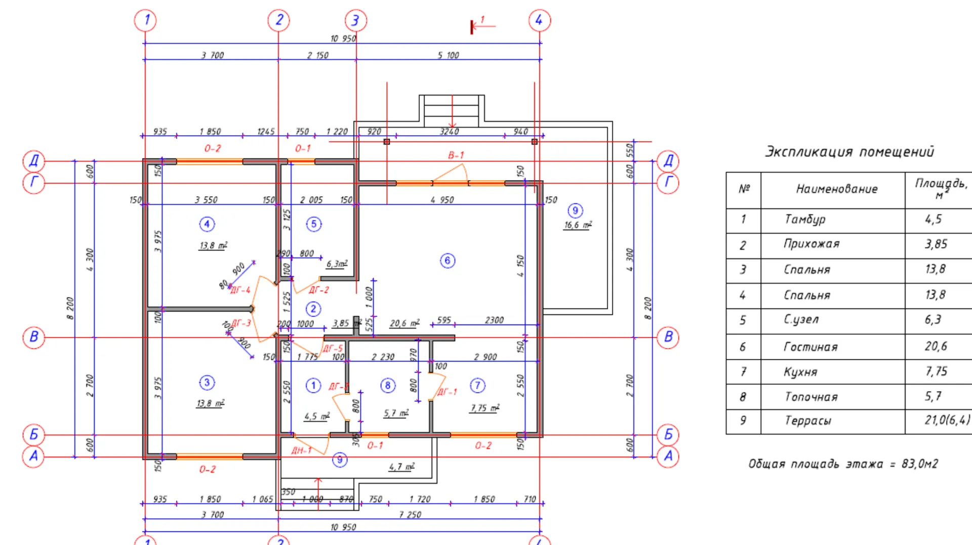
Площадь дома 83 м2
Санузлы 1
Спальни 2

Описание

Приготовьте сердце к уюту «Кейтлин» – небольшому, но неповторимому дому, где каждая деталь говорит о тепле и гармонии. Его классический язык, выполненный из натурального деревянного каркаса, создаёт ощущение домашней простоты и одновременно элегантности. Двускатная крыша подчёркивает традиционный облик, а приподнятый чердачное помещение открывает простор для творчества: можно превратить его в уютный кабинет, игровую комнату или просто хранить летние сокровища. Дом располагается на одном уровне, что делает его особенно привлекательным для постоянных жителей всех возрастов. Отсутствие лестниц и удобные планировки позволяют легко наслаждаться каждым моментом дома, от душевных завтраков на уютной террасе до вечерних перерывов на веранде. Хотя балконы отсутствуют, террасный выход дарит ощущение открытого пространства, позволяя вдыхать свежий воздух и наблюдать за рассветом прямо из спальни. Пристроенный гараж не предусмотрен, но свободный двор и возможность установить модульную парковку подсказывает свободу и простоту городской жизни в сочетании с атмосферой загородного уюта. «Кейтлин» – это не просто дом, а пространство, где классика встречается с современным комфортом. Идеально для тех, кто ценит времяпровождение в кругу семьи, ищет место, где каждый уголок раскрывает новый свет, и где каждый вечер напоминает о простых радостях домашнего уюта. Выбирая «Кейтлин», вы выбираете ваш уголок спокойствия, где каждый день начинается и заканчивается с улыбкой.

Характеристики дома

Архитектурный стиль
Автоматизированное регулирование параметров теплоносителя
Нет
Балконы/лоджии
Отсутствуют
Чердачное помещение
Да
Датчики протечки воды
Нет
Эксплуатируемая или зеленая кровля
Нет
Электроснабжение
Центральное
Газоснабжение
Центральное
Изоляция воздушного шума
Нет
Камин
Нет
Класс энергоэффективности
-
Класс энергосбережения
-
Количество надземных этажей
1
Круглогодичное проживание
Да
Материал кровли
Металлочерепица
Материал перекрытий
Деревянные
Материал внешних стен
Материал внутренних перегородок
Деревянные
Модульное строительство с конструкциями заводского изготовления
Нет
Объем надземной части
520 м3
Основной материал фасадов
Дерево
Отопление
Центральное
Площадь дома
83 м2
Площадь застройки
115 м2
Подвальное помещение
Да
Показатель компактности здания
-
Приборы учета тепловой энергии
Нет
Пристроенный гараж/крытая автостоянка
Нет
Противопожарная система
Нет
Санузлы
1
Совмещенная кухня-гостиная
Нет
Спальни
2
Терраса
Да
Тип фундамента
Свайно-винтовой
Тип кровли
Толщина внешних стен
150 мм
Толщина внутренних перегородок
150 мм
Улучшенные шумовые характеристики
Нет
Вентиляция
Естественная
Веранда
Нет
Водоотведение
Центральное
Водоснабжение
Центральное
Высота дома
5.8 м
Высота потолков
3.1 м

Планировка

Фасад дома

Александр

Закажите выезд инженера

Александр

Выездной инженер
Закажите выезд инженера для точной диагностики и профессиональной консультации по инженерным системам. Специалист приедет в удобное время, проведёт осмотр, рассчитает стоимость работ и подберёт оптимальные решения для вашего дома.


    Похожие проекты

    Ипотека и
    рассрочка
    Двухэтажный дом линейки «Эстетика» 2-175
    Стоимость от:
    462 000
    Проект от: 78 750
    Этажей 2
    Санузлы 2
    Спальни 3
    Смотреть
    Ипотека и
    рассрочка
    Загородный дом «Пегас»
    Стоимость от:
    8 909 520
    Проект от: 55 350
    Этажей 2
    Санузлы 1
    Спальни 4
    Смотреть
    Ипотека и
    рассрочка
    Каркасный жилой дом ДК-101
    Стоимость от:
    5 632 770
    Проект от: 45 450
    Этажей 1
    Санузлы 1
    Спальни 2
    Смотреть
    Ипотека и
    рассрочка
    Каркасный дом Барн 12
    Стоимость от:
    4 907 760
    Проект от: 39 600
    Этажей 1
    Санузлы 1
    Спальни 2
    Смотреть
    Ипотека и
    рассрочка
    Одноэтажный дом ЦМС Руан
    Стоимость от:
    5 084 640
    Проект от: 32 400
    Этажей 1
    Санузлы 1
    Спальни 3
    Смотреть
    Ипотека и
    рассрочка
    Проект 124 маленький дом из отсевоблока и кирпича
    Стоимость от:
    3 389 100
    Проект от: 20 250
    Этажей 1
    Санузлы 1
    Спальни 1
    Смотреть

    Как узнать стоимость дома

    back
    Оставляете заявку
    Вы заполняете форму на сайте или звоните нам. Менеджер Лайвкрафт связывается с вами для уточнения деталей: тип дома, площадь, материалы, участок строительства.
    back
    Консультация и подбор решения
    Наш специалист помогает выбрать оптимальный тип дома и конструкцию с учётом бюджета, сроков и целей — будь то дом для постоянного проживания или дача.
    back
    Расчёт предварительной стоимости
    Инженер делает первичный расчёт стоимости строительства по вашим параметрам: фундамент, коробка, кровля, отделка. Вы получаете смету с разбивкой по этапам.
    back
    Корректировка и утверждение сметы
    При необходимости вносим изменения — например, замену материалов или сокращение этапов. После согласования формируется окончательная фиксированная смета.
    back
    Заключение договора и старт работ
    После утверждения сметы заключаем официальный договор с гарантией. Вы получаете прозрачный график и точную стоимость — без скрытых расходов.

    Заказать конусльтацию по:Кейтлин

    Фото 1 Кейтлин


      Наши
      контакты

      Дмитров
      Опорный проезд 28Б
      (индустриальный парк Ниагара)
      9:00 до 18:00

      Корзина