4.9
Рейтинг на основании 120 отзывов
Дмитров
Опорный проезд 28Б
(индустриальный парк Ниагара)
Бренд "Дмитров-Дело" c 2008 года на рынке строительства в Дмитрове
Звоните 9:00 до 18:00 8 (915) 055-33-61
Бренд "Дмитров-Дело" c 2008 года на рынке строительства в Дмитрове

Дергайково

Стоимость проекта от:
80 550 ₽
Стоимость строительства от:
13 839 980 ₽
Артикул ART-12801
Дата 25.12.2025
Архитектурный стиль Скандинавский
Количество надземных этажей 1
Круглогодичное проживание Да
Площадь дома 179 м2
Санузлы 3
Спальни 4

Описание

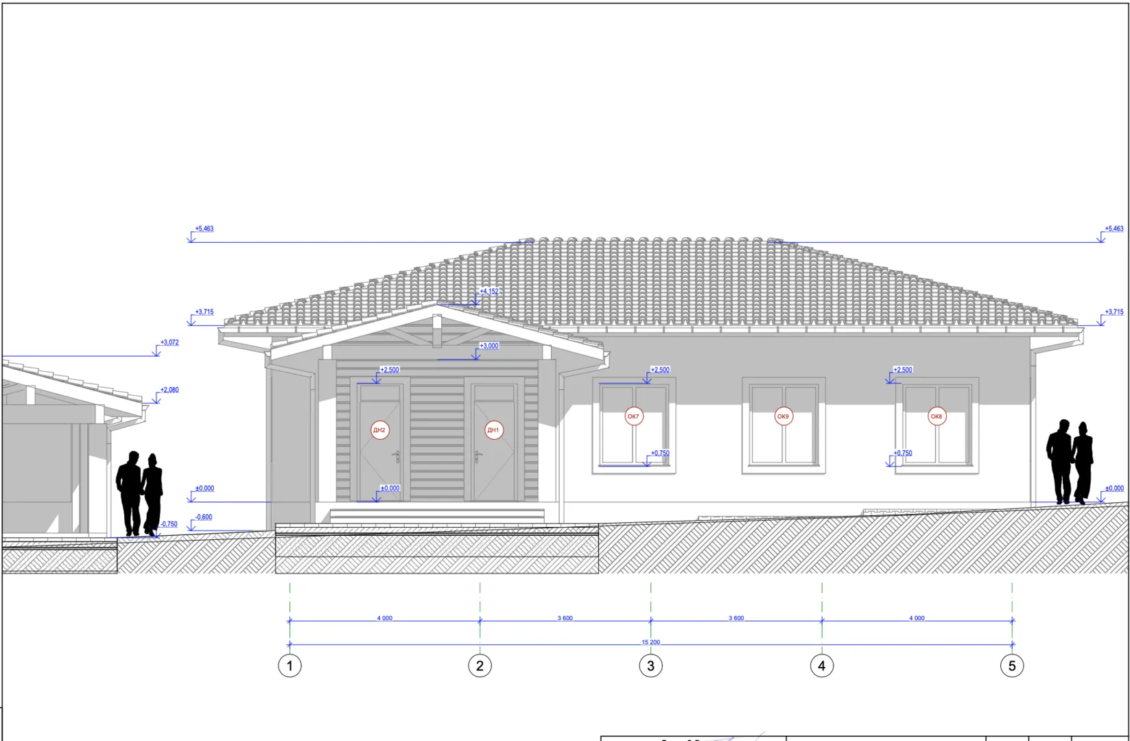
В Дергайково, где гармония природы встречает современный комфорт, вы найдёте уютный одноэтажный дом, выполненный в элегантном скандинавском стиле. Здание, построенное из прочных газобетонных блоков, сохраняет тепло и защищает от влажности, а четыре скатные крыша добавляет изящества архитектуре. Просторных помещений хватает на всю семью: светлый «открытый» план создаёт ощущение простора, а большие панорамные окна наполняют комнату естественным светом, придавая интерьеру лёгкость и открытость. Главное удовольствие от проживания здесь – это ваша личная тераса, где можно наслаждаться восходами, закатами и тихими вечерами, а также проводить время на свежем воздухе в любое время года. Дом спроектирован так, чтобы каждый уголок был лёгок в уходе и уютен в использовании: минимализм скандинавского дизайна подчёркивает чистые линии и натуральные материалы, создавая атмосферу спокойствия и умиротворения. Если вы ищете место, где каждый день начинается как новый рассказ, где простота и функциональность идут рука об руку с эстетикой – этот дом ждёт именно вас.

Характеристики дома

Архитектурный стиль
Скандинавский
Автоматизированное регулирование параметров теплоносителя
Нет
Балконы/лоджии
Отсутствуют
Чердачное помещение
Нет
Датчики протечки воды
Да
Эксплуатируемая или зеленая кровля
Нет
Электроснабжение
Центральное
Газоснабжение
Центральное
Изоляция воздушного шума
Нет
Камин
Да
Класс энергоэффективности
A++
Класс энергосбережения
A++
Количество надземных этажей
1
Круглогодичное проживание
Да
Материал кровли
Металлические листовые гофрированные профили
Материал перекрытий
Деревянные
Материал внешних стен
Газобетонные блоки
Материал внутренних перегородок
Блочные
Модульное строительство с конструкциями заводского изготовления
Нет
Объем надземной части
120 м3
Основной материал фасадов
Штукатурка
Отопление
Индивидуальное
Площадь дома
179 м2
Площадь застройки
235 м2
Подвальное помещение
Нет
Показатель компактности здания
4
Приборы учета тепловой энергии
Нет
Пристроенный гараж/крытая автостоянка
Нет
Противопожарная система
Нет
Санузлы
3
Совмещенная кухня-гостиная
Да
Спальни
4
Терраса
Да
Тип фундамента
Ленточный
Тип кровли
Четырехскатная (вальмовая)
Толщина внешних стен
375 мм
Толщина внутренних перегородок
150 мм
Улучшенные шумовые характеристики
Да
Вентиляция
Естественная
Веранда
Нет
Водоотведение
Центральное
Водоснабжение
Центральное
Высота дома
5.46 м
Высота потолков
3 м

Планировка

Фасад дома

Александр

Закажите выезд инженера

Александр

Выездной инженер
Закажите выезд инженера для точной диагностики и профессиональной консультации по инженерным системам. Специалист приедет в удобное время, проведёт осмотр, рассчитает стоимость работ и подберёт оптимальные решения для вашего дома.


    Похожие проекты

    Ипотека и
    рассрочка
    С-135 Лойк
    Стоимость от:
    7 838 820
    Проект от: 49 950
    Этажей 1
    Санузлы 1
    Спальни 3
    Смотреть
    Ипотека и
    рассрочка
    Статус 10х11 Яхрома
    Стоимость от:
    5 202 450
    Проект от: 40 500
    Этажей 1
    Санузлы 1
    Спальни 3
    Смотреть
    Ипотека и
    рассрочка
    Двухэтажный дом Победа Эстетика 137м2
    Стоимость от:
    9 409 680
    Проект от: 61 650
    Этажей 2
    Санузлы 2
    Спальни 5
    Смотреть
    Ипотека и
    рассрочка
    Одноэтажный дом FIXPLANS — 1169
    Стоимость от:
    7 485 720
    Проект от: 47 700
    Этажей 1
    Санузлы 2
    Спальни 2
    Смотреть
    Ипотека и
    рассрочка
    Уникальный
    Стоимость от:
    5 375 865
    Проект от: 41 850
    Этажей 1
    Санузлы 1
    Спальни 2
    Смотреть
    Ипотека и
    рассрочка
    Дом №2_р.п. Средняя Ахтуба, ул. Первомайская 75
    Стоимость от:
    7 804 940
    Проект от: 48 150
    Этажей 1
    Санузлы 1
    Спальни 3
    Смотреть

    Как узнать стоимость дома

    back
    Оставляете заявку
    Вы заполняете форму на сайте или звоните нам. Менеджер Лайвкрафт связывается с вами для уточнения деталей: тип дома, площадь, материалы, участок строительства.
    back
    Консультация и подбор решения
    Наш специалист помогает выбрать оптимальный тип дома и конструкцию с учётом бюджета, сроков и целей — будь то дом для постоянного проживания или дача.
    back
    Расчёт предварительной стоимости
    Инженер делает первичный расчёт стоимости строительства по вашим параметрам: фундамент, коробка, кровля, отделка. Вы получаете смету с разбивкой по этапам.
    back
    Корректировка и утверждение сметы
    При необходимости вносим изменения — например, замену материалов или сокращение этапов. После согласования формируется окончательная фиксированная смета.
    back
    Заключение договора и старт работ
    После утверждения сметы заключаем официальный договор с гарантией. Вы получаете прозрачный график и точную стоимость — без скрытых расходов.

    Заказать конусльтацию по:Дергайково

    Фото 1 Дергайково


      Наши
      контакты

      Дмитров
      Опорный проезд 28Б
      (индустриальный парк Ниагара)
      9:00 до 18:00