4.9
Рейтинг на основании 120 отзывов
Дмитров
Опорный проезд 28Б
(индустриальный парк Ниагара)
Бренд "Дмитров-Дело" c 2008 года на рынке строительства в Дмитрове
Звоните 9:00 до 18:00 8 (915) 055-33-61
Бренд "Дмитров-Дело" c 2008 года на рынке строительства в Дмитрове

Хютте 80

Стоимость проекта от:
36 900 ₽
БЕСПЛАТНО! ПРИ ЗАКАЗЕ СТРОИТЕЛЬСТВА
Стоимость строительства от:
5 610 440 ₽
Артикул ART-16992
Дата 26.12.2025
Архитектурный стиль Скандинавский
Количество надземных этажей 1
Круглогодичное проживание Да
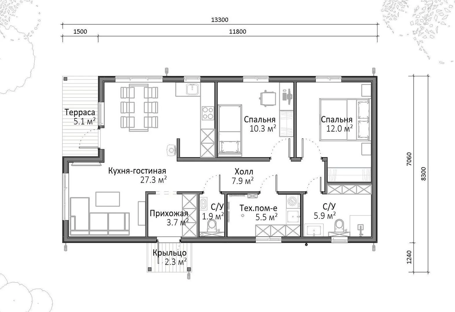
Площадь дома 82 м2
Санузлы 2
Спальни 2

Описание

Представляем «Хютте 80» — уютный и функциональный дом, в котором каждая деталь продумана до мелочей. Один надземный этаж, выполненный в чистом скандинавском стиле, дарит ощущение простора и светлых, воздушных интерьеров. Внутри пространство разделено на открытые зоны с плавными переходами, так что каждый уголок пропитан теплом и вниманием к деталям. Отсутствие балконов и веранд не помешает вам насладиться природой: большая, изогнутая крыша и простые, но элегантные фасады создают впечатление гармоничного объёма, вписываясь в любой ландшафт. Климатически «Хютте 80» предназначен для круглогодичного проживания: изоляция и каркасно‑панельная конструкция обеспечивают надёжную защиту от непогоды и уютную атмосферу даже в самые прохладные месяцы. Кровля — тип двускатный, а наружные стены — каркасно‑панельный элемент, сочетающий легкость и прочность. Для вашего удобства предусмотрена большая терраса, которая открывает выход на свежий воздух, становясь идеальным местом для семейных ужинов или спокойных вечеров. В доме нет прицепного гаража и чердака, что позволяет сосредоточиться на функциональном пространстве интерьера и легко адаптировать планировку под ваши нужды. «Хютте 80» — это не просто деревянный дом, а продолжение спокойной жизни в современном интерьере. Если вы ищете простую, но изысканную квартиру, где чистый дизайн встречается с функциональностью, этот дом точно соответствует вашим ожиданиям и превратит обычные дни в настоящее наслаждение архитектурного чуда.

Характеристики дома

Архитектурный стиль
Автоматизированное регулирование параметров теплоносителя
Да
Балконы/лоджии
Отсутствуют
Чердачное помещение
Нет
Датчики протечки воды
Нет
Эксплуатируемая или зеленая кровля
Нет
Электроснабжение
2 варианта
Газоснабжение
Индивидуальное
Изоляция воздушного шума
Нет
Камин
Нет
Класс энергоэффективности
-
Класс энергосбережения
-
Количество надземных этажей
1
Круглогодичное проживание
Да
Материал кровли
Цементно-песчаная черепица
Материал перекрытий
Иной вид материалов перекрытий
Материал внешних стен
Материал внутренних перегородок
Деревянные
Модульное строительство с конструкциями заводского изготовления
Да
Объем надземной части
388 м3
Основной материал фасадов
Дерево
Отопление
Индивидуальное
Площадь дома
82 м2
Площадь застройки
96 м2
Подвальное помещение
Нет
Показатель компактности здания
-
Приборы учета тепловой энергии
Да
Пристроенный гараж/крытая автостоянка
Нет
Противопожарная система
Нет
Санузлы
2
Совмещенная кухня-гостиная
Да
Спальни
2
Терраса
Да
Тип фундамента
Плитный
Тип кровли
Толщина внешних стен
257 мм
Толщина внутренних перегородок
120 мм
Улучшенные шумовые характеристики
Да
Вентиляция
Естественная
Веранда
Нет
Водоотведение
2 варианта
Водоснабжение
2 варианта
Высота дома
5.3 м
Высота потолков
2.7 м

Планировка

Фасад дома

Александр

Закажите выезд инженера

Александр

Выездной инженер
Закажите выезд инженера для точной диагностики и профессиональной консультации по инженерным системам. Специалист приедет в удобное время, проведёт осмотр, рассчитает стоимость работ и подберёт оптимальные решения для вашего дома.


    Похожие проекты

    Ипотека и
    рассрочка
    Д2-199
    Стоимость от:
    12 827 280
    Проект от: 87 300
    Этажей 2
    Санузлы 2
    Спальни 4
    Смотреть
    Ипотека и
    рассрочка
    Мансардный дом М-113
    Стоимость от:
    10 020 960
    Проект от: 60 300
    Этажей 2
    Санузлы 2
    Спальни 3
    Смотреть
    Ипотека и
    рассрочка
    Проект дома из ячеистого бетона 9,6 на 9,9 м
    Стоимость от:
    6 688 880
    Проект от: 37 800
    Этажей 1
    Санузлы 1
    Спальни 1
    Смотреть
    Ипотека и
    рассрочка
    Загородный дом 74м2
    Стоимость от:
    5 564 680
    Проект от: 33 300
    Этажей 1
    Санузлы 1
    Спальни 2
    Смотреть
    Ипотека и
    рассрочка
    Проект V112
    Стоимость от:
    6 246 240
    Проект от: 50 400
    Этажей 1
    Санузлы 2
    Спальни 3
    Смотреть
    Ипотека и
    рассрочка
    Двухэтажный дом В180
    Стоимость от:
    12 710 880
    Проект от: 81 900
    Этажей 2
    Санузлы 3
    Спальни 3
    Смотреть

    Как узнать стоимость дома

    back
    Оставляете заявку
    Вы заполняете форму на сайте или звоните нам. Менеджер Лайвкрафт связывается с вами для уточнения деталей: тип дома, площадь, материалы, участок строительства.
    back
    Консультация и подбор решения
    Наш специалист помогает выбрать оптимальный тип дома и конструкцию с учётом бюджета, сроков и целей — будь то дом для постоянного проживания или дача.
    back
    Расчёт предварительной стоимости
    Инженер делает первичный расчёт стоимости строительства по вашим параметрам: фундамент, коробка, кровля, отделка. Вы получаете смету с разбивкой по этапам.
    back
    Корректировка и утверждение сметы
    При необходимости вносим изменения — например, замену материалов или сокращение этапов. После согласования формируется окончательная фиксированная смета.
    back
    Заключение договора и старт работ
    После утверждения сметы заключаем официальный договор с гарантией. Вы получаете прозрачный график и точную стоимость — без скрытых расходов.

    Заказать конусльтацию по:Хютте 80

    Фото 1 Хютте 80


      Наши
      контакты

      Дмитров
      Опорный проезд 28Б
      (индустриальный парк Ниагара)
      9:00 до 18:00

      Корзина