4.9
Рейтинг на основании 120 отзывов
Дмитров
Опорный проезд 28Б
(индустриальный парк Ниагара)
Бренд "Дмитров-Дело" c 2008 года на рынке строительства в Дмитрове
Звоните 9:00 до 18:00 8 (915) 055-33-61
Бренд "Дмитров-Дело" c 2008 года на рынке строительства в Дмитрове

Вдохновение 150

Стоимость проекта от:
67 500 ₽
БЕСПЛАТНО! ПРИ ЗАКАЗЕ СТРОИТЕЛЬСТВА
Стоимость строительства от:
9 891 000 ₽
Артикул ART-19153
Дата 26.12.2025
Архитектурный стиль Классический
Количество надземных этажей 2
Круглогодичное проживание Да
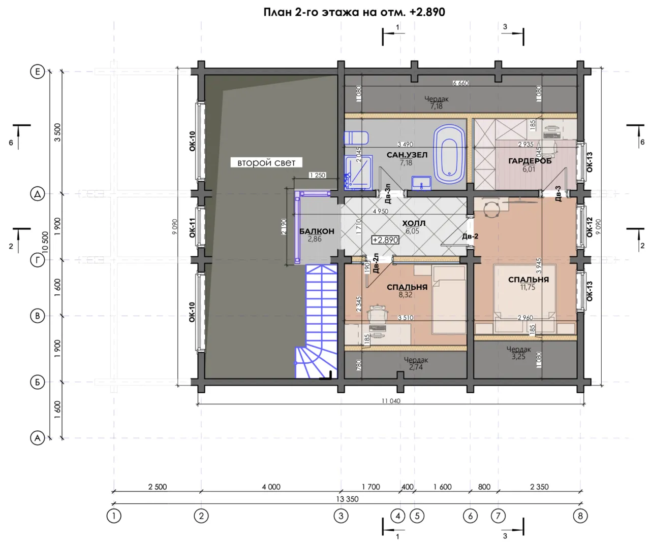
Площадь дома 150 м2
Санузлы 2
Спальни 3

Описание

Прямо в сердце уютного района ждет ваш новый дом – два надземных этажа в классическом стиле, где каждая деталь задумывалась для комфорта и гармонии. Широкие окна пропускают мягкий свет, а двускатная крыша с чердачным пространством открывает возможности для творчества и хранения. Ощутите тепло и благородство профилированного бруса в сочетании с элегантными балконами и просторной террасом, которые создадут идеальное место для семейных прогулок и летних барбекю. Экономичная и практичная, эта резиденция обеспечивает круглогодичное проживание: утепленные стенки, качественная кровля и продуманные окна гарантируют уют даже в самые холодные дни. Уникальная чердачная зона может стать вдохновляющим офисом, игрой для детей или уютной спаленкой, а открытый ливень над входом добавит нотки романтики. Без гаража – ведь здесь ваш приоритет – комфорт и простота: у вас всегда свободное пространство для творчества, а доступ к дороге легко организуется благодаря современной городской инфраструктуре. Этот дом — не просто жильё, а место, где каждый уголок напомнит вам о семье, приятных моментах и безмятежной жизни. Позвольте себе жить счастливо, где каждая деталь создаёт ощущение дома.

Характеристики дома

Архитектурный стиль
Автоматизированное регулирование параметров теплоносителя
Нет
Балконы/лоджии
1
Чердачное помещение
Да
Датчики протечки воды
Нет
Эксплуатируемая или зеленая кровля
Нет
Электроснабжение
Не предусмотрено
Газоснабжение
Не предусмотрено
Изоляция воздушного шума
Нет
Камин
Нет
Класс энергоэффективности
-
Класс энергосбережения
-
Количество надземных этажей
2
Круглогодичное проживание
Да
Материал кровли
Металлочерепица
Материал перекрытий
Деревянные
Материал внешних стен
Материал внутренних перегородок
Деревянные
Модульное строительство с конструкциями заводского изготовления
Нет
Объем надземной части
808 м3
Основной материал фасадов
Дерево
Отопление
Не предусмотрено
Площадь дома
150 м2
Площадь застройки
129 м2
Подвальное помещение
Нет
Показатель компактности здания
-
Приборы учета тепловой энергии
Нет
Пристроенный гараж/крытая автостоянка
Нет
Противопожарная система
Нет
Санузлы
2
Совмещенная кухня-гостиная
Да
Спальни
3
Терраса
Да
Тип фундамента
Свайный
Тип кровли
Толщина внешних стен
195 мм
Толщина внутренних перегородок
195 мм
Улучшенные шумовые характеристики
Нет
Вентиляция
Естественная
Веранда
Нет
Водоотведение
Не предусмотрено
Водоснабжение
Не предусмотрено
Высота дома
6.54 м
Высота потолков
2.61 м

Планировка

Фасад дома

Александр

Закажите выезд инженера

Александр

Выездной инженер
Закажите выезд инженера для точной диагностики и профессиональной консультации по инженерным системам. Специалист приедет в удобное время, проведёт осмотр, рассчитает стоимость работ и подберёт оптимальные решения для вашего дома.


    Похожие проекты

    Ипотека и
    рассрочка
    Проект загородного дома NHD-157
    Стоимость от:
    7 815 280
    Проект от: 46 800
    Этажей 1
    Санузлы 1
    Спальни 3
    Смотреть
    Ипотека и
    рассрочка
    Каркасный дом 9х18 К-30
    Стоимость от:
    7 767 980
    Проект от: 60 300
    Этажей 1
    Санузлы 2
    Спальни 4
    Смотреть
    Ипотека и
    рассрочка
    Арвон
    Стоимость от:
    5 790 840
    Проект от: 36 900
    Этажей 1
    Санузлы 1
    Спальни 2
    Смотреть
    Ипотека и
    рассрочка
    МИКЕЯ 5 одноэтажный дом со вторым светом
    Стоимость от:
    11 357 720
    Проект от: 74 700
    Этажей 1
    Санузлы 2
    Спальни 3
    Смотреть
    Ипотека и
    рассрочка
    Каркасный дом. Проект К — 72.
    Стоимость от:
    4 405 720
    Проект от: 34 200
    Этажей 1
    Санузлы 2
    Спальни 3
    Смотреть
    Ипотека и
    рассрочка
    ДРЕВЕСНЫЙ КОМФОРТ
    Стоимость от:
    3 820 200
    Проект от: 29 250
    Этажей 2
    Санузлы 1
    Спальни 2
    Смотреть

    Как узнать стоимость дома

    back
    Оставляете заявку
    Вы заполняете форму на сайте или звоните нам. Менеджер Лайвкрафт связывается с вами для уточнения деталей: тип дома, площадь, материалы, участок строительства.
    back
    Консультация и подбор решения
    Наш специалист помогает выбрать оптимальный тип дома и конструкцию с учётом бюджета, сроков и целей — будь то дом для постоянного проживания или дача.
    back
    Расчёт предварительной стоимости
    Инженер делает первичный расчёт стоимости строительства по вашим параметрам: фундамент, коробка, кровля, отделка. Вы получаете смету с разбивкой по этапам.
    back
    Корректировка и утверждение сметы
    При необходимости вносим изменения — например, замену материалов или сокращение этапов. После согласования формируется окончательная фиксированная смета.
    back
    Заключение договора и старт работ
    После утверждения сметы заключаем официальный договор с гарантией. Вы получаете прозрачный график и точную стоимость — без скрытых расходов.

    Заказать конусльтацию по:Вдохновение 150

    Фото 1 Вдохновение 150


      Наши
      контакты

      Дмитров
      Опорный проезд 28Б
      (индустриальный парк Ниагара)
      9:00 до 18:00

      Корзина