4.9
Рейтинг на основании 120 отзывов
Дмитров
Опорный проезд 28Б
(индустриальный парк Ниагара)
Бренд "Дмитров-Дело" c 2008 года на рынке строительства в Дмитрове
Звоните 9:00 до 18:00 8 (915) 055-33-61
Бренд "Дмитров-Дело" c 2008 года на рынке строительства в Дмитрове

Дом №20

Стоимость проекта от:
50 850 ₽
БЕСПЛАТНО! ПРИ ЗАКАЗЕ СТРОИТЕЛЬСТВА
Стоимость строительства от:
8 992 060 ₽
Артикул ART-10896
Дата 25.12.2025
Архитектурный стиль Русский
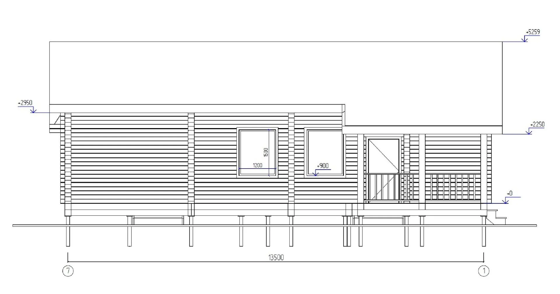
Количество надземных этажей 1
Круглогодичное проживание Да
Площадь дома 113 м2
Санузлы 1
Спальни 3

Описание

Сочетание традиционной русской архитектуры и современных удобств делает дом №20 идеальным местом для тех, кто ценит уют и функциональность. Первый надземный этаж, обрамленный газобетонными блоками, дарит тепло и шумоизоляцию, а многощипковая крыша добавляет характер и защищает от непогоды. Здесь можно жить круглый год, ведь дом спроектирован с учётом комфортных температурных условий и устойчивости к климатическим колебаниям. Одним из самых заманчивых элементов этого дома является просторная веранда, открытая к живописному огороду и тёплому летнему воздуху. Вечерами вы сможете наслаждаться ароматом свежих трав и закатами, а на утреннем солнце разбудить внутреннее спокойствие. Тераса, открывающая вид на окрестности, приглашается к прогулкам и лёгким летним встречам с друзьями. Этот дом – не просто место, где можно обосноваться, а настоящий оазис гармонии и уюта. Прибытие в него наполнится ощущением домашнего тепла, а вы будете радовать своей гостеприимностью. Прожив в Домом №20, вы обретаете не только жильё, но и уютный уголок, где каждый день становится маленьким праздником.

Характеристики дома

Архитектурный стиль
Автоматизированное регулирование параметров теплоносителя
Нет
Балконы/лоджии
Отсутствуют
Чердачное помещение
Нет
Датчики протечки воды
Нет
Эксплуатируемая или зеленая кровля
Нет
Электроснабжение
Не предусмотрено
Газоснабжение
Не предусмотрено
Изоляция воздушного шума
Да
Камин
Нет
Класс энергоэффективности
-
Класс энергосбережения
-
Количество надземных этажей
1
Круглогодичное проживание
Да
Материал кровли
Металлочерепица
Материал перекрытий
Монолитные железобетонные
Материал внешних стен
Материал внутренних перегородок
Пенобетонные
Модульное строительство с конструкциями заводского изготовления
Нет
Объем надземной части
390 м3
Основной материал фасадов
Облицовочный кирпич
Отопление
Не предусмотрено
Площадь дома
113 м2
Площадь застройки
145 м2
Подвальное помещение
Нет
Показатель компактности здания
-
Приборы учета тепловой энергии
Нет
Пристроенный гараж/крытая автостоянка
Нет
Противопожарная система
Нет
Санузлы
1
Совмещенная кухня-гостиная
Да
Спальни
3
Терраса
Да
Тип фундамента
Ленточный
Тип кровли
Толщина внешних стен
400 мм
Толщина внутренних перегородок
250 мм
Улучшенные шумовые характеристики
Да
Вентиляция
Рекуперация
Веранда
Да
Водоотведение
Не предусмотрено
Водоснабжение
Не предусмотрено
Высота дома
5.27 м
Высота потолков
3 м

Планировка

Фасад дома

Александр

Закажите выезд инженера

Александр

Выездной инженер
Закажите выезд инженера для точной диагностики и профессиональной консультации по инженерным системам. Специалист приедет в удобное время, проведёт осмотр, рассчитает стоимость работ и подберёт оптимальные решения для вашего дома.


    Похожие проекты

    Ипотека и
    рассрочка
    Двухэтажный дом с камином на террасе БРАИТ-41
    Стоимость от:
    11 898 960
    Проект от: 71 550
    Этажей 2
    Санузлы 2
    Спальни 3
    Смотреть
    Ипотека и
    рассрочка
    Жилой Дом № 14
    Стоимость от:
    5 714 720
    Проект от: 34 200
    Этажей 1
    Санузлы 1
    Спальни 2
    Смотреть
    Ипотека и
    рассрочка
    Смоленск
    Стоимость от:
    4 915 080
    Проект от: 36 900
    Этажей 2
    Санузлы 1
    Спальни 3
    Смотреть
    Ипотека и
    рассрочка
    Модульный дом Idolhouse 72
    Стоимость от:
    2 676 960
    Проект от: 21 600
    Этажей 1
    Санузлы 1
    Спальни 2
    Смотреть
    Ипотека и
    рассрочка
    АС — Архитектурно-строительные решения АС-2465
    Стоимость от:
    5 932 080
    Проект от: 37 800
    Этажей 1
    Санузлы 2
    Спальни 3
    Смотреть
    Ипотека и
    рассрочка
    БарнХаус 2 этажа
    Стоимость от:
    7 932 000
    Проект от: 60 750
    Этажей 2
    Санузлы 2
    Спальни 3
    Смотреть

    Как узнать стоимость дома

    back
    Оставляете заявку
    Вы заполняете форму на сайте или звоните нам. Менеджер Лайвкрафт связывается с вами для уточнения деталей: тип дома, площадь, материалы, участок строительства.
    back
    Консультация и подбор решения
    Наш специалист помогает выбрать оптимальный тип дома и конструкцию с учётом бюджета, сроков и целей — будь то дом для постоянного проживания или дача.
    back
    Расчёт предварительной стоимости
    Инженер делает первичный расчёт стоимости строительства по вашим параметрам: фундамент, коробка, кровля, отделка. Вы получаете смету с разбивкой по этапам.
    back
    Корректировка и утверждение сметы
    При необходимости вносим изменения — например, замену материалов или сокращение этапов. После согласования формируется окончательная фиксированная смета.
    back
    Заключение договора и старт работ
    После утверждения сметы заключаем официальный договор с гарантией. Вы получаете прозрачный график и точную стоимость — без скрытых расходов.

    Заказать конусльтацию по:Дом №20

    Фото 1 Дом №20


      Наши
      контакты

      Дмитров
      Опорный проезд 28Б
      (индустриальный парк Ниагара)
      9:00 до 18:00

      Корзина