4.9
Рейтинг на основании 120 отзывов
Дмитров
Опорный проезд 28Б
(индустриальный парк Ниагара)
Бренд "Дмитров-Дело" c 2008 года на рынке строительства в Дмитрове
Звоните 9:00 до 18:00 8 (915) 055-33-61
Бренд "Дмитров-Дело" c 2008 года на рынке строительства в Дмитрове

Дом 4С-110 (2)

Стоимость проекта от:
49 500 ₽
БЕСПЛАТНО! ПРИ ЗАКАЗЕ СТРОИТЕЛЬСТВА
Стоимость строительства от:
8 229 600 ₽
Артикул ART-17777
Дата 26.12.2025
Архитектурный стиль Европейский
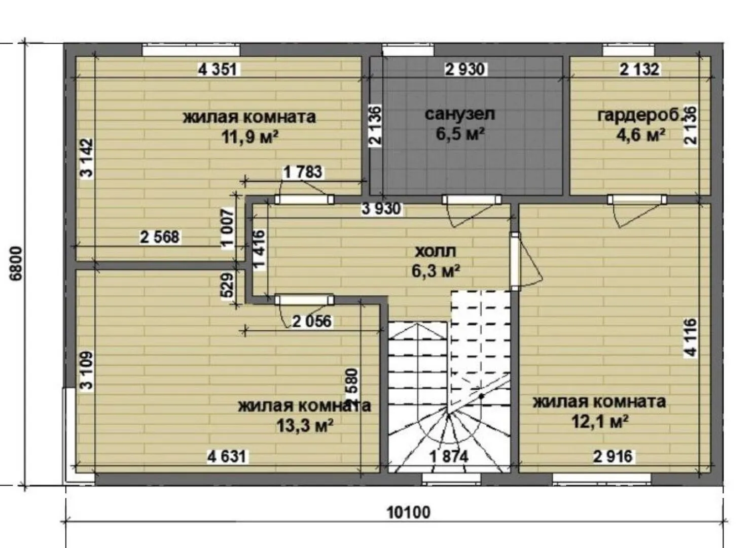
Количество надземных этажей 2
Круглогодичное проживание Да
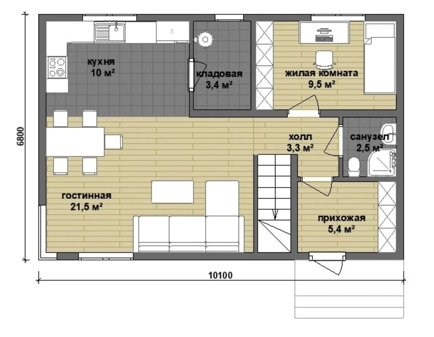
Площадь дома 110 м2
Санузлы 2
Спальни 4

Описание

Дом 4С‑110 (2) – это уютный уголок, где традиционный европейский стиль встречается с современными удобствами. Благодаря двум надземным этажам и ровной двускатной крыше вы получите оптимальное соотношение пространства и теплости, а отсутствие балконов и веранд позволит наслаждаться приватностью внутри дома. Веранда, при которой бывающие жители иногда ищут, здесь не предусмотрена, но это помогает сохранять тишину и целостность архитектурного образца. Керамзитобетонные блоки, используемые в внешних стенах, обеспечивают надёжную защиту от холода и влаги, а также продлевают срок службы конструкции. Круглогодичное проживание гарантирует комфорт даже в самые суровые зимние периоды, благодаря тщательно продуманной теплоизоляции. Отсутствие пристроенного гаража и крытых автостоянок добавляет в дизайн чистую, непрерывную линию фасада, а отсутствие чердач, террас и лоджий делает жильё более простым и лёгким в эксплуатации. Этот дом – идеальный выбор для тех, кто ценит простоту и качество. Здесь каждый элемент отвечает принципам функциональности и эстетики, а архитектурный стиль создаёт ощущение домашнего уюта в европейской гармонии. Вы сможете наслаждаться спокойствием, зная, что ваш дом – надёжная, целостная и комфортная обитель в любое время года.

Характеристики дома

Архитектурный стиль
Автоматизированное регулирование параметров теплоносителя
Нет
Балконы/лоджии
Отсутствуют
Чердачное помещение
Нет
Датчики протечки воды
Нет
Эксплуатируемая или зеленая кровля
Нет
Электроснабжение
Не предусмотрено
Газоснабжение
Не предусмотрено
Изоляция воздушного шума
Нет
Камин
Нет
Класс энергоэффективности
-
Класс энергосбережения
-
Количество надземных этажей
2
Круглогодичное проживание
Да
Материал кровли
Металлочерепица
Материал перекрытий
Деревянные
Материал внешних стен
Материал внутренних перегородок
Блочные
Модульное строительство с конструкциями заводского изготовления
Нет
Объем надземной части
412 м3
Основной материал фасадов
Штукатурка
Отопление
Не предусмотрено
Площадь дома
110 м2
Площадь застройки
137 м2
Подвальное помещение
Нет
Показатель компактности здания
-
Приборы учета тепловой энергии
Нет
Пристроенный гараж/крытая автостоянка
Нет
Противопожарная система
Нет
Санузлы
2
Совмещенная кухня-гостиная
Да
Спальни
4
Терраса
Нет
Тип фундамента
Ленточный
Тип кровли
Толщина внешних стен
200 мм
Толщина внутренних перегородок
100 мм
Улучшенные шумовые характеристики
Нет
Вентиляция
Естественная
Веранда
Нет
Водоотведение
Не предусмотрено
Водоснабжение
Не предусмотрено
Высота дома
8.27 м
Высота потолков
2.8 м

Планировка

Фасад дома

Александр

Закажите выезд инженера

Александр

Выездной инженер
Закажите выезд инженера для точной диагностики и профессиональной консультации по инженерным системам. Специалист приедет в удобное время, проведёт осмотр, рассчитает стоимость работ и подберёт оптимальные решения для вашего дома.


    Похожие проекты

    Ипотека и
    рассрочка
    Авторский проект «Актау 1.0»
    Стоимость от:
    6 708 900
    Проект от: 42 750
    Этажей 1
    Санузлы 1
    Спальни 2
    Смотреть
    Ипотека и
    рассрочка
    VALENSIA-3
    Стоимость от:
    4 590 300
    Проект от: 29 250
    Этажей 1
    Санузлы 1
    Спальни 2
    Смотреть
    Ипотека и
    рассрочка
    Одноэтажный дом К-220
    Стоимость от:
    15 395 160
    Проект от: 98 100
    Этажей 1
    Санузлы 2
    Спальни 3
    Смотреть
    Ипотека и
    рассрочка
    Проект выставочного дома в Алтуфьево
    Стоимость от:
    7 253 400
    Проект от: 49 500
    Этажей 2
    Санузлы 3
    Спальни 4
    Смотреть
    Ипотека и
    рассрочка
    Проект V105S (с сауной)
    Стоимость от:
    5 624 850
    Проект от: 47 250
    Этажей 1
    Санузлы 1
    Спальни 2
    Смотреть
    Ипотека и
    рассрочка
    Одноэтажный дом из клеёного бруса КБ-130
    Стоимость от:
    8 894 600
    Проект от: 58 500
    Этажей 1
    Санузлы 1
    Спальни 2
    Смотреть

    Как узнать стоимость дома

    back
    Оставляете заявку
    Вы заполняете форму на сайте или звоните нам. Менеджер Лайвкрафт связывается с вами для уточнения деталей: тип дома, площадь, материалы, участок строительства.
    back
    Консультация и подбор решения
    Наш специалист помогает выбрать оптимальный тип дома и конструкцию с учётом бюджета, сроков и целей — будь то дом для постоянного проживания или дача.
    back
    Расчёт предварительной стоимости
    Инженер делает первичный расчёт стоимости строительства по вашим параметрам: фундамент, коробка, кровля, отделка. Вы получаете смету с разбивкой по этапам.
    back
    Корректировка и утверждение сметы
    При необходимости вносим изменения — например, замену материалов или сокращение этапов. После согласования формируется окончательная фиксированная смета.
    back
    Заключение договора и старт работ
    После утверждения сметы заключаем официальный договор с гарантией. Вы получаете прозрачный график и точную стоимость — без скрытых расходов.

    Заказать конусльтацию по:Дом 4С-110 (2)

    Фото 1 Дом 4С-110 (2)


      Наши
      контакты

      Дмитров
      Опорный проезд 28Б
      (индустриальный парк Ниагара)
      9:00 до 18:00

      Корзина