4.9
Рейтинг на основании 120 отзывов
Дмитров
Опорный проезд 28Б
(индустриальный парк Ниагара)
Бренд "Дмитров-Дело" c 2008 года на рынке строительства в Дмитрове
Звоните 9:00 до 18:00 8 (915) 055-33-61
Бренд "Дмитров-Дело" c 2008 года на рынке строительства в Дмитрове

Дом 94 м2

Стоимость проекта от:
42 300 ₽
БЕСПЛАТНО! ПРИ ЗАКАЗЕ СТРОИТЕЛЬСТВА
Стоимость строительства от:
7 065 080 ₽
Артикул ART-14311
Дата 25.12.2025
Архитектурный стиль Классический
Количество надземных этажей 1
Круглогодичное проживание Да
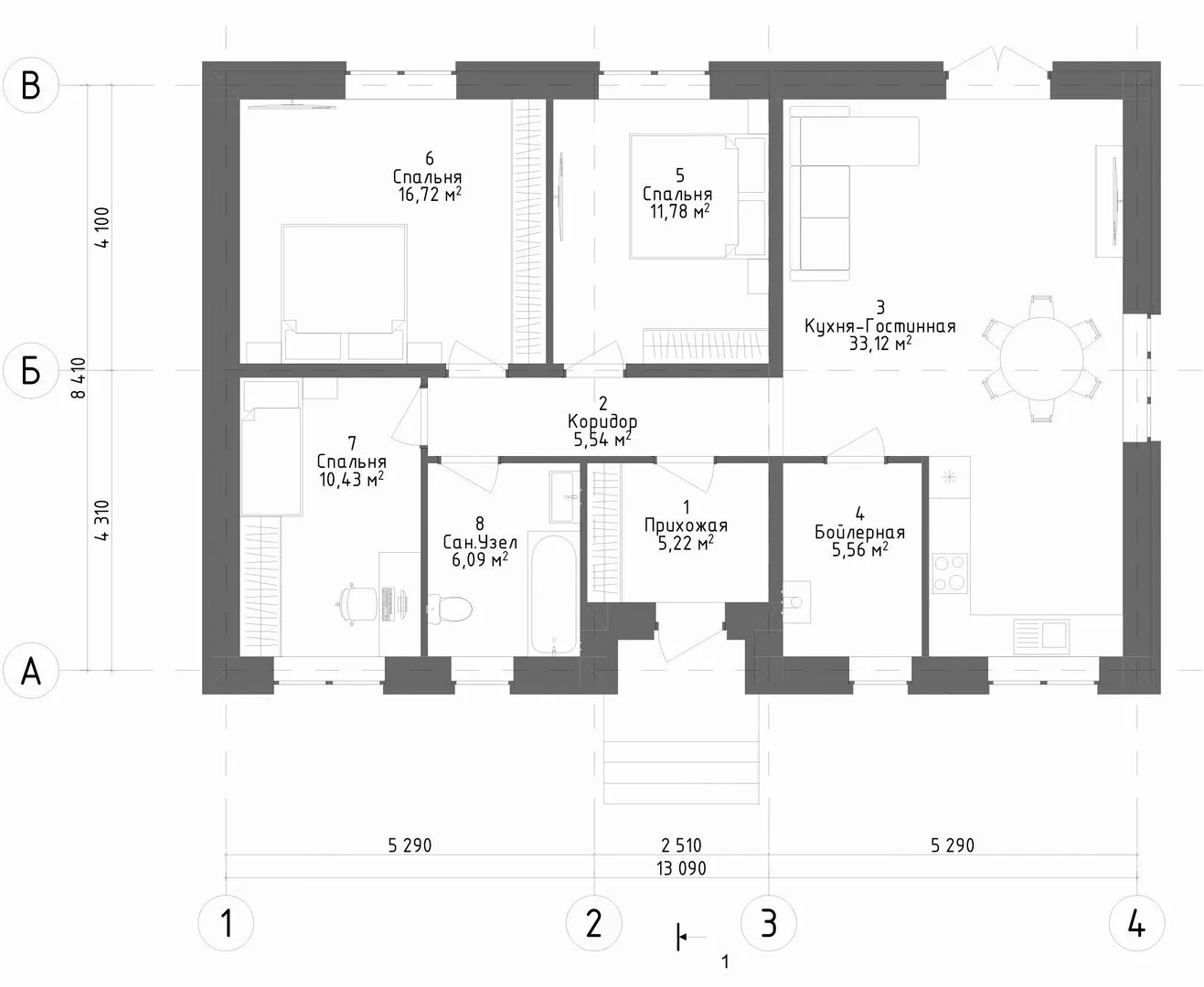
Площадь дома 94 м2
Санузлы 1
Спальни 3

Описание

Сердце вашего будущего дома — просторные 94 м², оформленные в неповторящем классическом стиле. Плюс одно надземное помещение, которое позволяет легко разделить пространство между родными и гостями, а двускатная крыша добавляет ощущение уюта и защищенности. Число этажей одно, однако внутри каждый уголок продуман до мелочей: от светлых оконных проёмов до гармонично расположенных комнат. Газобетонные блоки, которые составляют внешние стены, дарят отличную теплоизоляцию и долговечность, а круглогодичное проживание становится реальностью благодаря обширным материалам, обеспечивающим хорошую шумоизоляцию и энергоэффективность. Внутренняя планировка обеспечивает приятную циркуляцию воздуха, а отсутствие громоздких конструкций, как веранда, балконы и прицепные гаражи, освобождают пространство для современных удобств вашей семьи. Дом приглашает окунуться в атмосферу тепла и спокойствия, где каждое мгновение чувствуется как собственное. Это не просто постройка, это место, где ваши мечты обретают форму и где каждый день начинается с улыбки простых, но важных деталей. Сделайте свой шаг к новому началу уже сегодня и откройте двери в комфорт и уют, где каждый метр говорит о заботе и стиле.

Характеристики дома

Архитектурный стиль
Автоматизированное регулирование параметров теплоносителя
Нет
Балконы/лоджии
Отсутствуют
Чердачное помещение
Нет
Датчики протечки воды
Нет
Эксплуатируемая или зеленая кровля
Нет
Электроснабжение
Не предусмотрено
Газоснабжение
Не предусмотрено
Изоляция воздушного шума
Нет
Камин
Нет
Класс энергоэффективности
-
Класс энергосбережения
-
Количество надземных этажей
1
Круглогодичное проживание
Да
Материал кровли
Металлочерепица
Материал перекрытий
Деревянные
Материал внешних стен
Материал внутренних перегородок
Пенобетонные
Модульное строительство с конструкциями заводского изготовления
Нет
Объем надземной части
624 м3
Основной материал фасадов
Штукатурка
Отопление
Не предусмотрено
Площадь дома
94 м2
Площадь застройки
118 м2
Подвальное помещение
Нет
Показатель компактности здания
-
Приборы учета тепловой энергии
Нет
Пристроенный гараж/крытая автостоянка
Нет
Противопожарная система
Нет
Санузлы
1
Совмещенная кухня-гостиная
Да
Спальни
3
Терраса
Нет
Тип фундамента
Свайно-ростверковый
Тип кровли
Толщина внешних стен
400 мм
Толщина внутренних перегородок
100 мм
Улучшенные шумовые характеристики
Нет
Вентиляция
Естественная
Веранда
Нет
Водоотведение
Не предусмотрено
Водоснабжение
Не предусмотрено
Высота дома
5.3 м
Высота потолков
3 м

Планировка

Фасад дома

Александр

Закажите выезд инженера

Александр

Выездной инженер
Закажите выезд инженера для точной диагностики и профессиональной консультации по инженерным системам. Специалист приедет в удобное время, проведёт осмотр, рассчитает стоимость работ и подберёт оптимальные решения для вашего дома.


    Похожие проекты

    Ипотека и
    рассрочка
    Дом из CLT «Тольятти»
    Стоимость от:
    853 200
    Проект от: 81 000
    Этажей 2
    Санузлы 2
    Спальни 4
    Смотреть
    Ипотека и
    рассрочка
    СП-1-58
    Стоимость от:
    3 124 770
    Проект от: 22 950
    Этажей 1
    Санузлы 1
    Спальни 2
    Смотреть
    Ипотека и
    рассрочка
    КСТ-Д-04
    Стоимость от:
    12 028 500
    Проект от: 74 250
    Этажей 1
    Санузлы 2
    Спальни 3
    Смотреть
    Ипотека и
    рассрочка
    Одноэтажный дом FIXPLANS — 2132
    Стоимость от:
    244 420
    Проект от: 45 450
    Этажей 1
    Санузлы 2
    Спальни 2
    Смотреть
    Ипотека и
    рассрочка
    Одноэтажный дом FIXPLANS — 2321
    Стоимость от:
    8 121 300
    Проект от: 51 750
    Этажей 1
    Санузлы 1
    Спальни 3
    Смотреть
    Ипотека и
    рассрочка
    Двухэтажный жилой дом БИЛЬБАО 100 м2
    Стоимость от:
    7 238 400
    Проект от: 45 000
    Этажей 2
    Санузлы 2
    Спальни 3
    Смотреть

    Как узнать стоимость дома

    back
    Оставляете заявку
    Вы заполняете форму на сайте или звоните нам. Менеджер Лайвкрафт связывается с вами для уточнения деталей: тип дома, площадь, материалы, участок строительства.
    back
    Консультация и подбор решения
    Наш специалист помогает выбрать оптимальный тип дома и конструкцию с учётом бюджета, сроков и целей — будь то дом для постоянного проживания или дача.
    back
    Расчёт предварительной стоимости
    Инженер делает первичный расчёт стоимости строительства по вашим параметрам: фундамент, коробка, кровля, отделка. Вы получаете смету с разбивкой по этапам.
    back
    Корректировка и утверждение сметы
    При необходимости вносим изменения — например, замену материалов или сокращение этапов. После согласования формируется окончательная фиксированная смета.
    back
    Заключение договора и старт работ
    После утверждения сметы заключаем официальный договор с гарантией. Вы получаете прозрачный график и точную стоимость — без скрытых расходов.

    Заказать конусльтацию по:Дом 94 м2

    Фото 1 Дом 94 м2


      Наши
      контакты

      Дмитров
      Опорный проезд 28Б
      (индустриальный парк Ниагара)
      9:00 до 18:00

      Корзина