4.9
Рейтинг на основании 120 отзывов
Дмитров
Опорный проезд 28Б
(индустриальный парк Ниагара)
Бренд "Дмитров-Дело" c 2008 года на рынке строительства в Дмитрове
Звоните 9:00 до 18:00 8 (915) 055-33-61
Бренд "Дмитров-Дело" c 2008 года на рынке строительства в Дмитрове

Шведский 10

Стоимость проекта от:
49 950 ₽
Стоимость строительства от:
6 190 470 ₽
Артикул ART-14336
Дата 25.12.2025
Архитектурный стиль Скандинавский
Количество надземных этажей 1
Круглогодичное проживание Да
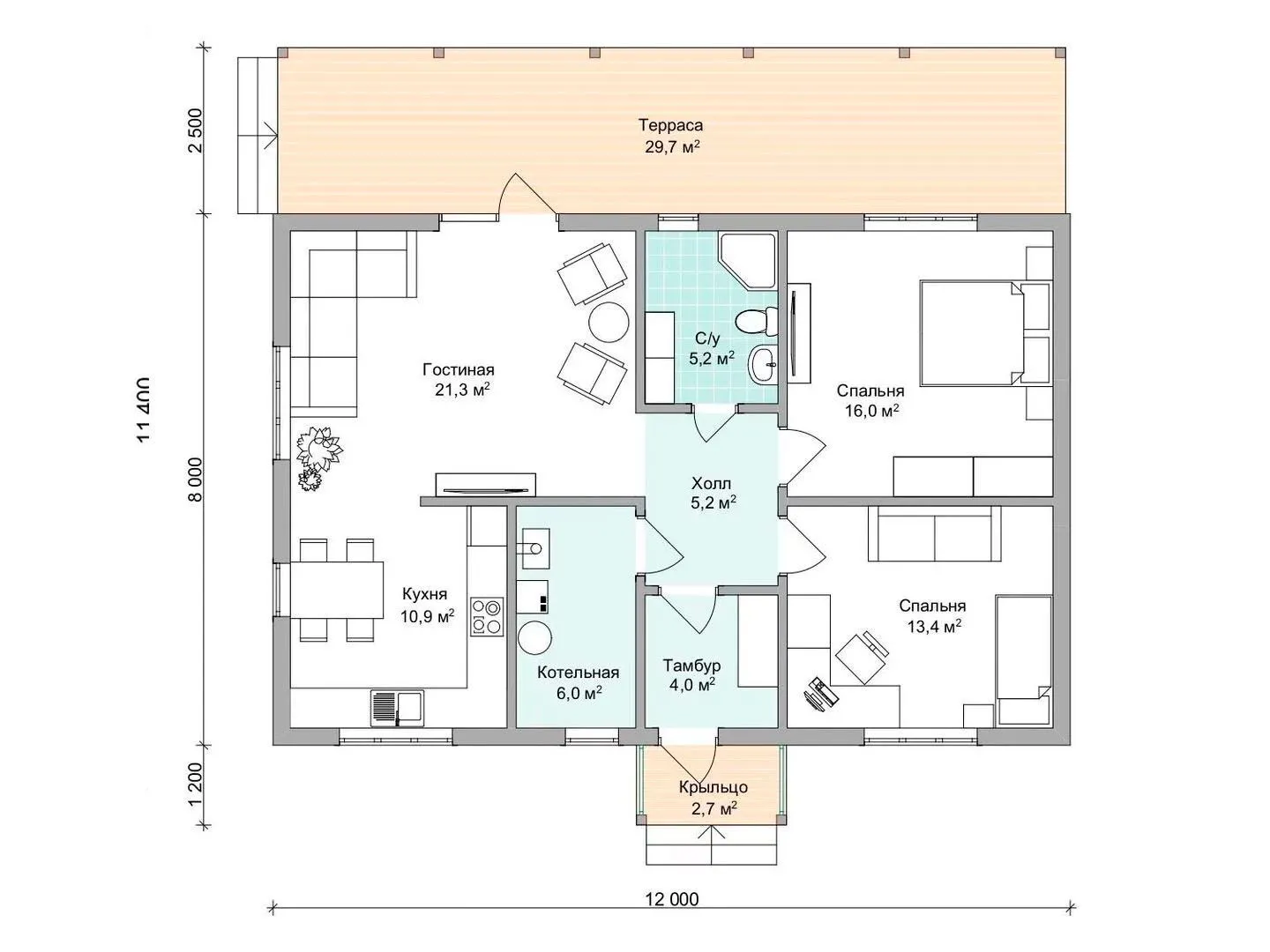
Площадь дома 111 м2
Санузлы 1
Спальни 2

Описание

Добро пожаловать в уютный уголок уюта и природной красоты – дом «Шведский 10». Этот одноэтажный шедевр в скандинавском стиле воплощает идеальное сочетание простоты и элегантности, позволяя наслаждаться полным круговоротом времени года. Залог комфорта – просторный дом, обрамленный деревянным каркасом, который дарит тепло и мягкое звучание деревни, даже в самый холодный зимний день. Собственник и гости будут восхищены продуманной планировкой: светлая и уютная гостиная, из которой открывается захватывающий вид на просторную террасу, приглашает проводить вечера в кругу родных и друзей. Комбинированный профиль кровли не только подчеркивает уникальный характер дома, но и обеспечивает защиту от непогоды при сохранении классической эстетики. Несмотря на отсутствие гаража и прибрежных конструкций, дом «Шведский 10» предлагает свободу в использовании пространства, которое можно легко адаптировать под любой образ жизни: создайте уединенный уголок для творчества, организуйте яркое семейное пространство или уединённый офис под открытым небом. Эта резиденция – воплощение настоящего качества, где каждая деталь продумана до мелочей, а атмосфера приглашает погрузиться в атмосферу спокойствия и гармонии. Не упустите шанс стать владельцем настоящего шедевра, где современные удобства и скандинавский колорит образуют неповторимый союз тепла, света и уюта.

Характеристики дома

Архитектурный стиль
Скандинавский
Автоматизированное регулирование параметров теплоносителя
Да
Балконы/лоджии
Отсутствуют
Чердачное помещение
Нет
Датчики протечки воды
Да
Эксплуатируемая или зеленая кровля
Нет
Электроснабжение
2 варианта
Газоснабжение
Центральное
Изоляция воздушного шума
Нет
Камин
Нет
Класс энергоэффективности
-
Класс энергосбережения
-
Количество надземных этажей
1
Круглогодичное проживание
Да
Материал кровли
Металлические листовые гофрированные профили
Материал перекрытий
Деревянные
Материал внешних стен
Деревянные каркасные
Материал внутренних перегородок
Деревянные
Модульное строительство с конструкциями заводского изготовления
Нет
Объем надземной части
-
Основной материал фасадов
Дерево
Отопление
Индивидуальное
Площадь дома
111 м2
Площадь застройки
140 м2
Подвальное помещение
Нет
Показатель компактности здания
-
Приборы учета тепловой энергии
Нет
Пристроенный гараж/крытая автостоянка
Нет
Противопожарная система
Да
Санузлы
1
Совмещенная кухня-гостиная
Да
Спальни
2
Терраса
Да
Тип фундамента
Свайный
Тип кровли
Комбинированная
Толщина внешних стен
220 мм
Толщина внутренних перегородок
160 мм
Улучшенные шумовые характеристики
Да
Вентиляция
3 варианта
Веранда
Нет
Водоотведение
2 варианта
Водоснабжение
2 варианта
Высота дома
3.4 м
Высота потолков
2.7 м

Планировка

Фасад дома

Александр

Закажите выезд инженера

Александр

Выездной инженер
Закажите выезд инженера для точной диагностики и профессиональной консультации по инженерным системам. Специалист приедет в удобное время, проведёт осмотр, рассчитает стоимость работ и подберёт оптимальные решения для вашего дома.


    Похожие проекты

    Ипотека и
    рассрочка
    Одноэтажный коттедж Комфортный КИТ -1/90
    Стоимость от:
    5 500 220
    Проект от: 31 950
    Этажей 1
    Санузлы 1
    Спальни 2
    Смотреть
    Ипотека и
    рассрочка
    Лира 2
    Стоимость от:
    6 157 800
    Проект от: 40 500
    Этажей 1
    Санузлы 1
    Спальни 2
    Смотреть
    Ипотека и
    рассрочка
    Дом из клееного бруса Можайск-2
    Стоимость от:
    10 946 040
    Проект от: 74 700
    Этажей 2
    Санузлы 3
    Спальни 4
    Смотреть
    Ипотека и
    рассрочка
    Двухэтажный загородный дом SS-129
    Стоимость от:
    8 038 800
    Проект от: 51 750
    Этажей 2
    Санузлы 2
    Спальни 4
    Смотреть
    Ипотека и
    рассрочка
    Дом 105кв.м.
    Стоимость от:
    7 890 300
    Проект от: 47 250
    Этажей 1
    Санузлы 1
    Спальни 3
    Смотреть
    Ипотека и
    рассрочка
    Кирпичный дом, модерн 80 м²
    Стоимость от:
    5 838 800
    Проект от: 36 000
    Этажей 1
    Санузлы 2
    Спальни 2
    Смотреть

    Как узнать стоимость дома

    back
    Оставляете заявку
    Вы заполняете форму на сайте или звоните нам. Менеджер Лайвкрафт связывается с вами для уточнения деталей: тип дома, площадь, материалы, участок строительства.
    back
    Консультация и подбор решения
    Наш специалист помогает выбрать оптимальный тип дома и конструкцию с учётом бюджета, сроков и целей — будь то дом для постоянного проживания или дача.
    back
    Расчёт предварительной стоимости
    Инженер делает первичный расчёт стоимости строительства по вашим параметрам: фундамент, коробка, кровля, отделка. Вы получаете смету с разбивкой по этапам.
    back
    Корректировка и утверждение сметы
    При необходимости вносим изменения — например, замену материалов или сокращение этапов. После согласования формируется окончательная фиксированная смета.
    back
    Заключение договора и старт работ
    После утверждения сметы заключаем официальный договор с гарантией. Вы получаете прозрачный график и точную стоимость — без скрытых расходов.

    Заказать конусльтацию по:Шведский 10

    Фото 1 Шведский 10


      Наши
      контакты

      Дмитров
      Опорный проезд 28Б
      (индустриальный парк Ниагара)
      9:00 до 18:00