4.9
Рейтинг на основании 120 отзывов
Дмитров
Опорный проезд 28Б
(индустриальный парк Ниагара)
Бренд "Дмитров-Дело" c 2008 года на рынке строительства в Дмитрове
Звоните 9:00 до 18:00 8 (915) 055-33-61
Бренд "Дмитров-Дело" c 2008 года на рынке строительства в Дмитрове

Дом AIR ( Воздушный)

Стоимость проекта от:
27 450 ₽
БЕСПЛАТНО! ПРИ ЗАКАЗЕ СТРОИТЕЛЬСТВА
Стоимость строительства от:
3 579 660 ₽
Артикул ART-6496
Дата 26.12.2025
Архитектурный стиль Барнхаус
Количество надземных этажей 2
Круглогодичное проживание Да
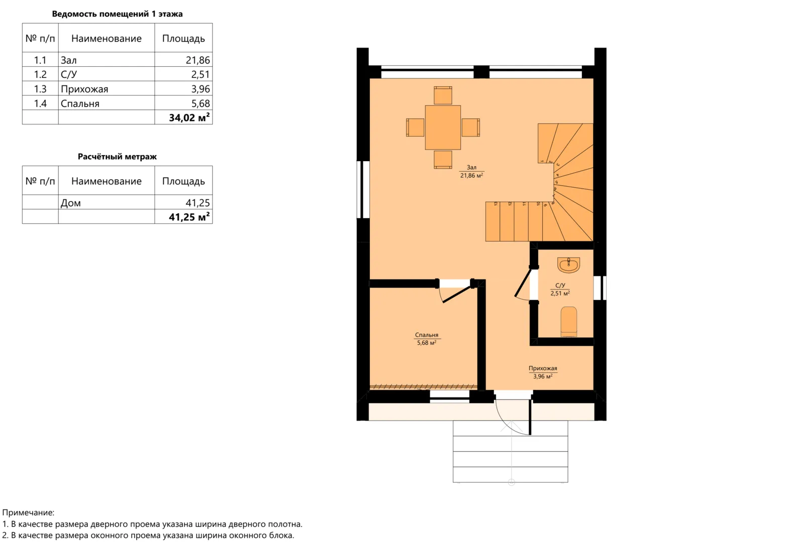
Площадь дома 61 м2
Санузлы 1
Спальни 2

Описание

Дом «AIR» — это воплощение лёгкости и уюта, которое приглашает вас ощутить, что значит жить в гармонии с природой. На двух надземных этажах находится просторное, светлое жилье, где каждая комната пронизана теплом, а большие окна наполняют интерьер мягким, рассеянным светом. Стиль Barnhouse, подчёркнутый характерным деревянным каркасом и традиционной двускатной кровлей, придаёт дому особую сельскую романтику, сохраняя при этом современные стандарты комфорта. Дом рассчитан на круглогодичную жизнь: изоляция и утепление позволяют создать приятную микроклиматическую среду даже в холодные месяцы, а материал внешних стен создаёт ощущение крепости и естественной мягкости. «AIR» – это не просто пространство, а настроение, которое хочется держать в себе круглый год. Отсутствие балконов, веранд и прикупленных гаражей говорит о чистоте и простоте, которые заложены в концепцию этого дома: здесь нет лишних элементов, которые отвлекали бы от истинного наслаждения жизнью в доме. Открытая планировка соединяет зоны отдыха, кухни и спален, создавая лёгкое воздушное движение внутри, ощущаемое как настоящий поток свежего воздуха. Это место, где каждый день начинается с радости от ощущений просторов и свежести, а заканчивается чувством полного завершения, когда вы закрываете дверь и ощущаете, как «дом» охраняет вашу уединённость.

Характеристики дома

Архитектурный стиль
Автоматизированное регулирование параметров теплоносителя
-
Балконы/лоджии
Отсутствуют
Чердачное помещение
Нет
Датчики протечки воды
-
Эксплуатируемая или зеленая кровля
-
Электроснабжение
2 варианта
Газоснабжение
Не предусмотрено
Изоляция воздушного шума
-
Камин
Нет
Класс энергоэффективности
-
Класс энергосбережения
-
Количество надземных этажей
2
Круглогодичное проживание
Да
Материал кровли
Фальцевая кровля Кликфальц
Материал перекрытий
Деревянные
Материал внешних стен
Материал внутренних перегородок
Деревянные
Модульное строительство с конструкциями заводского изготовления
Нет
Объем надземной части
100 м3
Основной материал фасадов
Дерево
Отопление
2 варианта
Площадь дома
61 м2
Площадь застройки
53 м2
Подвальное помещение
Нет
Показатель компактности здания
-
Приборы учета тепловой энергии
-
Пристроенный гараж/крытая автостоянка
Нет
Противопожарная система
Нет
Санузлы
1
Совмещенная кухня-гостиная
Да
Спальни
2
Терраса
Нет
Тип фундамента
Свайно-винтовой
Тип кровли
Толщина внешних стен
250 мм
Толщина внутренних перегородок
150 мм
Улучшенные шумовые характеристики
-
Вентиляция
Принудительная
Веранда
Нет
Водоотведение
2 варианта
Водоснабжение
2 варианта
Высота дома
6.3 м
Высота потолков
2.4 м

Планировка

Фасад дома

Александр

Закажите выезд инженера

Александр

Выездной инженер
Закажите выезд инженера для точной диагностики и профессиональной консультации по инженерным системам. Специалист приедет в удобное время, проведёт осмотр, рассчитает стоимость работ и подберёт оптимальные решения для вашего дома.


    Похожие проекты

    Ипотека и
    рассрочка
    ЛИДЕН
    Стоимость от:
    6 800 970
    Проект от: 49 950
    Этажей 1
    Санузлы 2
    Спальни 3
    Смотреть
    Ипотека и
    рассрочка
    СД-97
    Стоимость от:
    8 005 140
    Проект от: 52 650
    Этажей 1
    Санузлы 2
    Спальни 2
    Смотреть
    Ипотека и
    рассрочка
    Дом 76м2
    Стоимость от:
    5 714 720
    Проект от: 34 200
    Этажей 1
    Санузлы 2
    Спальни 3
    Смотреть
    Ипотека и
    рассрочка
    Загородный дом C-I 79
    Стоимость от:
    3 468 300
    Проект от: 27 000
    Этажей 1
    Санузлы 1
    Спальни 2
    Смотреть
    Ипотека и
    рассрочка
    Одноэтажный дом FIXPLANS — 0638
    Стоимость от:
    20 526 000
    Проект от: 135 000
    Этажей 1
    Санузлы 5
    Спальни 3
    Смотреть
    Ипотека и
    рассрочка
    Загородный дом «Статус» площадью застройки 126м2
    Стоимость от:
    7 590 220
    Проект от: 45 450
    Этажей 1
    Санузлы 1
    Спальни 3
    Смотреть

    Как узнать стоимость дома

    back
    Оставляете заявку
    Вы заполняете форму на сайте или звоните нам. Менеджер Лайвкрафт связывается с вами для уточнения деталей: тип дома, площадь, материалы, участок строительства.
    back
    Консультация и подбор решения
    Наш специалист помогает выбрать оптимальный тип дома и конструкцию с учётом бюджета, сроков и целей — будь то дом для постоянного проживания или дача.
    back
    Расчёт предварительной стоимости
    Инженер делает первичный расчёт стоимости строительства по вашим параметрам: фундамент, коробка, кровля, отделка. Вы получаете смету с разбивкой по этапам.
    back
    Корректировка и утверждение сметы
    При необходимости вносим изменения — например, замену материалов или сокращение этапов. После согласования формируется окончательная фиксированная смета.
    back
    Заключение договора и старт работ
    После утверждения сметы заключаем официальный договор с гарантией. Вы получаете прозрачный график и точную стоимость — без скрытых расходов.

    Заказать конусльтацию по:Дом AIR ( Воздушный)

    Фото 1 Дом AIR ( Воздушный)


      Наши
      контакты

      Дмитров
      Опорный проезд 28Б
      (индустриальный парк Ниагара)
      9:00 до 18:00

      Корзина