4.9
Рейтинг на основании 120 отзывов
Дмитров
Опорный проезд 28Б
(индустриальный парк Ниагара)
Бренд "Дмитров-Дело" c 2008 года на рынке строительства в Дмитрове
Звоните 9:00 до 18:00 8 (915) 055-33-61
Бренд "Дмитров-Дело" c 2008 года на рынке строительства в Дмитрове

ВС96

Стоимость проекта от:
43 200 ₽
БЕСПЛАТНО! ПРИ ЗАКАЗЕ СТРОИТЕЛЬСТВА
Стоимость строительства от:
6 779 520 ₽
Артикул ART-19124
Дата 26.12.2025
Архитектурный стиль Классический
Количество надземных этажей 1
Круглогодичное проживание Да
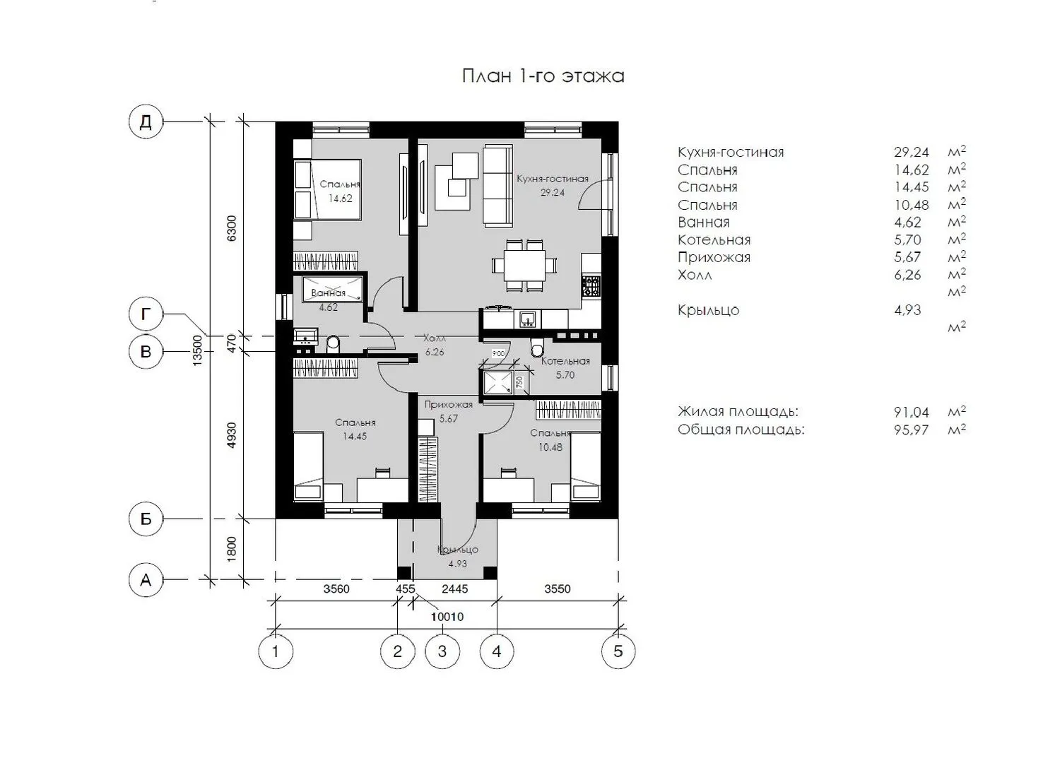
Площадь дома 96 м2
Санузлы 1
Спальни 3

Описание

Душевное гнездышко в стиле классики, которое мгновенно ощущается как ваш личный уголок уюта. Единственный надземный этаж обутившиеся традиционно, создаёт ощущение простора и спокойствия, а отсутствие излишних декораций, таких как балконы и веранда, позволяет сконцентрироваться на чистой, гармоничной архитектуре. В каждом элементе виден мастерский подход к деталям, от кирпичной фасады на керамических блоках до аккуратно изогнутой, четырёхскатной (вальмовой) кровли, которая не только красиво смотрится, но и обеспечивает надёжную защиту от непогоды. Отличительная черта этого дома – его пригодность для круглогодичного проживания. Сочетание качественных материалов и продуманного дизайна гарантирует тепло и комфортабельность даже в самые холодные дни. И хотя просторных балконов нет, внутреннее пространство обогащено светлыми, открытыми залами, а чердачное помещение создаёт дополнительное уютное место для хранения или превращается в небольшую мастерскую, если вам требуется отдельный уголок творчества. Идеальное решение для тех, кто ценит традиционный стиль в сочетании с практичностью: без лишних навесов, без громоздких автостоянок, но с высоким уровнем комфорта и функциональности, способного удовлетворить даже самые требовательные запросы. Этот дом ждет тех, кто ищет место, где каждый день начинается с ощущения гармонии и завершён – с умиротворения.

Характеристики дома

Архитектурный стиль
Автоматизированное регулирование параметров теплоносителя
Нет
Балконы/лоджии
Отсутствуют
Чердачное помещение
Да
Датчики протечки воды
Нет
Эксплуатируемая или зеленая кровля
Нет
Электроснабжение
Центральное
Газоснабжение
Центральное
Изоляция воздушного шума
Нет
Камин
Нет
Класс энергоэффективности
-
Класс энергосбережения
-
Количество надземных этажей
1
Круглогодичное проживание
Да
Материал кровли
Металлочерепица
Материал перекрытий
Деревянные
Материал внешних стен
Материал внутренних перегородок
Кирпичные
Модульное строительство с конструкциями заводского изготовления
Нет
Объем надземной части
420 м3
Основной материал фасадов
Облицовочный кирпич
Отопление
Индивидуальное
Площадь дома
96 м2
Площадь застройки
140 м2
Подвальное помещение
Нет
Показатель компактности здания
-
Приборы учета тепловой энергии
Нет
Пристроенный гараж/крытая автостоянка
Нет
Противопожарная система
Нет
Санузлы
1
Совмещенная кухня-гостиная
Да
Спальни
3
Терраса
Нет
Тип фундамента
Плитный
Толщина внешних стен
490 мм
Толщина внутренних перегородок
120 мм
Улучшенные шумовые характеристики
Нет
Вентиляция
Естественная
Веранда
Нет
Водоотведение
Локальные очистные сооружения
Водоснабжение
Индивидуальное
Высота дома
5 м
Высота потолков
3 м

Планировка

Фасад дома

Александр

Закажите выезд инженера

Александр

Выездной инженер
Закажите выезд инженера для точной диагностики и профессиональной консультации по инженерным системам. Специалист приедет в удобное время, проведёт осмотр, рассчитает стоимость работ и подберёт оптимальные решения для вашего дома.


    Похожие проекты

    Ипотека и
    рассрочка
    ЕР-1
    Стоимость от:
    10 605 100
    Проект от: 69 750
    Этажей 1
    Санузлы 1
    Спальни 3
    Смотреть
    Ипотека и
    рассрочка
    Двухэтажный дом 222 (238) м2 SHOLOH
    Стоимость от:
    17 497 920
    Проект от: 107 100
    Этажей 2
    Санузлы 4
    Спальни 6
    Смотреть
    Ипотека и
    рассрочка
    Одноэтажный с террасой ПР-33 Эстачи
    Стоимость от:
    9 015 600
    Проект от: 54 000
    Этажей 1
    Санузлы 2
    Спальни 3
    Смотреть
    Ипотека и
    рассрочка
    Жилой Дом № 3
    Стоимость от:
    7 440 180
    Проект от: 44 550
    Этажей 1
    Санузлы 1
    Спальни 3
    Смотреть
    Ипотека и
    рассрочка
    Двухэтажный дом БРАИТ-11Г
    Стоимость от:
    16 700 880
    Проект от: 102 150
    Этажей 2
    Санузлы 3
    Спальни 4
    Смотреть
    Ипотека и
    рассрочка
    Дом 2 этажа
    Стоимость от:
    9 361 200
    Проект от: 56 250
    Этажей 2
    Санузлы 2
    Спальни 4
    Смотреть

    Как узнать стоимость дома

    back
    Оставляете заявку
    Вы заполняете форму на сайте или звоните нам. Менеджер Лайвкрафт связывается с вами для уточнения деталей: тип дома, площадь, материалы, участок строительства.
    back
    Консультация и подбор решения
    Наш специалист помогает выбрать оптимальный тип дома и конструкцию с учётом бюджета, сроков и целей — будь то дом для постоянного проживания или дача.
    back
    Расчёт предварительной стоимости
    Инженер делает первичный расчёт стоимости строительства по вашим параметрам: фундамент, коробка, кровля, отделка. Вы получаете смету с разбивкой по этапам.
    back
    Корректировка и утверждение сметы
    При необходимости вносим изменения — например, замену материалов или сокращение этапов. После согласования формируется окончательная фиксированная смета.
    back
    Заключение договора и старт работ
    После утверждения сметы заключаем официальный договор с гарантией. Вы получаете прозрачный график и точную стоимость — без скрытых расходов.

    Заказать конусльтацию по:ВС96

    Фото 1 ВС96


      Наши
      контакты

      Дмитров
      Опорный проезд 28Б
      (индустриальный парк Ниагара)
      9:00 до 18:00

      Корзина