4.9
Рейтинг на основании 120 отзывов
Дмитров
Опорный проезд 28Б
(индустриальный парк Ниагара)
Бренд "Дмитров-Дело" c 2008 года на рынке строительства в Дмитрове
Звоните 9:00 до 18:00 8 (915) 055-33-61
Бренд "Дмитров-Дело" c 2008 года на рынке строительства в Дмитрове

Дом «Аймут 93» в стиле барнхаус

Стоимость проекта от:
41 850 ₽
БЕСПЛАТНО! ПРИ ЗАКАЗЕ СТРОИТЕЛЬСТВА
Стоимость строительства от:
5 569 260 ₽
Артикул ART-5817
Дата 26.12.2025
Архитектурный стиль Барнхаус
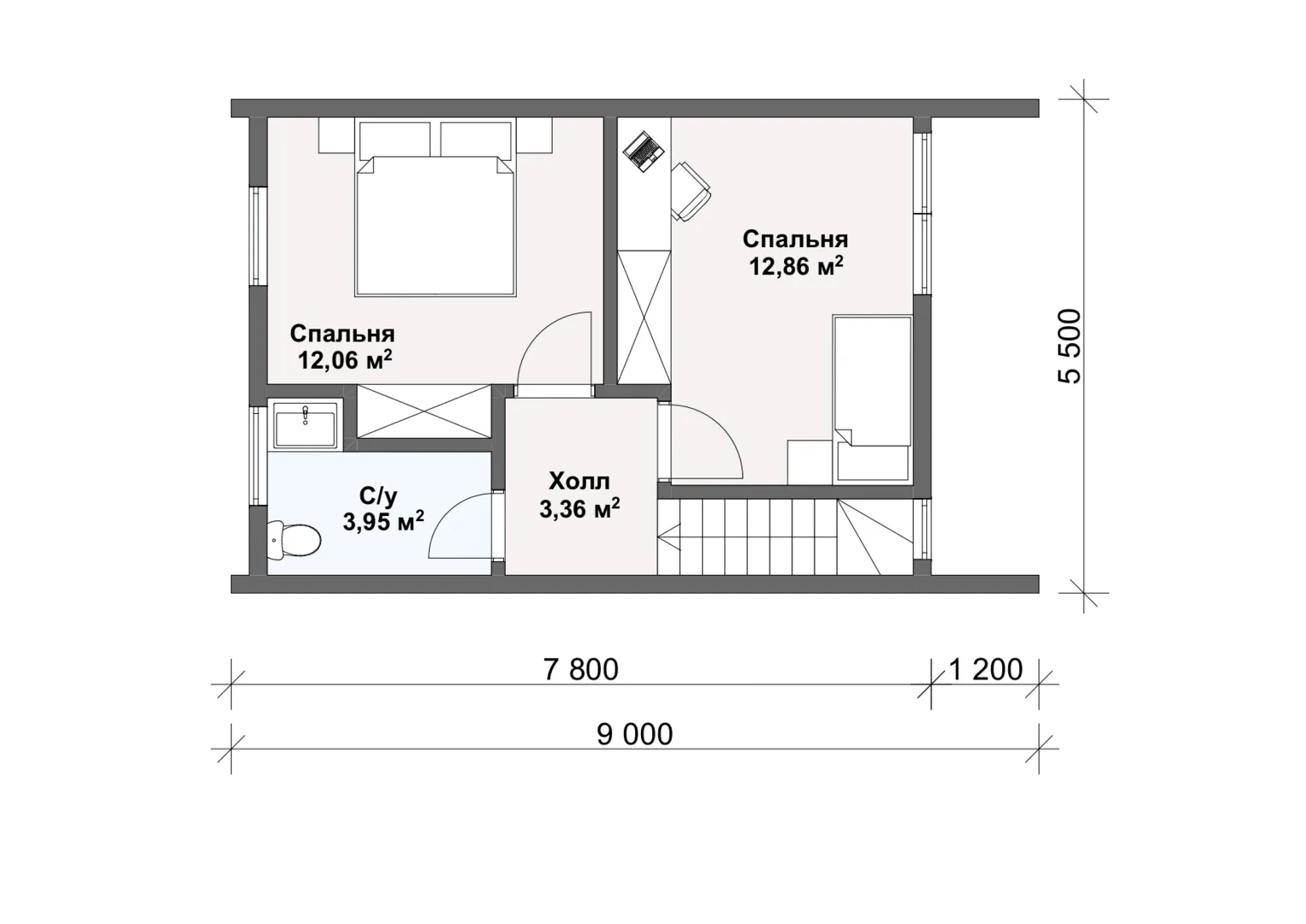
Количество надземных этажей 2
Круглогодичное проживание Да
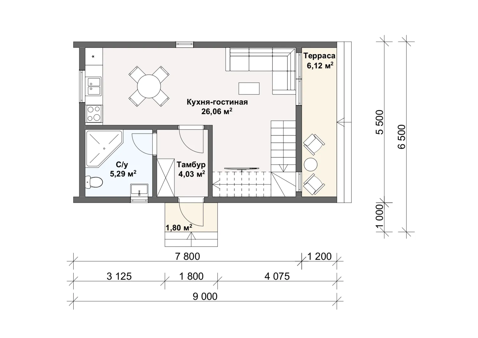
Площадь дома 93 м2
Санузлы 2
Спальни 2

Описание

Добро пожаловать в «Аймут 93» — настоящий оазис уюта и современного стиля, воплощённый в неповторимом барнхаус‑эстетике. Внутреннее пространство двух надземных этажей спроектировано с акцентом на простоту и функциональность: открытая планировка гостиной и кухни создаёт ощущение пространства, а большие панорамные окна пропускают нежный поток естественного света, усиливая тепло деревянных стен. Каждый уголок пропитан атмосферой уюта и вдохновляет к созданию собственных уютных уголков отдыха и творчества. Дом изготовлен из прочного деревянного каркаса, который не только обеспечивает долговечность и теплоизоляцию, но и подчёркивает природную эстетику интерьера. Двускатная крыша, выполненная в традиционном стиле, дополняет общий образ и придаёт фасаду особый ритмический характер. Круглогодичное проживание гарантирует комфорт в любую погоду, а отсутствие версин и прилагаемых гаражных помещений делает «Аймут 93» идеальным воплощением минималистичного и практичного стиля жизни. Уникальность дома кроется не только в его внешней оболочке. Удобная терраса привносит свежий воздух в вашу жизнь, предоставляя идеальное место для утреннего кофе или вечернего отдыха под звёздами. Вместе с элегантным сочетанием деревянных стен и строгой формы двускатной крыши, «Аймут 93» создаёт гармоничное пространство, где каждый элемент продуман до мелочей — от выбора материалов до функциональной планировки. Это ваш шанс стать владельцем дома, где традиции встречаются с современностью, а уют становится вашим личным убежищем.

Характеристики дома

Архитектурный стиль
Автоматизированное регулирование параметров теплоносителя
-
Балконы/лоджии
Отсутствуют
Чердачное помещение
Нет
Датчики протечки воды
-
Эксплуатируемая или зеленая кровля
-
Электроснабжение
Центральное
Газоснабжение
Индивидуальное
Изоляция воздушного шума
-
Камин
Нет
Класс энергоэффективности
-
Класс энергосбережения
-
Количество надземных этажей
2
Круглогодичное проживание
Да
Материал кровли
Металлочерепица
Материал перекрытий
Деревянные
Материал внешних стен
Материал внутренних перегородок
Деревянные
Модульное строительство с конструкциями заводского изготовления
Нет
Объем надземной части
371 м3
Основной материал фасадов
Дерево
Отопление
Индивидуальное
Площадь дома
93 м2
Площадь застройки
50 м2
Подвальное помещение
Нет
Показатель компактности здания
-
Приборы учета тепловой энергии
-
Пристроенный гараж/крытая автостоянка
Нет
Противопожарная система
Нет
Санузлы
2
Совмещенная кухня-гостиная
Да
Спальни
2
Терраса
Да
Тип фундамента
Свайно-винтовой
Тип кровли
Толщина внешних стен
150 мм
Толщина внутренних перегородок
100 мм
Улучшенные шумовые характеристики
-
Вентиляция
Естественная
Веранда
Нет
Водоотведение
Локальные очистные сооружения
Водоснабжение
Индивидуальное
Высота дома
7.3 м
Высота потолков
2.7 м

Планировка

Фасад дома

Александр

Закажите выезд инженера

Александр

Выездной инженер
Закажите выезд инженера для точной диагностики и профессиональной консультации по инженерным системам. Специалист приедет в удобное время, проведёт осмотр, рассчитает стоимость работ и подберёт оптимальные решения для вашего дома.


    Похожие проекты

    Ипотека и
    рассрочка
    С-3-162
    Стоимость от:
    10 520 640
    Проект от: 64 800
    Этажей 3
    Санузлы 2
    Спальни 3
    Смотреть
    Ипотека и
    рассрочка
    Дом с мансардным этажом «Пилион 2.0»
    Стоимость от:
    7 619 760
    Проект от: 49 050
    Этажей 2
    Санузлы 2
    Спальни 3
    Смотреть
    Ипотека и
    рассрочка
    Кирпичный дом (Свияжск)
    Стоимость от:
    5 564 680
    Проект от: 33 300
    Этажей 1
    Санузлы 1
    Спальни 2
    Смотреть
    Ипотека и
    рассрочка
    Микеа 3
    Стоимость от:
    9 392 460
    Проект от: 59 850
    Этажей 1
    Санузлы 2
    Спальни 3
    Смотреть
    Ипотека и
    рассрочка
    Одноэтажный дом Стройгаза
    Стоимость от:
    8 039 020
    Проект от: 45 450
    Этажей 1
    Санузлы 1
    Спальни 3
    Смотреть
    Ипотека и
    рассрочка
    КД-Ш72
    Стоимость от:
    3 401 970
    Проект от: 27 450
    Этажей 1
    Санузлы 1
    Спальни 3
    Смотреть

    Как узнать стоимость дома

    back
    Оставляете заявку
    Вы заполняете форму на сайте или звоните нам. Менеджер Лайвкрафт связывается с вами для уточнения деталей: тип дома, площадь, материалы, участок строительства.
    back
    Консультация и подбор решения
    Наш специалист помогает выбрать оптимальный тип дома и конструкцию с учётом бюджета, сроков и целей — будь то дом для постоянного проживания или дача.
    back
    Расчёт предварительной стоимости
    Инженер делает первичный расчёт стоимости строительства по вашим параметрам: фундамент, коробка, кровля, отделка. Вы получаете смету с разбивкой по этапам.
    back
    Корректировка и утверждение сметы
    При необходимости вносим изменения — например, замену материалов или сокращение этапов. После согласования формируется окончательная фиксированная смета.
    back
    Заключение договора и старт работ
    После утверждения сметы заключаем официальный договор с гарантией. Вы получаете прозрачный график и точную стоимость — без скрытых расходов.

    Заказать конусльтацию по:Дом «Аймут 93» в стиле барнхаус

    Фото 1 Дом «Аймут 93» в стиле барнхаус


      Наши
      контакты

      Дмитров
      Опорный проезд 28Б
      (индустриальный парк Ниагара)
      9:00 до 18:00

      Корзина