4.9
Рейтинг на основании 120 отзывов
Дмитров
Опорный проезд 28Б
(индустриальный парк Ниагара)
Бренд "Дмитров-Дело" c 2008 года на рынке строительства в Дмитрове
Звоните 9:00 до 18:00 8 (915) 055-33-61
Бренд "Дмитров-Дело" c 2008 года на рынке строительства в Дмитрове

Загородный дом «Пикник»

Стоимость проекта от:
33 300 ₽
БЕСПЛАТНО! ПРИ ЗАКАЗЕ СТРОИТЕЛЬСТВА
Стоимость строительства от:
4 277 570 ₽
Артикул ART-12820
Дата 25.12.2025
Архитектурный стиль Европейский
Количество надземных этажей 1
Круглогодичное проживание Да
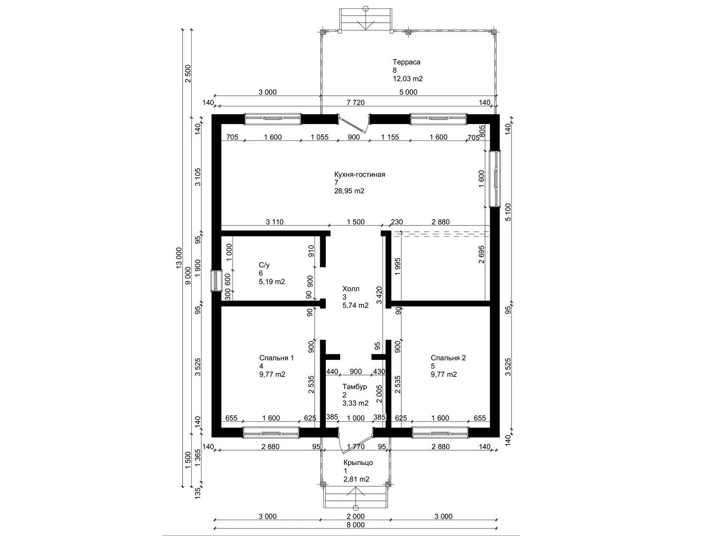
Площадь дома 74 м2
Санузлы 1
Спальни 2

Описание

Загородный дом «Пикник» – это настоящий уголок уюта, где каждый день раскрывает новый вид на живописные просторы окрестностей. Выполненный в европейском стиле с использованием дерево­ной каркасной стены, он сочетает в себе простоту аутентичной архитектуры и современные технологии. Совершенно круглогодичная обитаемость гарантирует, что тепло и свет всегда будут рядом, а неба надёжно защищённый от ветров четырёхскатный вальмовой крыша создаёт ощущение защищённости и изобилия. Уютом этого дома подчёркивает просторная терраса, где можно наслаждаться закатами и свежим воздухом, и где каждая встреча напоминает лёгкий летний пикник. Без изысканных балконов и прибрежных веранд, дом фокусируется на внутреннем пространстве – открытых планах, большом окне, которым открываются панорамные виды. Удобное расположение и практичность – всё, что нужно для спокойного семейного отдыха, путешествий и восстановления сил в гармонии с природой. В «Пикнике» вы найдёте идеальное сочетание стиля, комфорта и природы, которое делает каждый день особенным и вдохновляющим.

Характеристики дома

Архитектурный стиль
Автоматизированное регулирование параметров теплоносителя
Нет
Балконы/лоджии
Отсутствуют
Чердачное помещение
Нет
Датчики протечки воды
Нет
Эксплуатируемая или зеленая кровля
Нет
Электроснабжение
Не предусмотрено
Газоснабжение
Не предусмотрено
Изоляция воздушного шума
Да
Камин
Нет
Класс энергоэффективности
A
Класс энергосбережения
A
Количество надземных этажей
1
Круглогодичное проживание
Да
Материал кровли
Металлочерепица
Материал перекрытий
Деревянные
Материал внешних стен
Материал внутренних перегородок
Деревянные
Модульное строительство с конструкциями заводского изготовления
Нет
Объем надземной части
266 м3
Основной материал фасадов
Сайдинг
Отопление
Не предусмотрено
Площадь дома
74 м2
Площадь застройки
87 м2
Подвальное помещение
Нет
Показатель компактности здания
1.02
Приборы учета тепловой энергии
Нет
Пристроенный гараж/крытая автостоянка
Нет
Противопожарная система
Нет
Санузлы
1
Совмещенная кухня-гостиная
Да
Спальни
2
Терраса
Да
Тип фундамента
Свайно-винтовой
Толщина внешних стен
265 мм
Толщина внутренних перегородок
155 мм
Улучшенные шумовые характеристики
Да
Вентиляция
Естественная
Веранда
Нет
Водоотведение
Не предусмотрено
Водоснабжение
Не предусмотрено
Высота дома
4.87 м
Высота потолков
2.7 м

Планировка

Фасад дома

Александр

Закажите выезд инженера

Александр

Выездной инженер
Закажите выезд инженера для точной диагностики и профессиональной консультации по инженерным системам. Специалист приедет в удобное время, проведёт осмотр, рассчитает стоимость работ и подберёт оптимальные решения для вашего дома.


    Похожие проекты

    Ипотека и
    рассрочка
    Крит
    Стоимость от:
    5 268 340
    Проект от: 34 650
    Этажей 1
    Санузлы 1
    Спальни 2
    Смотреть
    Ипотека и
    рассрочка
    D120-2
    Стоимость от:
    11 851 680
    Проект от: 81 900
    Этажей 2
    Санузлы 3
    Спальни 3
    Смотреть
    Ипотека и
    рассрочка
    Загородный дом ВС-126
    Стоимость от:
    13 067 280
    Проект от: 84 150
    Этажей 2
    Санузлы 3
    Спальни 4
    Смотреть
    Ипотека и
    рассрочка
    Плинтовка
    Стоимость от:
    11 016 720
    Проект от: 70 200
    Этажей 1
    Санузлы 2
    Спальни 4
    Смотреть
    Ипотека и
    рассрочка
    Дом с мансардным этажом «Лефрой»
    Стоимость от:
    6 984 000
    Проект от: 45 000
    Этажей 2
    Санузлы 2
    Спальни 3
    Смотреть
    Ипотека и
    рассрочка
    Одноэтажный проект AMIANA
    Стоимость от:
    9 390 700
    Проект от: 56 250
    Этажей 1
    Санузлы 2
    Спальни 3
    Смотреть

    Как узнать стоимость дома

    back
    Оставляете заявку
    Вы заполняете форму на сайте или звоните нам. Менеджер Лайвкрафт связывается с вами для уточнения деталей: тип дома, площадь, материалы, участок строительства.
    back
    Консультация и подбор решения
    Наш специалист помогает выбрать оптимальный тип дома и конструкцию с учётом бюджета, сроков и целей — будь то дом для постоянного проживания или дача.
    back
    Расчёт предварительной стоимости
    Инженер делает первичный расчёт стоимости строительства по вашим параметрам: фундамент, коробка, кровля, отделка. Вы получаете смету с разбивкой по этапам.
    back
    Корректировка и утверждение сметы
    При необходимости вносим изменения — например, замену материалов или сокращение этапов. После согласования формируется окончательная фиксированная смета.
    back
    Заключение договора и старт работ
    После утверждения сметы заключаем официальный договор с гарантией. Вы получаете прозрачный график и точную стоимость — без скрытых расходов.

    Заказать конусльтацию по:Загородный дом «Пикник»

    Фото 1 Загородный дом «Пикник»


      Наши
      контакты

      Дмитров
      Опорный проезд 28Б
      (индустриальный парк Ниагара)
      9:00 до 18:00

      Корзина