4.9
Рейтинг на основании 120 отзывов
Дмитров
Опорный проезд 28Б
(индустриальный парк Ниагара)
Бренд "Дмитров-Дело" c 2008 года на рынке строительства в Дмитрове
Звоните 9:00 до 18:00 8 (915) 055-33-61
Бренд "Дмитров-Дело" c 2008 года на рынке строительства в Дмитрове

Жилой Дом 140

Стоимость проекта от:
61 200 ₽
Стоимость строительства от:
9 839 040 ₽
Артикул ART-1438
Дата 25.12.2025
Архитектурный стиль Минимализм
Количество надземных этажей 2
Круглогодичное проживание Да
Площадь дома 136 м2
Санузлы 2
Спальни 4

Описание

**Дом 140 м² — ваш уютный уголок в стиле минимализма** В сердце спокойно живописного района расположен стильный жилой дом площадью 140 м², построенный по принципу простоты и функциональности. Два надземных этажа позволяют создать свободное пространство, где каждый уголок пропитан светом и воздухом. Минималистичный дизайн убирает лишние детали, подчёркивая элегантность линий, а простая, но плотная конструкция из пеноблока обеспечивает теплоизоляцию и долговечность конструкции. Круглогодичное проживание гарантирует комфорт даже в холодных зимних сутках, а двускатная крыша создаёт визуальный простор и защищает от атмосферных осадков. **Удобства, которые делают жизнь проще** Хотя у дома нет балконов, веренданов и причальных площадок, его просторные помещения компенсируют их отсутствие, предлагая гибкие площадки для отдыха и творчества. Внутри вы найдёте просторную гостиную, идеальную для семейного общения, а кухню, оформленную в лаконичном стиле, можно превратить в центр кулинарных открытий. Отличительной особенностью является чердачное помещение, которое можно использовать как кладовку, кабинет или даже мини-спа-уголок. Отсутствие прицепа и гаража делает эту модель идеальной для квартирных жителей, предпочитающих компактность и экономию пространства. **Приглашаем сделать ваш выбор правильным** Мы уверены, что этот дом станет идеальным базисом для создания личного, уютного пространства, где минимализм становится источником вдохновения. Если вам хочется жить в современном, лаконичном жилище с уютными внутренностями и комфортной эксплуатацией – этот дом подойдёт именно вам. Свяжитесь с нами уже сегодня, чтобы узнать подробности и организовать личный осмотр!

Характеристики дома

Архитектурный стиль
Минимализм
Автоматизированное регулирование параметров теплоносителя
-
Балконы/лоджии
Отсутствуют
Чердачное помещение
Да
Датчики протечки воды
-
Эксплуатируемая или зеленая кровля
-
Электроснабжение
Центральное
Газоснабжение
Не предусмотрено
Изоляция воздушного шума
-
Камин
Нет
Класс энергоэффективности
-
Класс энергосбережения
-
Количество надземных этажей
2
Круглогодичное проживание
Да
Материал кровли
Металлочерепица
Материал перекрытий
Сборные железобетонные многопустотные плиты
Материал внешних стен
Пеноблоки
Материал внутренних перегородок
Пенобетонные
Модульное строительство с конструкциями заводского изготовления
Нет
Объем надземной части
717 м3
Основной материал фасадов
Облицовочный кирпич
Отопление
Индивидуальное
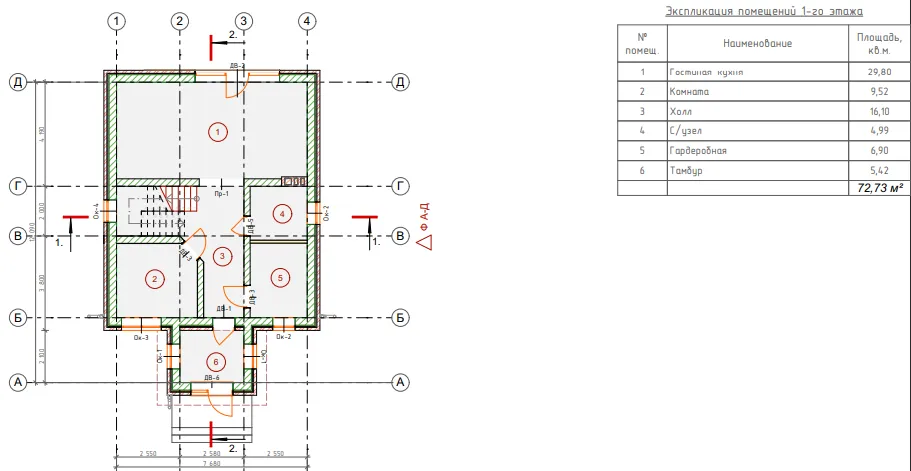
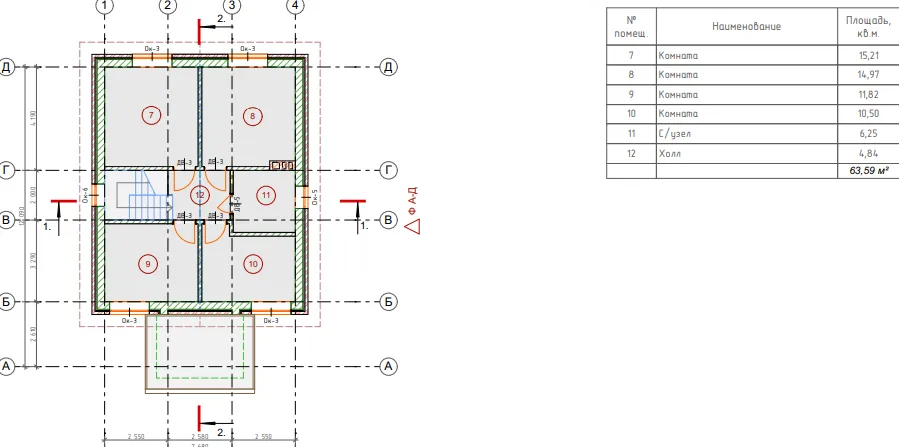
Площадь дома
136 м2
Площадь застройки
100 м2
Подвальное помещение
Нет
Показатель компактности здания
-
Приборы учета тепловой энергии
-
Пристроенный гараж/крытая автостоянка
Нет
Противопожарная система
Нет
Санузлы
2
Совмещенная кухня-гостиная
Да
Спальни
4
Терраса
Нет
Тип фундамента
Свайно-ростверковый
Тип кровли
Двускатная
Толщина внешних стен
510 мм
Толщина внутренних перегородок
150 мм
Улучшенные шумовые характеристики
-
Вентиляция
Естественная
Веранда
Нет
Водоотведение
Локальные очистные сооружения
Водоснабжение
Индивидуальное
Высота дома
8.86 м
Высота потолков
2.8 м

Планировка

Фасад дома

Александр

Закажите выезд инженера

Александр

Выездной инженер
Закажите выезд инженера для точной диагностики и профессиональной консультации по инженерным системам. Специалист приедет в удобное время, проведёт осмотр, рассчитает стоимость работ и подберёт оптимальные решения для вашего дома.


    Похожие проекты

    Ипотека и
    рассрочка
    Одноэтажный дом Fixplans-3284
    Стоимость от:
    4 025 340
    Проект от: 25 650
    Этажей 1
    Санузлы 1
    Спальни 2
    Смотреть
    Ипотека и
    рассрочка
    Загородный дом ВС-130
    Стоимость от:
    7 938 480
    Проект от: 51 300
    Этажей 1
    Санузлы 1
    Спальни 1
    Смотреть
    Ипотека и
    рассрочка
    Дом «Аймут 93» в стиле барнхаус
    Стоимость от:
    5 569 260
    Проект от: 41 850
    Этажей 2
    Санузлы 2
    Спальни 2
    Смотреть
    Ипотека и
    рассрочка
    Мюнхен-340
    Стоимость от:
    28 745 040
    Проект от: 175 950
    Этажей 2
    Санузлы 4
    Спальни 3
    Смотреть
    Ипотека и
    рассрочка
    Модульный дом Астра
    Стоимость от:
    3 421 880
    Проект от: 25 200
    Этажей 1
    Санузлы 1
    Спальни 2
    Смотреть
    Ипотека и
    рассрочка
    Одноэтажный кирпичный Дом NODO-88, с навесом и площадкой
    Стоимость от:
    6 614 960
    Проект от: 39 600
    Этажей 1
    Санузлы 1
    Спальни 2
    Смотреть

    Как узнать стоимость дома

    back
    Оставляете заявку
    Вы заполняете форму на сайте или звоните нам. Менеджер Лайвкрафт связывается с вами для уточнения деталей: тип дома, площадь, материалы, участок строительства.
    back
    Консультация и подбор решения
    Наш специалист помогает выбрать оптимальный тип дома и конструкцию с учётом бюджета, сроков и целей — будь то дом для постоянного проживания или дача.
    back
    Расчёт предварительной стоимости
    Инженер делает первичный расчёт стоимости строительства по вашим параметрам: фундамент, коробка, кровля, отделка. Вы получаете смету с разбивкой по этапам.
    back
    Корректировка и утверждение сметы
    При необходимости вносим изменения — например, замену материалов или сокращение этапов. После согласования формируется окончательная фиксированная смета.
    back
    Заключение договора и старт работ
    После утверждения сметы заключаем официальный договор с гарантией. Вы получаете прозрачный график и точную стоимость — без скрытых расходов.

    Заказать конусльтацию по:Жилой Дом 140

    Фото 1 Жилой Дом 140


      Наши
      контакты

      Дмитров
      Опорный проезд 28Б
      (индустриальный парк Ниагара)
      9:00 до 18:00