4.9
Рейтинг на основании 120 отзывов
Дмитров
Опорный проезд 28Б
(индустриальный парк Ниагара)
Бренд "Дмитров-Дело" c 2008 года на рынке строительства в Дмитрове
Звоните 9:00 до 18:00 8 (915) 055-33-61
Бренд "Дмитров-Дело" c 2008 года на рынке строительства в Дмитрове

Дом из бруса с террасой и мансардным этажом

Стоимость проекта от:
70 650 ₽
БЕСПЛАТНО! ПРИ ЗАКАЗЕ СТРОИТЕЛЬСТВА
Стоимость строительства от:
10 341 660 ₽
Артикул ART-11274
Дата 25.12.2025
Архитектурный стиль Классический
Количество надземных этажей 2
Круглогодичное проживание Да
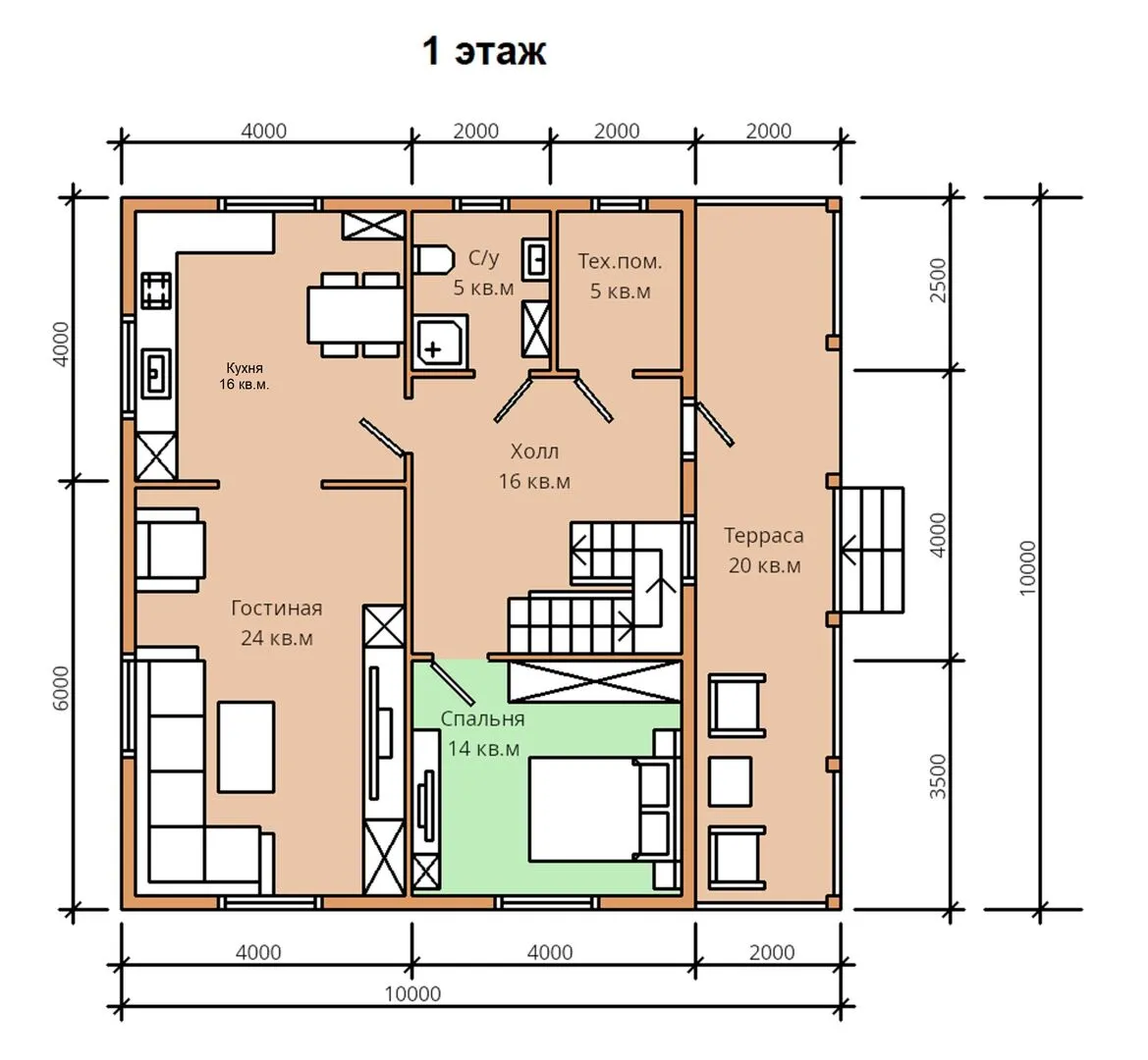
Площадь дома 157 м2
Санузлы 1
Спальни 3

Описание

Классический дом из пиленого бруса – это идеальное сочетание простора, уюта и прочности. В уютном двуспальной конфигурации двуступенчатого крытого пространства вы обретаете настоящий дом для семьи, где каждый уголок дышит спокойствием и домашним теплом. Большая терраса, открытая к пейзажу, превращает летние вечера в романтическую прогулку под звёздами, а мансардное помещение дарит вам дополнительное пространство для творчества и хранения. Грамотно продуманная архитектура обеспечивает круглогодичное проживание: тепло в зимнем ветре, прохлада и свет в летнее солнце. Дом обрамлен в элегантный двускатный крыж, а строгий брусной фасад привлекает своим естественным шармом и долговечностью. Его отсутствие балконов и веранд не снижает привлекательности – наоборот, чистые линии создают ощущение простора и благородства. Без прицепного гаража и чердачных помещений вы получаете возможность организовать пространство под собственные нужды, где каждая деталь, от отделки до меблировки, отвечает вашему стилю жизни. Это настоящий уголок спокойствия, где каждый день начинается с улыбки, а заканчивается теплом семейного очага.

Характеристики дома

Архитектурный стиль
Автоматизированное регулирование параметров теплоносителя
Нет
Балконы/лоджии
Отсутствуют
Чердачное помещение
Нет
Датчики протечки воды
Нет
Эксплуатируемая или зеленая кровля
Нет
Электроснабжение
Центральное
Газоснабжение
Не предусмотрено
Изоляция воздушного шума
Нет
Камин
Нет
Класс энергоэффективности
-
Класс энергосбережения
-
Количество надземных этажей
2
Круглогодичное проживание
Да
Материал кровли
Металлочерепица
Материал перекрытий
Деревянные
Материал внешних стен
Материал внутренних перегородок
Деревянные
Модульное строительство с конструкциями заводского изготовления
Нет
Объем надземной части
750 м3
Основной материал фасадов
Дерево
Отопление
Не предусмотрено
Площадь дома
157 м2
Площадь застройки
100 м2
Подвальное помещение
Нет
Показатель компактности здания
-
Приборы учета тепловой энергии
Нет
Пристроенный гараж/крытая автостоянка
Нет
Противопожарная система
Нет
Санузлы
1
Совмещенная кухня-гостиная
Да
Спальни
3
Терраса
Да
Тип фундамента
Свайно-винтовой
Тип кровли
Толщина внешних стен
200 мм
Толщина внутренних перегородок
200 мм
Улучшенные шумовые характеристики
Нет
Вентиляция
Естественная
Веранда
Нет
Водоотведение
Не предусмотрено
Водоснабжение
Не предусмотрено
Высота дома
7.5 м
Высота потолков
2.5 м

Планировка

Фасад дома

Александр

Закажите выезд инженера

Александр

Выездной инженер
Закажите выезд инженера для точной диагностики и профессиональной консультации по инженерным системам. Специалист приедет в удобное время, проведёт осмотр, рассчитает стоимость работ и подберёт оптимальные решения для вашего дома.


    Похожие проекты

    Ипотека и
    рассрочка
    Декоратор 2
    Стоимость от:
    8 865 560
    Проект от: 53 100
    Этажей 1
    Санузлы 2
    Спальни 5
    Смотреть
    Ипотека и
    рассрочка
    Бесовец 1
    Стоимость от:
    4 667 520
    Проект от: 32 850
    Этажей 2
    Санузлы 2
    Спальни 2
    Смотреть
    Ипотека и
    рассрочка
    Дом из ж/б панелей с фасадом из кликфальца SP-143-2
    Стоимость от:
    10 947 200
    Проект от: 72 000
    Этажей 1
    Санузлы 3
    Спальни 4
    Смотреть
    Ипотека и
    рассрочка
    Загородный дом «Радуга»
    Стоимость от:
    7 192 800
    Проект от: 54 000
    Этажей 2
    Санузлы 2
    Спальни 3
    Смотреть
    Ипотека и
    рассрочка
    Проект A020
    Стоимость от:
    4 637 760
    Проект от: 28 800
    Этажей 2
    Санузлы 2
    Спальни 2
    Смотреть
    Ипотека и
    рассрочка
    ГББ-158
    Стоимость от:
    10 972 080
    Проект от: 70 650
    Этажей 2
    Санузлы 2
    Спальни 4
    Смотреть

    Как узнать стоимость дома

    back
    Оставляете заявку
    Вы заполняете форму на сайте или звоните нам. Менеджер Лайвкрафт связывается с вами для уточнения деталей: тип дома, площадь, материалы, участок строительства.
    back
    Консультация и подбор решения
    Наш специалист помогает выбрать оптимальный тип дома и конструкцию с учётом бюджета, сроков и целей — будь то дом для постоянного проживания или дача.
    back
    Расчёт предварительной стоимости
    Инженер делает первичный расчёт стоимости строительства по вашим параметрам: фундамент, коробка, кровля, отделка. Вы получаете смету с разбивкой по этапам.
    back
    Корректировка и утверждение сметы
    При необходимости вносим изменения — например, замену материалов или сокращение этапов. После согласования формируется окончательная фиксированная смета.
    back
    Заключение договора и старт работ
    После утверждения сметы заключаем официальный договор с гарантией. Вы получаете прозрачный график и точную стоимость — без скрытых расходов.

    Заказать конусльтацию по:Дом из бруса с террасой и мансардным этажом

    Фото 1 Дом из бруса с террасой и мансардным этажом


      Наши
      контакты

      Дмитров
      Опорный проезд 28Б
      (индустриальный парк Ниагара)
      9:00 до 18:00

      Корзина