4.9
Рейтинг на основании 120 отзывов
Дмитров
Опорный проезд 28Б
(индустриальный парк Ниагара)
Бренд "Дмитров-Дело" c 2008 года на рынке строительства в Дмитрове
Звоните 9:00 до 18:00 8 (915) 055-33-61
Бренд "Дмитров-Дело" c 2008 года на рынке строительства в Дмитрове

Дом для большой семьи Воробьево

Стоимость проекта от:
60 750 ₽
БЕСПЛАТНО! ПРИ ЗАКАЗЕ СТРОИТЕЛЬСТВА
Стоимость строительства от:
8 892 960 ₽
Артикул ART-1777
Дата 26.12.2025
Архитектурный стиль Классический
Количество надземных этажей 2
Круглогодичное проживание Да
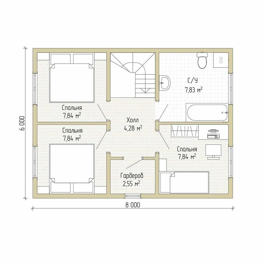
Площадь дома 135 м2
Санузлы 2
Спальни 4

Описание

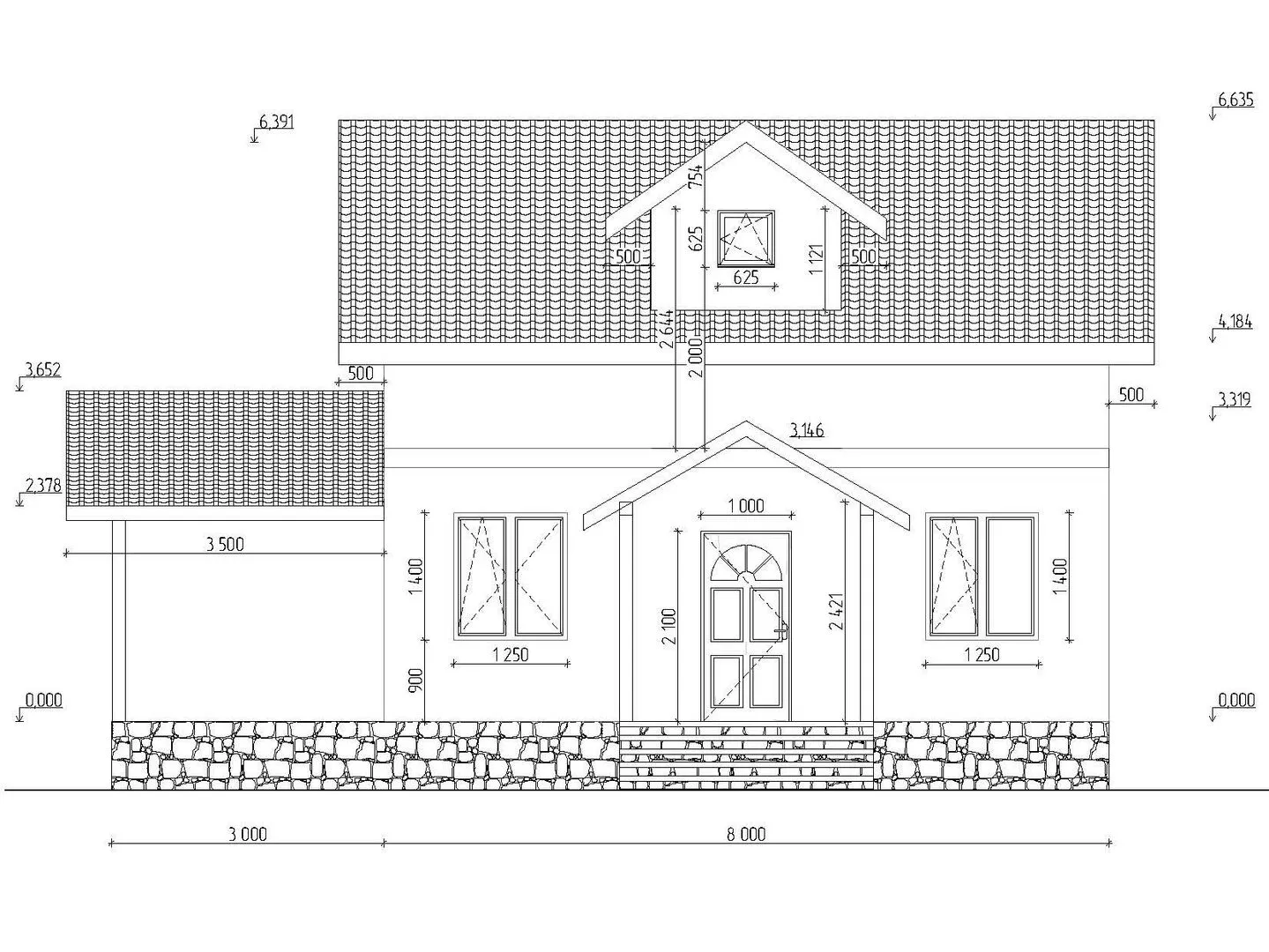
Заглянув в дом на улице Воробьево, вы сразу ощущаете гармонию простоты и классического стиля, который создает атмосферу уюта и надёжности. Этот двухэтажный дом предназначен для большой семьи: просторные коридоры и большие комнатные пространства сделают каждый день особенным. К тому же, приём на круглогодичное проживание гарантирует, что даже в холодные зимы вы будете чувствовать себя как дома, а уютные внутренние помещения подарят ощущение тепла и безопасности. Инновационная технология SIP‑панелей, использованная в наружных стенах, объединяет отличную теплоизоляцию с высокой прочностью, позволяя экономить энергию и снижать эксплуатационные расходы. Двускатная крыша придаёт зданию элегантный профиль, одновременно защищая пространство от погодных условий. Внутри дома вы найдёте функциональные зоны, открытое плановое расположение, где каждый угол предназначен для активной ежедневной жизни семьи. Лёгкая адаптация внутреннего интерьера под персональные предпочтения делает каждое пространство уникальным. Мы создали это место не просто как дом, а как пространство, способное вместить мечты и заботы вашей семьи. Если вы ищете идеальное сочетание практичности, классической эстетики и современных технологий, этот дом в Воробьево готов стать вашим новым уютным убежищем.

Характеристики дома

Архитектурный стиль
Автоматизированное регулирование параметров теплоносителя
-
Балконы/лоджии
Отсутствуют
Чердачное помещение
Нет
Датчики протечки воды
-
Эксплуатируемая или зеленая кровля
-
Электроснабжение
Центральное
Газоснабжение
Центральное
Изоляция воздушного шума
-
Камин
Нет
Класс энергоэффективности
-
Класс энергосбережения
-
Количество надземных этажей
2
Круглогодичное проживание
Да
Материал кровли
Металлочерепица
Материал перекрытий
Деревянные
Материал внешних стен
Материал внутренних перегородок
Гипсокартонные
Модульное строительство с конструкциями заводского изготовления
Нет
Объем надземной части
897 м3
Основной материал фасадов
Штукатурка
Отопление
Центральное
Площадь дома
135 м2
Площадь застройки
70 м2
Подвальное помещение
Нет
Показатель компактности здания
-
Приборы учета тепловой энергии
-
Пристроенный гараж/крытая автостоянка
Нет
Противопожарная система
Да
Санузлы
2
Совмещенная кухня-гостиная
Да
Спальни
4
Терраса
Нет
Тип фундамента
Свайно-винтовой
Тип кровли
Толщина внешних стен
174 мм
Толщина внутренних перегородок
145 мм
Улучшенные шумовые характеристики
-
Вентиляция
Естественная
Веранда
Нет
Водоотведение
Центральное
Водоснабжение
Центральное
Высота дома
6.63 м
Высота потолков
2.8 м

Планировка

Фасад дома

Александр

Закажите выезд инженера

Александр

Выездной инженер
Закажите выезд инженера для точной диагностики и профессиональной консультации по инженерным системам. Специалист приедет в удобное время, проведёт осмотр, рассчитает стоимость работ и подберёт оптимальные решения для вашего дома.


    Похожие проекты

    Ипотека и
    рассрочка
    SVOI-24-2-98 Двухэтажный дом 98 кв.м.
    Стоимость от:
    7 093 920
    Проект от: 44 100
    Этажей 2
    Санузлы 2
    Спальни 3
    Смотреть
    Ипотека и
    рассрочка
    Двухэтажный дом 140 (149.7) м2 GAVLE
    Стоимость от:
    10 972 560
    Проект от: 67 050
    Этажей 2
    Санузлы 3
    Спальни 3
    Смотреть
    Ипотека и
    рассрочка
    Одноэтажный дом с плоской крышей и тремя спальнями
    Стоимость от:
    6 004 460
    Проект от: 44 100
    Этажей 1
    Санузлы 1
    Спальни 3
    Смотреть
    Ипотека и
    рассрочка
    НОРВИЧ
    Стоимость от:
    8 166 345
    Проект от: 58 050
    Этажей 1
    Санузлы 2
    Спальни 3
    Смотреть
    Ипотека и
    рассрочка
    Двухэтажного коттеджа Вилла 2XS
    Стоимость от:
    9 339 360
    Проект от: 67 050
    Этажей 2
    Санузлы 2
    Спальни 5
    Смотреть
    Ипотека и
    рассрочка
    Дом ИЖС 2/142
    Стоимость от:
    9 917 280
    Проект от: 63 900
    Этажей 2
    Санузлы 2
    Спальни 4
    Смотреть

    Как узнать стоимость дома

    back
    Оставляете заявку
    Вы заполняете форму на сайте или звоните нам. Менеджер Лайвкрафт связывается с вами для уточнения деталей: тип дома, площадь, материалы, участок строительства.
    back
    Консультация и подбор решения
    Наш специалист помогает выбрать оптимальный тип дома и конструкцию с учётом бюджета, сроков и целей — будь то дом для постоянного проживания или дача.
    back
    Расчёт предварительной стоимости
    Инженер делает первичный расчёт стоимости строительства по вашим параметрам: фундамент, коробка, кровля, отделка. Вы получаете смету с разбивкой по этапам.
    back
    Корректировка и утверждение сметы
    При необходимости вносим изменения — например, замену материалов или сокращение этапов. После согласования формируется окончательная фиксированная смета.
    back
    Заключение договора и старт работ
    После утверждения сметы заключаем официальный договор с гарантией. Вы получаете прозрачный график и точную стоимость — без скрытых расходов.

    Заказать конусльтацию по:Дом для большой семьи Воробьево

    Фото 1 Дом для большой семьи Воробьево


      Наши
      контакты

      Дмитров
      Опорный проезд 28Б
      (индустриальный парк Ниагара)
      9:00 до 18:00

      Корзина