4.9
Рейтинг на основании 120 отзывов
Дмитров
Опорный проезд 28Б
(индустриальный парк Ниагара)
Бренд "Дмитров-Дело" c 2008 года на рынке строительства в Дмитрове
Звоните 9:00 до 18:00 8 (915) 055-33-61
Бренд "Дмитров-Дело" c 2008 года на рынке строительства в Дмитрове

Дом «Эйлин 166» в скандинавском стиле

Стоимость проекта от:
74 700 ₽
БЕСПЛАТНО! ПРИ ЗАКАЗЕ СТРОИТЕЛЬСТВА
Стоимость строительства от:
9 935 100 ₽
Артикул ART-5900
Дата 26.12.2025
Архитектурный стиль Скандинавский
Количество надземных этажей 2
Круглогодичное проживание Да
Площадь дома 166 м2
Санузлы 3
Спальни 4

Описание

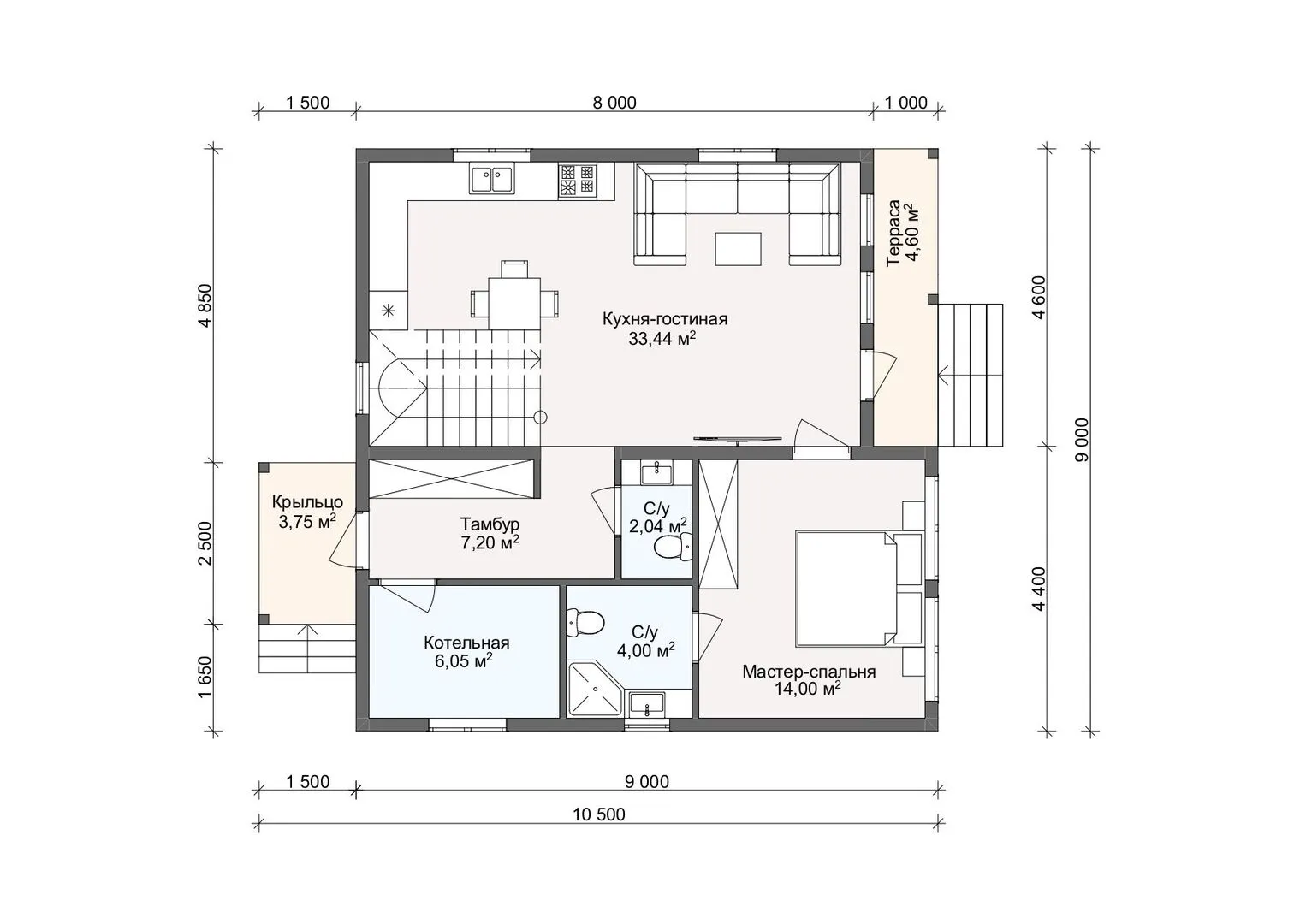
Дом «Эйлин 166» – это уютный уголок в сердце природы, созданный в скандинавском стиле, где простота встречается с изысканностью. На двух надземных этажах вы найдёте безмятежное пространство, идеально подходящее для круглогодичного проживания: от просторной гостиной с большим окном, впитывающим золотистый свет заката, до тихих уголков для спокойного отдыха. Окружённый живой природой, дом открывает вам ощущение гармонии и уюта, которое столь ценят жители северных стран. Особое внимание в «Эйлини 166» уделено деталям: деревянный каркас наружных стен подчеркнет естественность интерьера, а четырёхскатная (вальмовая) крыша придаст дому характерный профиль, словно он вырос из самой местности. Балкон с балконом-лоджией и терраса – идеальные места для утреннего кофе, вечерних закатов и весенних грилевок. Пристроенный гараж отсутствует, но это добавляет лёгкости и открытость, а отсутствие чердачной зоны позволяет максимизировать пространство внутри. Этот дом – ваш личный оазис спокойствия, где каждый элемент продуман до мелочей, чтобы дарить комфорт и вдохновение. Если вы ищете место, где традиции встречаются с современностью, где каждый день начинается с дыхания свежего воздуха и завершается звуками природы, «Эйлин 166» ждет именно вас. Приступайте к созданию новых воспоминаний в доме, где скандинавская простота и тепло встречаются в унисон.

Характеристики дома

Архитектурный стиль
Автоматизированное регулирование параметров теплоносителя
-
Балконы/лоджии
1
Чердачное помещение
Нет
Датчики протечки воды
-
Эксплуатируемая или зеленая кровля
-
Электроснабжение
Центральное
Газоснабжение
Индивидуальное
Изоляция воздушного шума
-
Камин
Нет
Класс энергоэффективности
-
Класс энергосбережения
-
Количество надземных этажей
2
Круглогодичное проживание
Да
Материал кровли
Металлочерепица
Материал перекрытий
Деревянные
Материал внешних стен
Материал внутренних перегородок
Деревянные
Модульное строительство с конструкциями заводского изготовления
Нет
Объем надземной части
166 м3
Основной материал фасадов
Дерево
Отопление
Индивидуальное
Площадь дома
166 м2
Площадь застройки
166 м2
Подвальное помещение
Нет
Показатель компактности здания
-
Приборы учета тепловой энергии
-
Пристроенный гараж/крытая автостоянка
Нет
Противопожарная система
Нет
Санузлы
3
Совмещенная кухня-гостиная
Да
Спальни
4
Терраса
Да
Тип фундамента
Свайно-винтовой
Толщина внешних стен
150 мм
Толщина внутренних перегородок
100 мм
Улучшенные шумовые характеристики
-
Вентиляция
Естественная
Веранда
Нет
Водоотведение
Локальные очистные сооружения
Водоснабжение
Индивидуальное
Высота дома
5.4 м
Высота потолков
2.8 м

Планировка

Фасад дома

Александр

Закажите выезд инженера

Александр

Выездной инженер
Закажите выезд инженера для точной диагностики и профессиональной консультации по инженерным системам. Специалист приедет в удобное время, проведёт осмотр, рассчитает стоимость работ и подберёт оптимальные решения для вашего дома.


    Похожие проекты

    Ипотека и
    рассрочка
    Барнхаус Idolhouse 116
    Стоимость от:
    8 337 120
    Проект от: 52 200
    Этажей 1
    Санузлы 1
    Спальни 3
    Смотреть
    Ипотека и
    рассрочка
    Двухэтажный дом№12
    Стоимость от:
    9 423 840
    Проект от: 56 700
    Этажей 2
    Санузлы 2
    Спальни 4
    Смотреть
    Ипотека и
    рассрочка
    Фазан-1/24
    Стоимость от:
    9 321 840
    Проект от: 59 400
    Этажей 1
    Санузлы 2
    Спальни 3
    Смотреть
    Ипотека и
    рассрочка
    Двухэтажный жилой дом НОТТИНГЕМ
    Стоимость от:
    14 399 760
    Проект от: 89 550
    Этажей 2
    Санузлы 2
    Спальни 3
    Смотреть
    Ипотека и
    рассрочка
    СТРЕЛЬНА 214 МСК
    Стоимость от:
    14 688 960
    Проект от: 96 300
    Этажей 2
    Санузлы 4
    Спальни 4
    Смотреть
    Ипотека и
    рассрочка
    Флэт-хаус «Дуос»
    Стоимость от:
    8 050 320
    Проект от: 50 850
    Этажей 2
    Санузлы 1
    Спальни 2
    Смотреть

    Как узнать стоимость дома

    back
    Оставляете заявку
    Вы заполняете форму на сайте или звоните нам. Менеджер Лайвкрафт связывается с вами для уточнения деталей: тип дома, площадь, материалы, участок строительства.
    back
    Консультация и подбор решения
    Наш специалист помогает выбрать оптимальный тип дома и конструкцию с учётом бюджета, сроков и целей — будь то дом для постоянного проживания или дача.
    back
    Расчёт предварительной стоимости
    Инженер делает первичный расчёт стоимости строительства по вашим параметрам: фундамент, коробка, кровля, отделка. Вы получаете смету с разбивкой по этапам.
    back
    Корректировка и утверждение сметы
    При необходимости вносим изменения — например, замену материалов или сокращение этапов. После согласования формируется окончательная фиксированная смета.
    back
    Заключение договора и старт работ
    После утверждения сметы заключаем официальный договор с гарантией. Вы получаете прозрачный график и точную стоимость — без скрытых расходов.

    Заказать конусльтацию по:Дом «Эйлин 166» в скандинавском стиле

    Фото 1 Дом «Эйлин 166» в скандинавском стиле


      Наши
      контакты

      Дмитров
      Опорный проезд 28Б
      (индустриальный парк Ниагара)
      9:00 до 18:00

      Корзина