4.9
Рейтинг на основании 120 отзывов
Дмитров
Опорный проезд 28Б
(индустриальный парк Ниагара)
Бренд "Дмитров-Дело" c 2008 года на рынке строительства в Дмитрове
Звоните 9:00 до 18:00 8 (915) 055-33-61
Бренд "Дмитров-Дело" c 2008 года на рынке строительства в Дмитрове

Дом из CLT «Липки»

Стоимость проекта от:
71 100 ₽
БЕСПЛАТНО! ПРИ ЗАКАЗЕ СТРОИТЕЛЬСТВА
Стоимость строительства от:
990 660 ₽
Артикул ART-1964
Дата 26.12.2025
Архитектурный стиль Классический
Количество надземных этажей 1
Круглогодичное проживание Да
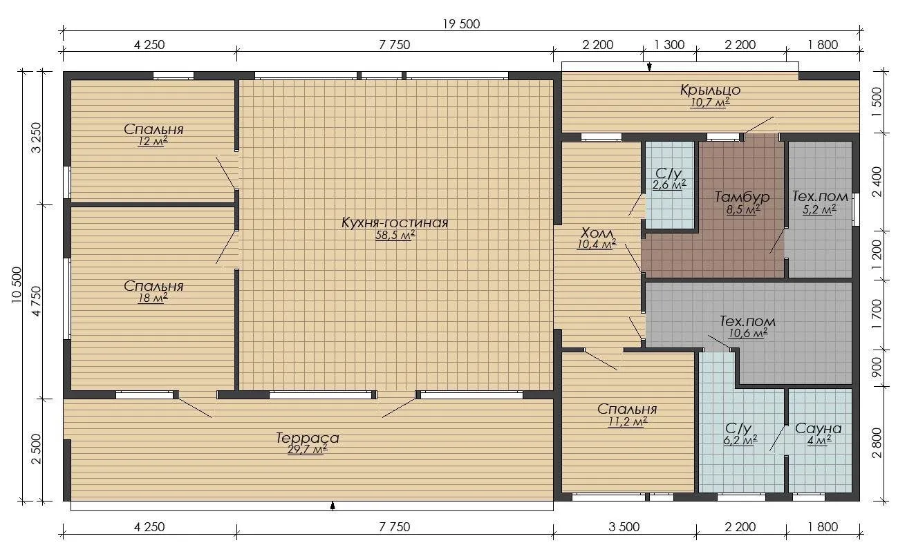
Площадь дома 158 м2
Санузлы 2
Спальни 3

Описание

**Дом из CLT “Липки”** – это элегантное сочетание современного строения и классической эстетики, созданное для тех, кто ценит гармонию и уют. Внутреннее пространство открыто и светло: одна надземная площадка позволяет свободно перемещаться, а крупные окна придают комнатам естественную живописность. На первом этаже расположено просторное обеденно‑жилая зона, где кухня словно вырезана из стены, а вторая половина – это уютный зал с открытым входом, в котором ощущается тепло и дружелюбие домашнего очага. Ключевая особенность дома – это CLT‑панели наружных стен, облака‑твердой древесины, которые придают структуре прочность и теплоизоляцию, а также создают мягкий натуральный облик. Пиломатериалы высшего качества сохраняют свою естественность и экологичность, а двойной крытийный профиль с двускатной крышей делает конструкцию классически элегантной и одновременно защищённой от атмосферных нагрузок. Благодаря таким материалам и конструкции «Липки» обеспечивает круглогодичное проживание: тепло сохраняется в холодную погоду, а прохлада – в летние дни. Выходите на просторный балкон с видом на благоухающий сад, или расслабьтесь во внешней веранде – идеальном месте для утреннего кофе и вечерних посиделок. Отсутствие прицепного гаража и чердака делает дом более компактным и доступным, позволяя сосредоточиться на качестве жилья и окружающей среде. Если вы мечтаете о доме, где каждая деталь проработана до мелочей, а классика встречается с инновациями – «Липки» ждут вашего вдохновения и становятся вашим новым уютным гнездом.

Характеристики дома

Архитектурный стиль
Автоматизированное регулирование параметров теплоносителя
-
Балконы/лоджии
1
Чердачное помещение
Нет
Датчики протечки воды
-
Эксплуатируемая или зеленая кровля
-
Электроснабжение
2 варианта
Газоснабжение
2 варианта
Изоляция воздушного шума
-
Камин
Нет
Класс энергоэффективности
-
Класс энергосбережения
-
Количество надземных этажей
1
Круглогодичное проживание
Да
Материал кровли
Металлические листовые гофрированные профили
Материал перекрытий
Деревянные
Материал внешних стен
Материал внутренних перегородок
Деревянные
Модульное строительство с конструкциями заводского изготовления
Нет
Объем надземной части
583 м3
Основной материал фасадов
Планкен
Отопление
2 варианта
Площадь дома
158 м2
Площадь застройки
158 м2
Подвальное помещение
Нет
Показатель компактности здания
-
Приборы учета тепловой энергии
-
Пристроенный гараж/крытая автостоянка
Нет
Противопожарная система
Нет
Санузлы
2
Совмещенная кухня-гостиная
Да
Спальни
3
Терраса
Нет
Тип фундамента
Свайный
Тип кровли
Толщина внешних стен
200 мм
Толщина внутренних перегородок
100 мм
Улучшенные шумовые характеристики
-
Вентиляция
2 варианта
Веранда
Да
Водоотведение
2 варианта
Водоснабжение
2 варианта
Высота дома
3.7 м
Высота потолков
2.7 м

Планировка

Фасад дома

Александр

Закажите выезд инженера

Александр

Выездной инженер
Закажите выезд инженера для точной диагностики и профессиональной консультации по инженерным системам. Специалист приедет в удобное время, проведёт осмотр, рассчитает стоимость работ и подберёт оптимальные решения для вашего дома.


    Похожие проекты

    Ипотека и
    рассрочка
    К.1.-85
    Стоимость от:
    6 389 900
    Проект от: 38 250
    Этажей 1
    Санузлы 2
    Спальни 3
    Смотреть
    Ипотека и
    рассрочка
    «Эллегия» проект роскошного 2 этажного коттеджа
    Стоимость от:
    11 391 120
    Проект от: 73 350
    Этажей 2
    Санузлы 3
    Спальни 4
    Смотреть
    Ипотека и
    рассрочка
    Family Dream 104.5
    Стоимость от:
    8 277 280
    Проект от: 46 800
    Этажей 1
    Санузлы 2
    Спальни 2
    Смотреть
    Ипотека и
    рассрочка
    Одноэтажный дом Д-120 Светлана
    Стоимость от:
    9 165 640
    Проект от: 54 900
    Этажей 1
    Санузлы 1
    Спальни 3
    Смотреть
    Ипотека и
    рассрочка
    Тайгарт 132
    Стоимость от:
    12 384 020
    Проект от: 81 450
    Этажей 1
    Санузлы 3
    Спальни 4
    Смотреть
    Ипотека и
    рассрочка
    Одноэтажный дом СКАЙ-60
    Стоимость от:
    4 237 200
    Проект от: 27 000
    Этажей 1
    Санузлы 2
    Спальни 2
    Смотреть

    Как узнать стоимость дома

    back
    Оставляете заявку
    Вы заполняете форму на сайте или звоните нам. Менеджер Лайвкрафт связывается с вами для уточнения деталей: тип дома, площадь, материалы, участок строительства.
    back
    Консультация и подбор решения
    Наш специалист помогает выбрать оптимальный тип дома и конструкцию с учётом бюджета, сроков и целей — будь то дом для постоянного проживания или дача.
    back
    Расчёт предварительной стоимости
    Инженер делает первичный расчёт стоимости строительства по вашим параметрам: фундамент, коробка, кровля, отделка. Вы получаете смету с разбивкой по этапам.
    back
    Корректировка и утверждение сметы
    При необходимости вносим изменения — например, замену материалов или сокращение этапов. После согласования формируется окончательная фиксированная смета.
    back
    Заключение договора и старт работ
    После утверждения сметы заключаем официальный договор с гарантией. Вы получаете прозрачный график и точную стоимость — без скрытых расходов.

    Заказать конусльтацию по:Дом из CLT «Липки»

    Фото 1 Дом из CLT «Липки»


      Наши
      контакты

      Дмитров
      Опорный проезд 28Б
      (индустриальный парк Ниагара)
      9:00 до 18:00

      Корзина