4.9
Рейтинг на основании 120 отзывов
Дмитров
Опорный проезд 28Б
(индустриальный парк Ниагара)
Бренд "Дмитров-Дело" c 2008 года на рынке строительства в Дмитрове
Звоните 9:00 до 18:00 8 (915) 055-33-61
Бренд "Дмитров-Дело" c 2008 года на рынке строительства в Дмитрове

Дом из CLT «Витязь»

Стоимость проекта от:
85 050 ₽
БЕСПЛАТНО! ПРИ ЗАКАЗЕ СТРОИТЕЛЬСТВА
Стоимость строительства от:
1 185 030 ₽
Артикул ART-3161
Дата 26.12.2025
Архитектурный стиль Классический
Количество надземных этажей 1
Круглогодичное проживание Да
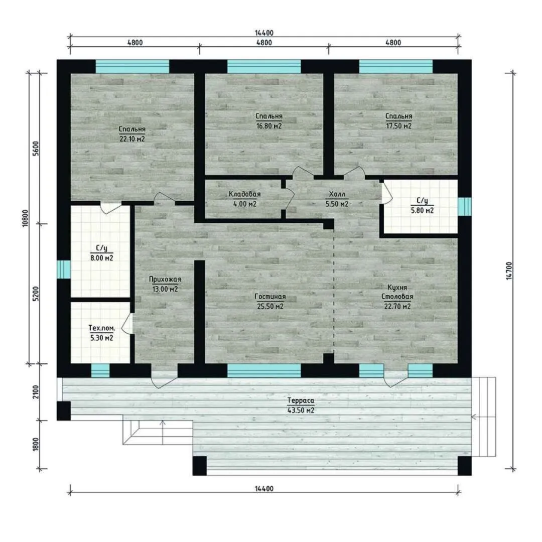
Площадь дома 189 м2
Санузлы 2
Спальни 3

Описание

Погрузитесь в атмосферу уюта и неповторимого комфорта в доме «Витязь». Это стильное решение из клееных бревен (CLT‑панели) объединяет классическую архитектуру с современными технологиями строительства, даря вам ощущение крепости и тепла при каждом вдохе. Дом рассчитан на один надземный этаж, где каждый уголок пропитан мягким светом, а просторные окна открывают вдохновляющие виды. Кристально чистый двускатный крытый покоряет взгляд, а классический фасад с аккуратными чередующимися выступами гармонирует с природой вокруг. В «Витязе» предусмотрена функциональная балкон‑лоджия, где можно уединиться с чашечкой ароматного кофе или наблюдать за закатами, а терраса придаст дому дополнительное пространство для отдыха на свежем воздухе. Технология CLT обеспечивает не только энергоэффективность и звукоизоляцию, но и приятную тепловую изоляцию, что делает жизнь в доме круглогодичной. Без лишних сложностей и лишнего шума — здесь вы найдете идеальное сочетание простоты и практичности. Уютный интерьер сочетает тепло натурального дерева с качественными материалами, а аккуратная планировка делает каждый сантиметр пространства максимально полезным. Дом «Витязь» создаст ощущение уюта и безопасности уже при первом шаге на пороге, приглашая вас наслаждаться каждым мгновением в гармонии с собственным стилем жизни.

Характеристики дома

Архитектурный стиль
Автоматизированное регулирование параметров теплоносителя
-
Балконы/лоджии
1
Чердачное помещение
Нет
Датчики протечки воды
-
Эксплуатируемая или зеленая кровля
-
Электроснабжение
2 варианта
Газоснабжение
2 варианта
Изоляция воздушного шума
-
Камин
Нет
Класс энергоэффективности
-
Класс энергосбережения
-
Количество надземных этажей
1
Круглогодичное проживание
Да
Материал кровли
Металлические листовые гофрированные профили
Материал перекрытий
Деревянные
Материал внешних стен
Материал внутренних перегородок
Деревянные
Модульное строительство с конструкциями заводского изготовления
Нет
Объем надземной части
575 м3
Основной материал фасадов
Планкен
Отопление
2 варианта
Площадь дома
189 м2
Площадь застройки
155 м2
Подвальное помещение
Нет
Показатель компактности здания
-
Приборы учета тепловой энергии
-
Пристроенный гараж/крытая автостоянка
Нет
Противопожарная система
Нет
Санузлы
2
Совмещенная кухня-гостиная
Нет
Спальни
3
Терраса
Да
Тип фундамента
Свайный
Тип кровли
Толщина внешних стен
200 мм
Толщина внутренних перегородок
160 мм
Улучшенные шумовые характеристики
-
Вентиляция
2 варианта
Веранда
Нет
Водоотведение
2 варианта
Водоснабжение
2 варианта
Высота дома
3.7 м
Высота потолков
2.7 м

Планировка

Фасад дома

Александр

Закажите выезд инженера

Александр

Выездной инженер
Закажите выезд инженера для точной диагностики и профессиональной консультации по инженерным системам. Специалист приедет в удобное время, проведёт осмотр, рассчитает стоимость работ и подберёт оптимальные решения для вашего дома.


    Похожие проекты

    Ипотека и
    рассрочка
    Двухэтажный жилой дом SA-180
    Стоимость от:
    12 521 520
    Проект от: 77 850
    Этажей 2
    Санузлы 2
    Спальни 4
    Смотреть
    Ипотека и
    рассрочка
    Одноэтажный дом 85 м2
    Стоимость от:
    6 768 300
    Проект от: 38 250
    Этажей 1
    Санузлы 1
    Спальни 3
    Смотреть
    Ипотека и
    рассрочка
    24РИ03.01 COMFORT LINE
    Стоимость от:
    5 115 660
    Проект от: 41 400
    Этажей 1
    Санузлы 1
    Спальни 2
    Смотреть
    Ипотека и
    рассрочка
    WOODY-12
    Стоимость от:
    6 214 560
    Проект от: 39 600
    Этажей 1
    Санузлы 1
    Спальни 3
    Смотреть
    Ипотека и
    рассрочка
    Богатырь
    Стоимость от:
    3 526 105
    Проект от: 27 450
    Этажей 1
    Санузлы 1
    Спальни 2
    Смотреть
    Ипотека и
    рассрочка
    Проект одноэтажного дома «Каир»
    Стоимость от:
    6 499 900
    Проект от: 42 750
    Этажей 1
    Санузлы 1
    Спальни 3
    Смотреть

    Как узнать стоимость дома

    back
    Оставляете заявку
    Вы заполняете форму на сайте или звоните нам. Менеджер Лайвкрафт связывается с вами для уточнения деталей: тип дома, площадь, материалы, участок строительства.
    back
    Консультация и подбор решения
    Наш специалист помогает выбрать оптимальный тип дома и конструкцию с учётом бюджета, сроков и целей — будь то дом для постоянного проживания или дача.
    back
    Расчёт предварительной стоимости
    Инженер делает первичный расчёт стоимости строительства по вашим параметрам: фундамент, коробка, кровля, отделка. Вы получаете смету с разбивкой по этапам.
    back
    Корректировка и утверждение сметы
    При необходимости вносим изменения — например, замену материалов или сокращение этапов. После согласования формируется окончательная фиксированная смета.
    back
    Заключение договора и старт работ
    После утверждения сметы заключаем официальный договор с гарантией. Вы получаете прозрачный график и точную стоимость — без скрытых расходов.

    Заказать конусльтацию по:Дом из CLT «Витязь»

    Фото 1 Дом из CLT «Витязь»


      Наши
      контакты

      Дмитров
      Опорный проезд 28Б
      (индустриальный парк Ниагара)
      9:00 до 18:00

      Корзина