4.9
Рейтинг на основании 120 отзывов
Дмитров
Опорный проезд 28Б
(индустриальный парк Ниагара)
Бренд "Дмитров-Дело" c 2008 года на рынке строительства в Дмитрове
Звоните 9:00 до 18:00 8 (915) 055-33-61
Бренд "Дмитров-Дело" c 2008 года на рынке строительства в Дмитрове

КР № 4

Стоимость проекта от:
30 150 ₽
БЕСПЛАТНО! ПРИ ЗАКАЗЕ СТРОИТЕЛЬСТВА
Стоимость строительства от:
5 039 540 ₽
Артикул ART-17010
Дата 26.12.2025
Архитектурный стиль Классический
Количество надземных этажей 1
Круглогодичное проживание Да
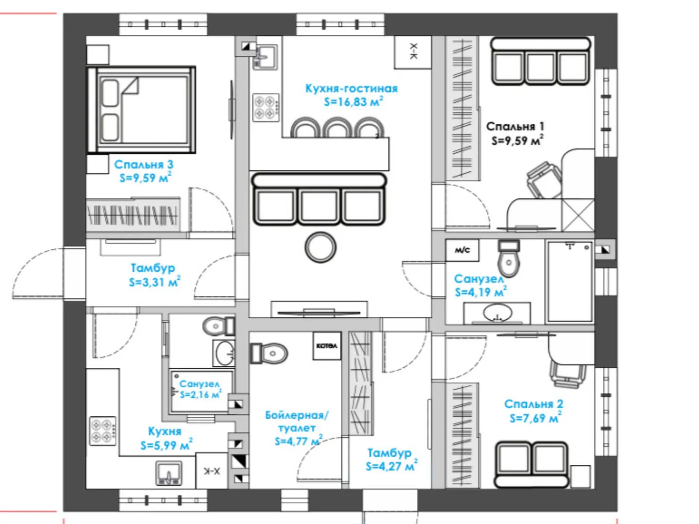
Площадь дома 67 м2
Санузлы 2
Спальни 3

Описание

Простой, но в то же время изысканный дом в классическом стиле – это оазис уюта во всей его многогранной полноте. Он состоит из одиннадцатого надземного этажа, на котором располагается уютная, светлая квартира с просторным гардеробным и световыми проемами от окна, которые наполняют внутреннее пространство мягким дневным светом. Газобетонные блоки, использованные в облике внешних стен, гарантируют тёплую защищённость от холода и внушительную звукоизоляцию, а четырёхскатная (вальмовая) крыша добавляет образу элегантность, подчёркивая строгую линию фасада. Дом спроектирован под круглогодичное проживание: утеплённые стены, надёжная система водоотведения и аккуратный баланс классических очертаний делают его идеальным для любой погоды. Внутри просторный, но не громоздкий, благодаря продуманному планировочному решению. А в чердачном помещении скрывается потенциал: можно превратить его в уютный домашний кабинет, тихий уголок для хобби или даже дополнительную квартиру для гостей. Этот дом – сочетание практичности и стиля, где каждый элемент обыгран с душой и вниманием к деталям, приглашая вас насладиться неповторимыми моментами в собственной уютной обстановке.

Характеристики дома

Архитектурный стиль
Автоматизированное регулирование параметров теплоносителя
Нет
Балконы/лоджии
Отсутствуют
Чердачное помещение
Да
Датчики протечки воды
Нет
Эксплуатируемая или зеленая кровля
Нет
Электроснабжение
Не предусмотрено
Газоснабжение
Не предусмотрено
Изоляция воздушного шума
Нет
Камин
Нет
Класс энергоэффективности
-
Класс энергосбережения
-
Количество надземных этажей
1
Круглогодичное проживание
Да
Материал кровли
Металлочерепица
Материал перекрытий
Деревянные
Материал внешних стен
Материал внутренних перегородок
Блочные
Модульное строительство с конструкциями заводского изготовления
Нет
Объем надземной части
482 м3
Основной материал фасадов
Облицовочный кирпич
Отопление
Не предусмотрено
Площадь дома
67 м2
Площадь застройки
90 м2
Подвальное помещение
Нет
Показатель компактности здания
-
Приборы учета тепловой энергии
Нет
Пристроенный гараж/крытая автостоянка
Нет
Противопожарная система
Нет
Санузлы
2
Совмещенная кухня-гостиная
Да
Спальни
3
Терраса
Нет
Тип фундамента
Свайно-ростверковый
Толщина внешних стен
350 мм
Толщина внутренних перегородок
120 мм
Улучшенные шумовые характеристики
Нет
Вентиляция
Естественная
Веранда
Нет
Водоотведение
Локальные очистные сооружения
Водоснабжение
Не предусмотрено
Высота дома
5.36 м
Высота потолков
3 м

Планировка

Фасад дома

Александр

Закажите выезд инженера

Александр

Выездной инженер
Закажите выезд инженера для точной диагностики и профессиональной консультации по инженерным системам. Специалист приедет в удобное время, проведёт осмотр, рассчитает стоимость работ и подберёт оптимальные решения для вашего дома.


    Похожие проекты

    Ипотека и
    рассрочка
    Одноэтажный дом с крыльцом
    Стоимость от:
    4 439 380
    Проект от: 26 550
    Этажей 1
    Санузлы 2
    Спальни 2
    Смотреть
    Ипотека и
    рассрочка
    Дом из двойного бруса «Майма»
    Стоимость от:
    2 077 570
    Проект от: 15 300
    Этажей 1
    Санузлы 1
    Спальни 2
    Смотреть
    Ипотека и
    рассрочка
    А-дом 54
    Стоимость от:
    4 259 520
    Проект от: 30 600
    Этажей 2
    Санузлы 1
    Спальни 2
    Смотреть
    Ипотека и
    рассрочка
    Июль
    Стоимость от:
    12 890 400
    Проект от: 96 750
    Этажей 2
    Санузлы 2
    Спальни 5
    Смотреть
    Ипотека и
    рассрочка
    Орлово
    Стоимость от:
    5 800 080
    Проект от: 46 800
    Этажей 1
    Санузлы 1
    Спальни 3
    Смотреть
    Ипотека и
    рассрочка
    Одноэтажный дом FIXPLANS — 2096
    Стоимость от:
    8 912 640
    Проект от: 50 400
    Этажей 1
    Санузлы 2
    Спальни 3
    Смотреть

    Как узнать стоимость дома

    back
    Оставляете заявку
    Вы заполняете форму на сайте или звоните нам. Менеджер Лайвкрафт связывается с вами для уточнения деталей: тип дома, площадь, материалы, участок строительства.
    back
    Консультация и подбор решения
    Наш специалист помогает выбрать оптимальный тип дома и конструкцию с учётом бюджета, сроков и целей — будь то дом для постоянного проживания или дача.
    back
    Расчёт предварительной стоимости
    Инженер делает первичный расчёт стоимости строительства по вашим параметрам: фундамент, коробка, кровля, отделка. Вы получаете смету с разбивкой по этапам.
    back
    Корректировка и утверждение сметы
    При необходимости вносим изменения — например, замену материалов или сокращение этапов. После согласования формируется окончательная фиксированная смета.
    back
    Заключение договора и старт работ
    После утверждения сметы заключаем официальный договор с гарантией. Вы получаете прозрачный график и точную стоимость — без скрытых расходов.

    Заказать конусльтацию по:КР № 4

    Фото 1 КР № 4


      Наши
      контакты

      Дмитров
      Опорный проезд 28Б
      (индустриальный парк Ниагара)
      9:00 до 18:00

      Корзина